
屋主是一对「996」85后夫妇,随着女儿逐渐长大,不得不开始考虑学区房这件事。在奔波辗转于多个「老破小」之后,夫妻俩最终相中了一间30㎡的小屋,附带一个20㎡小院。
房子位于上海最具浪漫文艺气息的马路之一,有老房子独有的岁月质感,仿若隔离了喧嚣和庸扰,让一切安静下来,更多了一层学区房之外的意义。
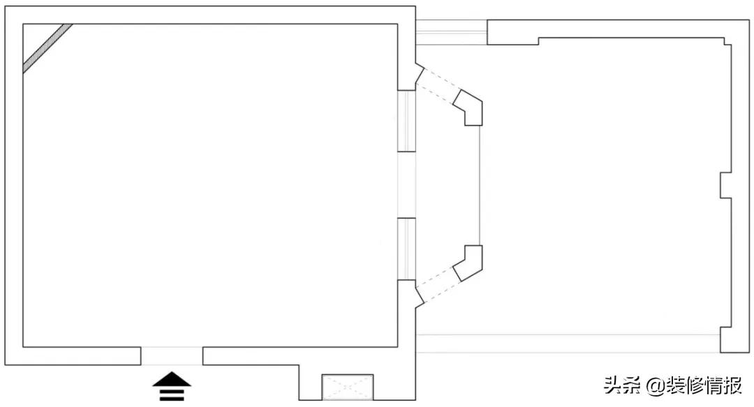
户型图
坐 标:上海 徐汇
户 型:一室一厅
面 积:32㎡
费 用:28w
房屋改造前其实是一栋老式洋房别墅楼的一楼客厅,层高约3.3m,没有厨卫设施。

房屋虽小,但屋主对它有着诸多期待:
1、客厅、厨房、卧室、卫生间,一个空间都不能少。
2、有足够的收纳空间和藏书的地方。
3、希望餐厅能容下4~6个人。
4、想要花园和落地大窗户。


改造重点:
1、在前期现场勘查时,设计师团队发现地下有一个将近60公分的通风架空层。拆除并对地面进行基础防水工程后,层高达到了3.9米,为空间改造创造了良好的条件。
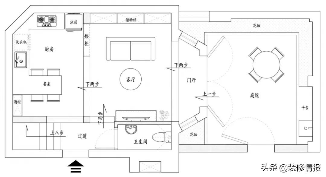
2、利用层高优势,在离地2.1米的高度搭建了钢结构的二楼楼板,分隔为上卧室(榻榻米间)下厨餐厅的格局。客厅上方的挑空设计给二楼卧室带来充足的采光以及通风。
3、在入户门右侧增设卫生间,面积虽小,但可同时满足淋浴、坐便器、台盆需求。
4、利用客厅开间较大优势,在沙发后方定制了一整面到顶柜体,上方书架,下面矮柜,同时满足储物和藏书需求。
5、打通原梯形阳台,并入室内,增加室内自然采光的同时,也增加了空间的舒适感和层次感。

▲二层平面布局图
客 厅

关于软装,屋主的喜好比较「意识流」,没有特定的风格定向,只希望氛围是契合环境的。
同时,因为每次去都会带上女儿,所以希望有童趣元素的加入,于是,设计师在各种地方都穿插了一些和小胖桃一样圆乎乎的细节。

沙发:野兽派
靠垫:宜家
地毯:Ferm Living

客厅吊灯的灯泡是一只萌趣十足的胖球,是设计师旅行时在一家欧洲老货仓库一见钟情的中古款。

总高度将近3.6米的大书柜派头十足,上中下三种不同展示方式,也不会显得太呆板。
设计师提议在书架上安装滑轨梯,一来更稳当更安全,二来也营造出一种仪式感。

▲ 沙发背后的大书柜

沙发侧边的小矮柜,让宝宝也能轻松拿到自己喜爱的书和玩具,同时也遮挡了厨房最容易显杂乱的切配区。

改造后,将梯形阳台纳入室内,两侧落地窗和大落地玻璃对开门充分引入自然光。拍摄当天下着雨,即便不开灯也丝毫不觉昏暗~


▲ 天气好,可以在葡萄架下面办家宴


完美的休憩角落,在室内依旧能欣赏到院子里的娇媚和绿意。

玻璃面藤编圆几是老上海时期的物件,可能和这栋楼差不多同龄。

屋主舅舅的根雕小品,真像一只小狐狸~

从餐厅看向院子,10㎡出头的客厅因为挑空层高丝毫不显逼仄。

竹制摇马同样来自老上海时期,藤面电视柜购自致家家居。

铁艺小鹿造型花架依旧是老物件一枚,一捧钻石翡翠长势喜人。窗外的三角小花圃是小胖桃的包干区,种着各种香草,屋主在做西餐或调mojito的时候,可以直接就地取材。
餐厨区

萌娃抢镜!这张餐厨区正脸照,将楼梯以及部分二楼的布局也一起带入了镜头。
由于没有安装油烟机,厨房实现了完整的L型上下柜,显得极其整洁。

圆点花砖和彩色仿水磨石地砖,给了厨房间童趣混搭复古的基调。


客厅看向餐桌,小小的桌子足够坐下4大1小。

餐厅家具也花了屋主和设计师不少的心血:餐桌为老榆木实木定制,Art deco风格的拱形镂空靠背皮座面餐椅,也是设计师在老货仓库实地验货后入的,特别有CP感的伸缩吊灯海淘自德国中古灯具店,藤面餐椅来自某宝韩国代购,长凳品牌为二黑木作。


餐桌灯特写,是不是和餐椅配一脸?

追求极致效果的屋主,把原计划的德龙两件套升级成了SMEG……

一捧小雏菊带来浓浓秋意。

老榆木行云流水般的木纹纹理。

餐桌造型细节,带着一丢丢小中式。

▲ 藤面餐椅

转个角度,实木定制的玻璃窗和卫生间门正好同框。
玻璃窗由设计师提供图样,与卫生间门、楼梯、二楼栏杆扶手一起找的工厂定制。窗户不能开合,主要功能是营造空间通透感和装饰效果。上半部分为透明玻璃,下半部分为格纹轧花玻璃,框架为非洲柚木。

角落小酒柜是屋主夫妇唯一的大人们的小心愿~

为了呼应无处不在的球球,所有下柜均安装了实木圆球拉手。


电陶炉烤箱灶:倍科
洗碗机、洗衣机:西门子
冰箱:韩国大宇

在厨房嵌入式家电的选择上,屋主也是费了一番心思,尽最大努力寻找不破坏整体和谐感的款式。

治愈系小萌物们。

八九十年代宜家出品的笑脸小台灯,是意大利淘来的老货,虽然找不到合适的灯泡,但就这么静静地微笑就足够了~
楼 梯


楼梯选用橡木,纹理比较粗犷,搭配用来遮挡难看强电箱的民族风挂毯,风格呼应统一。

三种木料同框,相得益彰。

▲ 楼梯转角墙面,挂上了几幅有趣的小画
左边的挂壁三层抽屉盒是海淘来的老货,本身是存放调料的,现在用来当钥匙盒用。壁灯来自Kartell,美丽的琥珀色充满复古气息,方格子灯罩正好呼应窗玻璃。楼梯的其中两阶做了抽屉,增加储物。
二楼卧室

收起床品,铺上一块大号羊毛地毯,二楼就成了宝宝的玩乐区,沿墙安装的L型收纳矮柜提供了可观的储物空间。
门板和拉手选用厨房同款,台面选用木纹款式,与扶手栏杆的上木下白设定配套。窗帘做了双面丝绒,自带足够优秀的遮光效果。

别看衣柜高度一般,65cm的柜体深度容量不容小觑,塞下榻榻米床垫、枕被后还能存放不少衣物。

扶手栏杆也使用了橡木,为了不让粗犷的纹理破坏柱体造型的秀气感,刷了白色封闭漆。
卫生间

卫生间空间虽小,但螺蛳壳里做道场,该有的功能都有了。
白砖嵌黑色双腰线、黑白马赛克地砖,尤其凸显年代感,搭配全套复古造型洁具,可见屋主对家中每个角落的极致追求。

搪瓷台盆、花洒、马桶全部来自Molly-飞机头。

穿插一张设计师早前探班照,没有入驻洁具的卫生间,被说有种盗梦空间的感jio~

▲ 干区洗手台

镶嵌了轧花玻璃的实木卫生间门,同样由设计师提供图样,工厂定制。柚木的色泽、质感、木纹肌理完美诠释了造型上的复古感,做旧款黄铜门把手锦上添花。

两格壁龛,足够收纳各种瓶瓶罐罐。

壁龛背景墙砖呼应地砖,小面积铺贴所以选了图样更密的款式。
院子

▲ 院子改造前


小院子的地面除了葡萄架区域,全部铺设防腐木,包括加高栅栏和院门也全部用防腐木定制。
院子所有墙面都刷了白色户外漆,批腻子的时候设计师特意关照师傅不要砂平墙面,保留自然斑驳的肌理,这样才符合老上海的感觉~

院子里的水槽和柜体由水泥砌成,收纳园艺和清洁用品,柜门同样用防腐木定制。

▲ 小小园丁的勤快背影
因为屋主不是常住在这里,原本准备围个大L型的花坛被设计师缩减到短短一排,种植一些不太娇弱的植物,有助于激励园艺新手的自信心和积极性哈哈~
L型夹角由花坛改为防腐木长凳,这样在小院里招待客人的话,坐十几个人也毫无压力。葡萄架下地面铺上暖黄色的小石子,不仅可以让区域划分感更明确,也减少视觉上的沉闷。

设计师决定加设葡萄架的初衷就是想为小胖桃装个秋千,谁的童年不爱荡秋千呢~


令人心旷神怡的小院小景。
楼道


怀旧片压轴,走进老洋房的楼道,仿佛进入了另一个时空……
本文来源:家的要素

编辑留言
私信小编,回复“装修设计”,加小编聊聊吧。