
空间场力概念
The Concept of Spatial Force

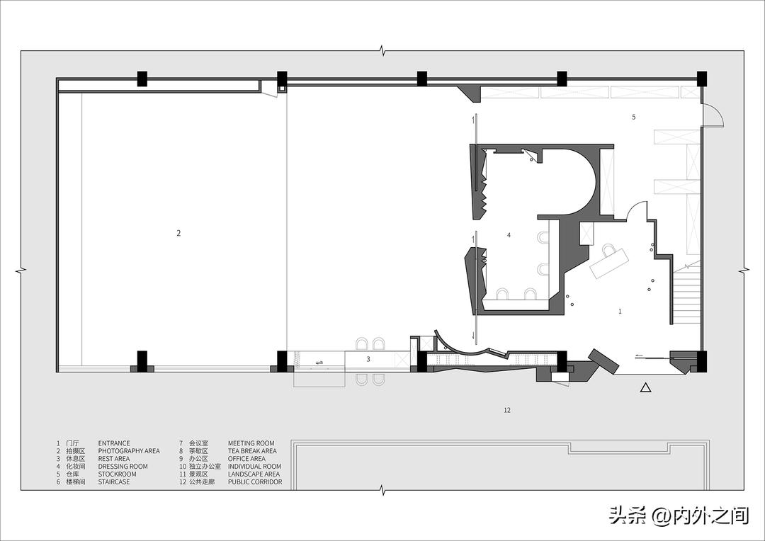
该项目是RAYONE摄影工作室新的办公场所。栖斯希望通过一种设计手段加强RAYONE的品牌特征:丰富多变而有力。当基本的空间结构确定后,栖斯用一种客观存在的外力来控制空间形态的生成,而非通常的几何范式。这种力我们称之为“空间场力”。
外立面形态对空间场力的回应
The response of facade form to spatial force

项目场地位于建筑的顶层,一侧与室外走廊相邻。场地两侧分别是露台和电梯厅。立面形体朝向人流来向的展示欲、入口对开放性的欲求、内外界面的对抗力等综合作用于立面形态。最终生成具有鲜明特征的外观形象。

空间结构的确立
Establishment of Spatial Structure

在功能布局上,拍摄区与功能区分置于场地两侧。内部办公空间与拍摄辅助空间集中布置在一个二层体量的盒子内。盒子内的各个空间顺应功能、流线需求以及场地的原始形态。我们在设计之初便确立了基本空间结构。
前厅空间形态对空间场力的回应
The response of the entrance hall space form to the spatial force

前厅空间是几处空间场力交汇之地。是一处典型的场力塑形空间。来自楼梯间、办公休息区、独立办公室等场力将前厅塑造成一个接近锥体的空间。上小下大的空间形态扩张了空间的尺度。灯柱是Ray(光线、射线)的隐喻,并为空间提供主要的光源。垂直的灯柱充当了空间的参照,倾斜的墙体得以更清晰的表达。加强了人对空间形态的体验。


功能区立面形态对空间场力的回应
The response of facade form of function area to spatial force

从拍摄区看向功能区,二层的体量拥有建筑似的外观。立面上的褶皱是对空间场力的微妙回应。

办公桌形态对空间场力的回应
The response of desk form to spatial force

RAYONE 内部办公分为三个部门,每个部门有两人。RAYONE提出了两两一组的工位布置需求。在有限的空间内如何实现既紧凑又分离的状态是办公区的设计重点。





景观区形态对空间场力的回应
The response of landscape area form to spatial force

景观区与前厅制衡中形成了下小上大的倒锥形空间。内部布置绿植与灯柱,形成办公室的借景。瓦楞玻璃模糊了景观区的空间形态。办公室的视觉感受得以延伸。




一层平面布置图

二层平面布置图
左右滑动查看更多图片

外立面造型分析图

室内轴测图

功能区立面分析图

前厅空间造型分析图

走廊空间造型分析图

办公桌形态分析图
左右滑动查看更多图片
项目名称丨RAYONE摄影工作室
项目类型丨艺术工作室
项目地址丨上海市宝山区真大路560号
项目甲方丨RAYONE摄影工作室
空间设计丨栖斯设计
设计团队丨陈茜茜、傅翀、单仁杰
完成时间丨2022.10
建筑面积丨340㎡
摄影版权丨吕晓斌
主要材料丨水泥漆