项目标签
设计公司:Superhelix Pracownia Projektowa
位置: 波兰
类型: 建筑 景观
材料: 木材 金属 钢 光伏电板
标签: 克拉科夫
分类: 住宅建筑 独栋住宅 绿色建筑
#一起上头条##抄书打卡##头条创作挑战赛##在头条看见彼此##别墅##建筑##美丽乡村##经常安慰自己的一句话是什么##中国古建筑摄影联盟##爆料#
这座房子位于波兰克拉科夫的郊区,是其所在小区内的10栋住宅的其中一栋。该地区的地价十分高昂,因而建筑的密度较大。为了保障居住者的隐私,住宅通过一面巨大的屋顶被隐藏在街道的后方,从而隔离于北面的邻居。这也正是它被称为“屋顶背后的房子”的原因。
▼建筑外观

随着城市的动态发展,越来越多的自然区域被用于地产开发,生态友好型的设计也因此显得尤为重要。屋顶的北面覆盖以大量的多肉植物,日晒充足的南面屋顶则安装以光伏太阳电池。这面绿色屋顶的坡度为45°。事实上设计一个传统的水平绿色屋顶会更加容易,但当地的法律规定屋顶必须倾斜。虽然绿色屋顶的面积已经明显超过了建筑的占地面积,但建造的成本还是很高。这或许也从某种角度证明了,我们从大自然中攫取的东西都将使我们付出代价。
▼鸟瞰图,北面的屋顶覆盖以大量的多肉植物

▼日晒充足的南面屋顶安装以光伏太阳电池

建筑的独特结构由层压木材制成,结构单元呈对角线分布,屋顶的边缘还设有凹槽。这面屋顶并非只在外部裸露,它还向着室内渗透。在南北两面屋顶的衔接处开有带状的窗户,能够让大量光线进入。远离地面、设于高处的窗户在打开时能够带来高效的自然通风。
▼南北两面屋顶的衔接处开有带状的窗户

▼屋顶下的户外空间

Superhelix事务所十分关注建筑和材料随时间而产生的变化。住宅的立面由西部红雪松木板覆盖,且没有刻意地去进行防虫和防雨保护,因为随着时间流逝,它将自然而然地呈现出高贵的光泽,并渐渐变为银灰色。绿色的屋顶也无需额外的看护,植被的储水能力和北面的阴凉气候使其能够长时间地抵御干燥环境。
▼绿色屋顶能够长时间地抵御干燥环境

▼屋顶植被细部

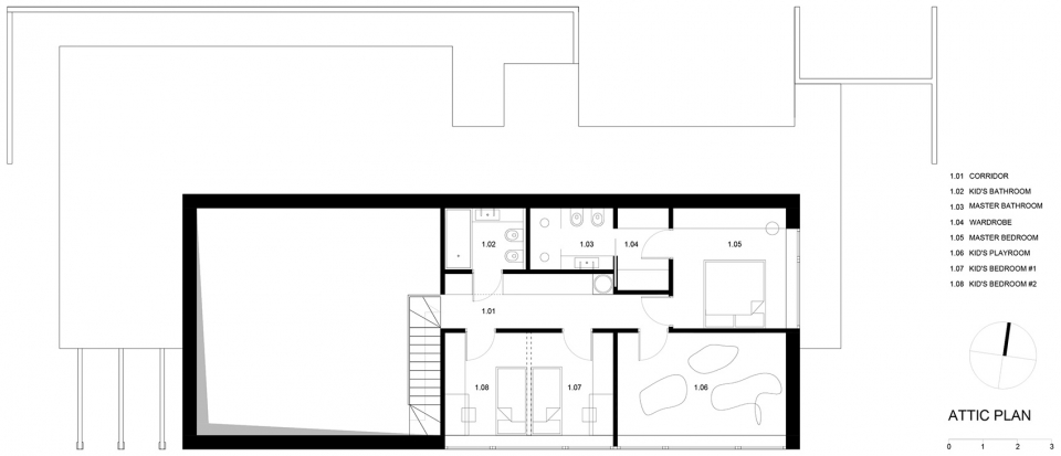
住宅基于矩形的平面而建,两个楼层的面积共计189平方米。由于郊区的交通不甚发达,房主主要使用汽车通勤,因此车库被设置在住宅一层的内部空间并靠近起居室和厨房。客人卧室、洗手间和杂物间也同样位于一层。二层包含了带有衣帽间和浴室的主卧、两间儿童卧室、儿童浴室和游戏室,并可根据需要进行布局上的调整。
▼住宅入口

▼车库被设置在一层

▼整体鸟瞰

▼气候分析

▼首层平面图

▼二层平面图

▼剖面图

▼屋顶结构细部

Project name: House behind the RoofArchitect’s Firm: Superhelix Pracownia Projektowa – Bartłomiej DrabikCompletion Year: 2018Location: Kraków, PolandArea: 189 m2Architect: Bartłomiej DrabikConstruction: Marcin Matoga – Konstrukcje BudowlanePhotographer: Bartłomiej Drabik