142平现代简约空间,宽敞镜面实现视觉延伸,塑造质感之家
本案的房主夫妻是一对理科生,他们从自身的喜好观点出发,希望能够有一个更加硬朗简约一些的空间,但是同时还想要呼应家庭环境氛围,在其中融入一些温暖元素。因此设计师采用大量的简约线条和镜面实现现代风的高级质感,同时还加入暖跳色,让空间氛围更加符合一个家庭的温馨感觉。
案例:142平现代简约宅
居住成员:三人
房屋面积:142平
房屋类型:三室
空间格局:客厅、餐厅、厨房、卫浴×2、书房、卧室×3
主要建材:大理石瓷砖、灯具、皮质、木作、软件等
预算:30~50万
设计师:苏颖
因为房主希望能够有一个更加宽敞且机能丰富的私人空间,因此设计师将主卧和书房大同,化身成为一个大套间,不仅让动线更加简约,同时也实现了房主的需求。
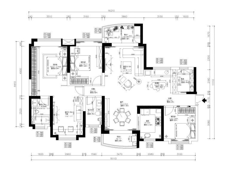
【户型图】


本案空间当中原本的轻体墙众多,不仅影响了整体动线的流畅度,同时也割裂了原本的宽敞空间。在这里设计师将大量轻体墙拆除,保留主要的承重墙和分割空间的墙面,打造一个动静分离且动线顺畅的理想生活空间。
【客厅】

设计亮点:高级灰
客厅其实更多的运用了高级灰作为主调,也为整体空间的氛围和设计风格奠定基础。宽敞的客餐厅空间设计让两边的采光源能够得到交融,不仅扩展房间的视野,同时也让阳光和空气能够更好地流通。大空间为了避免因为集中主灯设计从而影响整体的采光效果,在天花吊顶的位置设计了众多的筒灯光源,确保每个角落都能够明亮起来。

设计亮点:大气简约
客厅墙面是镜面和大理石材料的结合,用回字型的结构做设计,中间的纯白大理石大气恢宏,四周用镜面做围绕,不仅让房间宽度得到一定延伸,同时也柔化了石材墙面的硬感。对面的棕色皮质沙发很有一种高品质生活的质感,在这里设计师还加入了一些鲜亮跳色的处理,为空间增添活泼和温暖的小亮点。
【厨房】

设计亮点:中厨
因为考虑到油烟的问题,中厨被做了封闭式的设计,但是设计师在这里运用了比较多的亮暖色调,米色和纯白的搭配既不会让空间显得颇为单调,同时也提升了厨房亮度。在这样明亮整洁的厨房当中烹饪,对于房主来说也是一种生活享受。

设计亮点:西厨
西厨就是一个开放式设计的空间,这里不仅有料理台,还有一个中岛吧台,房主夫妻不仅可以在这里聊天、小酌、吃早餐也可以在这里工作,功能性强大。一边的墙面做了柜体设计,扩展储物空间。
【餐厅】

设计亮点:镜面墙
餐厅的整体设计注重质感和品牌,无论是餐桌椅的选择、装饰的搭配等等都彰显出这一点。但是最让人注意的还是满墙的镜面,不仅从视觉出效果上拉伸,同时因为灯具的映照效果,更别有意境。
【卫浴】

设计亮点:柔和氛围
卫浴其实很多时候是我们比较放松的一个环境,设计师在卫浴设计上使用了很多的温暖浅色系的元素,搭配暖黄的灯光,塑造一个慵懒舒适的氛围。
【卧室】

设计亮点:高级品味
主卧的设计是很有现代风质感的,床头背墙有一种金属材料的光泽度,和对面的深色木作柜体呼应,让空间更具个性和品味。

设计亮点:趣味童年
儿童房的设计上主要注重孩子的娱乐需求,房主希望孩子能够有一个更加快乐的童年时光。
【书房】

设计亮点:功能起居
书房其实兼具着多种功能,这里也可以被看做是休闲空间和起居室。
总结点评:本案作为一个现代简约风的空间,运用众多镜面和石材元素,在黑白灰为主的空间当中注入亮色点缀,既有高级质感有不缺暖意温馨。
【文案编辑】目海居沐天