文秘人员如果光会“写”公文,而不会“排”公文,也是有缺陷的,特别在一些基层单位,企事业单位,人员比较少,文秘人员的分工不是那么明确,文秘既要当秘书,又要当打字员!既要能写,又要能“排”,才能算全面掌握公文,才是能称得上称职。
请“关注”职场文书写作,下面来个“快餐”,一会便好。简单明了的公文排版方法。

用Word制作公文,在设置页码、行数和字数、页眉时,常会遇到一些比较棘手的问题,怎么调都和范本不一样,有了这篇文章,对照做就再也没问题啦。(学习参考资料: 根据秘书等平台整理)

一、设置页码
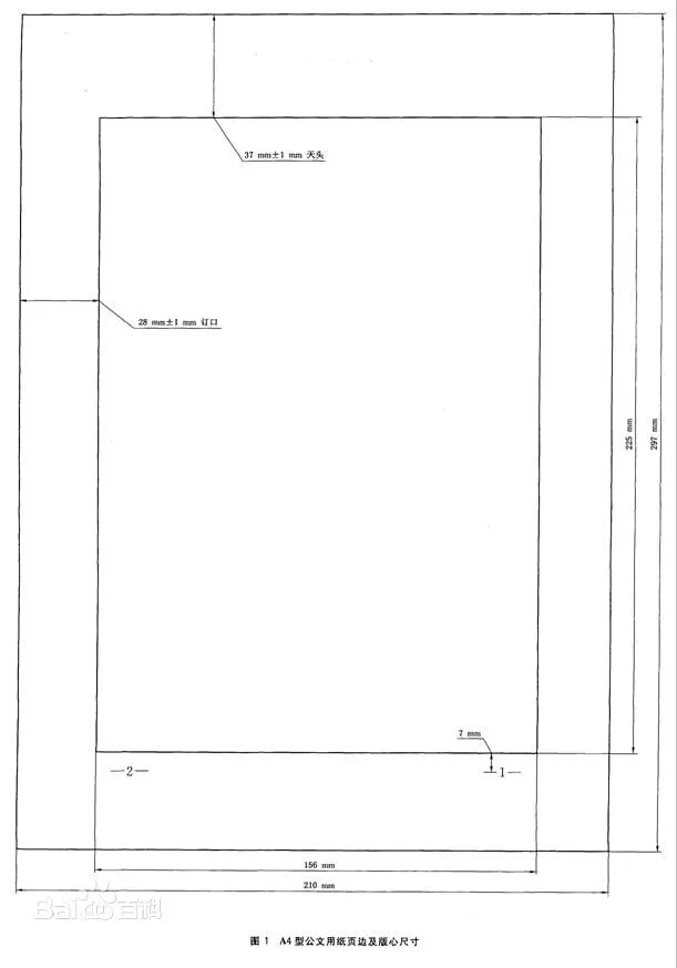
2012年6月国家质检总局、国家标准化委员会联合发布的《*党**政机关公文格式》(以下简称“《格式》”)中关于页码的规定主要有:
1.页码位于版心外。

2.页码一般用4号半角宋体阿拉伯数字,编排在公文版心下边缘之下,数字左右各放一条一字线;一字线上距版心下边缘7mm。单页码居右空一字,双页码居左空一字。公文的版记页前有空白页的,空白页和版记页均不编排页码。公文的附件与正文一起装订时,页码应当连续编排。
3.信函格式的首页不显示页码。
这些规定让页码设置变得不易操作,主要表现在页码的位置及空白页不显示页码两个方面。关于页码设置,请用如下方法:
第一步:解决页码与版心的距离问题。
首先重新设置页眉和页脚。单击Word窗口功能栏中的“文件”,打开“页面设置”,在对话框中找到“版式”,将其中“距边界”的“页眉”设置为3.7cm,即公文用纸天头(上白边)的尺寸。根据公文用纸幅面尺寸(210mm×297mm)、公文用纸天头(上白边)尺寸(37mm±1mm)、版心尺寸(156mm×225mm)的要求,可计算出版心下边缘至下页边的距离为35mm,为了满足页码数字左右的一字线上距版心下边缘7mm的要求,应将“版式”中“距边界”的“页脚”设置为2.8cm。

第二步:解决插入页码问题。
要实现页码“一般用4号半角宋体阿拉伯数字,数字左右各放一条一字线。”“单页码居右空一字,双页码居左空一字”的要求,需进行以下操作:

①单击Word窗口功能栏中的“文件”,打开“页面设置”,在对话框中找到“版式”,在“页眉和页脚”中选择“奇偶页不同”(因奇偶页的页码格式不同,所以要分别设置)。
②单击Word窗口功能栏中的“插入”,打开“页码”对话框,在“对齐方式”中选择“外侧”,打开“格式”对话框,将“数字格式”选择为“1,2,3,…”。
③将光标置于第一页,单击Word窗口功能栏中的“视图”,打开“页眉和页脚”,在页脚中点击外侧的页码“1”,出现文本框后,将页码“1”的字号改为4号半角宋体,然后在“1”的左右各输入一条一字线(左右一字线与页码应保留一个半角字符的间距),再将该页码文本框右缩进一个汉字,保证右侧空出一个汉字的距离。
④按照上述办法在第二页页面中设置偶数页页脚,要注意此时的数字是“2”,且将页码文本框左缩进一个汉字,保证左侧空出一个汉字的距离。
第三步:解决首页不显示页码或空白页不显示页码问题。
单击Word窗口功能栏中的“文件”,打开“页面设置”,在对话框中找到“版式”,在“页眉和页脚”中选择“首页不同”;单击Word窗口功能栏中的“插入”,打开“页码”对话框,将“首页显示页码”前的勾取消。
要解决公文的空白页和版记页不编排页码的问题,则需进行如下操作:
①先将光标置于空白页上一页的页末。
②单击Word窗口功能栏中的“插入”,打开“分隔符”,在其中的“分节符类型”下面选择并单击“下一页”。
③双击空白页的页码,出现“页眉和页脚”的标记,在“页眉和页脚”工具栏内找到并点击“链接到前一个”。
④选中空白页或版记页的页码,删除该页码即可。
二、设置行数和字数
《格式》规定,“一般每面排22行,每行排28个字,并撑满版心”,其前提是“如无特殊说明,公文格式各要素一般用3号仿宋体字”,因此该规定一般只针对公文的正文。
要实现此规定,需进行如下操作:

单击Word窗口功能栏中的“文件”,打开“页面设置”,在对话框中找到“文档网格”,点击“指定行和字符网格”,再将“字符”的每行设置为“43”,“字符”的跨度设置为“10.3磅”,将“行”的每页设置为“22”,跨度设置为“28.5磅”。
三、去除页眉中的横线
进行页眉和页脚操作时,如果自动应用“页眉”样式,页眉中会出现一条横线,有两种方法可以去除。
方法一:双击页眉区域,出现页眉编辑虚线框,全选页眉文字(如无文字则选中回车键符号)。单击Word窗口功能栏中的“格式”,打开“边框与底纹”,将“边框”菜单下的“自定义”设为“无”,在右边找到组合框“应用于”,打开后选择“段落”,点击“确定”,页眉中的横线即消失。
方法二:双击页眉区域,出现页眉编辑虚线框,单击Word窗口功能栏中的“编辑”,选择“清除”,单击其中的“格式”选项,页眉中的横线即消失。
注意:以上是基于Word2003版本介绍的操作
请“关注”职场文书写作,下次继续学习。
附录:公文标准A4纸排版格式
