很多人私信咨询新中式的案例,今天小编给大家整理了几款新中式别墅案例,大家可参考一下

项目概况
尺 寸
面宽13.8米 进深27.0米
建筑面积
222.0㎡

△总平面示意图
项目位于河北,基地东侧是邻居家住宅,西侧是一条胡同,南侧是村内行车主路,北侧为道路和一片荒地。业主对图纸编号567的项目极为喜欢,因此建筑采用新中式风格。
图纸设计

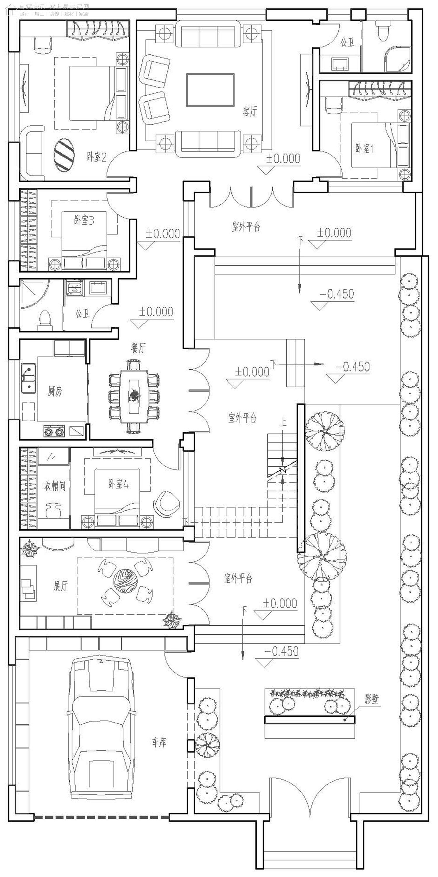
△一层平面图
平面正房和厢房通过廊道连为一体,正房入户客厅位于正中,两侧为卧室,公卫位于东北角。厢房部分餐厅和厨房位于中间,两侧仍为卧室,厢房公卫位于餐厅和卧室3之间,使得每间卧室距离公卫距离都比较近,使用时也较为方便。
除居住区域外,西南角布置有车库,与车库相邻处设计一间展厅,后期可进行陶瓷展览。
室内每间房间均有采光,开窗位置充分考虑到室内家具布置,保证室内使用感更佳。
造型设计

△鸟瞰图
建筑整体为新中式风格,立面粉墙黛瓦,局部使用木质建材点亮建筑,使得整体达到更为舒适的状态。正房屋顶为传统双坡屋顶,厢房用平屋顶作为平台,增加室外活动空间。

△鸟瞰图
车库位于西南角,侧面开有小面积横窗,既能保证使用上的安全性,也能让车库获得采光。车库顶部选用实体和半镂空组合形式,后期业主可根据喜好选择屋顶形式。

△鸟瞰图
厢房屋顶平台利用女儿墙作为围栏,考虑到墙体围栏过于厚重的视觉感,在庭院一侧选用墙体和格栅结合方式。平台部分主要是休息区域,进入屋顶楼梯为镂空式,避免出现遮挡室内采光的情况。

△鸟瞰图

△庭院效果图
院门后方为“福”字影壁,除保护庭院私密性外,影壁可起到分流作用,参观陶艺展的人员可从左侧直接进入展厅,业主及其家人则从影壁右侧直达客厅。

△庭院效果图

△庭院效果图
在餐厅和庭院之间利用楼梯间设计保护墙,使得餐厅外平台拥有较为私密用餐环境。墙体上方饰板与楼梯梯段对应,饰板上摆放的绿植盆栽与下方水景相呼应,形成极好景观。

△东南侧效果图

△东立面图

△西立面图

△南立面图

△北立面图
2、

项目概况
尺 寸
面宽16.5米 进深12.0米
建筑面积
270.0㎡

△总平面示意图
项目位于湖北,建筑坐北朝南,占地145平米。基地南侧是庭院,西南角为预留的后院,西侧后期会加建柴火房,设计时需要提*考前**虑。综合衡量场地情况和业主的功能需求,建筑最终选择新中式风格。
图纸设计

△一层平面图
平面考虑到业主需求和场地情况,设计多处出入路径,让业主及其家人的日常生活极为便利。客厅、餐厅、门厅采用开敞设计,让一层公共区域极为开阔,空间十分大气。
公共空间与外界可直接连通,配合廊道的设计,增加内外交流,保证室内极佳视野。
老人房位于西南侧,配有独立卫生间。麻将房独立布局,可单独使用的设计让父母在闲暇时打牌放松更加简单、便利。

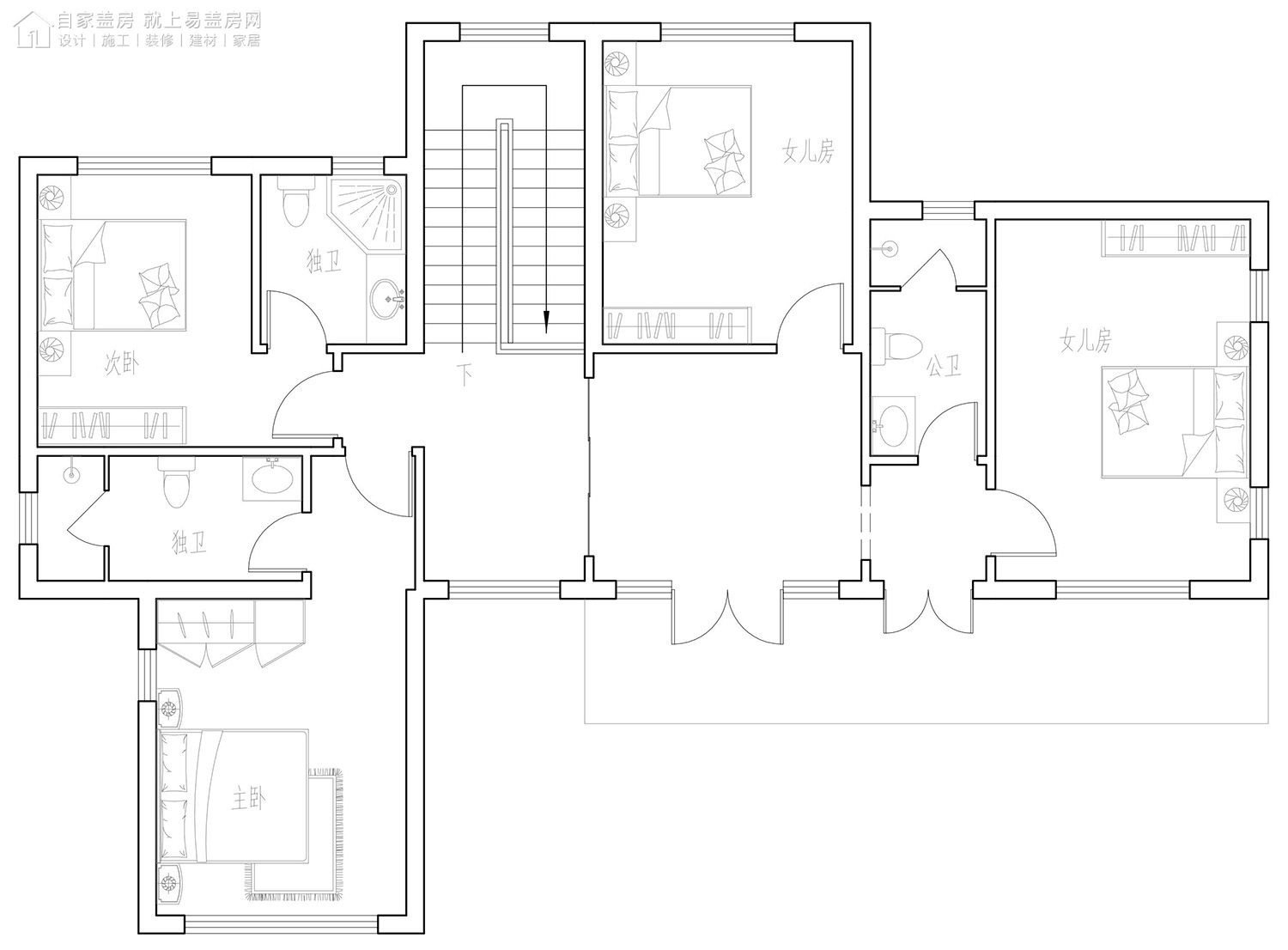
△二层平面图
二层以起居功能为主,两间女儿房布置成套房,相邻的位置增加孩子之间的交流。考虑到孩子的成长环境,套房配有过渡空间以及室外区域,让居住环境得到保证。
造型设计

△鸟瞰图
建筑整体为新中式风格,立面选用传统粉墙黛瓦的造型,有质感的建材让建筑视觉上效果出众。建筑分界处利用中式门窗的窗檐进行强调,自然的效果使得建筑淡雅的韵味得到加强。

△鸟瞰图
屋顶部分与传统中式建筑有所区别,重点区域采用人字顶进行强调,并与主体屋顶通过单面连接。较多的组合以及层次增加整体丰富度。

△鸟瞰图
南侧廊道为二层提供室外活动空间,同时,入户位置通过中式门廊过渡,提升入户仪式感。空间上的凹凸变化让建筑整体十分灵动,展现出更多层次。

△鸟瞰图

△东南侧效果图
院门选择大方的中式木门,门后按照传统中式庭院布局摆放影壁。南侧廊道附近设计小型假山景观,增加室内和庭院的景色。休息区位于西侧,其余空间留白,作为活动区域使用。

△西南侧效果图

△东立面图

△西立面图

△南立面图

△北立面图
3、

项目概况
尺 寸
面宽30.0米 进深13.0米
建筑面积
408.0㎡

这栋徽派的别墅位于安徽阜南,整个宅基地的尺寸是30米乘以13米。不同于以往的别墅,这栋别墅采用了灵活多变的整体布局,这样的建筑体量可能更容易体现出徽派建筑的细节特色。

△总平面示意图
整个建筑基地周边情况良好,南侧和西侧均为道路,东侧为邻居家的宅基地,目前还没有建房,而北侧与邻居也有五米左右的间距。通过建筑与围墙将整个宅基地围合出两个庭院,南侧的主庭院以及北侧餐厅外的小庭院。
图纸设计

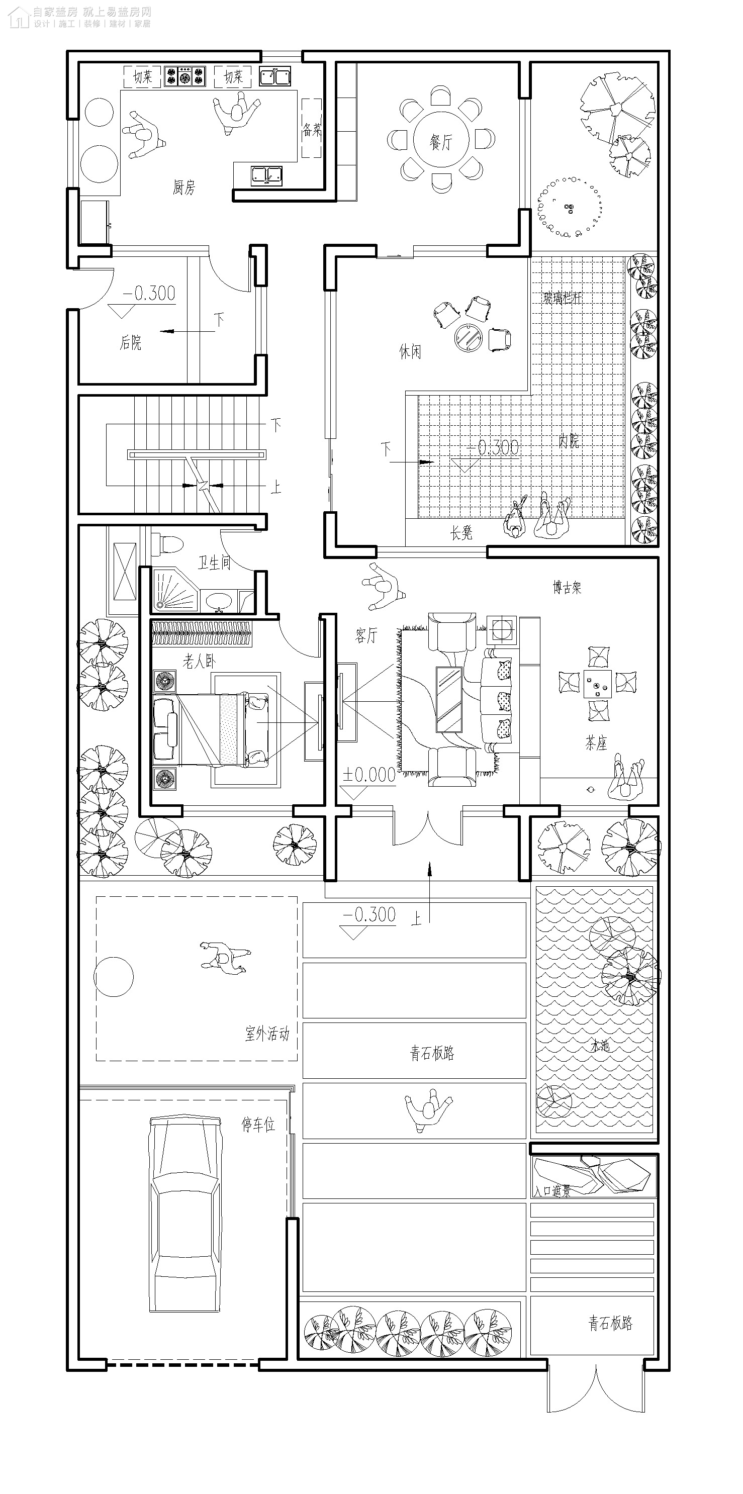
△一层平面图
建筑的一层主要是供父母来居住,其中在南侧布置了客厅以及老人房,还有一间茶室,北侧是别墅内的餐厅和厨房。整个建筑的出入口有两个,一个是在南侧,一个是在西侧,而西侧的出入口主要是为了老人去照料农田时的出行服务的。在有限的基地面积下,我们还要设计相应的车库位置,为了避免车库对建筑主体采光的影响,所以我们将车库设置在了南侧。

△二层平面图
二层就是为弟弟妹妹和他们的子女设计的房间,其中楼梯南侧的卧室是弟弟和弟弟的女儿的房间,北侧是妹妹、妹夫和他们三个子女的房间(其中有一个是上下铺的床),二层设置了一个共用的起居室,与室外阳台相连接。

△三层平面图
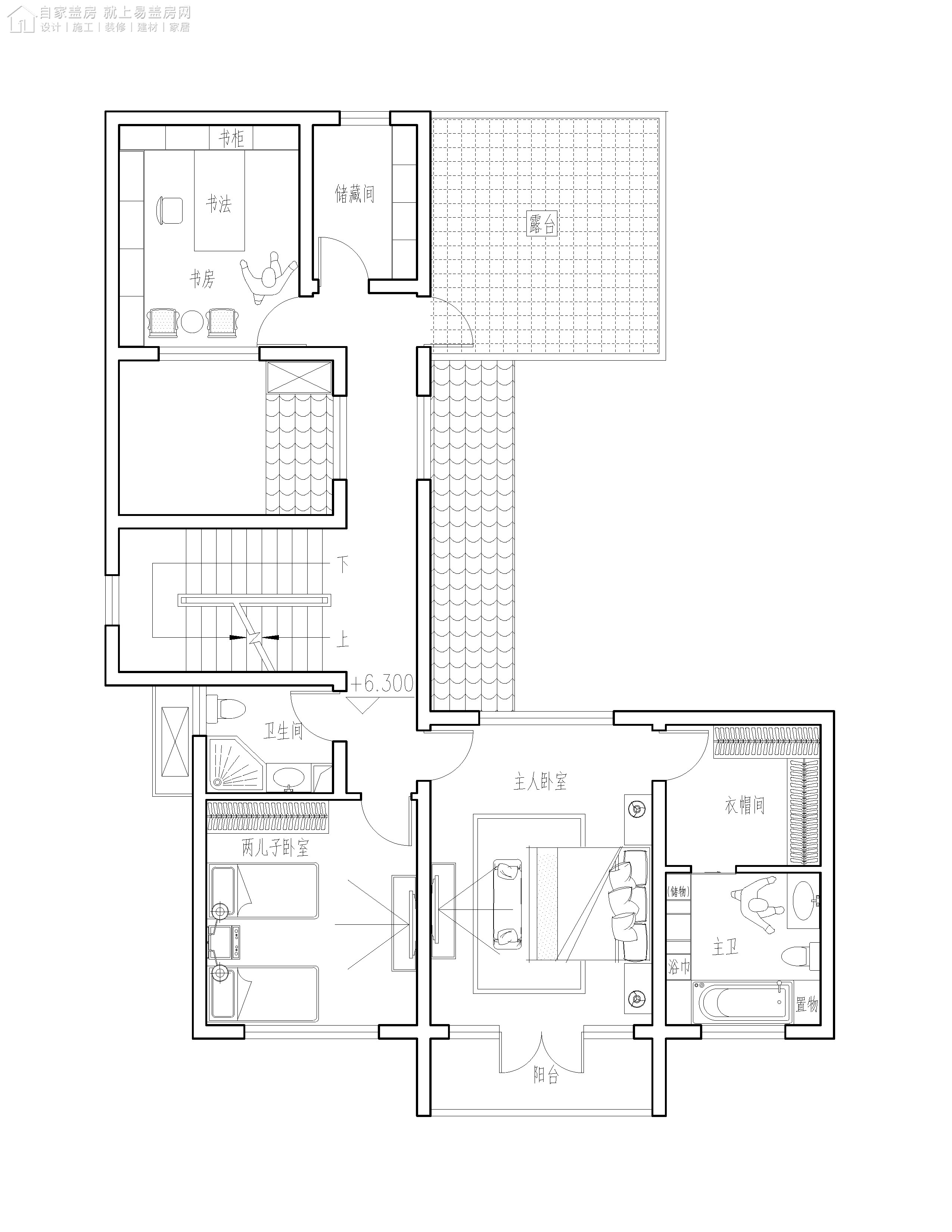
建筑的三层整个是委托人自己使用的部分,其中有一间包含衣帽间的大主卧,与主卧相邻的是业主两个儿子的房间,楼梯的北侧有一间独立的书房和储物间,妹妹和妹夫房间的顶部,在三层被设计为室外露台,为委托人提供了,一个良好的室外活动空间。
造型设计
根据委托人的喜好我们确定了以徽派为主的立面风格,所以我们延续了徽派建筑中粉墙黛瓦的整体色调,将徽派建筑中马头墙,卷棚屋顶等元素引入了进来。

△鸟瞰图
整个建筑的一层和二层其实是"U"型的布局,而三层为“L”型的布局,整个空间层次丰富,整体立面风格上清新淡雅,又不失大气。

△鸟瞰图

△鸟瞰图

△鸟瞰图

△鸟瞰图

△鸟瞰图
主要的卧室、客厅的采光都为南向。

△庭院效果图
因为委托人自己比较喜欢打篮球,所以要求我们在庭院中布置一个篮球架做户外运动。

△庭院效果图
一层茶室窗户对着的是入院的照壁,而窗户与照壁之间的是景观水池,为委托人喝茶会客提供了一个高品质环境。

△庭院效果图

△西侧入口效果图

△庭院效果图

△屋顶露台效果图
三层的空间层次非常丰富,不仅有屋顶的露台,而且在建筑南北相接的走廊处设计了玻璃天窗,在走廊上可以看到庭院内的景观和庭院外的行人,天气好的时候看看星星也是不错的。

△二层走廊内效果图
二层走廊处的窗户我们采用了方形的窗格来划分,在清晨或早上阳光洒入的时候室内会产生变化丰富的光影效果。

△东立面图

△西立面图

△南立面图

△北立面图
4、

项目概况
尺 寸
面宽15.5米 进深25.0米
建筑面积
858.0㎡

△总平面示意图
项目位于北京市郊的怀柔慕田峪景区附近,业主希望将原有民宿拆除重建。宅基地西侧为公路,但距离宅基地尚有一定距离,南北两侧紧邻邻家住宅和其他民宿建筑,建筑东侧为山区的挡土墙。


△项目现场情况
业主在项目前期提出了很多具体的设计要求和意见,从平面到立面都有很多自己的想法。设计师根据业主的需要和喜好,同时考虑项目周围情况,将项目形式确定为东西朝向的2层新中式风格建筑(地下1层),并充分用满宅基地的面积,满足商业运营需要。

△现场施工照片
目前项目尚处于土建施工的初期阶段,整体进度已进行至地下防水施工阶段,待主体施工完毕后方可开始室内施工。
民宿就犹如一杯“茶”。
茶不以外观美丑区分,合口感、润心境、宜健康即是好茶。
【城边栖居】则正符合这清雅的主题,栖居于长城脚下,山泉清水,秘瓷器皿,主次坐定,品茗交谈,随心、随想、随愿、随情这样一处佳境,细细品,耐人寻味。
平面布置

△地下一层平面布局
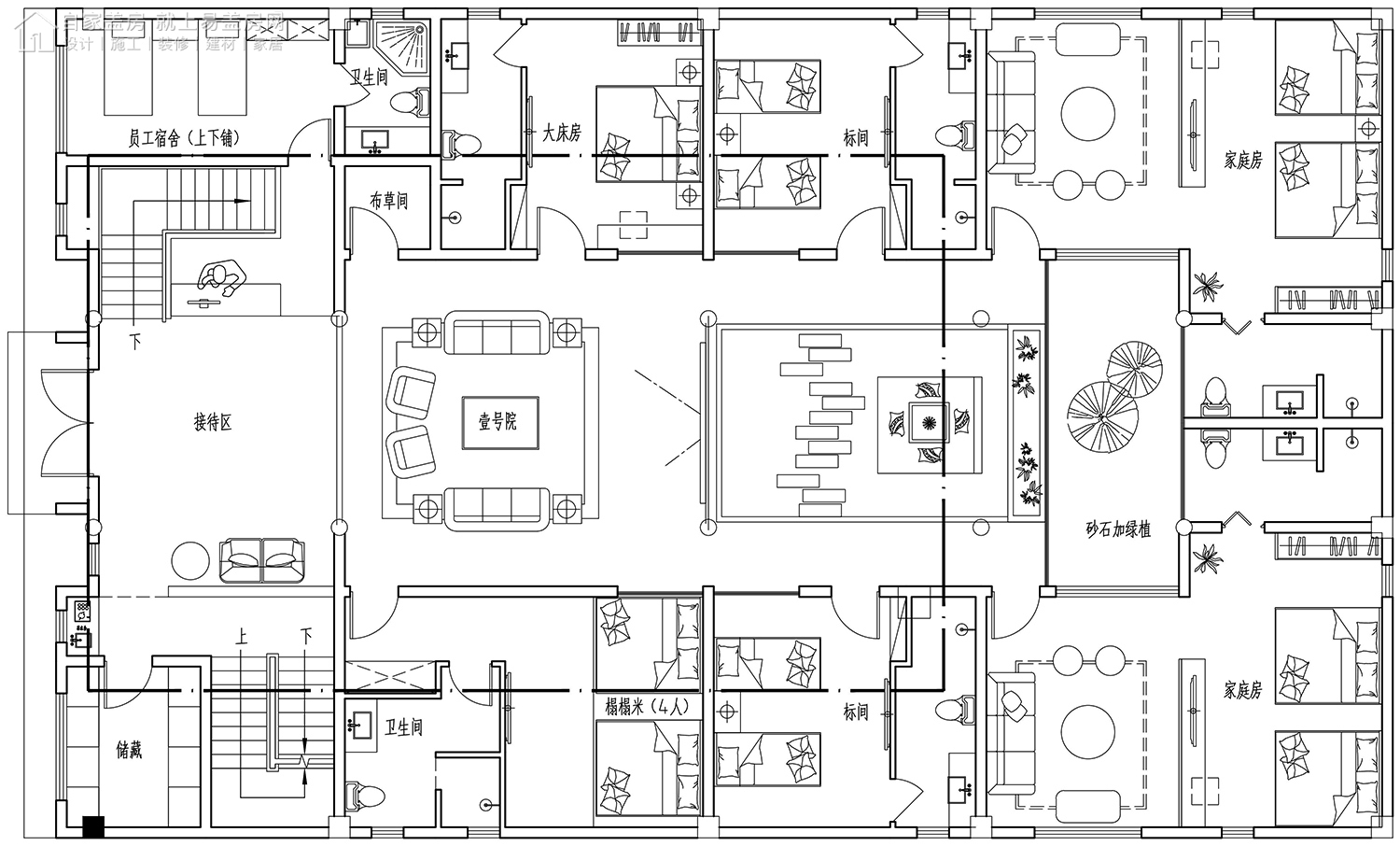
建筑整体采用住宿与餐饮功能分区的设计方式,地下一层被设计为餐饮区。设备间与厨房放置于东侧空间,中部大面积空间为公共用餐区域,并未设计隔间和包房。同时西侧也集成了很多功能性空间,包括公卫、集水坑、储物和洗烘等空间。

△一层平面布局
一层布局中,东侧半部采用南北对称设计,布置了两个标间以及两个家庭房,同时纳入室内景观丰富入住体验。西侧空间由于接待区和楼梯等的设计需要,因此并未采用对称设计。中部迷你庭院的设计也使得建筑整体形成了风水上佳的四合院形式。

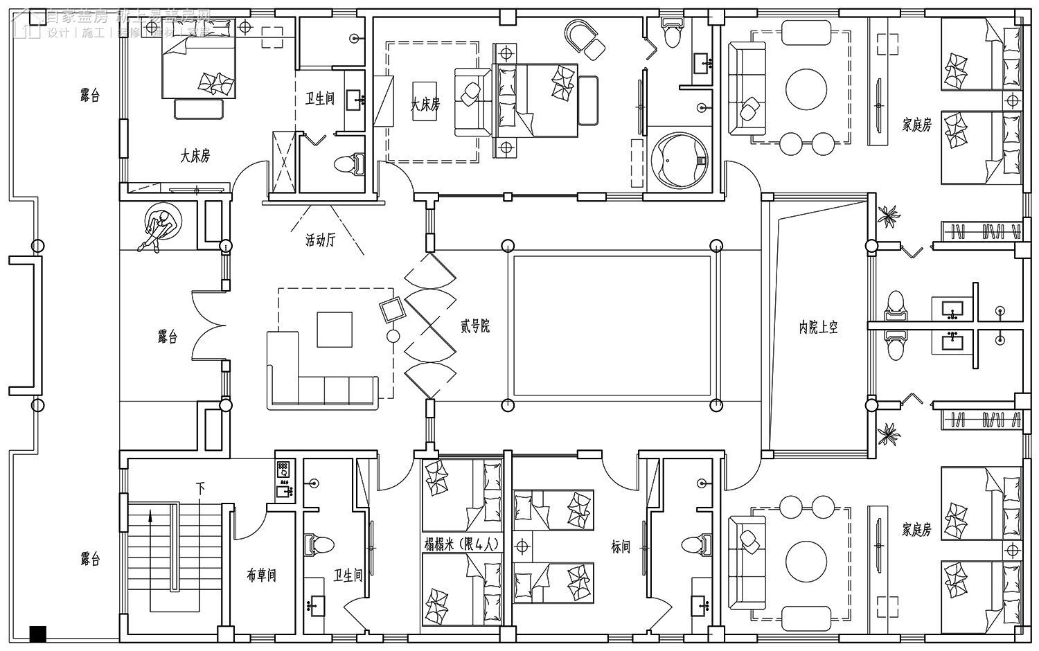
△二层平面布局
二层房间布置基本与一层保持一致,由于不需要接待区和员工宿舍等空间,因此设计师对于二层采用了退台设计,使得二层西侧可以创造出一片大面积的露台空间用于休闲。
造型设计

△西北侧效果图
设计师在一层采用青砖和浅色真石漆打造清爽的传统中式立面效果;屋檐、窗檐与挑檐、门楣均采用青瓦铺贴,古朴而又简洁。

△西南侧效果图
二层部分设计师大量采用木材质,使得视觉效果更加突出,同时也让二层的露台成为立面视觉焦点。梁柱之间的中式装饰构件丰富了细节处理,使得游客一眼就能感受到中式风格民宿带来的优雅与精致气息。

△入户效果图
西侧立面整体严格对称,门厅周围层次感丰富,窗框采用传统中式木窗,造型古朴而精致;门檐与二层木栏杆搭配形成鲜明对比,增强入户的仪式感。

△二层庭院效果图

△二层庭院效果图
二层的露天内院设计既丰富了二层的休闲活动功能,又大大提高了二层各个房间的室内采光。屋顶与二层空间大量的木材使用虽然增加了不少造价,但却换来了更为自然和古朴的体验,相信正式营业后一定能得到游客的一致好评。

△东立面图

△西立面图

△南立面图

△北立面图
5、

项目概况
尺 寸
面宽22.2米 进深15.6米
建筑面积
243.0㎡

△现场照片
项目位于北京,属于改造和加建结合。业主个人较为喜欢传统建筑,对图纸编号540的项目十分喜欢。根据基地情况结合业主喜好,建筑最终设计为三合院形式。

△现场照片
北侧为业主家原有老房,设计在保留原有结构的前提下进行。东、西厢房为加建部分。基地背靠山林,西侧邻居家住宅与业主家布局一致,东侧邻居家建筑层高较高,南侧为村内主路。北侧自然风光较好的景观面预留有后院。

△总平面示意图
图纸设计

△一层平面图
业主日后可能将建筑作为民宿使用,因此平面设计需要合理规划自用空间和客房数量。
北侧正房在原有建筑基础上进*房行**间划分,东侧空间为业主自用,套房形式让此处空间功能齐全,私密性也较好。正房西侧设计有两间客房,中间位置多功能厅在日后可作为接待空间。考虑到出入方便,在多功能厅处开有后门,方便业主或入住者前往后院观景。
东西厢房和正房通过封闭走道连为一个整体。西厢房为客房区域,共有两间客房。东厢房为餐厅、厨房等辅助房间,东厢房餐厅上方可设屋顶餐厅,室外用餐环境带来多样空间感和趣味性。
造型设计

△鸟瞰图
建筑为三合院形式,整体配色淡雅,以白墙展现主体雕塑感。正房采用传统坡屋顶,东西厢房选用平屋顶,东西厢房屋顶高度低于正房屋脊,以此确定建筑主次关系。

△鸟瞰图
考虑到白墙面积过大会在视觉上产生单调和冰冷的感觉,因此门窗部分以木色装点。院门位于东侧,造型大方。入门正对影壁,石雕影壁质感良好,花纹精美。

△鸟瞰图
庭院分为前后两个院子,前院作为景观和交通区域,后院作为休息区域,明确分区让业主及入住者使用时更为舒服。东厢房屋顶提供室外用餐空间,通往屋顶楼梯紧邻天井,利用天井处景色丰富视野。

△鸟瞰图
西厢房屋顶作为平台使用,楼梯以镂空形式虚化空间感和厚重感。屋顶部分围栏选用简约横条纹,纤细护栏小巧精致,以白色呼应墙面。

△庭院效果图

△庭院效果图
前院靠近西厢房位置有小型休息区域,与位于影壁后方休息平台成斜线布置,花墙中和建筑自带厚重感。庭院留白部分日后会建成鱼池,配合假山做中心景观。

△庭院效果图

△庭院效果图
后院作为休息区域,使用木质桌椅配合高大树木形成静谧氛围。高大树木在阳光下投下片片阴影,院内勃勃生机衬着远处山林风声瑟瑟,环境、氛围极佳。

△庭院效果图