要问目前合肥最有潜力的区域是哪?大部分人肯定想到了滨湖新区,作为省政府所在地,汇集大量金融机构和休闲娱乐场所,无论是房企还是购房者都对滨湖充满着向往。
目前滨湖新区正处于加快建设和蓬勃发展的时期。许多住宅拔地而起,人气也源源不断汇集于此,这么多人在此生活,哪能少了商业、写字楼呢?
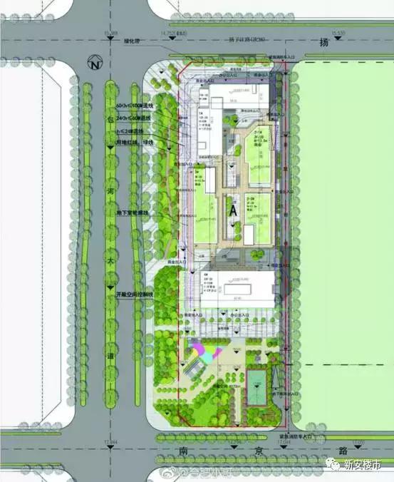
01
招商滨湖商业地块规划曝光 滨湖再添一150m高楼
1月17日,招商蛇口以单价1951万/亩竞得滨湖区BH2016-19号地块,总价30.227亿元,其中A地块商业楼面价8362元/㎡,B地块居住楼面价13303元/㎡,C地块居住楼面价14634元/㎡竞得滨湖区BH2016-19号地块。溢价率248.4%。

根据规划,项目主要建设6栋26层、5栋18层和17栋11层的住宅,另外有1栋30层的商业,2栋公共服务设施、社区配套商业、休闲广场、地下停车库、小区配电房、物业管理用房等配套设施。总用户数1548户,机动停车位2044辆。
前期住宅部分规划已经出来了,而最近其商业地块的规划也曝光了,招商商业A地块总建面121327㎡,预计主楼将建150m,让我们先看看它的具体规划示意图:





该地块位于包河大道与扬子江路交口东南角,地块西边为包河大道,是连接市区和滨湖新区的重要主干道,北边是扬子江路,东边为安徽路,南边为南京路,交通还算可以,是滨湖新区较为优质的地块。

该地块住宅项目案名定位招商雍华府,预计将在省府板块再添1452套房源。而该区域的商业目前还不够完善,多为待开发或正在开发的土地。

因此,该区域目前也迫切需要有一个大型商业加持,为居住在这里的人提供生活便利,也让滨湖新区的企业数量得到增加,从而加快滨湖乃至整个合肥的发展。
项目信息
总用地面积:25350.6㎡
用地性质:商业、办公
容积率:3.5
建筑密度:40%
绿地率:20%
总建筑面积:121327㎡,地上建筑面积:88727㎡
停车位:机动车停车位817个,非机动车停车位1893个
2
招商商业地产逾百万平米 遍布全国25个城市
招商局地产控股股份有限公司(原招商局蛇口控股股份有限公司)是央企招商局集团三大核心产业之房地产板块的旗舰公司,是具备综合开发能力、物业品类丰富、社区管理完善的大型房地产开发集团。
招商产业以蛇口为中心,横跨深圳、北京、上海,管理产业园、写字楼物业逾百万平米。其商业项目众多包含招商局广场、新时代广场、海运中心、工业区大厦、招商大厦、半岛大厦等。

2012年3月,深圳招商商置投资有限公司(以下简称招商商置)正式挂牌,商置可以说是招商地产旗下的商业资产管理公司,管理招商最优质的持有型物业资产。目前,负责全国25个城市商业地产项目的投资、招商、推广、运营及处置,业态涵盖写字楼、购物中心、酒店、服务式公寓、会所、别墅、产业园区等。
2013年,招商地产主导的蛇口海上世界改造历时两年将全面完成,并且作为招商的核心商业综合体项目重新亮相。

另外还有位于北京东三环的希尔顿酒店顶级品牌CONRAD运营管理的铂金五星级酒店。

虽然商业地产的运营时间不是很长,但招商作为国企,又是老企业,对于商业运营肯定有其独特之处,且为来也将越发成熟。
3
4个板块22个商业综合体 未来滨湖商业要扎堆
虽说商业会为一个区域加持,使其更有竞争力,并提高居住品质,但是商业过剩也可能导致城市发展受到阻碍,许多写字楼和商业没法正常开业,也会让房企承担着巨大的风险。
对于滨湖的居民来说,曾经最苦恼的就是商业,一年多以前,仅有世纪金源购物中心一家商业综合体,完全无法满足滨湖常住居民的需求,超市爆满、停车困难是常态。
但随着滨湖新区大量商业的不断开业,滨湖新区的商业气息也开始浓重起来。

又随着万达茂、悦方ID Mall的相继开业,掀起了滨湖居民消费娱乐的新高潮,滨湖的商业格局迎来“三足鼎立”时代,并开始飞速发展。
但短时间内,规划和在建的商业综合体多达20多个,那么就出现了一个问题,未来滨湖商业是蓬勃还是泛滥?过剩危机要来了吗?


启动区板块
世纪金源购物中心
地点:徽州大道与紫云路交口东北角。
业态:大型购物中心、超市、酒店、公寓。
体量:购物中心总建筑面积40多万平方米,停车位约3500多个,集合了百大滨湖购物中心、永辉超市、居然之家、国美电器等诸多商业形态。购物中心北面还有世纪金源大饭店、酒店式公寓等。
辐射范围:滨湖世纪城、滨湖假日、滨湖和园等。
现状:作为滨湖新区启动区首家商业综合体,曾经拥有滨湖唯一一家大型超市,也是滨湖唯一的购物中心,多年来招商和定位不断升级,在商业飞速发展的滨湖新区依然占有一席之地。
滨湖新地城
地点:庐州大道与锦绣大道交口西南角,近地铁1号线滨湖国际会展中心站。
业态:商业街、写字楼、酒店、国际会议中心。
体量:22万㎡的4座写字楼、6万㎡的2座酒店、7万㎡的大型商业街区和1.5万㎡的国际会议中心,红星美凯龙已入驻并开业。
辐射范围:粤港中心、万科时代之光、滨湖世纪城等,位于地铁1号线滨湖会展中心站,也能吸引地铁沿线人群。
现状:是地铁1号线进入滨湖的第一站,目前红星美凯龙已入驻并开业,建成后将成为滨湖北部的商业中心。
国购中心

地点:徽州大道与锦绣大道交口东南角。
业态:大型商业、知名五星级酒店、超市。
体量:10万方大型商业。
辐射范围:合肥金融港、滨湖世纪城等。
现状:在建的国购中心是从徽州大道进入滨湖新区之后的第一个商业综合体,建成后将大大缓解徽州大道沿线的商业压力;但偏北的位置距离滨湖中心区域较远,难以吸引大量人流。
国购广场

地点:庐州大道与洞庭湖路交口西南角。
业态:商业、酒店、超市。
体量:10万方大商业、知名五星酒店、超市。
辐射范围:滨湖假日、佳源巴黎都市等。
现状:在建。
中翔商业中心

地点:徽州大道与长沙路交口东北角。
业态:商业、超市、写字楼、公寓。
体量:商业部分约42908平米(不含地下一层超市3750平米),写字楼面积约为24985平米,公寓面积约为24099平米。
辐射范围:滨湖和园、滨湖假日、金泉小区等。
现状:去年一年,中翔商业中心业主维权近10次。据业主称,开发商在没有取得合法手续的情况下就进行建设和销售。原定于2014年10月底交房的中翔商业中心至今未交付。
省府板块
利港银河广场

地点:庐州大道与紫云路交口东北角,地铁1号线紫庐站A出口。
业态:shopping mall、主题商业步行街、高端办公,大润发超市。
体量:52万方的超大体量。
辐射范围:不但能覆盖滨湖的利港银河广场住宅、万科蓝山、徽盐世纪广场、琥珀瑞安家园、滨湖世纪城、观湖苑、滨湖假日等小区,由于其与地铁1号线紫庐站A出口无缝对接,更能吸引地铁1号线周边的人流。
现状:紫庐站是地铁1号线与7号线的交口,利港银河广场主打地铁小商业,定位准确,未来客流量巨大。
悦方 ID Mall

地点:庐州大道与紫云路交口东南角,地铁1号线紫庐站B出口。
业态:购物中心、超市、写字楼。
体量:6层的现代化一站式购物中心,及一栋6.5万平方米的国际5A甲级生态高端写字楼。
辐射范围:不但能覆盖滨湖的利港银河广场住宅、万科蓝山、徽盐世纪广场、琥珀瑞安家园、滨湖世纪城、观湖苑、滨湖假日等小区,由于其与地铁1号线紫庐站B出口无缝对接,更能吸引地铁1号线周边的人流。
现状:已于去年12月16日正式开业的悦方ID Mall,位于地铁1号线与7号线的交口的紫庐站B出口,几乎与地铁1号线开通运营时间同时开业,率先享受到了地铁商业的红利。同时,定位中高端,又与利港银河广场的地铁小商业形成差异,二者相辅相成,满足了该区域的商业需求。
佳源广场

地点:庐州大道与洞庭湖路西南角。
业态:购物中心、办公楼、养老公寓、大型超市、商业广场、室内菜场、娱乐休闲会所、五星级酒店等。
体量:项目规划了一站式商业购物中心,拥有顶级的商业配套,其中包括香榭丽舍特色步行街、风情街、办公楼和星级养老公寓等业态,汇聚了风味美食街、大型超市、商业广场、室内菜场、娱乐休闲会所、五星级酒店等业态。
辐射范围:佳源巴黎都市、滨湖假日等。
现状:在建。
高速中央广场(百大心悦城)

地点:包河大道与紫云路交叉口西北
业态:高端住宅、ShoppingMall、品牌商业、甲级写字楼
体量:百大心悦城建筑面积高达98000㎡,拥有1600个停车位。旨在打造未来的区域型“新都市生活方式中心”,将“服务”体验、“美&健康”体验、“信息”体验、“娱乐&休闲”体验和“求知&学习”体验五大消费体验融入其中,将打造安徽最大的天空农场。
辐射范围:高速时代城、徽盐世纪广场、文一名门湖语、滨湖紫园、琥珀瑞安家园等。
现状:在建。
后台金融基地板块
滨湖时代广场

地点:*藏西**路与烟墩路交口以西。
业态:写字楼、酒店、微办公、国际会议中心、时代MALL等。
体量:项目总占地285亩,总建筑面积约90万㎡,以238米国际地标高度,聚集超高层国际甲级写字楼、甲级写字楼、德国玛丽蒂姆世界级高端酒店、微办公、国际会议中心、时代MALL等多种物业于一体。
辐射范围:滨湖时代广场是目前徽州大道以西唯一建成并开业的商业综合体,基本覆盖徽州大道以西的滨湖区域。
现状:滨湖时代广场是滨湖新区继世纪金源购物中心之后第二个建成开业的商业综合体,前期大量分担了世纪金源的购物压力,但因为定位和招商等原因,商铺人气欠缺。
众悦广场

地点:*藏西**路与武汉路交口附近。
业态:商业、办公。
体量:总用地面积10000平方米,总建筑面积地上50000平米,地下14050.07平方米,商业5层、办公25层。
辐射范围:天慧紫辰阁、锦绣淮苑等。
现状:正在招商。
滨湖东方汇

地点:*藏西**路与武汉路交口附近。
业态:酒店、办公、商业、公寓。
体量:整体规划建筑面积16.2万平方米,其中商业面积约6.5万平方米,酒店面积约2.2万平方米,办公面积约2.7万平方米,1000余个地下停车位。
辐射范围:高速时代广场、旭辉御府、中铁滨湖名邸等。
现状:在建。
滨湖向上城

地点:四川路与武汉路交口东南角。
业态:精装SOHO、酒店(11层)、商业 (3层)为一体,包括IMAX影院、精品生鲜超市、数十家各色主题餐饮、生活艺术中心、时尚购物、儿童主题乐园、青少年培训基地等。
体量:总土地面积15583.68平米,地上62225平米,地下26877平米。
辐射范围:滨湖万科城、保利拉菲公馆、华冶翡翠湾、天慧紫辰阁、滨湖欣园、中铁滨湖名邸等。
现状:即将开业。
首创奥特莱斯

地点:广西路与遵义路交口附近。
业态:购物、旅游、游乐为一体。
体量:建筑规模计划超过十万平方米,以意大利风格为主要建筑形态,计划引入国际、国内知名品牌近300家。
辐射范围:位于后台金融基地板块和环湖CBD板块交界处,两个板块均可辐射到。
现状:2016年8月12日拿地,规划图已出炉。
合肥云谷

地点:云南路与云谷路交口附近。
业态:工作、生活、消费为一体的活力社区。
体量:创新规划,打造工作、生活、消费三个场景合为一体、具有24小时活跃人流的活力社区;通过核心功能产业、衍生服务产业及生活消费配套服务产业发展为社区持续提供充足的多元就业机会打造自我生长、环境友好、主动辐射服务周边的功能性社区,服务城市的同时、还可以通过不同功能的蜂巢无缝同质连接形成群落型的城市。
辐射范围:合肥云谷、文一豪门金地、滨湖万科城等。
现状:在建。
梧桐街

地点:徽州大道与武汉路交口附近,金斗公园西侧。
业态:从早到晚的全时段消费需求业态。
辐射范围:紧邻合肥国际金融后台服务基地,32余家金融机构陆续入驻,未来30万金融精英消费。同时依靠四季花城自身高端住户,辐射周边高档社区。由于其位于后台金融基地板块和环湖CBD板块交界处,同时也能对环湖CBD板块产生一定的影响。
现状:在建。
环湖CBD板块
万达茂

地点:庐州大道与南宁路交口西南角。
业态:购物、美食、文创、乐园等吃喝玩乐一站式购物中心。
体量:建筑面积18.8万方。
辐射范围:万达城、保利海上五月花、淮矿东方蓝海、中海滨湖公馆、宝能城等,由于万达茂与地铁1号线万达城站无缝对接,临万达乐园,节假日能吸引大量地铁沿线人流及市内外前往万达乐园的游客流。
现状:2016年9月24日,合肥万达文旅城正式开业,王健林亲赴现场,万达茂被挤爆。由于其能满足顾客多元化的休闲购物需求,已然成为巢湖北岸商圈中心,大有成为华东地区最顶尖的品牌商业中心之势。
宝文中心

地点:庐州大道与南宁路交口西南角,近地铁1号线万达城站。
业态:主题商业中心、裙楼商业、地铁商业
体量:自持近130000㎡主题商业中心,1-4层商业群楼搭配地下一层地铁商业。
辐射范围:万达城、保利海上五月花、淮矿东方蓝海、中海滨湖公馆、宝能城等,由于宝文中心临地铁1号线万达城站,也能吸引大量地铁沿线人流。
现状与进度:在建。
银泰城

地点:云谷路与庐州大道交口西北角,近地铁1号线与5号线云谷路站。
业态:银泰城、特色街区、高层商务办公区。
体量:以银泰城为主的13万方的商业功能区,包括特色街区、两栋超高层商务办公区以及绿色环保智能的品质住宅区。
辐射范围:中海公馆、信达公园里、高速时代公馆、置地双玺、宝能城等。近地铁1号线云谷路站,也能吸引地铁周边客流。
现状与进度:在建。
恒大中心

地点:包河大道与环湖北路交口附近。
业态:集商业、办公、酒店、观光、居住等功能于一体,包括风情商业步行街及大型综合购物中心,设有大型百货公司,大型超市,世界名品专卖,高档酒楼及品牌餐饮等。
体量:占地面积13万方,总建面115万方,其中包含一座518米的超高层主塔和四座建筑高度99-298米依次递增布置的副塔,共同构筑一线环湖摩天商务集群。
辐射范围:万达城、宝能城等。
现状与进度:在建。
宝能城

地点:云谷路与江西路交口附近。
业态:写字楼、酒店、公寓、商业等。
体量:总建筑面积逾300万㎡。
辐射范围:宝能城、文一塘西津门、万达城、恒大中心等。
现状与进度:在建。
联投V中心

地点:庐州大道与成都路交口西南角。
业态:MALL级品质商业街、全临街商业街区、写字楼。
体量:项目写字楼总建面约188万㎡。
辐射范围:淮矿东方蓝海、保利海上五月花、宝能城等。
现状与进度:在建。
总结
从目前来看,滨湖在建商业是有点过剩了,但作为合肥乃至整个安徽省重点发展的区域,随着住宅增多,人气也将加强,或许会使商业蓬勃发展。
而且现在滨湖好像是老城区的复制、扩大版,未来老城区的许多商业都将褪色,辗转来到滨湖。
现在省府板块的商业尚不完善,招商的商业如果做起来了,必然也很吃香,或许是一处不错的购物之所和办公区域。