
尊敬的莱茵湖畔业主您好!
欢迎您了解阿克苏全优装饰关于阿克苏各小区的装修咨询服务!
首先提前恭祝各位业主即将拿房,乔迁新居~~阿克苏全优装饰也为广大业主提供全程的新房验收,家装设计,材料选择等咨询服务~吗
想必很多业主还是比较关心自家小区的现状,为此我们阿克苏全优装饰特意去阿克苏各小区做了深度的调研拍摄,让广大业主能够提前了解小区全貌~



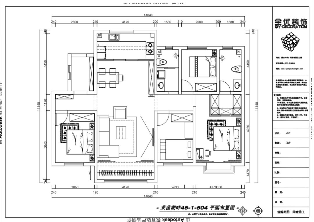
除了小区的全貌,我公司也具体实测了各位业主的各个户型









对应的,阿克苏全优装饰设计部也为阿克苏广大业主量身定制了多套户型方案
当然,光有平面方案,也很难想象出自家后期的装修效果,为此,我公司针对不同户型,量身定制了多种不同风格的案例720°全景效果图


公司简介:
全优装饰企业,主要业务有室内设计,装修装饰等,被誉为阿克苏家装饰界的开拓者!
专注于为阿克苏精英阶提供“有机整体住宅装饰”解决方案,形成独特的涵盖住宅装饰设计、施工、主材代理(代购)配套体系的全产业链发展模式,成为阿克苏住宅装饰行业的领军企业!
几年来,秉承“虔诚为客户服务”的理念,以“装饰美好空间、筑就幸福生活”为使命领航全优装饰的持久创新!被誉为:家装行业一道厚重的承重墙!



大品牌,致力“成为卓越的住宅装饰品牌运营商”的企业愿景,成为推动全优装饰健康、快速发展的内在驱动力。以求真务实的心态服务户,不断改善阿克苏家庭住宅梦想!


成就阿克苏家装一代标杆企业!而今,全优不仅仅是一个家装品牌,更是居家生活高品质的代言!
往届公司活动现场















阿克苏全优装饰公司
地址:阿克苏市新农时代广场常青酒店三楼全优装饰
咨询电话:0997-2158866
欢迎您和您的家人前来参观了解