
文章转载自湖大有个建院

2019级任务书:新造物时代与另类“工厂”
校园工训中心创意社区及创新工坊单体设计
#设计内容及要求
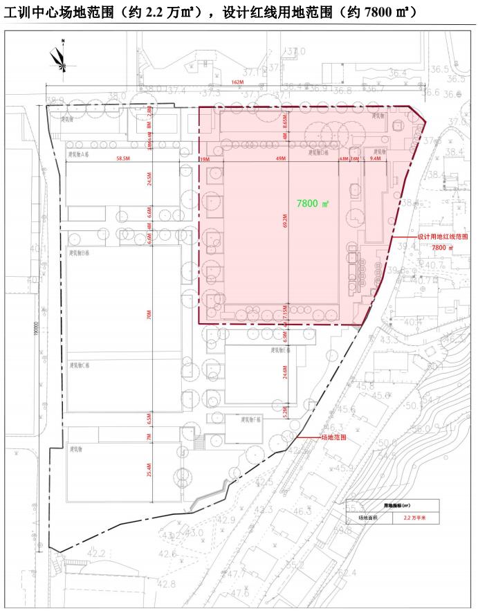
①基地范围:
在给定地形图中划定范围;每组(2人/小组)根据前期调研成果及基地选址原则划定组团基地设计范围,注意场地前期总规划范畴为22239㎡,实际基地设计涉及的用地红线面积为7800㎡。在给定的红线用地内需要探究和逻辑论证场地内拆除现存既有建筑的类型和范围。

②设计内容
(1)创意社区组团(工坊集群)总平面图设计(以组为单位):
每组首先进行社区调研和场地分析报告,拟定现有场地内空间整体规划设计策略,确定现有
建筑保留、拆除和改造的范围和比例。在此基础上设计一个组团总平面方案,主要包括创新
工坊(工作室)、微型聚会单元、适当的展示空间,以及街道、广场。此外还应包括道路及
绿化景观环境的设计。注意结合地块所处区域周边的某大学园区的空间与街道空间设计和
规划,并考虑部分临时停车及自行车停放区。要求建筑密度≤40%;建筑层数≤4层;绿地
率≥30%,低层结合适宜密度的格局,并应考虑新组团与原有建筑、道路、景观等社区格局
的过度和衔接。规划控高是12米。
(2)设计创新工坊单体及周边环境设计(以个人为单位):
个人应根据选择的创意产业人群(建议以大学生、老师团队为主),制定完善的“创新工作室功能策划意向书”。设计适宜创意产业人群行为和创造性活动发生的建筑内外部空间。建议工坊单体建筑中公共空间(非工作室单元)面积占总建筑面积30%~40%以上。

#李裕萱
——引擎运动




#教师评语:
该方案从设计概念到空间、形态、流线及表达具有严谨的逻辑性和在地的整体性。在空间上,方案以赛车设计需求为出发点,考虑到赛车的构思、设计、建造和实验的整个流程,从而提炼出创意工作室的空间期望。同时,为了更好地体现“合作共赢”、“群体智慧”和“共建共享”等创意精神,通过体验式工作与展示空间来表达出人车互动、人人互动及内外互动的开放式创作过程。在形态上,通过耦合交错式的斜坡屋顶和内外空间联动的竖井,创造出具有运动性、接触性、绿色性和共享性的空间与形体。

#禤法行
——Architecture Studio



#教师评语
该方案充分考虑了与工训中心场地的空间结合和特定人群的使用需求,方案表现力较强,造型能力突出,功能紧凑且联系紧密,基本达到了二年级课程结业的设计水准。此外,图面表现和表达能力也比较加分,技术图纸的绘制比较精细,对结构选型和结点处的细化设计比较准确,值得表扬。

#牛冰倩
——青年




#教师评语
该同学的作品先采用了地景建筑和毯式建筑的手法处理场地关系,将场地周边的复杂人流引入,操作手法较为新颖。接着在建筑中运用了折板和楼梯相结合的空间原型呼应了共享的空间主题,同时塑造了丰富的光影关系,折板和曲面相结合的形体关系充分展现了毯式建筑的特点。丰富的空间关系营造了丰富的活动空间,底层的自由空间塑造了滑板公园、艺术集市等空间,上层折板交错的空间塑造了沙龙展览等交流空间,人的行为不受空间功能限定,总体是一个趣味横生的青年工作室。
#孙振铎
——存续之上





#学生自评
21世纪的到来伴随着一个全新的名词:新媒体。新媒体的出现标志着信息碎片化的时代到来了,这种信息的出现有利有弊。以史为鉴,回首“媒体”的发展史,我惊奇的发现“新媒体”与“最古老的媒体”十分类似。新媒体以个人创作为主体,加强了信息的趣味性和范围,却失去了旧媒体的信息量和权威性。如何权衡利弊,取长补短,便成为了当今社会讨论的重点。
这个设计中,我尝试将媒体的发展历史与场地改造相结合,通过对建筑形式的设计,表达自己对媒体行业历史的理解,对于现状优缺点的思考,并且提出自己的解决方法。现在是过去的未来,亦是未来的过去。我们所定义的新和旧的概念是否可以被重新定义?媒体和建筑存续故事之上,又能带给我怎样的思考呢?这是我在这次设计中想讨论、表达的。
#王梦瑶
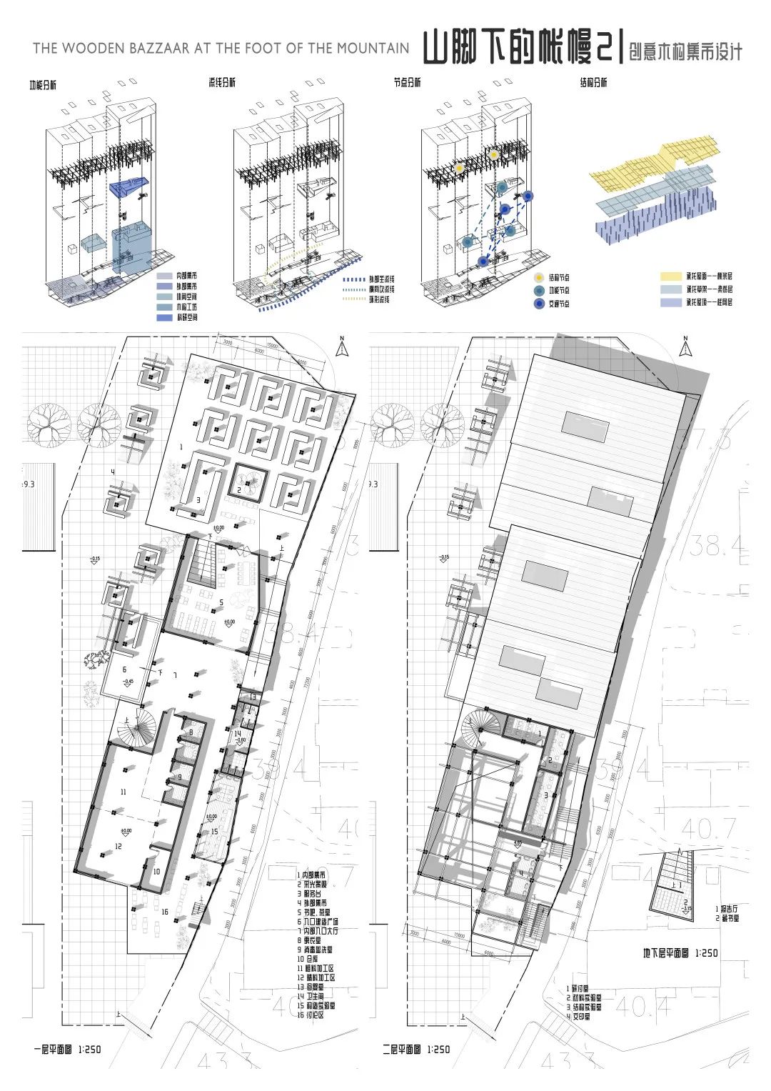
——山脚下的帐幔





#学生自评
本设计主要人群定位为建筑与规划学院、土木工程学院、机械学院等师生,并为周边居民提供适当的活动场所。使用“木构集市”的概念,为场地内师生提供建造与构筑结合的实验空间,提供木构设计、建造、文创的平台。该平台向外界传播木构工坊的产品、知识与理念。文创平台可以视作集市与展廊的结合,同时承担场地的展示功能。本设计通过人与木的互动,尝试探索人与结构、材料之间的关系,空间的倾向为纯净和平直。由结构本身造成的丰富光影使人感受到木的存在。
本次设计不仅是对木结构的初探,也在设计过程中思考了如何利用木头平衡不同的场地属性的关系,并思考了木的材料特性以及人在材料中的感知。木构在力学特性、形象表达、传统扬弃、在地共生上都具有很大的潜力,以本设计为起点,期待更多探索。

#金业琴
——仿生人工坊



#教师评语
智造是新造物时代技术创新的趋势,此类创新产业带来的不同生产方式不仅对人们工作产生冲击,连带造成不同以往的精神世界及其社会关系需求。此设计选址大学城创意产业带,着重关照如何在日益数字化世界里打造一个喘息之地:“另类”工作空间,让创意人群在其中能找到精神放松和亲密温情关系。设计者希望人们在这乌托邦里,可以摒弃当下所谓“孤独地修行”式新教派“内卷”工作模式,能相互陪伴、精神互勉,迈向充满希望的新时代。设计方案视角开阔,涉猎从建筑学到心理学多个领域,空间形式逻辑清晰统一,设计概念精炼,方案表达细腻,层次丰富。方案体现设计者对社会现象和问题在空间层面上做出的积极因应和思考,极具启发性。
#王钰璇
——巢栖蝶变,扎染新说






#教师评语
此设计方案选择以历史角度审视新造物时代下城市和空间变化。设计者尝试借助现代技术复兴札染工艺,从而保护和传承地方文化。创意工坊基地位于大学城创新产业开发地带,设计追溯湘西凤凰札染历史演变,从新兴工艺、创意人群需求和材料建构几个维度探究,采用叙事策略,以“树林”为空间原型,试图重现札染起源地白族大理的花树丛“绚丽尽处是飞花(喻蝴蝶,即灵性的札染花纹)”般胜景。设计采用隐喻、转喻等抽象符号象征,围绕氛围创造,让淫浸其中的现代人们再体验“一场风花雪夜的梦”, 保守远古不变的浪漫情怀。设计立意独特,空间逻辑整体统一,层次丰富。形式语言理性感性兼备,体现女性特有的人文视角和细腻的历史情感,方案富有感染力。

#*戎张**
——镜子说





#教师评语
基于“戏剧艺术者工作室”的功能定位,提出以“镜像”作为设计概念与主要手法,将纯几何关系的生成过程在建筑上反映出来。在结合考虑周边场地条件的基础上,塑造了相对内向,但较符合特定功能空间特质的丰富的建筑场景,同时,尽力解决了异形平面所带来的使用上的问题。在表现上进行了有益的尝试,图纸氛围的营造契合了方案特点,是一份概念性较强、有一定实验性质的设计方案。
#张天宇
——BORDERLESS新媒体艺术工作室





#教师评语
方案在功能、场所、空间、构造四个方面进行了探索性的研究与设计。在功能上:提出“新媒体艺术“的功能定位,从历史的维度,对艺术品创作、展出、观展行为模式的演变进行了探讨,并基于对“新媒体艺术”前沿的研究,明确了具体的功能计划;在场所上:从宏观到微观对场地现状进行调研,提出了顺应校园环境与肌理的总平面设计策略;在空间上:运用以“分形艺术”为概念的生成手法,创造了符合”新媒体艺术”特质的多样化空间;在构造上:基于立面设计意图,结合对多个案例构造做法的研究,完成了有一定深度的细部设计。图纸工作量饱满,表现与表达较到位,总体来说,是一份完成度较高的学生作业。
#庄雅茹
——THE SUBSTITUTION OF FACTORY







模型展示(左右滑动以查看)
#教师评语
作业方案的形体表现较好,功能空间组合有序,与周边环境联系的考虑较为充分。基地文化的提取与方案生成分析较好,但基地文化在设计方案中体现不足。效果图和图纸排版有待提升,排版中不应加入对设计表达没有关系的元素。总体表现较好,希望继续强化方案表达能力。

#王玥
——“气味胶囊”



#教师评语
该方案以主观对气味的深刻记忆为出发点,认为调香师工作室应该提供研发、体验两种主要功能,并以简洁的几何形体为手段分别作出空间回应。以集中、紧凑的圆柱体作为研发空间的同时,该方案充分尊重、利用场地比较狭长,且在东部有数棵大树的特点,将体验的空间拉长、延展到整个场地和建筑的各个部分,形成了有节奏的、有机的空间序列。
设计者面对相对抽象、感性的主题,积极调动场地内及周边的自然环境和人文环境资源,编织了一套完整的、生动的空间体验系统;并在此过程中展现了强大的空间想象力和孜孜不倦的求索精神。
文字:来自各同学 指导老师
图片:各同学
排版:王子骐
审核:徐浩森
- END -
来源: 湖大有个建院

