
在设计夜店时,要考虑其最基本的功能,即顾客来的目的;玩得开心,与人见面,享受娱乐。然而,在我看来,有很多原因(欢迎评论或其他不同的意见),主要是社交和娱乐。食物和酒水是服务的一部分,有助于放松娱乐和社交,但这也是最根本的功能。
夜店提供跳舞等活动,虽然男性通常不认为这对他们的主要吸引力,但这是一种普遍追求/接受异性的介绍方式。女性会和姐妹或者闺蜜一起出去跳舞,但不要指望男性这样做。大多数时候,他们去那里是为了寻找女性。考虑到这一点,在规划夜店时,娱乐和舞池的活动应该是规划的核心。
这里展示的是规划一个简单夜店的基本指南,它阐述了我认为对高效运营至关重要的原则。这不是要创造一个主题(尽管这通常是一个非常有趣的部分),而是要确保夜店的所有元素都在那里。
主要区域

舞台
无论是DJ还是全墙屏幕、乐队、独唱艺人还是其他形式的表演。这将是每个人都想观看和聆听的地方。舞台需要侧翼和服务区才能发挥多功能和高效的功能,不要让表演者为难。当老板付钱给他们时,是希望他们能发挥出最佳状态,而且设施越好,夜店就越有可能吸引优质顾客。
舞池
它不能拥挤,必须在方便出入的地方。必须特别注意地板的材质,包括防滑和地板的弹性。理想情况下,它应该在所有座位区的视野中。
卫生间
男女卫生间和女士休息区。它们必须能够从所有公共区域方便且安全地进出。拥有充足的空间和设施,打造奢华的客房。每个人都讨厌在尝试化妆/补妆时排队等待和局促,通过创建一个化妆区或休息聊天的地方,这能很好的解决这些问题;这只是一个简单的设施,成本很低,但是带来的好处很多。

酒吧区
这必须是所有人在任何时候都可以轻松访问的。在夜店里,你最不想做的就是排队等候服务,并把酒吧藏起来。这是店主赚钱的地方。它必须梦幻的,是获得服务的和享受乐趣的。不过,酒吧的设计需要考虑可用的空间,包括服务员或者自助服务需要的空间。
厨房
在夜店,它只需要相当简单,除非老板想要双重目的,并在夜店部分关闭时将场地用作餐厅。一般来说,不会提供非常广泛的专业菜单,但作为任何招待场所的一部分,即使只有酒吧餐,也必须在整个晚上为顾客提供食物。与业主讨论这些想法和要求至关重要。食物不仅有助于提升服务和盈利,而且如果是简单而快速的烹饪小食,它也有相当容易准备的。

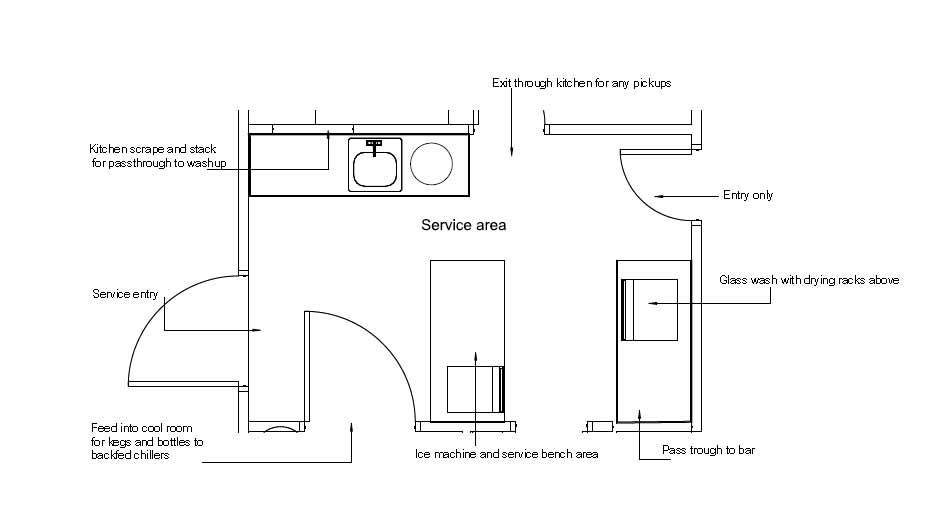
服务区域
酒吧和厨房都需要持续的清洁和重新进货。这需要仔细思考和规划,因为效率越高,体现出来就是服务的更好,顾客满意度决定了老板的利润。服务区必须能够处理食物垃圾,将餐具放进去清洗和重复使用,酒吧亦是如此。在繁忙的酒吧里,用更少的时间储存前馈式冷水机将使新鲜产品更容易保持凉爽。玻璃器皿必须经过收集、清洁和设置,以便酒吧工作人员能够方便地进入。

关注我们,了解更多酒吧装修设计知识,我们将持续发布酒吧装修设计相关知识;
欢迎私信留言,方度空间设计将发送案例画册给您,可以浏览更多精美案例。
方度空间设计
||秉持以人为本的设计价值理念 ,致力于为企业提供行业整体解决方案 ||
|服务范围|
①空间设计:专业从事酒店装修设计、KTV装修设计、酒吧装修设计、SPA等商业空间设计
②全案定制:以客户为中心,提供量身定制的一体化装修设计服务;是为客户提供软装、硬装、消防、空调、器材等为一体的全案定制设计服务;
③软装陈设:根据空间的使用功能搭配设计合理的家具/器材,空间按照设计的风格和效果进行软装工程施工再配以软装以点缀空间,提升品质