1.5米拐角浴缸预留尺寸 (浴缸区空间尺寸指引)

浴缸空间尺寸对照表,浴缸区空间尺寸指引

浴缸区是给人泡着沐浴的地方,是卫生间的湿区。

下面由华建工艺学会、华建环境设计研究所为大家讲述下浴缸区的尺寸设计!

▷目录

1、浴缸平面布置类型

2、浴缸尺寸设计指引

3、浴缸给水点件安装高度

1. 浴缸平面布置类型

以下为卫生间带浴缸的平面布置 几种方案设计

浴缸空间尺寸对照表,浴缸区空间尺寸指引

浴缸空间尺寸对照表,浴缸区空间尺寸指引

浴缸空间尺寸对照表,浴缸区空间尺寸指引

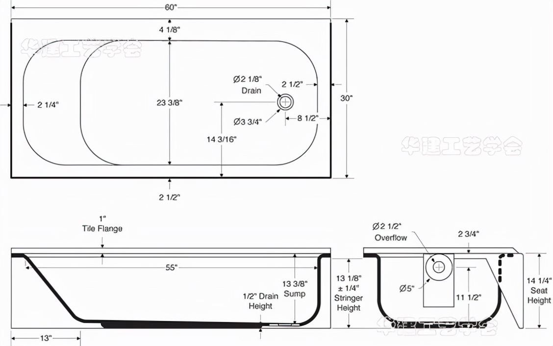
2. 浴缸尺寸设计指引

一般的浴缸高度为 600 ~ 650 mm,宽度为 700 ~ 800 mm。

下图为市场上某品牌的浴缸尺寸指引:

浴缸空间尺寸对照表,浴缸区空间尺寸指引

浴缸空间尺寸对照表,浴缸区空间尺寸指引

浴缸空间尺寸对照表,浴缸区空间尺寸指引

(一)不同类型的浴桶长度:

不同长度的浴缸有不一样的享受模式,以下为市面上不同长度的浴缸的模式选择:

坐泡式木桶浴桶长度宜为 1300 mm;

坐泡式浴缸长度宜为 1500 mm;

半躺式浴缸长度宜为 1600 mm;

全泡式浴缸长度宜为 1800 mm。

浴缸空间尺寸对照表,浴缸区空间尺寸指引

(二)浴缸空间人体尺寸指引:

在设计时应注意预留浴缸区的站立空间;

进入浴缸前的最小活动空间宜为 600 mm×1100 mm。

浴缸空间尺寸对照表,浴缸区空间尺寸指引

浴缸空间尺寸对照表,浴缸区空间尺寸指引

浴缸空间尺寸对照表,浴缸区空间尺寸指引

浴缸空间尺寸对照表,浴缸区空间尺寸指引

3. 浴缸给水点安装高度

浴缸给水点(角阀)的安装高度宜为离地 300-400mm。

浴缸空间尺寸对照表,浴缸区空间尺寸指引

以上为本章节的全部内容,主要是讲述了浴缸区的人体尺寸、浴缸区不同类型的平面设计及给水点高度的尺寸指引,参考该文案指引设计合理的浴缸区。

该文案出自 《住宅空间人体工程尺寸指引》 书籍,如需了解更多人体工程学尺寸,可点击阅读全文购买↓↓↓

本文编写单位

华建环境设计研究所编写

编辑:梁薇

图片:苏韵涛

审校:廖炽伟、范丝燕

发布于2021年3月

“浴缸区空间尺寸指引!HJSJ-2022”

文案由华建工艺学会的团队发布

主要面向学生

由于文案的教学特点

它的内容可以自由复制、打印和分发

禁止商业用途

更多设计看点→点击关注华建环境设计研究所

浴缸空间尺寸对照表,浴缸区空间尺寸指引