
窄長型的老式建築,有著不合時宜的零碎配置,使室內顯得更加陰暗沉悶,考量家庭人口變動,屋主經過網路多方搜尋比較,對於 好家在空間設計 的自然素材運用及搭配巧思非常屬意非常屬意,因而展開 30 年老屋翻新的合作新頁。

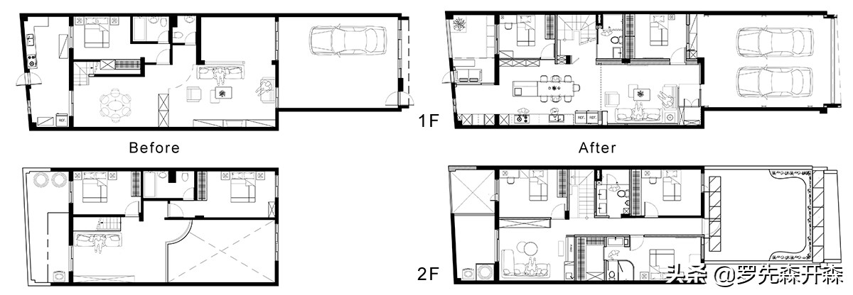
兩層樓老屋從外觀至室內格局,早已不符合實質使用需求,因此首要整合閒置與零碎動線,敲除厚實隔牆與梯間,拓展三代不受拘束的開放空間,經由後端的垂直天井,加強日光與通風流動,重新照亮舊宅幽暗面貌,同時揉合男女主人對家的想像,導入天然木質、綠意植栽牆散發生機盎然氣息,配襯花磚與童趣手繪壁紙,實現貼近自然的溫馨日常。

Q:原木童趣風需必備哪些要素?男屋主喜愛親近大自然,女主人偏好童趣元素,因而奠定老屋翻新調性走向,團隊經多方搜尋木材廠,覓得大尺寸原木做為電視主牆,同時納入綠意植生牆,與後院天井形成內外呼應,圍塑洋溢日光的森林意象,其中拿捏適切比例鋪展繽紛花磚、手繪感壁紙,帶有糖果色的圓潤家具軟件,藉由輕暖色系活絡簡白基底,實現清新童趣的夢想宅。

Q:好家在認為老屋翻新最重要環節有哪些?「老屋翻新,首先需創造貼近居者的流暢動線」,總監提及此案為舊式窄長格局,光線幽暗且不通風,因此捨棄笨重隔牆與樓梯結構,敞開毫無阻斷的開放樓層,改以穿透感龍骨梯取代垂直動線,並選配通透質材爭取前後側日光。同時敲除後院局部樓板,塑成貫串兩層樓的純白天井,外罩玻璃天花強化陽光與通風對流,有效改善採光不足。

個案基本資料台南 / 屋齡 30 年 / 室內坪數 62 坪 / 格局 5 房 2 廳 3 衛 / 居住人數 4 大 2 小

< 需求 >1. 人口需求變動,舊有空間已不敷使用,需闢增出臥房2. 重整老舊的鐵皮車庫與庭院3. 改善晦暗採光問題4. 偏好原木元素、鄉村童趣的空間氛圍< 各別空間 >1. 外觀 / 車庫設計:拆除經歷 30 年歲月的鏽斑鐵皮天頂,同時拓增二樓的開放式平面露台,安全圍欄之中內嵌水泥花紋空心磚,從二樓面牆循序漆刷淺灰手感紋理,為門面注入柔和優雅的新意象。

考量停車輛增加,揮別老舊雙開滑門配置,改以純白電動鐵捲門取代,重塑車輛流暢進出的寬敞出入口,並交予斜面坡道添增綠植面積,輕綴點點綠意。

為改善車庫昏暗不明採光,前段悉心裝置電動上掀窗,後側天花以玻璃與不鏽鋼骨架框構橫向窗,並於門牆植入玻璃磚,加乘日光與通風對流,提升穿透視感,地坪則拼貼素雅霧灰花磚,兼備耐髒與美感需求。

由於屋主擁有眾多露營配備,因而從正立面延伸出木質收納腰櫃,上方隱藏一道擴張網架,井然有序整併出遊用品,此外,側牆悉心框構大樹意象造型牆,呼應質樸木框通透大門,靈活顯現自然童趣迎賓景致。 2. 玄關設計:經由重塑閒置空間與動線,玄關以深淺錯落的原木斷面串連為隔牆,不僅界分出動線層次,微小隙縫亦保有採光流動,任由光線灑落於不規則天然紋痕,烘托原木溫潤的視覺張力。

顧及清潔維護,落塵區以米灰斜拼磚+復古小磚,敞開柔和素雅氣息,思量一家六口擁有較多鞋量,以百葉門片規劃走入式鞋櫃間,達到通風效果之餘,完善將外出鞋靴、衣物整齊集結於內,連帶隱匿兩層樓配電設備,形塑簡淨情境。

3. 客廳設計:沿著超耐磨木地板舉步入室,團隊精挑大尺度淺木質鋪展電視主牆,透過原木不規則裂紋與肌理展露自然況味,並採用暗門設計平整視野,下方以木作內嵌影廳設備平台,將紊亂電線一併遮掩收整。

中心擺置直徑約 125 cm 的原木邊桌,特意保留樹幹厚實曲線,正好對應主牆鋪陳滿室溫暖宜人,鄰邊點綴暖鵝黃圓潤沙發、焦糖色皮革單椅,活潑家人歡聚共享的情景。

同時於客餐廳銜接處,從天花蔓延一道垂直植生牆,添置排水系統、紫外線照明,予以植栽良好生長環境,實現生機盎然舒心日常。 4. 餐廚設計:為消解長型格局窄迫感,團隊敲除廚房封閉式隔間,簡化為延續不受阻斷的烹調動線,爭取庭院陽光能夠無礙照入,揮別原始陰暗無光的窘境。

客廳與梯間運用雙向白框折疊門,有效阻隔冷氣溢散,同時憑其彈性開闔特點,維繫開放式餐廚寬敞通透感。

考量成員與電器設備均增加,於是順沿主牆輪廓打造一套多功廚具,中央植入簡白中島拓展工作面積,並於雙向配置流理槽,敞開大家庭流暢順手的烹調動線。

調理區牆面鋪展天藍水波紋壁磚,防止油污沾染不易清理,並嵌上開放式錯落層架,隨時一覽無遺調味瓶罐,前後以純白線板築起兩組冰箱、烤箱等電器櫃,並納入懸吊格櫃、落地櫃發揮儲放用途,經由整合完備機能,滿足女主人對廚房的想像。

緊貼中島的原木餐桌,擷取粗獷樹幹塑造大樹堅立穩固意象,檯面精心刻畫細膩織紋變化,點上幾盞俏皮橡果造型燈,與內側的黑板收納櫃門片,渲染清新童趣的用餐情境。 5. 庭院設計:廚房移位後,末段則拆除部分樓板另闢為天井花園,透過消減隔間阻礙,讓自然光明亮水平樓層,上方採用玻璃做為採光罩,部分鏤空通透維持良好通風,壁面則裝置百葉窗強化對流,遮擋鄰棟視線提升居者隱私性。

庭院地面以墊高木層板與紅磚相串,局部添加掀板巧思,完整隱匿泡腳池設計,成為家人曬暖陽、談天說笑的天地,且活用挑空的垂直天井優勢,規劃一處種植盆景專區,使盎然大樹不受拘束自然生長,活化老宅新貌。 6. 樓梯設計:捨棄舊有笨重梯間結構,將樓梯移轉移至中段,透過改向使格局與動線不受壓縮,並採用輕盈龍骨梯設計,從中貫穿簡白鋼骨串連踏板,搭襯通透俐落扶手,不僅減輕量體負重感,也讓垂直樓層光線能相互流動。

為回應女主人喜歡熊的形象,梯間鋪貼大面積繽紛手繪壁紙,佐搭童真圖畫傳遞溫馨暖意,成為一家人專屬過道景致。

7. 多功能休憩室設計:敞開白框折疊門,純白與淺木相互交織的落地書牆即映入眼簾,層板活用錯落比例編排,使屋主眾多書籍、紀念品得以完好收藏,同步收整音響、擴大機等設備,放下大型投影幕,搖身一變為孩子愜意的視聽影院,一側搭配櫻花粉單椅、大尺度淺灰沙發床,當有親友偶然來訪,能巧妙轉化為客房使用,提升空間多面向機能。

8. 主臥 / 主衛設計:二樓貫穿一道長廊有序劃分主次臥,由於屋主希望擁有獨立衛浴,因而根據向陽面佈局動線走向,使長型臥房明亮且蘊含多重功能。

主臥回歸簡淨素雅,選配木質家具襯托柔和輕暖質韻,為使光線無隔閡照入深處。

衛浴採用圓弧型無框玻璃圍築而起,地面鋪貼圖騰、素面交錯六角磚界分盥洗區,相映牆面簡白地鐵磚,隨著布簾彈性拉闔,轉變為明亮通透的沐浴環境。

9. 孩童房設計:跳脫簡約選色,男孩與女孩房牆皆漆繪輕快鵝黃色,利用斜切跳色手法,展露截然不同空間個性,並於牆面拼串紫藍、淡粉與純白的三角層架,織構為律動感開放式層架,呼應室內糖果色單椅與軟件,添增鮮活明亮悠閒氣息。

此外,團隊發揮舊有家具功用,經由木作重新接合天地,使男孩房線板衣櫃精準連接既有結構,平整流暢室內配置。

10. 衛浴設計:延續女主人喜愛的花磚元素,採用黑白棋盤磚延展至乾濕分離,並於檯面主牆貼覆多彩藝術花磚,成為異國感十足的亮點,上層保留百葉造型木製通風孔,檯面下端則續接開放式浴櫃,妥善收納日用備品。

為予屋主寬敞無礙盥洗空間,悉心規劃兩組洗手台與浴鏡,一側同時植入馬桶與小便斗,容納多人流暢梳洗。

< 總體規劃 >11. 收納規劃:依據使用習性規劃收納層櫃,團隊整合老屋零碎閒置空間,入門即規劃儲放露營裝備的矮腰櫃,玄關另闢出走入式衣物間,透過隱藏手法弱化雜亂視覺,並貼合壁面規劃大面積櫃體,如純白電器櫃、落地式開放書牆,減少遮擋自然採光流動,亦用單純色系縮減量體壓迫感。

12. 動線規劃:破除老宅的狹長阻滯格局,經由敲除隔間、移位梯間,展開為明亮敞朗的交流空間,中段採用雙向通透折疊門,使得空間感得以串連且各自獨立,二樓以廊道梳理動線,尤其走廊牆面特意嵌入磁吸板,能隨心佈置海報圖畫,並配置吊桿化為孩子運動玩樂一隅。

13. 建材挑選:超耐磨木地板、木作、實木皮、玻璃磚、水泥空心磚、水波紋壁磚、六角磚、藝術花磚、鐵件 14. 色彩計畫:屋主訴求簡約自然,主要以純白、木色恢復老屋清新面貌,交由自然原木飾牆渲染一室溫潤,局部點綴搶眼花磚聚焦亮點層次,家具軟件則挑選如淡粉、淺藍與鵝黃糖果色系,映襯屋主一家人獨有個性。

