本案楼盘:旭辉朗香郡
面积:120㎡
本案常住人口为三人,业主需要一个视野开阔的空间及简单而使用方便的生活环境。(设计师:华浔品味装饰/杨景同)
本案设计以下亮点:
1.开放的空间:将家人从房间中解放出来享受温馨的家庭生活。
2.合理布局与流畅的动线:保证功能与使用的便利。
3.亲近自然:让居家更舒适、健康。

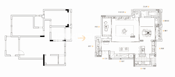
《天·井》空间设计图
将天台的层板打通,变成了本案例最大的亮点——天井,通过阳光连通每一个独立开放的空间,构成一个每个空间互相协调的整体,充满阳光和温馨。


作为迎接家人的第一空间,简单舒适的门厅,让每一位家庭成员在踏进家门的瞬间,就能放松身心,体会家的温暖。同时,门厅自然开阔的设计,将业主热情好客和温柔体贴的一面完全展现出来。

走过门厅,一旁的枯井花园,简洁不失韵味。家是心灵的港湾,远离浮尘,抛开烦恼,回归本心

设计师大胆的设计,打破传统的布局,将客厅和中央天井连起来,不仅使客厅视野更开阔,采光通风,还提高客厅整体开放和随心的感觉。在柔柔的自然光线下,享受简单自在的下午茶,是招待亲朋来客的不二选择。

根据中餐和西餐的油烟量,厨房设计分为西式开敞厨房和中式煎炒间。
开敞式西厨与吧台,方便为客厅提供西式菜肴和饮用品,同时也便于与家人或来客进行交流。

中式菜肴在烹饪过程会出现大量油烟,即便有大功率的抽油烟机都会对室内造成影响,因此将中式厨房与室内分割开来。
根据实际情况,西式开敞厨房和中式煎炒间的合理布局,中西结合,满足业主不同的美食需求。

餐厅拥有开阔视野,同时中央天井依然是焦点所在。设计时特意选用风格各异的椅子,让每个人都有属于自己、不一样的就餐体验。进餐应该保持好心情,唯良辰和美食不能辜负。

整个房子的灵魂所在,中央天井,不仅为室内提供良好的通风采光和室外对景,还使分离的各个主要空间,又重新联系在一起,构成一个整体协调的“阳光花园”。开放的中央天井设计为忙碌的都市人卸下束缚,提供一个一起团聚交流的空间,重拾家的味道。

盥洗区的设置连通其他几个区域,进而节约了宝贵的空间。

浴室的设置考虑到几个区域的共通性,进而节约了宝贵的空间。窗外的绿化造景使泡澡的时候有个更好的心情,一边的小窗能让家人方便递送浴室用品。

考虑到实用性,将浴室和卫生间隔开,洗澡和上厕所互相不干扰并且可以同时进行。

二楼的卫生间为卧室和书房专门设定,家人和小孩就不用楼上楼下的跑了。

二楼的和室相对于一楼的书房是更加安静私密的区域。除了是和家人享受美好时光的场所,更是让自己冷静处理事务的办公区域,复合型的设计发挥出它最大的作用。

在主卧室旁边设计一个开敞式的儿童房,在忙于家务的时候也能照料他们,同时在日常相处中慢慢培养孩子自觉的生活习惯。

两个天窗为主卧室提供了充足的采光,平时作为一个开敞的空间与整层楼连为一体,和式的折叠门能让它很快变成一个私密的空间。

大型的窗户,将阳光从天井上引进屋内,保证2楼良好的采光与通风,阳光走道开放的布局使每个空间都能最大利用这点。


一层平面图

二层平面图

此案例荣获第三届“金马克”室内设计大赛“创意效果类”金奖