沿途“拾”起一枝一叶,留待记忆
让“夕”阳给出记忆的钥匙
记忆的柴火静静的躺在地上
等生命去抽取沿途“拾”起的枝枝叶叶
在“夕”阳的指尖静静回忆

设计师 || designer

从业年限:8年
擅长风格:现代简约、北欧极简、美式经典、北欧田园、美式田园、新中式、日式原木、现代轻奢等。
从业经历:万业紫辰苑、远洋香奈、森兰名佳苑、保利叶语、绿地东上海、路劲上海派、保集澜湾。
设计理念:设计不是简单堆砌,设计要尊重生活。
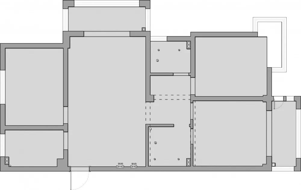
平面图

▲(原始平面图)

▲(改造后平面图)
改造需求
- 厨房空间有限,我们拓展了厨房使用面积,用无地轨移门形式,方便老人使用, 利用隔墙增加了入户鞋 柜存储空间。
- 客餐厅保留原始空间,餐厅侧墙取消,餐边柜内置,增加便捷功能性。
- 干区围合出壁龛空间,增加了干区实用性。
- 取消一个暗卫,取而代之增加一个大的储藏间,满足老人家杂物收纳使用。
- 原主卧改成长辈房,卧室空间独立使用,将长辈房放在靠南阳台的卧室也是为了生活的便利考虑。
- 卫生间增加小便斗,满足家里三代男性的使用需求。
- 生活阳台放在东边,南边阳台作为晾晒阳台使用。
▼客厅 living room
客厅的选择上,我们用了经典祖母绿的丝绒沙发,搭配现代经典造型的千鸟格单人沙发和灰色绒面弧形榻凳,营造了整体大气却不失精致感的雅致韵味。吊顶与电视背景墙壁灯,选用了同系列样式,香槟金属结合白磨砂灯泡,增添了高雅的气质。

电视背景墙,原始结构的一侧有承重墙凸出,我们将相对一侧同样加厚拉平,中间形成一个框洞,使用PU线条进行装饰结合拱形角,扣上我们定制雕刻的一对石膏花角线,让墙面更加丰富与生动。

球形金色轻奢吊灯造型柔美,沙发背景墙,同样使用了PU线条,做了线框护墙效果,背景选择了一幅怀旧韵味的壁画(清代十三行),画中亭廊阁楼、人来人往,一番盛世热闹美好的景象。

▼餐厅 dining room
打开入户门,就是我们的餐厅空间,与客厅贯通,保留了原有的层高,灯具均采用明装形式,复古石膏造型叠级与客厅造型整体设计,形成一体;我们将靠南侧的一面墙取消,设置了一个餐边柜,这样在不占用餐厅空间的前提下,增加了餐厅的操作与储藏空间。

餐边柜,我们用了分色处理,下柜哑光白色烤漆门板,并搭配金色球形小把手,提升精致感,吊柜,我们选用了金属香槟色门板和柜体,更加易于打理,同时与下柜的把手形成呼应。

家里常住人口不多,所以我们选用了一款长桌,大理石台面,弧边造型,更加适合用餐时围坐,同时对老人和小孩更加安全的考虑,避免直角的出现。黑色金属基座,与挂画收边框以及合适金属厨房移门呼应,餐桌顶部的吊顶,我们也选择了长形的香槟金色,从细节上看,那白色的并非灯罩,而是大理石材,很是精致,厨房门则选用了细格的黑框结合通透的车边棱镜玻璃(这个门的定制一波三折,总算到位),吊轨形式,地面采用无地轨设计,避免爷爷奶奶生活中被地轨牵绊。

▼主卧 master bedroom
背景是一幅珠光质感的花鸟壁纸,床头非对称的复古装饰画美丽别致,增添了空间的灵动趣味。浅色墙面搭配纯粹的石膏线条使其看起来含蓄又有一种清新的自然。

▼老人房 Senior Citizen's Room
这是爷爷奶奶的房间,用色则是偏向宁静素雅,以白为主,以净为辅,白色皮革与原木色结合的床架,简约素雅的床饰,藏蓝色花纹窗帘,沉稳而端庄,更加适合老人。画家姚永强的经典之作-《江南阔》作为背景画,让整个空间更加沉静清透。

▼厨房 kitchen
墙面整体鱼肚白纹理瓷砖,吊柜与地柜之间选用了大理石纹理的面包砖,同样都是温润的哑光效果,让厨房不会显得那么冰冷,地面砖选用了哑光灰色的大理石纹理砖,耐脏同时便于打理。

▼卫生间 bathroom
自然纹理的鱼肚白结合白色大理石,干净纯粹。

房屋信息
户型:三居室
风格:美式经典
面积:120㎡
装修方式:全包
房屋位置:上海
简约美式特点:
- 简美风的空间中色彩不多,仅以一种颜色为主色调,整体给人感觉明亮而恬静。色彩的选择也是以简单、素雅为主的颜色,看上去非常的温馨而协调。
- 简美风格没有繁复的空间布局,显得非常现代且实用。无论是客厅的吊灯,还是脚下的地板,都没有琐碎多余的设计,简约柔和的设计,让人感觉温暖且舒适。
- 简美风格的家具造型清新、色调明快,传递出一种休闲与舒适的悠然生活情调,让忙碌的都市人群,能拥有一个下了班就可以放松身心的家,也更符合现代人群的生活节奏,突出了一种“简约的奢华”,使居家生活不再沉闷、单调。