这个家位于北京朝阳的远洋天地汇小区,夫妻二人和儿子居住在这里。
男主人平日工作繁忙,不时还要在家里加班,因此希望家能更加舒适和人性化;女主人晚上有时要召开电话会议,精神的疲惫让她对睡眠渴求很高,希望能够拥有极度舒适的睡眠环境。同时由于夫妻二人工作繁忙又频繁出差,如何将所有物品整洁收纳也是重中之重。
除此之外闲暇时,女主人喜欢在家里做瑜伽放松身心,热爱做西餐,喜欢为先生和儿子准备丰富的美味,宽敞的厨房与休闲空间也是非常需要的。

地点:北京朝阳
面积:130㎡
费用:70万
户型:两室

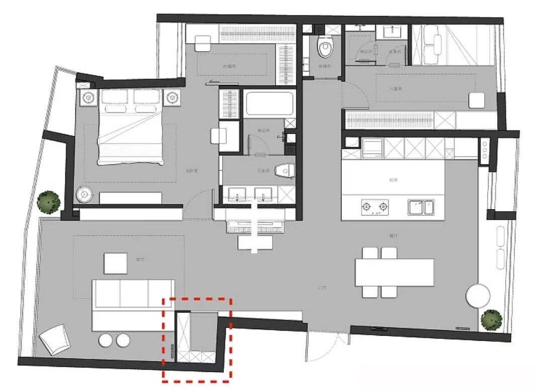
▲原始结构图

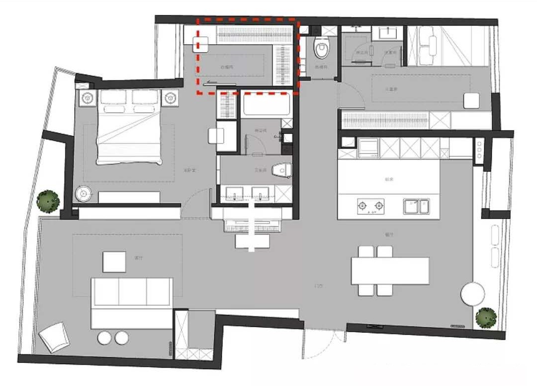
▲平面户型图
基于男女主人的日常兴趣爱好以及居住要求,设计师进行了整体布局,整体空间设计以舒适实用为主,为二人世界打造了舒适的私密天地,也为正在成长中的孩子提供更多娱乐学习的成长空间。
改造提示:
1.整体空间使用隐蔽式的收纳方式,打造足够容量的储物空间,让空间整洁明亮,同时物品也能够方便取用。
2.打造多功能客厅,集休息、沟通、娱乐、学习为一体,充分为一家人的情感沟通做好准备。
3.打造开放式厨房,扩大客厅视野,设置一个兼具餐厅和办公区的环境。

家里一进门便是开放式餐厨,左手边则是客厅和隐藏的储物间。事实上,设计师大胆采用了“模糊界限”的设计手法,将厨房、餐厅和客厅三种功能融于一个空间。

当女主人在厨房做饭,也可以看到玩耍中的孩子,不用担心他不小心出现了磕碰。而男主人在家工作,女主人需要帮忙只要一声呼唤,也能准确传达到男主人耳中。很好的解决了传统房间设计中缺乏互动性的问题。

无形中拉近了一家三口的距离,为家人互动留足了空间。


厨房与餐厅之间的隔断,则通过拥有轻巧线条的操作柜完成,操作空间也隐藏在白色的柜门之中,视觉清爽,为空间平添了几分设计质感。柜门下方的收纳格小心机,为小物件留了立足之地。


开放式的厨房连接了餐厅,因为女主人平日烹饪多是西式,所以不用太担心油烟问题。

厨房里的物品大小不一,对于这些不同尺寸形状的物品,抽拉式抽屉可以分开摆放收纳。厨房常用的调味统统放到了一面柜门里,有效区分,方便女主人取用。

柜子下的置物架合理收纳,多层利用空间,使厨房收纳空间达到了最大化。

专门的工具收纳间。


关于客厅,设计师在倾听男女主人的需求后,将整个空间一分为二,后面的桌子为男女主人办公所设。

窗前的小空间足够女主人与孩子玩耍品茶。


阳台门窗用大面积玻璃代替传统门窗,尽管营造成本提升,却能把最美的夜色引入家里,置身其中,无论哪个角度望去,都能和满眼的流云清风撞个满怀,视野不会有任何遮挡,难得的美妙窗景。

闲暇时光,一家三口还可以窝在柔软的沙发上玩游戏。

当然,女主人也可以与孩子一起弹奏。家已经不仅仅是“居住”那么简单了。


在餐厅与客厅之间,做了开放式收纳格和一个隐形的储物间,既简单方便,又有强大的收纳功能。

这里容纳了男女主人的衣服鞋子、包包,把有效的额空间利用起来,又让客厅变得干净整洁,倍感舒畅。



卧室内以灰色调与原木色调为主,带来自然与朴素的气息,温和的小吊灯,纯亚麻的床上用品为空间增添一丝宁静感,为居住者带来良好的睡眠环境。



因为主卧内带有小型的独立卫生间,所以设计师选择将衣帽间卡在剩余空间,不仅将空间利用程度达到最大化,视觉上也提升了空间的整洁性。


L型的小型衣帽间通过置物架隔离,上层可以摆放行李箱,满足男女主人出行所需,中层可以摆放衣物,下面的额抽屉可以摆放钥匙眼睛等一些小件,最后的柜子可以单独放鞋,轻巧方便。


落地窗透过来的光线让儿童房看起来格外通透,选用最简单的白色墙面,保证了房间的明亮感。双层床为日后增加新成员做了充分准备。


衣柜开辟出的额储物格与书桌相应成趣,既保证了功能性又保证了美观性,还可以存放孩子的玩具。
旁边的收纳衣柜可以存放孩子的衣物鞋帽,书桌嵌入墙面,上方开辟出的柜子与下方的抽屉都可以存放不少书籍,为孩子的成长学习提供了充足空间。


卫生间抛开一切复杂,采用自然而原始的原木色,让空气都变得生动起来。

卫生间巧妙的利用抽屉、柜子、隔板,实现功能分区。既方便储物,又能隔绝灰尘,面对井然有序的卫生间,心情也会随之轻松起来。

本文素材及图片来源于设计团队:北京恒田建筑设计有限公司
设计师:王恒
-------[END]------