
设计师进修课之图例符号使用 HJSJ-2022
为使设计专业学生快速了解制图标准,理解房屋建筑室内装饰装修制图规则,保证制图质量,提高制图效率,清晰、明了地理解施工图纸中各使用的符号、图标、填充示例等要求,为设计师培训需要编写本文案。
本文案由华建工艺学会、华建环境设计研究所编写的建筑室内设计施工图符号、图标、图例为最基本的设计师入门版。
▷目录
1、常见的施工图符号及图例
2、常见的平面符号及图例
3、常见的填充符号及图例
4、常见的绘图比例及表示
1.施工图符号及图例
1 对称符号:
对称符号应由对称线和分中符号组成,分中符号可采用两对平行线或英文缩写。
主要作用:当所绘制图纸出现完全对称时,可使用这个符号表示。

△对称符号
2 索引符号:
在平面图中采用立面索引符号时,应采用阿拉伯数字或字母为立面编号代表各投视方向,并应以顺时针方向排序。
主要作用:在平面图指引出立面图的方向。

△索引符号注解

△索引符号应用
3 剖切符号:
剖面符号应在图号圆圈内画一水平直径,上半圆中应用阿拉伯数字或字母注明该图样编号,下半圆中应用阿拉伯数字或字母注明该图索引符号所在图纸编号。
主要作用:表示某个地方需要剖开做施工详图索引。

△剖切符号注解

△剖切符号应用
4 标高符号:
标高符号可采用直角等腰三角形,也可采用涂黑的三角形成90°对顶角的圆,标注顶棚标高时,也可采用CH符号表示。
主要作用:标高是标注高度的一种尺寸形式,有以米为单位。


△标高符号注解
5 连续符号:
连接符号应以折断线或波浪线表示需连接的部位。
主要作用:在绘制图纸时,如遇到材料、规律变化一样,但长度较长的图纸时,可使用连接符号表示,这样就可以缩短上下图的尺寸,放大了上下端图纸。

△连续符号注解

△连续符号应用
6 引出线:
引出线起止符号可采用圆点绘制,也可采用箭头绘制。
主要作用:引出线主要是对施工图做解释的作用。

△引出线类型

△引出线应用
7 坡度符号:
坡度符号箭头指向为下坡方向,坡度值数字在符号的上方。
主要作用:在施工图中对倾斜部分的标注。

△坡度符号应用
8 铺贴开启位符号:
铺贴开启位符号一般用箭头组合而成,箭头指向扣板吊顶或地板砖的开线位置及安装、铺贴方向。
主要作用:方便在施工时开位与排版。

△铺贴开启位符号应用
9 转角符号:
转角符号应以垂直线连接两端交叉线并加注角度符号表示。
主要作用:当绘制有转角的立面时,可用转角符号表示这里为转角位。

△转角符号应用
10 分割符号:
分割符号应以相对的两个三角形并加中间线条符号表示。两个三角形指向的方向就是分割的空间。
主要作用:可以更好的标明分离开空间。

△分割符号注解

△分割符号应用
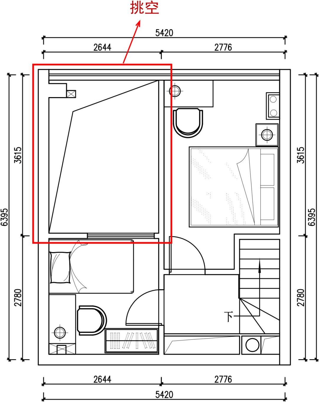
11 挑空符号:
挑空符号用折线表示,折线分割空间不均等。
主要作用:用来表示烟道、风道、挑空大堂的挑空空间。

△挑空符号注解

△挑空符号应用
12 开门方向符号:
开门方向符号应用对等的虚折线表示,虚折线对角形成的对面就是开门位。
主要作用:绘制立面时用来表示门开启的方向。

△开门方向符号应用
13 家具柜子的到顶符号:
到顶的家具柜子在顶面用“×”表示。
不到顶的家具柜子在顶面用“╱”表示。

△柜子符号表示
14 内藏灯符号:
在绘制施工图时内藏灯常用“┄┄┄”虚线表示。

△内藏灯符号表示
2.常见的平面符号及图例
2.1 平面图指引:
在平面图不同物件都有特定的符号代表:

△平面图符号注解
2.2 常见构造及配件图例:
1、关于门的平面图符号说明:

△门符号平面图例
2、关于窗的平面图符号说明:

△窗符号平面图例
3、灯具图例:

△灯具符号平面图例应用

△灯具符号平面图例
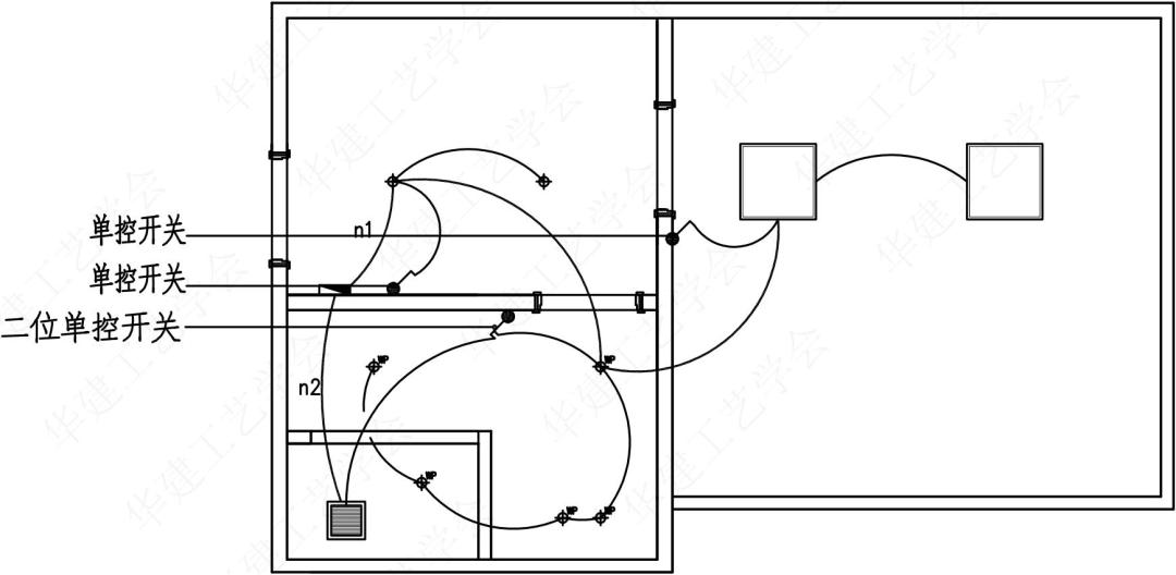
4、机电图例:


△机电符号平面图例应用

△机电符号平面图例
5、其他平面图符号说明:

3.常见的填充符号及图例
常见的填充符号及图例如下面所示:

4.常见的绘图比例及表示
4.1 比例规范:
比例宜注写在图名的右侧,字的基准线应取平;比例的字高宜比图名的字高小一号或二号。

△比例应用
4.2 常用比例:
绘图所用的比例,应根据精装修设计的不同部位、不同阶段的图纸内容和要求确定图纸比例。
常用比例宜为:
1:1、1:2、1:5、1:10、1:15、1:20、1:30、1:40、1:50、1:75、1:100、1:150、1:125、1:200。

该文案出自华建工艺官网,如需了解更多人体工程学,可点击阅读全文查看↓↓↓
本文编写单位
华建环境设计研究所编写
编辑:梁薇、黄志钦
图片:苏韵涛
审校:廖炽伟、陈涛
发布于2022年9月
“室内设计施工图图例
(HJSJ入门指南)”
文案由华建工艺学会的团队发布
主要面向学生
由于文案的教学特点
它的内容可以自由复制、打印和分发
禁止商业用途
往 期 精 彩
Past pure color
↓↓
楼梯隐形扶手通用施工图HJSJ-2022

更多设计看点→点击关注华建环境设计研究所

更多人体工程学尺寸
点击“阅读原文”☟☟☟