
蓝图,
设计的结晶,
施工的指南;
审查要点,
规范的指引,
设计质量的保障,
学习它,
正确理解规范,
蓝图质量有保障。
安全疏散和避难的要点比较多
大家可以先点击收藏
其分成一般要求、公建部分、住宅部分
本章节先介绍一般要求和公建部分
民用建筑-安全疏散和避难(1)
Ⅰ一般要求
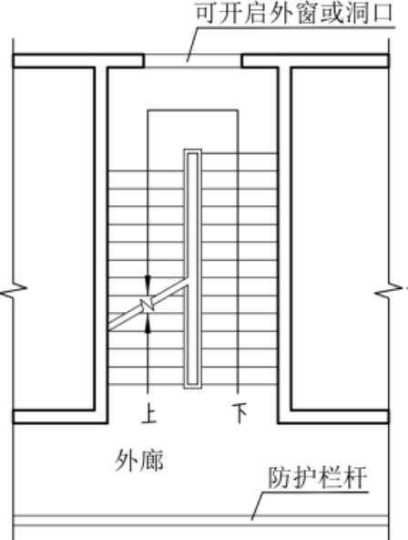
2.5.1 《建筑设计防火规范》GB 50016 附录B.0.1条未明确扶梯、阳台(开敞、封闭)、外走廊及步行街外廊是否要纳入防火间距计算?另外该扶梯、阳台(开敞、封闭)、外走廊及步行街外廊是否计算防火分区面积?教育建筑、商业建筑等开敞外廊是否要计算疏散人数和疏散宽度?
答:1.室外楼梯、扶梯、阳台(开敞、封闭)、外走廊及步行街外廊属于建筑的一部分,防火间距应计算至建筑的外边缘线。
2.开敞外走廊、室外楼梯、开敞阳台和室外扶梯可不算入防火分区面积内。
3.除房间使用人数固定的教育建筑外,其余(如商业)开敞外走廊面积均需列入人员密度的计算和疏散宽度。
4.对于开敞外走廊的防火分区的分隔界限,可定义在贴外廊的墙体外表面(2.5.1图示)。防火分区分界线在外廊处不需设置防火卷帘分隔。

2.5.1图示
2.5.2 剪刀楼梯两个防火分区共用时的相关要求。
2.5.2.1 地下车库使用剪刀楼梯作为疏散楼梯时,有什么具体要求?是否满足两个安全出口5m间距即可?
答:对于地下车库,一组剪刀梯可以作为同一个防火分区仅有的两个安全出口,但应分别设置防烟前室,且两个安全出口最近边缘之间的水平距离不应小于5m,最不利点疏散距离应按30m(即60m的一半)进行设计。如一组剪刀梯作为一个防火分区仅有的两个安全出口时,不应与相邻防火分区共用安全出口(2.5.2.1图示)。

2.5.2.1图示
2.5.2.2 建筑为人员密集场所时,剪刀梯是否可以作为一个防火分区的两个安全出口?是否可以分别作为两个防火分区的两个安全出口?对于展览厅、营业厅等大空间,当不能满足大空间任意点到安全出口的距离小于10m,也不能满足展览厅、营业厅中其他疏散门到楼梯门的距离小于10m时,能否用剪刀楼梯作为安全出口?
答:对于人员密集场所,剪刀楼梯可以分别作为相邻防火分区的两个安全出口,但应分别设置防烟前室(2.5.2.2图示)。一组剪刀楼梯作为同一个防火分区的两个安全出口,应满足以下要求:
1.当一部剪刀楼梯作为公共建筑一个防火分区仅有的2个安全出口时,必须满足分别设置防烟前室、任意疏散门到安全出口的距离不超过10m的规定,且两个安全出口的净距离不应小于5m。
2.当不能满足任意疏散门到防烟前室的距离小于10m时,剪刀楼梯仅可以作为一个安全出口使用;作为一个安全出口时,可按《建筑设计防火规范》GB 50016第5.5.17条的展览厅、营业厅等大空间的要求进行疏散距离计算。
3.当采用一部剪刀楼梯作为公共建筑的一个安全出口时,每个防火分区的安全出口应在平面均匀布置,疏散宽度的分配也应均匀分布。

2.5.2.2图示
2.5.3 不同功能合用的建筑是否可以共用(竖向、水平)疏散楼梯?是否有相关规定?
2.5.3.1 办公与酒店、办公与商业、医疗与办公、医疗与商业以及酒店与商业是否都可以共用(竖向、水平)疏散楼梯?什么情况下(什么功能)可以竖向或水平共用?
答:办公与酒店、办公与商业、酒店与商业均可以竖向共用疏散楼梯间,但不应同层共用疏散楼梯间。当竖向共用楼梯时,应同时满足办公、酒店及商业关于疏散宽度的规范要求。
办公与酒店、办公与商业、医疗与办公、医疗与商业等同层使用时,均应独立疏散,且不应借用相邻防火分区的安全出口进行疏散。
商业与展览与歌舞娱乐等公共服务经营类场所同层布置时,可借用相邻防火分区的安全出口进行疏散。
2.5.3.2 《商店建筑设计规范》JGJ 48第5.1.4条:“综合性建筑的商店部分应采用耐火极限不低于3.00h的隔墙和耐火极限不低于1.50h的非燃烧体楼板与其他建筑部分隔开;商店部分的安全出口必须与其他建筑部分隔开”。是否要求商店必须独立设置疏散楼梯间,该楼梯间在各层均不作为建筑其他功能部分疏散之用?
答:商店与建筑的其他功能部分可以竖向共用疏散楼梯间,但不应同层共用疏散楼梯间。当竖向共用疏散楼梯时,应满足各功能的疏散宽度及《商店建筑设计规范》JGJ 48第5.1.4条的相关规定。
2.5.3.3 学生宿舍及企业员工集体宿舍是否可以与餐饮或办公等其他功能空间/房间共用(竖向、水平)疏散楼梯?
答:应按《宿舍建筑设计规范》JGJ 36执行,学生宿舍及企业员工集体宿舍的宿舍功能区不应与餐饮、办公等其他功能的建筑(符合《宿舍建筑设计规范》JGJ 36术语2.0.6公共活动空间的房间除外)共用安全出口及疏散楼梯。
2.5.3.4 住宅小区的物管用房是否可以与商业共用疏散楼梯?
答:当住宅小区的物业管理用房建筑面积不大于300㎡且不超过2层2时,物管用房可以与商业共用疏散楼梯,但不应与住宅共用疏散楼梯。
2.5.4 疏散楼梯在首层和屋面是否需要设防火门?首层两个疏散楼梯之间的门、窗距离有何要求?
答:一般情况下,楼梯间在首层、屋面直接开向室外的门不需要设防火门,但应满足以下要求:
1.当疏散楼梯间采用加压送风形式时,首层和屋面直通室外的门应采用可自动关闭的门,以满足楼梯间的加压需要。
2.当地下室疏散楼梯间利用首层通室外的门作为自然排烟口时,不应采用防火门。
3.非加压送风的楼梯间,除管理要求外,地下室直通室外的安全出口和楼梯间直通屋面的安全出口可以仅设门洞。
4.疏散楼梯直通室外的非防火门与相邻房间的门、窗、洞口之间的间距要求不应小于1m,如为防火门则无要求。
5.楼梯间在首层直接对室外开启的非防火门与相邻楼梯间(或前室)等无可燃物区域的非防火门,不需要满足1m的要求。
2.5.5 屋面或室外露台算不算安全出口?如二层以上的楼梯间疏散到二层室外露台(该楼梯不到首层),再通过露台转到其他位置的室外楼梯才能疏散到地面,是否可行?
答:屋面或室外露台需有疏散楼梯在室外空间下到地面才可算安全出口,无法直达地面的疏散楼梯应通过室外疏散楼梯进行转化,且该疏散路径不应穿越室内空间。连通疏散路径的室外区域应符合上人屋面要求。
2.5.6 《建筑设计防火规范》GB 50016第5.5.6条:“直通建筑内附设汽车库的电梯,应在汽车库部分设置电梯侯梯厅,并应采用耐火极限不低于2.00h的防火隔墙和乙级防火门与汽车库分隔”。电梯侯梯厅可否采用相当于2.00h耐火极限的防火玻璃墙、防火卷帘或水幕等等效分隔措施与汽车库分隔?
答:可以采用满足2.00h耐火极限的防火玻璃墙与汽车库分隔,其防火玻璃墙应整体满足耐火完整性和隔热性要求,并应提供相应的构件检验报告;但不应采用防火水幕及防火卷帘与汽车库分隔。
2.5.7 超高层建筑中避难层的避难区域做空中花园是否可行?除避难区外的区域,如果是空中花园等绿化空间是否可行?
答:超高层建筑中避难层的避难区域不可做空中花园,但除避难区外的区域可做空中花园等绿化空间;空中花园除植被外,其他装修材料及家具的燃烧性能等级不应低于*级A**且应为室外开敞空间。2.5.8 超高层建筑的避难层可否设置功能用房,如酒店的配套用房厨房、餐厅、健身房等?
答:1.超高层公共建筑的避难层除可以兼作设备层外,不能有其他使用功能。
2.超高层住宅建筑的避难层不应设置与避难空间相互连通的功能用房(除设备用房外)。当采用跃层式套型布置于避难层时,不应向避难层疏散,具体设置要求详见本《解析》第一章第2.5.60条。
2.5.9 地下室的汽车坡道是否可以作为人员疏散的安全出口?室内汽车通道是否可以作为人员疏散通道?
答:1.地下室各层汽车坡道的出入口不可以作为人员疏散的安全出口。
2.火灾发生时人员的人身安全及疏散是首要的。疏散人员可以通过汽车库内水平的汽车通道到达该层安全出口。
2.5.10 地下车库车位的布置是否不应影响疏散?车位之间是否应预留疏散通道?
答:地下车库的车位布置不应影响通向车库安全出口的疏散门及疏散通道。车辆等不影响视线的障碍物可按直线计算安全疏散距离;影响视线的隔墙等实体障碍物,应按绕行折线计算安全疏散距离。
2.5.11 建筑的地下或半地下室疏散距离应按规范的哪一条执行?
答:除地下车库外,建筑的地下或半地下室每层直通疏散走道的房间疏散门至最近安全出口的疏散距离,应根据以下不同情况分别对待:
1.埋深大于10m或3 层及以上的地下、半地下建筑(室),应比照《建筑设计防火规范》GB 50016 表5.5.17中相应使用功能高层建筑的规定值确定。
2.除上述情况外,可以按照《建筑设计防火规范》GB 50016 表5.5.17中相应使用功能单、多层建筑的规定值确定。
2.5.12 夹层是属于某一自然层内,局部划分为两层的上层平面,其人员的疏散是按A的疏散方式(利用相对于建筑主要疏散楼梯外的辅助楼梯直接从夹层疏散到自然层,再通过自然层疏散至建筑主要疏散楼梯,且疏散人员数量是按夹层人数+对应的自然层人数的总和)计算?还是按B的疏散方式(直接在夹层设置通往建筑主要疏散楼梯的安全出口进行疏散,且其疏散人数按夹层人数独立)计算?如果按B计算的话,对于整个建筑物来说,是否等同增加了自然层?是否对整个建筑物的定性有影响?此种设计对中小学校以及幼儿园的教室布置有重要影响,这些情况应参考哪些设计条文?
答:当夹层的使用功能为平时无人员值守的设备机房,仅偶尔进行检修,且检修门符合甲级防火门的要求时,可按A的疏散方式进行疏散。面积小于50㎡时,可设置金属竖向梯作为唯一的安全出口。
当夹层的使用功能为功能房间时,一般情况下,应按B(自然层)的疏散方式进行疏散,但但当夹层面积满足《建筑设计防火规范》GB 50016第5.5.15条的相关规定且夹层距离满足《建筑设计防火规范》GB 50016第5.5.17的相应使用功能的规定值,也可按A的疏散方式进行疏散,其中疏散距离均应按行走距离计算,楼梯应按1.5倍的行走距离计算。
2.5.13 《建筑设计防火规范》GB 50016第6.4.11条第3款:“开向疏散楼梯或疏散楼梯间的门,当其完全开启时,不应减少楼梯平台的有效宽度”。是否可以做180°开启的疏散门?即下图是否满足要求(2.5.13图示)?

2.5.13图示
答:楼梯间不应采用180°开启的疏散门,楼梯平台的有效宽度应以楼梯间疏散门开启角度为90°时进行计算。
2.5.14 如何定义疏散楼梯的有效宽度?下图疏散楼梯宽度应如何计算?
答:楼梯有效净宽宽度应为墙到扶手中线或扶手中线到扶手中线。有效疏散宽度应按疏散路径上的疏散走道、疏散楼梯和疏散门之中的最小值计算(如2.5.14图示二)。步级宜垂直于栏杆布置,且疏散楼梯的步级净宽应按垂直于步级踢面计算有效疏散宽度(如2.5.14图示一)。当两侧不平行于墙面或栏杆时,宜至少有一侧垂直的墙面或栏杆。

2.5.14图示一

2.5.14图示二
2.5.15 参考《建筑设计防火规范》GB 50016第6.4.11条第3款,当疏散门完全开启时,是否也不应影响疏散走道的疏散宽度?
答:《民用建筑设计统一标准》GB 50352 第6.11.9条的第5款已说明“开向疏散走道及楼梯间的门扇开足后,不应影响走道及楼梯平台的疏散宽度”。
2.5.16 规范规定小学和幼儿园和教室应设外开门。面向儿童的培训机构,其教室门是否允许内开未有规定。针对这类问题应如何处理?
答:供幼儿或中小学生使用的教室,疏散门均应向疏散方向开启,面向儿童的培训机构也应按此执行。当幼儿或中小学生使用的教室或培训机构教室的房间人数不超过5人,且面积不超过10㎡时,可仅设置一个疏散门,且疏散门的开启方向不限。
2.5.17 案例:某一项目,用地被市政路分为左右两个地块,两个地块地下车库之间有一条通道进行连通,是否需要按《汽车库、修车库、停车场设计防火规范》GB 50067第6.0.6条执行?
答:应按《汽车库、修车库、停车场设计防火规范》GB 50067执行。
2.5.18 机场塔台层数如何界定?按民用建筑规范超出相关高度及人数要求时,是否需做剪刀梯或室外梯来满足两个安全出口的要求?
答:机场塔台及电梯试验塔等类似建筑属于一种特殊类型建筑,无需按普通民用建筑计算层数。其功能及专业具有高度同一性,工艺和性质与普通民用建筑不同且塔台面积不大,工作人员不多,同时安保管理非常严密,不对外开放,所在工作人员均为受训人员,熟悉工作及疏散环境。在已建并使用的塔台中,核心筒的布置基本都是一台电梯周边围绕一个环形疏散梯的方式,经过各地长期广泛使用,证明在机场塔台及电梯试验塔等特殊建筑类型中这种疏散方式是安全的。
2.5.19 屋面避难面积怎么计算?是否有最少面积要求?
答:1.对于商业建筑,其安全屋面要求应满足《商店建筑设计规范》JGJ 48第5.2.5条相关规定:大型商店的营业厅设置在五层及以上时,应设置不少于2 个直通屋面的疏散楼梯间。屋面上无障碍物的避难面积不宜小于最大营业层建筑面积的50% 。
2.对于其他建筑没有具体规定。
3.对于有两座及以上楼梯间通达的建筑屋面,屋面布置的设备或设施之间应留出净宽不小于1.2m(两股人流)的便捷通道连通各楼梯间。
2.5.20按照《建筑设计防火规范》GB 50016 第5.5.23条第4款、第6.4.3条第5款的规定,封闭母线、电缆桥架是否可以穿越避难区、避难走道、避难间、防烟楼梯间及前室等?
答:封闭母线、电缆桥架原则上不应穿越避难层避难区域(间)、避难走道、避难间、防烟楼梯间及前室。确因建筑条件限制需穿越时:
1.若采用燃烧性能*级A**电缆,穿越处(楼板或墙体)的孔隙应采用不低于穿越处耐火极限的材料封堵。
2.若采用其他电缆及封闭母线,穿越段的电缆桥架及封闭母线应做满足穿越处(楼板或墙体)耐火极限要求的防火包覆或做竖井、防火夹层进行保护,且穿越处(楼板或墙体)的孔隙应采用不低于穿越处耐火极限的材料封堵。
Ⅱ公共建筑
2.5.21 明确餐饮的防火分区及疏散宽度的计算。燃气厨房是否可以设置在地下建筑内?
答:1.餐饮的防火分区应按《建筑设计防火规范》GB 50016第5.3.4条的条文说明对餐饮场所防火分区的规定执行,疏散宽度按《饮食建筑设计标准》JGJ 64 的人数计算。采用热能加热设施加工食品的面包店、饮料店属于商铺性质,可按营业厅作防火设计。
2.燃气厨房应靠外墙布置,一般情况下不允许布置在地下建筑内,但当地下设有下沉广场时,燃气厨房应靠下沉广场的外墙布置,但应同时满足以下条件:
(1)靠下沉广场外墙的燃气厨房泄爆条件应参照《锅炉房设计标准》GB 50041的相关泄爆条件,泄爆设计不应影响人员的安全。
(2)燃气管道应沿外墙敷设,具体应满足《城镇燃气设计规范》GB 50028的相关要求。
3.大型商业综合体内的餐饮场所使用天然气作燃料时,应当采用管道供气。设置在地下且建筑面积大于150平方米或座位数大于75座的餐饮场所不得使用燃气。
2.5.22 地下的3层建筑,地下一层是否可以设置敞开直通室外的露天楼梯作为安全出口(不是位于下沉广场中的楼梯)?
答:地下二层、地下三层应设防烟楼梯间,地下一层可将直通室外的露天楼梯作为安全出口,但应满足室外疏散楼梯的要求。
2.5.23 敞开楼梯与敞开楼梯间有什么区别?
答:敞开楼梯是开口宽度较大或两面及以上无分隔墙体或围护结构不符合防火要求的楼梯。除室外楼梯外,敞开楼梯一般不能作为工业与民用建筑的疏散楼梯。敞开楼梯间一般为具有三面相对封闭的围护结构,在楼梯入口处未设置防烟门或防烟门不符合规范要求的楼梯间,当楼梯四周围护墙在每个楼层的开口宽度小于其周长的四分之一,且有两个方向用于自然通风的对外开口时,可视为敞开楼梯间。

2.5.23 图示一敞开楼梯间平面示意图1

2.5.23 图示一敞开楼梯间平面示意图2

2.5.23图示二敞开楼梯平面示意图
2.5.24多层公共建筑,沟通上下层的室内开敞楼梯,可否作为疏散楼梯?
答:多层公共建筑,沟通上下层的室内开敞楼梯,不能作为疏散楼梯。
2.5.25 公共建筑底层是否可以设置商业服务网点?其楼梯形式有何要求?
答:1.商业服务网点只适用于住宅底部,公共建筑不存在商业服务网点。公共建筑如果做商业,应按商业建筑要求设计。
2.商业建筑应满足《建筑设计防火规范》GB 50016第5.5.13要求,疏散楼梯不应采用敞开楼梯。
2.5.26 一栋3层公共建筑分隔成多个段,每段一至三层独立疏散,每段的每层最大面积不大于200㎡,且每段的二、三层人数和不超50人,问:能否按照《建筑设计防火规范》GB 50016 第5.5.8条,每段执行1部疏散楼梯?每段之间的隔墙是否按照防火墙设置?
答:当每段之间均能采用防火墙完全分隔时,可相当于多栋建筑贴邻建设,同时每段均满足《建筑设计防火规范》GB 50016第5.5.8的条件时,每段可仅设置一部疏散楼梯,疏散距离可计算至各层的疏散楼梯口。
2.5.27 独立2层的商业或办公建筑,上、下两层总建筑面积之和不大于200㎡,内部设置敞开楼梯,二层到首层疏散外门的疏散距离是否可以按小于30m(设置自动喷水灭火系统37.5m)进行消防设计?当只是设置一个门时,商业疏散门净宽是否需要不小于1.4m?
答:1.疏散距离不可以按小于30m设计,应按《建筑设计防火规范》GB 50016 表5.5.17位于袋形走道两侧或尽端的疏散门的相关要求。独立2层的商业建筑,二层室内最远点到首层出口的距离不超过22m(设置自动喷水灭火系统27.5m),楼梯可以为敞开楼梯(楼梯的疏散距离按水平段1.5倍计算),楼梯宽度应满足相关规范要求。
2.疏散门应满足相关规范要求,商业的疏散门净宽应不小于1.4m。
3.如有多个2层商业零售建筑贴邻建造时,其中间隔墙耐火极限不应小于2.00h。
2.5.28单栋或者成片的3层及以下建筑作为民宿、旅店等功能使用时,是否需要设置封闭楼梯间?
答:原则上,单栋或成片的3层及以下的建筑作为旅店功能使用时,应按旅馆设计设置封闭楼梯间;满足《广东省民宿管理暂行办法》(粤府令第260号)第二条及第九条相关要求,可按《广东省民宿管理暂行办法》执行;村民自建住宅改造符合农家乐(民宿)要求的,可按《农家乐(民宿)建筑防火导则(试行)》(建村〔2017〕50号)执行。
2.5.29 不超过24m的6层办公、商业或宿舍建筑,局部平面如下图(2.5.29图示)所示,问走廊的楼梯是否需设封闭楼梯间?

2.5.29图示
答:走廊开敞段对应的楼梯依据《建筑设计防火规范》GB 50016 第5.5.13条可采用开敞楼梯间,非开敞走廊对应的楼梯应采用封闭楼梯间。
2.5.30 公共建筑疏散楼梯的设置形式有无具体要求?
答:疏散楼梯间的形式有敞开楼梯间、封闭楼梯间、防烟楼梯间,各类疏散楼梯间的防火构造应符合《建筑设计防火规范》GB 50016 第6.4节的规定。公共建筑疏散楼梯间的形式取决于建筑的使用功能、高度或层数、疏散人数等因素。通常,层数较多或建筑高度较高、火灾危险性大、人员密集度高、人员对疏散环境生疏或人员疏散能力较低、疏散路线较长或较复杂的建筑,要优先选择防烟性能较高的疏散楼梯间。公共建筑疏散楼梯间或疏散楼梯设置形式的基本要求,见表2.5.30。
表2.5.30 公共建筑疏散楼梯间或疏散楼梯设置形式的基本要求

注:1.当封闭楼梯间不能满足自然排烟条件时,应设置机械防烟设施或采用防烟楼梯间;
2.室外疏散楼梯可以视为封闭楼梯间或防烟楼梯间。
2.5.31 高层建筑裙房与塔楼应如何确定疏散楼梯间形式?塔楼投影范围内与裙房同一防火分区且仅服务裙房的疏散楼梯是否可以采用封闭楼梯间?
答:裙房的疏散楼梯间形式按以下形式确定:
1.当高层主体与裙房之间采用防火墙和甲级防火门分隔时,裙房与高层主体可以按照各自高度及层数分别考虑各自的疏散楼梯间形式,裙房部分可以根据其实际用途和层数按照《建筑设计防火规范》GB 50016 第5.5.13条的要求确定(2.5.31图示一)。
2.完全在裙楼范围内的防火分区,其防火分区面积及楼梯形式应按裙楼的消防定性来确定(2.5.31图示一)。
3.当防火分区一部分在裙房范围内、一部分在塔楼投影范围内时,裙房投影范围内的楼梯可按裙房楼梯形式确定,而在塔楼投影范围内的楼梯,当楼梯的整体高度不超过24m时,可按实际疏散的高度选择疏散楼梯间的形式(2.5.31图示二、图示三)。

2.5.31图示一

2.5.31图示二

2.5.31图示三
2.5.32 根据《建筑设计防火规范》GB50016第5.5.21条的表5.5.21-1,关于疏散计算表中每百人的最小疏散净宽折算,如在多功能组合的建筑物中,不同功能楼层以防火墙(不含防火门窗)及楼板完全隔绝,是否可按所在楼层的层数对照表格折算净宽?
答:在多功能组合的建筑物中,不同功能的楼层不应按所在楼层的层数对照表格折算净宽,应按整栋建筑的层数定性。当裙楼与塔楼完全分隔(仅可以防火门连通),疏散楼梯和安全出口各自完全独立设置时,裙楼部分可按照独立疏散部分楼层的总层数进行最小疏散净宽度取值;当裙楼与塔楼不能完全分隔时,应按整栋建筑的总层数来定性。
2.5.33根据《建筑设计防火规范》GB 50016第6.4.4条,当地下室属于应设置防烟楼梯间的情况时,若地下室的部分楼梯只通至地下二层或地坪高差小于10m时,该部分楼梯是否可按封闭楼梯间设计?
例:地下室共4层,地下一层、地下二层为商业性质,地下三层、地下四层为地下停车场,如地下一层、地下二层楼梯可完全独立疏散,该部分楼梯是否可按封闭楼梯间设计?
答:地下或半地下室楼梯间的形式,应根据下列不同情况分别对待:
1.地上、地下共用疏散楼梯时,地下部分的疏散楼梯应按地上部分该楼梯服务的建筑物的总层数/总高度确定楼梯间形式。
2.当地下楼梯在地上建筑的首层投影范围内时,地上建筑的楼梯间形式原则上应延伸至地下部分。但当地上、地下楼梯可各自独立直通室外,且采用耐火极限不低于1.50h楼板及耐火极限不低于2.00h的隔墙完全分隔时,地下楼梯形式可根据地下具体埋深确定。
3.当地下建筑的埋深高度不同,且采用防火分隔(防火门、防火墙、防火卷帘(仅用于车道))时,地下楼梯形式可根据各自部分地下室的总深度决定(2.5.33图示)。

2.5.33图示
2.5.34当地下室面积大,有不同深度且地上有不同高度的塔楼时,地下室车库是否可按塔楼投影范围适用不同规范标准?另外针对地下车库不同深度的分区,是否也要求满足《建筑设计防火规范》GB 50016第7.3.2条“消防电梯分别设置在不同防火分区内,且每个防火分区不应少于1台”?
答:根据以下不同情况分别对待:
1.当地下室功能为机动车库时,其防火设计按《汽车库、修车库、停车场设计防火规范》GB 50067中有关地下车库的规定执行。现行规范《汽车库、修车库、停车场设计防火规范》GB 50067中没有要求地下车库设置消防电梯。
2.当地上建筑部分按照《建筑设计防火规范》GB 50016第7.3.1条的规定需要设消防电梯时,该消防电梯按照《建筑设计防火规范》GB 50016第7.3.8条的规定,需能通至地下室各层且应能每层停靠(2.5.34图示一)。
3.当地下室功能为非汽车库(如商业或商业与汽车库功能并存)时,针对不同深度的分区以及地上建筑物的类别,采用防火分隔[防火门、防火墙、防火卷帘(仅用于车道)]时,可按各自部分地下室的总深度决定是否设消防电梯(2.5.34图示二)。
案例:根据《建筑设计防火规范》GB 50016第7.3.1条设置消防电梯的地下室或半地下室,地上是单、多层、二类或一类高层建筑,地下一层是商业性质,地下二层、地下三层是地下车库,当地上设有消防电梯时,地下部分仅需将地上消防电梯延伸至地下各层,没有消防电梯的部分不需另外设置。

2.5.34图示一

2.5.34图示二
2.5.35 当地下室的防火设计要求高于地上建筑时,地上建筑是否应按地下室的要求进行防火设计?
答:地上、地下应分别按规范的要求进行防火设计,当地下部分的楼梯的防火要求高于地上部分时,地上、地下可分别按各自的层数/高度确定楼梯形式。
2.5.36 商场内的电影院需设置专用疏散楼梯,若电影院有两个防火分区,是否两个防火分区都需要设置专用疏散楼梯?
答:电影院区域应设置不少于一部专用疏散楼梯,如电影院区域分为两个或两个以上防火分区,每个防火分区均应通达该专用疏散楼梯或每个防火分区各自设置专用疏散楼梯。
2.5.37 设置在商场内的四层以上,且单个观众厅设计建筑面积大于400㎡的大型电影院,规范是否有具体要求?
答:若电影院设置在其他建筑内的四层及以上楼层,且单个观众厅建筑面积大于400㎡,应符合以下要求:
1.该电影院单个观众厅的建筑面积不应大于700㎡;观众厅应采用耐火极限不小于2.00h的隔墙和甲级防火门与建筑的其余空间分隔,形成独立的防火单元。
2.影院内每个防火分区应设置不少于2部独立使用的疏散楼梯。
3.电影院观众厅疏散门的最小净宽度不应小于1.4m,观众厅内任意点到疏散门的直线距离不应大于15m。
4.电影院观众厅内部装修顶棚应采用*级A**材料,墙面、地面应采用不低于B1级材料,设计必须满足《建筑内部装修设计防火规范》GB50222的有关要求。
2.5.38 公共建筑塔楼不同疏散梯在首层同一大堂出,大堂设对应数量的出口时,是否需要用隔墙分隔各疏散梯及安全出口?
答:当大堂满足扩大前室的条件时,对于高层公共建筑塔楼,两个地上疏散楼梯可以共用直通室外的一个扩大前室出室外,但要保证直通室外的出口不少于两个且宜设在不同朝向,楼梯至首层外门不超过30m。
若塔楼地上、地下楼梯共用楼梯间进行疏散,且地下为非人员密集场所,则地下楼梯间可以与地上楼梯间共用直通室外的扩大前室。
2.5.39当住宅建筑不同疏散梯在首层同一大堂出,是否需要用隔墙分隔各疏散梯及安全出口?
答:住宅建筑的疏散楼梯间在首层可利用作为扩大封闭楼梯间或扩大防烟前室的同一门厅疏散至室外,门厅外门的最小合计净宽不应小于2.2m(按照住宅首层疏散外门的净宽度的2倍计算)。
若塔楼地上、地下楼梯共用楼梯间进行疏散,且地下为非人员密集场所,则地下楼梯间可以与地上楼梯间共用直通室外的扩大前室。
2.5.40 电梯厅如设在扩大的封闭楼梯间或防烟楼梯间前室内,电梯厅是否应进行防火分隔?
答:非消防电梯设在首层扩大的封闭楼梯间或防烟楼梯间前室内时不需分隔,但应符合本《解析》第一章第4.30条的相关规定。
2.5.41 关于《建筑设计防火规范》GB 50016第5.5.17条第2款及5.5.29条第2款首层扩大封闭楼梯间或扩大防烟楼梯间前室的问题:
2.5.41.1 当公共建筑总层数不超过4层,采用扩大的封闭楼梯间时,楼梯间出口处至室外疏散门的最大疏散距离是多少?
答:当建筑总层数不超过4层时,应按《建筑设计防火规范》GB 50016第5.5.17条第2款规定的不穿过功能用房到达室外的15m走道或门厅执行,详见图2.5.41.1图示。

2.5.41.1图示疏散楼梯首层门厅示意图
2.5.41.2 当公共建筑总层数超过4层且采用扩大的封闭楼梯间或防烟楼梯间前室时,楼梯间出口处至室外疏散门的最大疏散距离是多少?
答:建筑总层数超过4层的建筑,可采取下列方式执行:
1.当利用可直接通向室外的内走廊,两侧采用耐火极限不低于2.00h 防火隔墙,且该隔墙除楼梯间及前室出口外不设置其他门窗洞口时,楼梯间到直通室外门行走直线距离不应大于15m,详见图2.5.41.2.图示一。

2.5.41.2图示一
2.采用扩大的封闭楼梯间或扩大防烟楼梯间前室时,楼梯间到直通室外门的直线距离不应大于30m,详见图2.5.41.2图示二。

2.5.41.2图示二扩大的封闭楼梯间及扩大防烟楼梯间前室示意图
3.上述情况的疏散楼梯也可以通过避难走道通至室外。避难走道按照规范相关条款设置(2.5.41.2图示三)。避难走道的宽度不应小于规范规定的疏散走廊宽度,也不应小于同一防火分区通向该避难走道的所有疏散门的总宽度。

2.5.41.2图示三设置避难走道通至室外
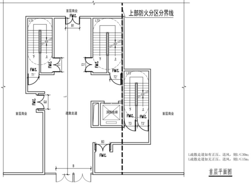
2.5.41.3 公共建筑的疏散楼梯在首层直通室外的疏散走道宽度如何计算?
答:疏散楼梯间在首层通过走廊直通室外,可以按规范的要求将走廊按扩大封闭楼梯间或扩大防烟前室设计,当多个楼梯通过同一走廊通向室外时,走廊的宽度应大于利用走廊疏散的地下室楼梯中的最大疏散宽度+地上楼梯中的最大疏散宽度+通向该走廊的首层疏散总宽度之和,详见2.5.41.3图示。


2.5.41.3图示1

2.5.41.3图示2

2.5.41.3图示3
2.5.42 当民用建筑利用架空层、内廊、骑楼、敞开外廊等相似空间直通室外时,如何定义室外安全区域?
答:处于建筑两个长边及以上的外墙均开敞的首层架空层中的安全出口和疏散出口,当其直通室外的直线距离不大于30m时,等同于直通室外。
首层安全出口通过凹廊、骑楼、敞廊或相似建筑部位时,这类部位的开口进深满足以下要求时,可认为满足直通室外的要求:
1.净高不大于6m时,开口进深不应大于1倍开口净高(2.5.21.22图示一)。
2.净高大于6m但不大于10m时,开口进深不应大于1.5倍开口净高(2.5.42图示二)。
3.净高大于10m时,开口进深不应大于2倍开口净高(2.5.42图示三)。

2.5.42图示一

2.5.42图示二

2.5.42图示三
注:1.开口进深的计算应以首层走廊顶板投影的范围为起点;
2.楼梯至室外的距离:从梯段踏步前缘不超过梯段宽度的位置起算。
2.5.43 楼梯间在首层通往前室或扩大前室的疏散门净宽是否不应小于疏散楼梯的净宽度?
答:规范对此无规定,但应根据疏散楼梯的梯段宽度、楼梯间的门以及首层对外的疏散外门三者中最小值计算所需疏散宽度。2.5.44 消防控制室应设置在建筑什么位置?
答:根据《广东省消防工作若干规定》(粤府令第282号)第三十四条“需要设置消防控制室的新建建筑物,消防控制室应当设置在建筑首层靠外墙部位,并能直通室外”,且消防控制室宜靠近消防车登高操作场地。
当建筑物没有地上建筑部分(为地下空间)时,可按《建筑设计防火规范》GB 50016第8.17条的相关规定执行,消防控制室宜靠近消防车登高操作场地。
注1:首层的定性应与建筑物的高度定性相一致,首层定性相关内容参照本《解析》第一章第2.2.3条。
注2:当建筑存在不同标高且均设有消防车道时,可在消防车到达任意一侧设置消防控制室。
2.5.45 消防水泵房、锅炉房需直通安全出口,经过一段公共的疏散走道(该走道开有其他房间的防火门)才能到达楼梯间是否算直通安全出口?若算直通安全出口,以上设备房的疏散门与楼梯前室门之间的距离有没有规定最大值?
答:消防水泵房、锅炉房的房间门宜紧邻安全出口,当房间门紧邻安全出口确有困难时,应在安全出口能够清晰看到并方便到达消防水泵房和锅炉房,且行走距离不应大于15m。
2.5.46 《建筑设计防火规范》GB 50016第5.5.17条第4款“观众厅、展览厅、多功能厅、餐厅、营业厅等”,“等”字表示未穷举,其中是否包括“开敞性办公空间、图书馆的大空间阅览室及高校实验楼的大空间型实验室”?
答:列举内容“开敞性办公空间、图书馆的大空间阅览室和高校实验楼的大空间型实验室”属于多功能厅,可参照“其室内任一点至最近疏散门或安全出口的直线距离不应大于30m”执行。
2.5.47 《建筑设计防火规范》GB 50016第5.5.17条第4款规定“一、二级耐火等级建筑内疏散门或安全出口不少于2个的观众厅、展览厅、多功能厅、餐厅、营业厅等,其室内任一点至最近疏散门或安全出口的直线距离不应大于30m”。
1.当厅内周围或局部布置小房间时,室内任一点是从小房间内的任一点计算,还是从小房间的疏散门计算?
2.当房间内位于两个疏散门或安全出口的连线夹角小于45°时,疏散距离应如何计算?
3.有固定阶梯座位的观众厅,是否不能按跨越座位的直线计算距离,而是沿人员疏散路线的行走距离计算?有步级的通道是否应按水平距离的1.5倍计算?每排座位只有一个级差的阶梯教室,纵向走道的水平距离如何计算?
答:1.当观众厅、展览厅、多功能厅、餐厅、营业厅等室内设有小房间时,疏散距离应按小房间内的最不利点进行疏散距离计算,如2.5.47图示一。

2.5.47图示一
2.当观众厅、展览厅、多功能厅、餐厅、营业厅等房间内任一点与两个安全出口或疏散门的连线夹角小于45°时,房间内任一点至最近疏散门或安全出口的直线距离应小于等于20m(22m)如2.5.47图示二。

2.5.47图示二
3.当观众厅、展览厅、多功能厅、餐厅、营业厅等房间内任意一点至疏散门的直线距离小于等于20m(22m)时,疏散走道可按《建筑设计防火规范》GB 50016第5.5.17条第1款表5.5.17中的疏散门至最近安全出口的直线距离进行计算,如2.5.47图示三。

2.5.47图示三
4.有固定阶梯座位的观众厅的行走距离不应大于45m,且应同时满足《建筑设计防火规范》GB 50016第5.5.20条的相关规定。有步级的通道不需要按水平距离的1.5倍计算。
2.5.48《建筑设计防火规范》GB 50016 第5.5.18规定“除本规范另有规定外,公共建筑内疏散门和安全出口的净宽度不应小于0.90m”。
请问:公共建筑内的厕所门(非单独设置的公共厕所)以及设备房等辅助用房的房间门的宽度是否也要执行净宽度不应小于0.90m。
答:公共建筑内卫生间的疏散门净宽不应小于《建筑设计防火规范》GB 50016 第5.5.18条的相关规定。设备房等辅助用房,其门净宽仅需满足使用要求或建筑单项规范即可。
2.5.49人员密度计算方式
2.5.49.1 商业综合体疏散设计中,不同规模的疏散系数有一定差别,但规模是指整个项目的规模还是本防火分区规模并不明确。
答:根据《建筑设计防火规范》GB 50016 中表5.5.21-2 确定人员密度值时,应考虑商店的建筑规模,当建筑规模较小(商店总建筑面积小于5000㎡)时宜取上限值,反之当建筑规模较大时,可取下限值(注:5000㎡依据《商店建筑设计规范》第1.0.5条)。
2.5.49.2 办公楼内的健身区域按什么标准来计算人员密度?
答:办公楼内的健身房原则上可按办公场所疏散人数计算,若设计人能提供可靠、科学的依据(例如《建筑设计资料集》或其他研究文献),也可按该依据计算最不利情况下的健身房的疏散人数。
2.5.49.3 溜冰馆、游泳馆、射击馆、保龄球馆人员密度如何计算?
答:具有对外经营的健身娱乐场地,可按表2.5.49.3人员密度和根据实际使用人数两者之中的最不利人数计算:
1.娱乐或健身性质的游泳池、溜冰馆,可按表2.5.49.3游泳池及游泳池边岸人员分别计算。
2.娱乐或健身性质的射击馆、保龄球馆,除弹道区外,其他区域可参照表2.5.49.3游泳池边岸人员计算。
3.对外经营的健身娱乐场地(网球、篮球、乒乓球),除场地区域外,其他区域(观看、候场)可参照表2.5.49.3游泳池边岸人员计算,有观看台的应按看台固定座位计算。
4.教学建筑的健身娱乐场地(网球、篮球、乒乓球),应按实际使用人数计算,若教学建筑兼对外经营使用时,应按对外经营和实际使用人数的最不利人数计算。
表2.5.49.3 人员密度指标参考值

2.5.49.4 普通商业综合体的电影院疏散计算人数方式(包括候场人数)。
答:1.观众厅内的疏散按《建筑设计防火规范》GB 50016 固定座位数×1.1倍的疏散要求计算。
2.有独立候场区域的电影院,其候场人数以最大观众厅的固定座位数来计算。但当候场区域与商业区域结合时,应按《建筑设计防火规范》GB 50016 商业人员密度进行计算。
2.5.49.5 办公建筑的大堂人员计算标准?
答:《办公建筑设计标准》JGJ/T 67 内已有人员密度计算方式的应按规范内容执行,当无法确定总人数时,可按其建筑面积9㎡/人计算。
2.5.49.6 餐厅、宴会厅、食堂,学校的教学楼,图书馆的阅览室等场所的疏散人数计算应依据什么标准?是否参照专业建筑设计规范中规定的最高人员密度标准执行?
答:参照专用建筑设计规范中规定的最高人员密度标准执行,若专用规范无具体规定,应寻找相关可支持设计的有效依据(如:《建筑设计资料集》等)。
2.5.50 高层或超高层的塔式公共建筑,在满足疏散距离的要求的前提下,是否可不设环形走道?250m以上的超高层建筑,如果其中某一整层属于一个业主,按开放式或半开放式办公装修,能否取消环形道?
答:1.高度大于250m的超高层公共建筑不应取消环形疏散走道,应确保每个房间门都满足通过疏散走道双向疏散的要求;其建筑的核心筒周围应设置环形疏散走道,且隔墙上的门、窗应采用乙级防火门、窗。
2.高层公共建筑应以双向疏散为主,高层公共建筑中位于袋形走道两侧或尽端的房间面积占所有房间的面积的比例不应大于1/3,且袋形走道长度不超过疏散走道总长度的1/3。
2.5.51 如2.5.51图示,高层公共建筑凹门所对应的疏散走道的进深(L)及净宽(B)满足什么条件时,可不按袋形走道或尽端房间计算?

2.5.51图示
答:凹门距疏散走道的进深不大于走道净宽度的1.5倍时(即L≤1.5B),可不按尽端计算。
2.5.52 医院建筑在走道上设置的门,是否应满足向两个疏散方向开启的要求?
答:原则上,疏散走道上不应设置影响疏散的门。对于如医院等使用分区有特殊要求的建筑,平面设计时应合理布置,避免在疏散走道中设门扇。确有困难时,且满足《建筑设计防火规范》GB 50016第6.4.11条中疏散方向不限的相关规定时,可设置为双向开启;设单向疏散门时,建议由人员较多的一边开向人员较少的另一边。
2.5.53 商业建筑中,楼梯间踏步宽、高,能否用《民用建筑设计统一标准》中的其他建筑楼梯的0.26+0.175数值?
答:1.如楼梯仅作疏散使用时,可按《民用建筑设计统一标准》GB 50352的相关数值进行设计。
2.如楼梯同时作为疏散及垂直交通使用时,应按《商店建筑设计规范》JGJ 48的相关梯值进行设计。
2.5.54 《中小学校设计规范》GB 50099第8.2.2条规定:“中小学校建筑的疏散通道宽度最少应为2股人流,并应按0.60m的整数倍增加疏散通道宽度”。在实际设计时,多出倍数是否可以?如4股人流,按大于2.4m整倍的2.6m走道宽设计是否可以?还是必须是2.4m?
答:按《中小学校设计规范》GB50099第8.2.2条的条文说明:“计算疏散宽度时,疏散路径的每处都宜以1股人流0.60m的整数倍计算。不足1股人流0.60m的宽度对发生意外灾害时没有逃生作用。在设计中疏散宽度满足需要的同时还有接近0.60m的余量时,拥挤时会多挤入一股人流,导致部分人侧身行走,更易发*踩踏生**事故”。当出现不足一股人流的宽度时,其多出的宽度不应计入疏散宽度。
2.5.55 直升机停机坪的尺寸应如何确定?
答:直升机停机坪的尺寸为直径不小于21m,直升机救助设施的场地尺寸为长、宽分别不小于15m、12m。
2.5.56 金融机构内部使用的金库防火分区该如何划分?安全出口如何设置?
答:现行防火规范对此无要求,应满足金融机构现行安防的相关要求。
2.5.57 如2.5.57图示,宿舍的室内楼梯是否可以按照复式住宅作为开敞楼梯?

2.5.57图示
答:宿舍为公共建筑,户内最不利点应满足《建筑设计防火规范》GB 50016第5.5.17条中尽端疏散距离的要求(室内楼梯应按其水平投影长度的1.5倍计算),各房间疏散门到楼梯的距离应按《建筑设计防火规范》GB 50016第5.5.17条规定的房间疏散门至安全出口的距离计算,且房间门的数量应满足《建筑设计防火规范》GB 50016第5.5.15条的相关要求。在满足上述条件前提下,可按敞开楼梯进行设计。
2.5.58 当建筑疏散要求设计楼梯数量较多时,是否所有楼梯都需要上至屋顶平面?
答:若屋面为不上人屋面,多层建筑不限制楼梯上屋面的数量,若为上人屋面时,多层建筑楼梯上屋面的数量宜不少于2部,高层建筑楼梯上屋面的数量应不少于2部。
《广东省建设工程消防设计审查疑难问题解析》2023.03
