中 国 建 筑 工 程 总 公 司
CHINA STATE CONSTRUCTION ENGRC CORP.
新建居住项目( )屋面工程施工方案
中建x局集团有限公司
xxxxx地块项目部
二〇二〇年四月
新建居住项目(xxxxxxxxxxxxxxxxxxxx)
屋面工程施工方案
|
编制: |
|
|
审核: |
|
|
审批: |
中建xx局集团有限公司
xxxxxxxxxxxxxxxxx地块项目部
二〇二〇年四月
目 录
第1章 编制依据 1
1.1 编制目的 1
1.2 编制依据 1
1.2.1 现有文件及图纸 1
1.2.2 规范依据 1
1.2.3 其他 1
1.3 适用范围 2
第2章 工程概况 3
2.1 工程建设概况 3
2.2 工程建筑概况 3
2.3 屋面工程概况 4
2.3.1 基本设计要求 4
2.3.2 不同屋面详细做法 5
第3章 施工部署 7
3.1 施工顺序 7
3.2 施工准备 7
3.3 材料准备 7
3.3.1 挤塑聚苯板 8
3.3.2 防水卷材 8
3.3.3 防水涂料 9
3.3.4 材料需求计划 9
3.3.5 试验计划 9
3.4 主要劳动力计划 9
3.5 作业条件及环境要求 9
3.6 主要施工机具 10
第4章 主要施工方法 11
4.1 工艺流程 11
4.2 结构试水 11
4.3 找坡层施工 12
4.4 找平层施工 12
4.4.1 施工流程 12
4.4.2 施工方法 12
4.4.3 质量要求 13
4.4.4 注意事项 14
4.5 聚氨酯防水涂料施工 14
4.5.1 施工流程 14
4.5.2 施工方法 14
4.5.3 注意事项 15
4.6 防水卷材施工 15
4.6.1 施工流程 15
4.6.2 施工方法 15
4.6.3 注意事项 16
4.7 蓄水试验 18
4.8 隔离层施工 18
4.9 挤塑聚苯板保温层 18
4.10 细石混凝土刚性防水层施工 18
4.11 防滑地砖面层施工 18
4.11.1 施工流程 18
4.11.2 施工方法 18
4.11.3 注意事项 19
4.12 瓦屋面施工 19
4.12.1 顺水条、挂瓦条的施工要求 19
4.12.2 瓦屋面施工 20
第5章 细部做法 22
5.1 女儿墙 22
5.2 泛水 22
5.3 天沟 23
5.4 屋面出入口 23
5.5 雨水口 24
5.6 水簸箕 26
5.7 排气道穿屋面 27
5.8 排汽道及排汽孔 27
5.9 分隔缝 28
第6章 质量保证措施 29
6.1 质量保证措施 29
6.2 质量检验资料 29
6.3 成品保护 30
第7章 安全保证措施 31
7.1 安全管理方针 31
7.2 安全组织保证体系 31
7.3 安全管理制度 31
7.4 安全管理工作 32
7.5 安全技术措施 32
编制依据
编制目的
本施工方案旨在为新建居住项目(xxxxxxxxxxxxxx号地块)屋面工程施工提供较完整的技术指导文件,便于屋面防水、屋面保温、屋面找坡、屋面保护层等工序施工的质量控制,能优质、快速、高效地完成屋面工程的施工任务,并为业主、监理对屋面工程的施工方法、质量、工程进度等各方面的详细了解提供依据。
编制依据
现有文件及图纸
1)xxxxxxxxxxxxx地块项目结构施工图纸及建筑施工图纸;
2)本工程施工合同。
规范依据
表1.2-1 主要标准、规范及图集一览表
|
序号 |
标准名称 |
标准编号 |
|
1 |
《建筑工程施工质量验收统一标准》 |
GB50300-2013 |
|
2 |
《屋面工程技术规范》 |
GB50345-2012 |
|
3 |
《坡屋面工程技术规范》 |
GB50693-2011 |
|
4 |
《屋面工程质量验收规范》 |
GB50207-2012 |
|
5 |
《建筑构造用料做法》 |
15ZJ001 |
|
6 |
《住宅排气道(一)》 |
16J916-1 |
|
7 |
《平屋面》 |
15ZJ201 |
|
8 |
《坡屋面》 |
15ZJ211 |
|
9 |
《建筑节能工程施工质量验收规范》 |
GB50411-2019 |
|
10 |
《住宅装饰装修工程施工规范》 |
GB 50327-2001 |
|
11 |
《夏热冬冷地区居住建筑节能设计标准》 |
JGJ134-2010 |
|
12 |
《建筑材料燃烧性能分级方法》 |
GB 8624-1997 |
|
13 |
《关于民用建筑外保温材料消防监督管理有关事项的通知》 |
公消〔2012〕350号 |
其他
1)湖北省、武汉市有关建筑工程管理、市政管理、环境保护等法规及规定;
2)中建xx局集团有限公司建筑施工现场安全管理企业标准文件;
3)本工程现场实际情况;
4)公司类似工程施工管理经验。
适用范围
适用于本工程1#、2#、3#、4#楼、5#楼及1S#、2S#、3S#商铺屋面工程施工。
工程概况
工程建设概况
|
工程名称 |
新建居住项目(xxxxxxxxxxxxx) |
|
工程地点 |
湖北省武汉市xxxxxxxxxxxx号地块 |
|
建设单位 |
|
|
设计单位 |
|
|
勘察单位 |
|
|
监理单位 |
|
|
施工单位 |
工程建筑概况
xxxxxxxxxxxxxxx地块项目位于xxxxxxxxxxxxxxx附近,项目由地下2层、地上2栋(xxxxxxxxxxxxxxxxxxxxxxxxxxxxxxxxxxxxxxxxxxxxxxxxx。
图2.2-1 建筑总平面示意图
屋面工程概况
本工程屋面工程主要包含屋面防水、屋面保温、屋面找坡、屋面刚性保护层、屋面地砖、女儿墙、排气道、女儿墙变形缝、屋面天沟及有组织排水等。
基本设计要求
1)屋面防水设计等级Ⅰ级(平屋面),采用二道设防,其中一道必须为防水卷材。
2)钢筋混凝土结构建筑屋面所选用防水卷材及防水涂膜等防水材料,应满足国标《屋面工程技术规范》GB50345-2012、《坡屋面工程技术规范》GB50693-2011及《屋面工程质量验收规范》GB50207-2012的各项要求方可施工。
3)屋面有组织排水设计见相关屋顶平面图。除注明者外,钢筋混凝土结构平屋面排水坡度为2%,檐沟纵向排水坡度为1%,沟底水落差不得超过200mm。卷材防水屋面基层与突出屋面结构(女儿墙、立墙、天窗壁、变形缝、烟囱等)的交接处以及基层的转角处(水落口、檐口、天沟、檐沟、屋脊等)均应做成圆弧。内部排水的水落口周围应做成略低的凹坑,在水落口周围直径0.5m范围内的坡度不应小于5%。内排水雨水管见水施图。有组织内排水管在拐弯处,须设置掏堵口。
4)屋面女儿墙或山墙上每隔10~15m(或经计算后的距离),在距结构面上60~100mm(或防水、保温层完成面标高抬高100处)设150×100溢水口。或:内天沟端部在山墙均设A50PVC管溢流口,管底高出天沟底100,管口伸出山墙面100。
5)当屋面有高低跨采用有组织排水时,高跨排向低跨屋面的水落管下方设计混凝土水簸箕,做法详见15ZJ201-18-C。
6)本工程屋面采用建筑材料找坡,具体做法详见屋面做法说明。平屋面施工需参照《平屋面》(15ZJ201)相关技术要求执行。坡屋面施工需参照《坡屋面》(15ZJ211)相关技术要求执行。
7)屋面雨水管与阳台排水管均选用UPVC管,直径为100mm;冷凝水管直径为30mm,若空调室外机搁板有组织排水至冷凝水管,则冷凝水管为50mm。所有冷凝水管及阳台雨水管(阳台污水的排水管除外)下口接入地下雨水系统有组织排放。当为种植散水时下口处设490×490×30混凝土板。
8)管道出屋面做法详图集15ZJ201。伸出屋面的管道、设备或预埋件等,应在防水层施工前安装完毕,屋面防水层完工后不得在其上凿孔打洞或重物冲击,屋面钢构件与结构层相连处须用防水涂料涂封。
9)当屋面有设施时,如设施基座与结构层相连,防水层应包裹设施基座的上部,并在地脚螺栓周围做密封处理;如在防水层上放置设施时,设施下部的防水层应做卷材增强层;必要时在其上浇筑细石混凝土,其厚度不应小于50mm;须经常维护的设施周围和屋面出入口至设施之间的人行道,应铺设刚性保护层。
不同屋面详细做法
本屋面工程包含保温上人平屋面(屋面1)、不上人平屋面(一)(屋面2)、不上人保温平屋面(屋面3)、保温坡屋面(屋面4)、不上人平屋面(二)(屋面5)五类屋面,屋面具体做法详见屋面做法表。
表2.3-1 屋面做法概况表
|
项目 |
屋面类型 |
使用部位 |
各部分构造做法 |
|
屋面1 |
保温上人平屋面 |
住宅大屋面,商业上人屋面 |
1)10厚防滑地砖铺平拍实,缝宽10,聚氨酯密封胶勾缝; 2)25厚1:3干硬性水泥砂浆; 3)40厚C20细石混凝土,内配钢筋双向∅4@100; 4)干铺聚氨酯纤维无纺布一层; 5)60厚挤塑聚苯板XPS(B1级),在高出屋面处须上翻不得低于完成面300,转角处应做成半径不小于50的圆弧; 6)1.5厚自粘高聚物改性沥青防水卷材; 7)1.5厚聚氨酯防水涂料; 8)20厚1:3水泥砂浆(M15)找平层; 9)20厚(最薄处)1:8水泥加气混凝土碎渣找2%坡,内设排汽管中距不大于6m; 10)钢筋混凝土屋面板,随打随抹光,表面清理干净。 |
|
屋面2 |
不上人平屋面(一) |
楼梯间,电梯机房、设备机房 |
1)40厚C20细石混凝土表面抹平; 2)干铺聚氨酯纤维无纺布一层; 3)1.5厚自粘高聚物改性沥青防水卷材,在女儿墙、出屋面管道、烟道等高出屋面的地方须上翻,上翻高度不得低于完成面300; 4)1.5厚聚氨酯防水涂料; 5)20厚1:2.5水泥砂浆(M15)找平层; 6)20厚(最薄处)1:8水泥加气混凝土碎渣找2%坡,内设排汽管中距不大于6m;(做法参15ZJ201-4/31) 7)钢筋混凝土屋面板,随打随抹光,表面清理干净。 |
|
屋面3 |
不上人保温平屋面 |
商业不上人屋面 |
1)40厚C20细石混凝土表面抹平; 2)干铺聚氨酯纤维无纺布一层; 3)60厚挤塑聚苯板XPS(B1级),在高出屋面处须上翻不得低于完成面300,转角处应做成半径不小于50的圆弧; 4)1.5厚自粘高聚物改性沥青防水卷材; 5)1.5厚聚氨酯防水涂料; 6)20厚1:3水泥砂浆(M15)找平层; 7)20厚(最薄处)1:8水泥加气混凝土碎渣找2%坡,内设排汽管中距不大于6m; 8)钢筋混凝土屋面板,随打随抹光,表面清理干净。 |
|
屋面4 |
保温坡屋面 |
S3#商业坡屋面 |
1)深灰色屋面瓦; 2)挂瓦条L30X4,中距按瓦规格,顺水条-30X6,中距500; 3)≥35厚细石混凝土(配∅4@150X150钢筋网)持筋层; 4)干铺聚氨酯纤维无纺布一层; 5)60厚挤塑聚苯板XPS(B1级)保温层; 6)1.5厚自粘高聚物改性沥青防水卷材; 7)1.5厚聚氨酯防水涂料; 8)20厚1:3水泥砂浆(M15)找平层; 9)钢筋混凝土屋面板,随打随抹光,表面清理干净。 |
|
屋面5 |
不上人平屋面(二) |
出屋面管井 |
1)10厚1:2.5水泥砂浆,抹平压光; 2)干铺聚氨酯纤维无纺布一层; 3)1.5厚自粘高聚物改性沥青防水卷材; 4)1.5厚聚氨酯防水涂料; 5)20厚1:2.5水泥砂浆(M15)找平层; 6)20厚(最薄处)1:8水泥加气混凝土碎渣找2%坡; 7)钢筋混凝土屋面板,随打随抹光,表面清理干净。 |
若后期存在设计变更、工程指令、工程联系函等文件,以后续书面文件为准。
施工部署
施工顺序
为便于施工操作架的搭设及成品保护,本工程施工原则上按照从高到低的施工顺序进行。先进行楼梯间、电梯机房屋面施工,后进行主体大屋面施工。各栋主楼和商铺的屋面依据主体结构完成进度,错开施工。施工完成后及时对成品进行保护。
施工准备
1)施工前相关人员需仔细看图,充分理解设计意图,掌握施工图和设计变更中的细部构造及有关技术要求。
2)施工前做好详尽的安全、技术交底,及时解决施工中存在的疑问,确保对施工图纸以及设计要求有足够的掌握,保证施工质量和进度。
3)屋面施工前,对屋面材料进行清理,保证屋面施工无障碍,确保屋面工程施工顺利进行。
4)清扫屋面,将屋面上松动的砼等杂物清理干净。
5)穿过屋面和墙面的管根部位,采用细石混凝土堵塞密实,以便将管根固定。
6)屋面结构试水,对结构渗漏部分处理完毕之后方可进行后续工序施工。
材料准备
施工前一周提出材料用量进场计划,提前三天组织所用材料进场。
防水及保温材料必须有产品合格证书、性能检测报告,材料的品种、规格、性能应符合设计和产品标准的要求。进场前提前进行材料见证取样工作,并按规定及时送至检测单位进行检测,出具检验报告。
材料要求:
(1)水泥:砂浆用水泥采用42.5级普通硅酸盐水泥,复检合格后方可使用。
(2)砂:采用中砂,不得含有有机杂质,级配良好,砂的含泥量不应超过3%。
(3)卷材品种、规格、技术性能必须满足设计和施工规范的要求,必须有出厂合格证和质量检验报告,并经现场取样复试合格。材料进场数量级质量检查报告需上报建设单位审查。
挤塑聚苯板
挤塑聚苯板必须有材质证明及合格证,规格应一致,外观整齐。
防水卷材
防水卷材外观质量应符合下列要求:
表3.3-1 防水卷材要求表
|
项目 |
质量要求 |
|
折痕 |
每卷不超过2处,总长度不超过20mm,不允许有可见的缺陷,如孔洞、裂纹、疙瘩等 |
|
杂质 |
大于0.5mm颗粒不允许,每1m2不超过9mm2 |
|
胶块 |
每卷不超过6处,每处面积不大于4mm2 |
|
凹痕 |
每卷不超过6处,深度不超过本身厚度的30% |
|
每卷卷材的接头 |
每20m不超过1处,较短的一段不应小于3000mm,接头处应加长150mm |

防水涂料
防水涂料必须有材质证明及合格证,规格应一致。
材料需求计划
本次屋面工程需自粘防水卷材约3600㎡,挤塑聚苯板(XPS)约2800㎡。
试验计划
表3.3-2 屋面施工材料实验计划
|
序号 |
材料 |
取样总组数 |
见证组数 |
|
1 |
自粘防水卷材 |
8 |
8 |
|
2 |
挤塑聚苯板(XPS) |
8 |
8 |
|
3 |
聚氨酯防水涂料 |
8 |
8 |
备注:1#、2#、3#、4#、5#楼及1S#、2S#、3S#商铺各取样一组。
主要劳动力计划
屋面防水施工必须由专业施工队伍来完成,施工队应提前准备好充足的劳动力,要求从事防水作业的工人必须经国家有关部门培训考核合格才能上岗。
表3.4-1 主要劳动力计划表
|
序号 |
施工工种 |
人数 |
|
|
至幸(1#、3#、4#、2S#、3S#) |
经兴源(2#、5#、1S#) |
||
|
1 |
防水工 |
20 |
10 |
|
2 |
保温工 |
20 |
10 |
|
3 |
泥工 |
20 |
10 |
|
4 |
普工 |
20 |
10 |
作业条件及环境要求
1)施工前先提前做蓄水试验,对结构混凝土渗漏处进行修补处理。
2)防水层的基层表面应将尘土、杂物等清理干净,表层必须平整、坚实、干燥。
3)找平层与突出屋面的结构、女儿墙、通风井等相连的阴角,应抹成光滑一致的圆弧。
4)随时注意天气情况,遇雨天、大风等情况停止施工。施工现场必须通风良好。
5)屋面工程的每道工序施工完毕之后,须经监理或建设单位检查验收,并应在合格后再进行下道工序施工。
6)严禁在雨天、雪天和五级风及以上时施工。
7)屋面周边和预留孔洞部位,必须按临边、洞口防护规定设置安全护栏和安全网。
主要施工机具
滚动刷、长把滚动刷、钢卷尺、扫帚、剪刀等。
主要施工方法
工艺流程
图4.1 工艺流程图
结构试水
屋面混凝土浇筑完毕之后,湿水养护时间不得小于7天。后续工序施工之前,必须对结构进行试水,对结构渗漏部位进行堵漏。
1)裂缝大于0.5mm
采用环氧树脂:10kg,聚硫橡胶:3 kg,水泥:12.5kg,砂:28kg。首先用人工将晒干筛后的砂、水泥按比例配好搅拌均匀后,将环氧树脂、聚硫橡胶也按配比拌匀。然后掺入已拌好的水泥砂浆当中,再用人工继续搅拌。最后用少量的*酮丙**(约0.4kg)将已拌好的砂浆稀释到适中稠度。及时将已拌好的改性环氧树脂砂浆用橡胶桶装到已凿好洗净吹干后的混凝土凿槽内进行嵌入。从砂浆开始拌和到嵌入混凝土缝内,一组砂浆的整个施工过程需要约30分钟完成。嵌入后的砂浆养护(即砂浆嵌入缝槽内)处理好后两小时以内,及时用毛毡、麻袋将聚硫橡胶改性环氧树脂砂浆进行覆盖,待完全初凝后,开始用水养护。
2)0.2mm~0.3mm的混凝土裂缝修补
修补工序如下:裂缝清理→试漏→配制注浆液→压力注浆→二次注浆→清理表面。
当裂缝数量较多时,先要在裂缝位置上贴医用白胶布,再用窄毛刷沾浆沿裂缝来回涂刷封缝,使裂缝封闭,大约10分钟后,揭去胶布条,露出小缝,粘贴注浆嘴并包严。固化后周边可能有裂口,必须反复用浆补上,以避免注浆漏浆。注浆操作一般在粘嘴的第二天进行,若气温高的话,半天就可注浆。操作时先用补缝器吸取注浆液,插入注浆嘴,用手推动补缝器活塞,使浆液通过注浆嘴压入裂缝,当相邻的嘴中流出浆液时,就可拔出补缝器,堵上铝铆钉。一般由上往下注浆,水平缝一般从一端到另一端逐个注浆。为了保证浆液充满,在注浆后约半小时可以对每个注浆嘴再次补浆。
找坡层施工
根据墙上500mm水平标高线按2%找坡,根据坡度将铺设水泥加气混凝土碎渣的厚度线以贴饼形式在保温基层上体现出来,找坡层最薄处20mm。
找坡层施工完毕后进行洒水养护,严禁上人乱踩,待其凝固后方可进行下道工序施工。
找平层施工
施工流程
基层清理→洒水湿润→冲筋、贴饼定标高→阴阳角、管根等细部处理→铺设水泥砂浆面层→搓平→压光→养护。
施工方法
找平层施工前,找坡层应进行检查验收完毕,并办理隐检手续。
1)基层清理
将找坡层表面的松散杂物清扫干净,突出基层表面的粘结杂物要铲平,不得影响找平层的有效厚度。坡屋面时,清理屋面结构表面的松散杂物,凸出基层表面的硬物应剔平扫净,不得影响找平层的有效厚度。
2)洒水湿润
抹找平层水泥砂浆前,须适当喷水湿润基层表面,主要是利于基层与找平层的结合,但不可洒水过量,以免影响下层的含水率以及找平层表面的干燥,防水层施工后窝住水气,使防水层产生空鼓。所以洒水达到基层和找平层能牢固结合即可。
3)冲筋、贴饼定标高
根据坡度要求,拉线找坡,按1.5m间距贴灰饼,然后按流水方向以间距1.5m冲筋。其中平屋面找平层设置分格缝,宽度一般为20mm,分格缝最大间距为6m。
4)阴阳角、管根等细部处理
凡基层与突出屋面结构的连接处、转角处均应做成圆弧,屋面圆弧半径控制在50mm。管根部100mm范围内要抹成30mm的斜坡,斜坡与管根交接处留设10mm×10mm凹槽,用柔性密封材料嵌填密实。
5)铺设水泥砂浆
平屋面设置分隔缝,按分格块装灰、铺平,用刮杠靠冲筋条刮平、木抹子搓平后,用铁抹子压光;终凝前再用铁抹子压光第二遍即可交活。平屋面和坡屋面的找平层采用20厚1:3水泥砂浆(M15)找平层。
6)养护
找平层面层压实、收光12h后,进行洒水保湿养护48h。
质量要求
表4.3-1 找平层施工要点及验收流程表
|
序号 |
工序名称 |
施 工 要 求 |
验收流程 |
责 任 人 |
|
1 |
基层清理 |
基层面必须彻底清理干净,不得有浮尘、杂物、明水等 |
基层清理完毕后,由施工队进行自检、工长检查 |
负责工长 |
|
2 |
平立面交接处理 |
在平立面交接处,应做成半径为50mm的圆弧,保证防水卷材的施工 |
平立面交接处理完毕后,由施工队进行自检合格后,工长、质检员检查 |
负责工长、质检员 |
|
3 |
标高坡度弹线 |
根据设计要求的标高、坡度,找好规矩并弹线(包括天沟、檐沟的坡度) |
防水层施工完毕后,由队伍自检合格,工长、质检员检查 |
负责工长、质检员 |
|
4 |
洒水湿润 |
在施工找平层前应洒水湿润,保证找平层与上一个施工层的较好连接,以基层湿润无水渍为宜 |
由施工队进行自检、工长检查 |
负责工长 |
|
5 |
水泥砂浆找平层 |
基层验收合格,采用水泥砂浆做找平层 |
找平层施工完毕后,由施工队进行自检,工长、质检员检查 |
负责工长、质检员 |
|
6 |
洒水养护 |
找平层施工完毕,防止找平层砂浆开裂,应对找平层砂浆进行洒水养护48小时 |
由施工队进行自检、工长检查 |
负责工长 |
|
7 |
质量验收 |
所有子分部施工完毕并检验合格后,进行质量验收,同时做好分部工程的质保资料 |
施工完毕后,由各方组织验收 |
负责工长、质检员、资料员 |
注意事项
1)分格缝的留设:找平层、保护层必须留设分格缝,分格缝宽为20mm,分格缝的间距按4m进行控制,且找平层的平、立面转角(转折)处均留置分格缝。
2)立面抹灰高度应符合设计要求但不得小于250mm,卷材收头的凹槽内应抹成成45°。排水口周围应做直径为500mm和坡度不小于5%的环形凹坑。
聚氨酯防水涂料施工
施工流程
基层处理→细部处理→涂刷底层涂料→细部附加层→第一层涂膜施工→第二层涂膜施工→检查、验收。
施工方法
1)基层处理
基层必须平整、压实、收光;表面须牢固、干净、无明水、无渗漏。阴阳角处做成50mm圆弧角。
2)涂刷底层涂料
涂膜底层涂料的目的是隔绝基层潮气,提高涂膜同基层的粘结力。大面积施工前,先用油漆刷沾底层涂料,将阴阳角、排水口、预埋件等细部均匀细致的涂膜一遍,再用长把滚刷在大面积基层上均匀涂膜底层涂料。涂膜中要注意涂膜均匀,厚薄一致,且不得漏涂,间隔24小时以上固化干燥后,方可进行下道工序施工。
3)涂膜防水施工
(1)第一层涂膜施工
在前一层涂料固化干燥后,应先检查其上有无残留的气孔或气泡,若没有即可进行第一道涂膜施工;若有则应用橡胶板刷将混合料用力压入气孔中,填实补平。第一道涂膜,采用橡皮板刷进行,力求厚度一致,平面或坡面涂膜完成后,涂膜层未固化前不允许上人。涂膜施工前应做好分区分片涂膜计划,留出施工退路。
(2)第二层涂膜施工
在第一道涂膜固化24h(以手不粘为准,一般不得小于24h,也不得大于72h)后,方可在其上均匀涂刮第二道涂膜,方法与第一道相同,但涂刮方向与第一道涂刮方向垂直。
注意事项
1)细部加强涂膜
阴阳角、排水口、管道周围、预埋件、设备根部、施工缝等细部应加强涂抹,再进行大面积涂布。用板刷涂刮除气泡,增涂多层,不得出现空鼓。屋面与女儿墙交接处,涂膜防水拐到墙上做200~300mm高,屋面转角及立面的涂膜应薄涂多遍,不得流淌和堆积。细部构造时,宜选用刷涂或喷涂施工。
2)基层应干燥,一般以含水率小于9%为宜,其简单测定方法是将1m×1m的卷材覆盖在基层的表面上,覆盖3~4小时,如果卷材上无水印即可施工。
3)成品保护
(1)施工完毕后不准在防水层上打洞,要做好产品保护,以免破坏防水层。
(2)非施工现场操作人员严禁进入施工现场,以免影响施工。
(3)施工操作人员不准穿带钉子鞋或高跟鞋进入现场,以免破坏已做好的防水层;防水层未干,严禁人员在工作面上乱踩。
(4)施工操作人员在施工现场项遵章守纪。
防水卷材施工
施工流程
基层表面清理→喷、涂基层处理剂→节点附加增强处理→定位、弹线、试铺→铺贴卷材→收头处理、节点密封→清理、检查、修整。
施工方法
1)基层清理
施工前将验收合格的基层表面尘土、杂物清理干净。
2)节点附加增强处理
待基层处理剂干燥后,先对女儿墙、水落口、管根、檐口、阴阳角等细部先做附加层,附加卷材在平立面的宽度均不得小于250mm。
3)铺贴卷材
铺贴卷材采用滚铺法满粘,施工时用一根钢管插入成筒卷材中心的芯筒,由两人各持钢管一端抬至待铺位置的起始端,将卷材向前展出约500mm,然后由另一人掀剥此部分卷材的隔离纸,并将其卷到已用过的芯筒上。将已剥去隔离纸的卷材对准已弹好的线轻轻摆铺,并加以压实。起始端铺贴完成后,一人缓缓掀剥隔离纸卷入已用过的芯筒上后,持卷材的两人同时沿基准线向前滚铺卷材。滚铺过程中,卷材需绷紧一些,持卷材的两人移动速度要协调一致。铺完一筒卷材后,用长柄滚刷,由起始端开始滚压,彻底排除卷材下面的空气,然后再用大压辊或手持式压辊将卷材压实,粘贴牢固。
注意事项
1)由于自粘型卷材与基层的粘结力相对较低,在立面或大坡面上,卷材容易产生下滑现象,因此在大立面或坡面上粘贴施工时,采用手持式汽油喷枪将卷材底面的胶粘剂适当加热后再进行粘贴、排气和辊压,并宜减少卷材短边搭接。卷材防水层施工时,应先进行细部构造处理,然后由屋面最低标高向上铺贴。檐沟、天沟卷材施工时,宜顺檐沟、天沟方向铺贴,搭接缝应顺流水方向。卷材宜平行屋脊铺贴,上下层卷材不得相互垂直铺贴。
2)自粘型卷材上表面常带有防粘层(聚乙烯膜或其他材料),在铺贴卷材前,应将相邻卷材待搭接部位上表面的防粘层熔化掉,以使搭接缝能粘结牢固。铺贴卷材时应将自粘胶底面的隔离纸完全撕净。
3)粘结搭接缝时,应掀开搭接部位卷材,用偏火热风枪加热卷材底面胶粘剂,加热后随即粘贴、排气、辊压,溢出的自粘胶随即刮平封口。搭接缝粘贴密实后,所有接缝口均用密封材料封严,密封材料嵌缝宽度不小于10mm。
4)阴阳角卷材铺贴方法
图4.5-1 阴阳角卷材铺贴示意图
5)施工用的材料及辅助材料多属易然物质,在存放材料的仓库及施工现场必须通风良好且严禁烟火,同时要具备消防器材。
6)禁止在下雨后马上施工,当施工中遇到有雨应立即停工,并在已粘好的卷材一端用胶粘剂或嵌缝膏进行密封处理,以免渗进雨水。
7)卷材搭接不良:接头搭接形式以及长边、短边的搭接宽度偏小,接头处的粘结不密实,接槎损坏、空鼓;施工操作中应按程序弹标准线,使与卷材规格相符,操作中齐线铺贴,使卷材接长边不小于100mm,短边不小于150mm。
8)同一层相邻两幅卷材短边搭接缝错开不应小于500mm;上下层卷材长边搭接缝应错开,且不应小于幅宽的1/3;叠层铺贴的各层卷材,在天沟与屋面的交接处,应采用叉接法搭接,搭接缝应错开;搭接缝宜留在屋面与天沟侧面,不宜留在沟底。
9)空鼓:铺贴卷材的基层潮湿,不平整、不洁净、产生基层与卷材间窝气、空鼓;铺设时排气不彻底,窝住空气,也可使卷材间空鼓;施工时基层应充分干燥,排除卷材下面的空气,并应均匀压实粘贴牢固。
10)管根处防水层粘贴不良:清理不洁净、裁剪卷材与根部形状不符、压边不实等造成粘贴不良;施工时清理应彻底干净,注意操作,将卷材压实,不得有张嘴、翘边、折皱等现象。
11)渗漏:转角、管根、变形缝处不易操作而渗漏。施工时附加层应仔细操作;保护好接槎卷材,搭接应满足宽度要求,保证特殊部位的质量。
12)操作人员不允许穿带钉子的鞋进入现场,宜穿平底鞋。
13)卷材严禁在雨天施工,五级风及其以上时不得施工,气温低于0℃时不宜施工。
蓄水试验
卷材防水施工完毕后,监理见证进行屋面蓄水试验,并填写蓄水试验记录表,试验合格后方可进行保护层施工。
屋面试水方法为:用橡皮圈把水落口封堵后(或用防水卷材将水落口封闭),最浅水深不小于2cm 进行检验,蓄水时间不小于24h。
隔离层施工
隔离层采用聚酯无纺布干铺一层,采用点粘法或条粘法。
挤塑聚苯板保温层
1)基层应平整、干净、干燥。
2)挤塑板的铺贴方式采用干铺。
3)挤塑板不应破碎、缺棱角,铺设时遇有缺棱掉角、破碎不齐的,应锯平拼接使用。
4)板与板间之间要错缝、挤紧,不得有缝隙。若因挤塑板裁剪不方正或裁剪不直而形成缝隙,应用挤塑板条塞入并打磨平。
细石混凝土刚性防水层施工
保温层施工验收完毕后,及时进行刚性防水层施工。本工程刚性防水层采用40mm厚C20细石混凝土(内设A4@100双向钢筋网片),表面压光。施工时应密切注意保护好挤塑聚苯板保温层,避免其受到破坏。
施工前应设置分格缝,缝宽20mm,间距控制在4m左右,分格缝处的钢筋网片要断开,一个分格缝内的混凝土要连续浇筑,不留施工缝,振捣采用铁辊滚压或人工拍实,禁止使用机械振捣,在初凝前用木抹子提浆抹平,终凝前用铁抹子压光。钢筋网片设置在保护层中间偏上部位,用砂浆垫块支垫。浇筑完成后及时养护,养护时间不得小于7小时,养护后将分格缝清理干净,使用聚氨酯油膏嵌缝。
防滑地砖面层施工
施工流程
基层清理→带线分格→铺干硬性水泥砂浆→铺砖→勾缝擦洗→砖缝灌1:1水泥砂浆处理→养护。
施工方法
1)清理基层:将基层表面尘土、砂粒等杂物清扫干净,使表面平整、粗糙、洁净。
2)带线分格:从分水岭处开始排整砖,然后沿纵横双向进行预排,灰缝10mm,大面排砖要离开女儿墙、出屋面风道口等阴角处200mm左右。以下水口为中心800×800mm范围内,也要预留出来,重新进行细部排砖。
3)铺砖:铺砖要按照预先弹好的排砖线,拉好通线,从屋脊和分水岭开始,先铺几行砖,找好规矩,以此为筋压线,沿泛水方向,从上往下退着铺,每块砖都要跟线,不得出现倒坡现象,大面平整流畅,泛水坡度符合要求。将地砖按规方带线位置拉通线处铺到预定部位,用小木锤拍实拍平,使表面平整,坡向顺直,并随时用直尺、坡度尺、塞尺检查平整及坡度误差,随时调整。
4)勾缝擦洗:在地砖铺设完后,立即用1:1水泥砂浆勾缝,随做清理水泥,在湿润条件下养护,并注意保护,直至达到强度。
注意事项
1)铺设砖面层(含结合层)下的基层表面要求坚实、平整,排查修复施工质量通病现象,并应清扫干净。
2)在铺贴前,对砖的尺寸规格、外观质量、色泽等应进行预选,并事先在水中浸泡或淋水湿润后晾干待用。
3)铺贴时采用1:4干硬性水泥砂浆,水泥砂浆表面要求拍实并抹成毛面。干硬性水泥砂浆,以手握成团,落地松散成粉状为宜。铺面砖应紧密、坚实、砂浆要饱满。严格控制面层的标高。
4)大面积施工时,应采取分段顺序铺贴,按标准拉线镶贴,严格控制方正,并随时做好铺砖、砸平、拔缝、修整等各道工序的检查和复验工作,以保证铺贴面层质量。
5)整个施工操作应连续作业,宜在5~6h内完成,防止水泥砂浆结硬。
6)贴砖勾缝要求:勾缝应做到横平竖直,深浅一致,十字缝搭接平整,压实,压光,不得有丢漏,灰面要颜色一致,保持砖面洁净。天气干燥时,对已勾好的缝要浇水养护。
7)面砖铺贴后,于次日内洒水养护,3天内严禁上人踩踏。
8)水泥砂浆灌缝时必须饱满,且不得污染面砖,加强成品保护。
瓦屋面施工
顺水条、挂瓦条的施工要求
1)先将30×6mm木顺水条用5cm钢钉钉在保护层上,钢钉间距300,顺水条的间距500mm。顺水条固定后,在顺水条侧面、水平面满刷聚氨脂,自顺水条侧面每边5cm范围均刷聚氨脂。顺水条上铺钉木挂瓦条,间距为30cm,并根据现场瓦的实际尺寸进行适当调整,保证瓦的搭接长度不小于5cm。
2)檐口第一根挂瓦条,要保证瓦头出檐(或出封檐板)外50~70mm,上下排平瓦的瓦头和瓦屋的搭扣长度50~70mm;屋脊处的两个坡面上最上面一根挂瓦条,要保证挂瓦后,两个瓦屋的间距在搭盖脊瓦时,脊瓦搭接瓦尾的宽度每边不小于40mm;钉檐口条或封檐板时,均应高出挂瓦条20mm~30mm。

4.12-1 烧结瓦、混凝土瓦屋面檐口
3)挂瓦条断面为30×4,长度一般不小于檩条间距,挂瓦条必须平直(特别要保证挂瓦条上边口的平直),钉挂瓦条时,要随时校核挂瓦条间距尺寸的一致,为保证尺寸准确,可在一个坡面两端,准确量出瓦条间距,通长拉线钉挂瓦条。
4)顺水条、挂瓦条刷沥青油防腐。
瓦屋面施工
1)瓦屋面的施工工艺:清理基层→钉顺水条→钉挂瓦条→铺瓦→检查验收→淋水试验。
2)瓦屋面的施工要求
(1)屋面檐口瓦:挂瓦次序从檐口由下到上,自左向右方向进行,檐口瓦要挑出檐口50~70mm,瓦后爪均应挂在挂瓦条上,与左边、下边两块瓦落槽密合,随时注意瓦面、瓦楞垂直,不符合质量要求的瓦不能铺挂。为保证瓦的平整顺直,应从屋脊拉一斜线到檐口,即斜线对准屋脊第一张瓦的右下脚,顺次与第二排的第二张瓦,第三排的第三张瓦,直到檐口瓦的右下角,都在一直线上,然后由下到上依次逐张铺挂,可以达到瓦沟顺直,整齐美观。平瓦用3cm不锈钢木螺丝固定在挂瓦条上。瓦的搭接应顺主导风向,以防漏水。檐口瓦应铺成一条直线,天沟处的瓦要根据宽度及斜度弹线锯料。整坡瓦要平整,排列横平竖直,无翘角和张口现象。上部第一排瓦与下部第一排瓦,安装时为使施工质量更安全可靠,分别用水泥砂浆粘贴。
(2)斜脊斜沟瓦:先将整瓦(或选择可用的缺边瓦)挂上,沟边要求搭盖宽度不小于150mm,弹出墨线,编好号码,将多余的瓦面砍去(最好用钢锯锯掉,保证锯边平直),然后按号码次序挂上,斜脊处的平瓦边按上述方法挂上,保证脊瓦搭接平瓦每边不小于40mm。斜脊、斜沟处地平瓦要保证使用部分的瓦面器具。
(3)脊瓦:挂平脊、斜脊脊瓦时,应拉通长线,铺平挂直,扣脊瓦时用1:2.5水泥砂浆铺座平实。脊瓦搭盖间距应均匀,脊瓦与坡面瓦之间的缝隙应用聚合物水泥砂浆填实抹平,屋脊或斜脊应顺直。
(4)持钉层:内配钢筋网应骑跨屋脊,并应绷直与屋脊和檐口、檐沟部位的预埋锚筋连牢;预埋锚筋穿过防水层或防水垫层时,破损处应进行局部密封处理;层或防水垫层时,破损处应进行局部密封处理。
(5)铺设瓦屋面时,瓦片应均匀分散堆放在两坡屋面基层上,严禁集中堆放。铺瓦时,应由两坡从下向上同时对称铺设。
细部做法
女儿墙
主楼大屋面及商铺屋面沿着屋面外围设置的混凝土女儿墙墙高及做法详各单体建筑。女儿墙采用混凝土压顶时,女儿墙压顶等部位应密封材料密封防水,外墙防水层应延伸至压顶内侧滴水线部位。女儿墙压顶宜采用现浇混土压顶,压顶应向内找坡,压顶向内排水坡度不应小于5%,压顶内侧下端应作滴水处理。
女儿墙、压顶粉刷层每隔2.5m及易产生变形开裂部位设分格缝,分格缝宽为10mm,缝内嵌填密封材料。
若屋面女儿墙施工缝留设在屋面结构处,则女儿墙根部必须打凿、清理、冲洗完毕后方可进行女儿墙混凝土浇筑,确保女儿墙根部无侧向渗漏。
泛水
泛水部位卷材铺贴前,应先进行试铺,将立面卷材长度留足,先铺贴平面卷材至转角处,然后从下向上铺贴立面卷材。如先铺立面卷材,由于卷材自重作用,立面卷材张拉过紧,使用过程易产生翘边、空鼓、脱落等现象。做法参照15ZJ201-13-1。

图5.2-1 泛水做法示意图
女儿墙泛水处的防水层下应增设附加层,附加层在平面和立面的宽度均不应小于250mm。
天沟
天沟的详细定位详见1#~5#楼五栋单体的屋面平面图,做法参照15ZJ201-14-2。

图5.3-1 天沟做法示意图
屋面出入口
1#~5#楼以及1S#~3S#商铺屋面出入口做法参照图集15ZJ201-37-1。如下所示:

图5.4-1 出入口做法示意图一
4#楼部分出入口做法参照图集15ZJ201-37-2。如下所示:

图5.4-2 出入口做法示意图二

图5.4-3 出入口做法细部大样
雨水口
本工程使用的雨水口有两种,65型雨水口和横式水落口,大屋面做法采用65型雨水口,参照图集15ZJ201-20-1;机房等不上人结构处采用横式水落口,参照图集15ZJ201-22-1及15ZJ201-22-2。细部做法见下图。
雨水口做法参照图集15ZJ201-20-1,如下所示:

图5.5-1 65型雨水口做法示意图

图5.5-2 雨水口做法示意图一

图5.5-3 雨水口做法示意图一
水簸箕
为防止机房层、出屋面结构层雨水直接排入大屋面,导致大屋面长期被雨水冲刷破坏,在大屋面上出屋面结构落水管下设置水簸箕,做法参照15ZJ201-18-C。
图5.6-1 水簸箕做法示意图
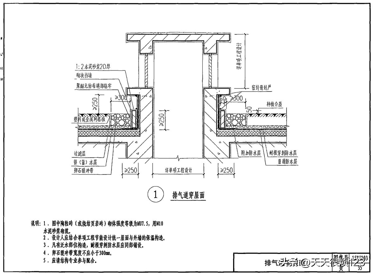
排气道穿屋面
排气道穿屋面做法参照图集15ZJ203-35-1,如下所示:

图5.7-1 排气道穿屋面做法示意图
排汽道及排汽孔
在缝隙内铺设A50mmPVC管作为排汽道,排汽道侧面按照间距200mm打孔。排汽道应纵横贯通,不得堵塞。在排汽管纵横交接处设置与大气连通的排汽孔,排汽孔采用A50mmPVC管,与大气连接的一端设置弯头避免雨水进入,做法参照图集15ZJ201-27-3,节点做法如下图。
图5.8-1 排汽道做法示意图

图5.8-2 排汽管做法示意图
排汽孔设置时应带通线控制定位,保证纵横通线,并控制管道垂直度,避免影响屋面工程外观效果。排汽道及排汽孔安装完成后,采用大粒径碎石将分隔缝填实,并对排汽孔采取固定措施,避免在后续施工中被碰撞变形。
分隔缝
在找坡层设置分格缝,纵横分隔缝间间距不大于6m,具体根据屋面排砖进行控制,分格缝宽度为20mm,分格缝位置除了与保温层排气道相对应外,在女儿墙、出屋面结构等阴角处,还需专门设置分隔缝,避免刚性保护层开裂。
质量保证措施
质量保证措施
1)所有进场物资必须有合格的材质证明、出厂合格证和试验报告。材料的品种、规格、性能等应符合设计和产品标准的要求,做好进场检验工作,该复试的材料及时取样复试,不合格的材料,不得在屋面工程中使用。
2)施工中严格实行“三检制”,做到检查上道工序,保证本道工序,服务下道工序,真正做到严格控制工序质量,不合格的工序不移交。
3)质检人员必须严格控制施工过程中的质量,在施工过程中严格把关,不得隐瞒施工中的质量问题,并督促操作者及时整改。
4)屋面工程施工的每道工序完成后,应经监理或建设单位检查验收,并应在合格后再进行下道工序的施工。当下道工序或相邻工程施工时,应对已完成的部分采取保护措施。
5)应注意的质量问题
(1)应认真做好屋面结构基层清理工作,不得有明显凸起。
(2)倒泛水:施工中及时拉线检查找坡情况,不合要求的要立即整改。
(3)防水层渗漏:细部位置应认真操作,铺贴附加层时,应使附加层紧贴到位,封严、压实,不得有翘边等现象。
(4)接头处卷材搭接不良:接头搭接形式以及长边、短边的搭接宽度偏小,接头处的粘结不密实、空鼓、接槎损坏;操作应按程序、弹标准线,使与卷材规格相符,施工中齐线铺贴,使卷材搭接长度不小于100mm。
(5)空鼓:铺贴卷材的基层潮湿,不平整、不洁净,易产生基层与卷材间空鼓;卷材铺设空气排除不彻底,也可使卷材间空鼓。注意施工时基层应充分干燥,卷材铺设层间不能窝住空气。刮大风时不宜施工,因在凉胶时易粘上砂尘而造成空鼓。
(6)转角处渗漏水:转角处不易操作,面积较大。施工时注意留槎位置,保护好留槎卷材,使搭接满足规定的宽度。
6)运上层面的材料,应平均分散堆放,随用随运,不得集中堆放。
质量检验资料
1)防水工程试水检查记录。
2)防水材料出产品合格证、性能检测报告、试验报告。
3)保温材料产品合格证、性能检测报告、试验报告。
4)防水工程隐蔽记录、保温工程隐蔽验收记录、找坡层隐蔽验收记录、刚性保护层隐蔽验收记录、烟道隐蔽验收记录。
5)建筑烟道检查记录。
6)相关检验批分部分项工程验收记录。
成品保护
1)材料按规定的位置堆放,堆放应整齐;每项工序施工时,均应做到工完场清。
2)抹好的找平层上,推小车运输时,应注意防止破坏找平层表面。
3)找坡、找平、保护层、施工完毕,未达到一定强度时不得上人踩踏,推小车运输时,应先铺脚手板车道,以免损坏面层。
4)内排水口、通风口、雨水口施工过程中,应采取临时措施封口中,防止杂物进入堵塞。
5)铺贴好的卷材防水层,应进行保护,严禁在防水层上进行施工作业及运输。
6)施工屋面运送材料的手推车支脚应用麻布包扎,不得在屋面上堆重物,防止将已做好的面层损坏。
7)屋面各构造层应及时进行施工,特别是保护层应与防水层连续施工,以保证防水层不被破坏。
8)排汽帽、通过屋面防水层的管道,在施工中和完工后,要保护好,不得堵塞和损坏变位。穿过屋面防水层的管道,在施工中与完工后不得损坏变位。
安全保证措施
安全管理方针
安全管理方针是“安全第一、预防为主”。
安全组织保证体系
建立健全安全生产管理机构,成立以项目经理为组长的安全生产领导小组,全面负责并领导本项目的安全生产工作。小组成员名单如下:
项目经理为第一安全责任人,常务副经理、安全总监、生产经理、技术负责人为直接安全责任人,并相应成立砌体施工管理领导小组。
组 长:
副组长:
组 员:现场管理人员及各队伍负责人
图7.2-1 安全组织体系图
安全管理制度
1)安全技术交底制:根据安全措施要求和现场实际情况,各级管理人员需亲自逐级进行书面交底。
2)班前检查制:区域责任工程师和专业监理工程师必须督促与检查施工方、专业分公司对安全防护措施是否进行了检查。
3)安全活动制,经理部每周要组织全体工人进行安全教育,对上一周安全方面存在的问题进行总结,对本周的安全重点和注意事项作必要的交底,使广大工人能心中有数,从意识上时刻注意安全。
4)定期检查与隐患整改制:经理部每周要组织一次安全生产检查,对查出的安全隐患必须定措施、定时间、定人员整改,并作好安全隐患整改消项记录。
5)管理人员和特种作业人员实行年审制,每年由公司统一组织进行,加强施工管理人员的安全考核,增强安全意识,避免违章指挥。
6)实行安全生产奖罚制与事故报告制。
7)危急情况停工制;一旦出现危及职工生命财产安全险情,要立即停工,同时即刻报告公司,及时采取措施排除险情。
8)持证上岗制;特殊工种必需持有上岗操作证,严禁无证操作。
安全管理工作
1)项目经理部负责整个现场的安全生产工作,严格遵照施工组织设计和施工技术措施规定的有关安全措施组织施工。
2)项目部要检查分包方、专业分公司,认真做好分部分项工程安全技术书面交底工作,被交底人要签字认可。
3)在施工过程中对薄弱部位、环节要予以重点控制,从设备进场检验、安装及日常操作要严加控制与监督。凡设备性能不符全安全要求的一律不准使用。
4)对安全生产设施进行必要的、合理的投入。重要劳动防护用品必须购买定点厂家的认定产品。
5)分析安全难点,确定安全管理难点。在每个大的施工阶段开始之前,分析该阶段的施工条件、施工特点、施工方法,预测施工安全难点和事故隐患,确定管理点和预控措施。
6)制订施工现场安全防护基本标准,如:施工临时用电安全防护标准;各类施工机械和设备的安全防护标准;施工现场消防工作管理标准等。
安全技术措施
1)操作前现场管理人员必须向操作班组进行安全交底。
2)正确佩带和使用个人防护用品;自粘防水卷材及胶粘剂均有毒素,操作人员必须佩戴口罩、手套、工作服等劳保用品;吃饭、喝水、抽烟前必须洗手。
3)库房及施工保温层时,严禁吸烟和使用明火,并配备消防器材和灭火设施。
4)高处作业屋面的周围边沿和预留孔洞处,必须按洞口临边防护要求进行安全防护,设置安全护栏和安全网,洞口采用预留钢筋加盖板。
5)合理布置搅拌机、材料仓库、材料堆场等,不得随意更改,造成混乱。现场道路及排水必须保持畅通,保证物资、车辆的顺利进出场。
6)防水卷材铺贴时,应配置灭火器,保证操作不当导致着火时能及时扑灭。
7)工完场清,所用的各种材料、边角余料应集中堆放,避免材料飞扬。
8)严禁在雨天、雪天和五级风及其以上时施工。
9)屋面坡度大于30%时,应采取防滑措施。
10)施工人员应穿防滑鞋,特殊情况下无可靠安全措施时,操作人员必须系好安全带并扣好保险钩。