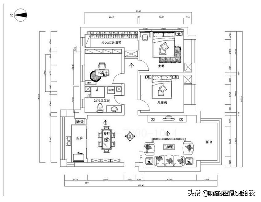
这套房子是美女姐姐在2016年已投资购买的,西安龙湖香醍璟宸 面积142.0平米,
一开始是想着卖掉的,但是看到西安近几年的发展她最后打算留在西安,所以在2018年时通过朋友的介绍她找了一家施工工艺和装修品质都很强的装修公司,西安今朝装饰。
【坐标:西安】
【楼宇名称:西安龙湖香醍璟宸】
【面积:142.0平】
【户型:四室二厅二卫】
【装修风格: 现代简约风格】
【设计公司:北京今朝装饰浐灞部】
【施工方式:半包施工】+主材代购
【施工单位:北京今朝装饰西安部】
【施工工期:75天】





非常感谢点击阅读,如果喜欢欢迎收藏转发,评论,有装修需求的欢迎点击报名
喜欢本案例的可以联系我,更多案例可以关注【半暖空间QQ496773121】微博
