

▼
两人两喵孙先生家,96平,混搭复式....
(下文来自业主自诉)
房子是从14年春天就开始装修了,我主要参与设计环节和部分建材家具的选购,具体施工都是孙先生在盯,但由于两人一直都很忙,只有利用周末时间装修,导致工期严重拖后,断断续续到15年6月才装完。其实,如果计划好工期,满打满算3个月就可以竣工的,我们这就算是典型的反面教材啦,晒家之后我也会讲一下拖延工期的原因和装修后的血泪教训~
基本信息
楼盘:大兴区首邑溪谷
面积:使用面积约96平
户型:两居复式
装修:半包
花费:原始毛坯房,装修后算上家电器共30多万(完全没记账...)
设计:我和孙先生
风格:清水未遂的混搭风
入住:2015年7月底

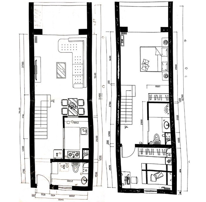
户型图,左为一楼,后来把厨房的墙壁打掉成了开放式厨房,右为二楼
关于装修风格
开始我们一致认同轻装修重装饰,想要最简洁的设计,于是自己上网找效果图参考,从实用简洁的日式风格,到设计感较强的北欧,再到极简的清水风,最后装修完的效果似乎也成了所谓的“混搭风格”,也有说这叫“折中主义”。不多说,开始上图了,欢迎吐槽~!
1、玄关

进户后右手边依次是厕所和鞋柜,磨砂玻璃那扇推拉门里面是厕所,镜子那扇推拉门里面是鞋柜,之所以设置成一面镜子,一个是缓解玄关的狭窄,另外出门前照照镜子还是很有用的。请忽视大脏镜子...
2.客厅
客厅晚间照,白墙灰地的简约清水风随着各种物品的点缀,全然没了冷酷的调性。左侧是上二楼的楼梯,右侧是小餐桌和开放式厨房。

客厅进来后反面视角,看到进来的玄关、厨房、楼梯。

穿插一张未搬入前的照片,基础色调就是黑白灰。
客厅白天照,沙发是曲美家居的山水沙发,样子不太像传统的沙发,两个“山”靠垫可以随便挪动。西门子金属门大冰箱。纯白茶几和羊毛地毯都是宜家的,地毯长草快一年,后来还是狠心埋下,每天都是席地而坐,非常随性。黄色MUJI懒骨头本想放在二楼阳台阳台看书,但由于坐着看电视太爽,就改放一楼客厅了。
客厅一些细节照
沙发旁的绿植,天堂鸟

电视柜是宜家的小柜子联排买了6个,装满了漫画书和小说,还有孙同学的模型和玩具,他娘家还有一柜子,日后考虑买个展示柜存放。
我很喜欢鲸鱼,电视柜上的鲸鱼书挡,和一张结婚时的拍立得。
茶几四角是小熊护角
法国设计师Serge Mouille的吊灯,可以调节三个灯头的方向,直接打到天花板,灯光通过漫反射回来照亮室内,光线更柔儿,而且眼睛不会直视到灯泡,比较舒服。
电视是索尼55寸的,目前为止,发现电视墙后面至少需要一个8位的插线板,如果只是墙插肯定不够,为了不影响美观,聪明的把插线板藏在电视后面。
3.厨房

厨房是把原来户型的厨房和卫生间对调了,并打掉了墙壁才得到现在的开放式厨房。白色面板,不锈钢台面都很好打理,方太的灶台油烟机,好用。

一直担忧开放式厨房油烟味的问题,就在网上买了防火布帘,再从宜家买了滑轨。平时不怎么用,动火炒大菜的时候,还是可以挡味的。
4.餐桌

餐桌,通州木材厂定制的老榆木板,边缘有自然的弧度,表面有漂亮的木筋,很是喜欢。

全实木木墩子,又一个让人惊喜的手工定制品,本来想做床头柜放东西,但后来发现坐着特别好,就放在餐桌旁,可以坐着吃饭,也可以坐着看电视。

餐桌三连排水泥吊灯,喜欢水泥的质感。吊灯还间接隔开客厅和餐厅的空间。
5.楼梯

楼梯,比较中规中矩,比较喜欢的是玻璃扶板。请忽视杂乱的衣架和待处理的杂物大箱子。

上二楼后依然是玻璃护栏
上二楼后分别是主卧、卫生间(左侧推拉门)和次卧(关着门的),照片中还有结婚时的氦气气球,是不是掉下来一个就变成猫的好玩具。
6.卧室

开放式主卧,大蓝墙,定制全实木地板(榉木),宜家床和落地灯,小蛋空气净化器,遮光的窗帘还未安装...

不知道怎么想的开放式衣柜...哈哈,可能后续会安个柜门吧~

二楼的色彩莫名浓烈起来
7.卫生间

一楼卫生间,主要是洗衣服和日常清洁,洗衣机是西门子滚筒洗衣机,用着感觉很省水。

二楼卫生间,TOTO智能马桶,体验很好,喜欢预热马桶圈和冲洗功能,但是插座处还没处理好,电线比较凌乱。马桶上是AO史密斯的热水器。厕所比较小,相机没有广角所以拍不全,以后如果拍得更好一点来更图!
淋浴区科勒花洒,旋转式开关调节,简洁且不容易磕碰。
一家四口
而拥有这样一个小家的主人是两人两喵:

客厅沙发墙壁的小画,孙先生画我,简直是毕加索加奈良美智

我画孙先生

领养来的喵母子:蓝蓝(儿)
妹妹(妈)
虽然俩喵长得完全不一样,但是眼睛却是如出一辙的绿色,两位喵主子是我家的颜值担当,见到他俩是我每天回家最期盼的事情。
好物分享~
目前软装还有很多没有完成,次卧也还是一片荒蛮,但大致调性已定。下面来分享一点个人非常推荐的家居好物和小窍门吧。除了上文提到的MUJI懒骨头沙发外,还有这些:

象印水壶4L,一天24小时随时都有60度的温开水可以喝,不用烧水,不用弯腰接水,而且也不像饮水机那样占地,简直是居家必备。

卡通牙刷架,可爱又卫生。曾几何时被牙刷杯底部的污垢恶心到,后来水杯就没有了后来。

把手指丢进柜子里,从门缝往外拽,特别好用,还更干净一些,不会被水淋湿,发现这个小方法后就不打算买手纸架了。

绿植一定不能少,最好是大型绿植,天堂鸟、琴叶榕、无花果等等都很推荐。

扫地机器人,每次清扫都能扫出满满两盒垃圾(主要是尘土和猫毛),用了十几回,只有一次发现被桌腿绊住走不动需要救助,其他一切都很满意,我还说什么好呢,科技造福人类。
看来你们最关注的还是什么东西在哪买,好吧,我努力搜刮了记忆,列了一个比较简陋的list,不过有些价格还是想不起来了,有些价格可能不够准确,权当做个参考吧!
-
盼盼防盗门 价格不知道
-
TATA木门 3000左右
-
瓷砖 工厂店 六七十一平,一共9000左右
-
实木地板(木蜡油) 工厂店 200多一平
-
涂料 立邦具体型号不清楚
-
九牧水龙头 价格不知道
-
威尔登花洒 价格不知道
-
神州橱柜(非常不好,不推荐) 整套7000千左右
-
灶具烟机都是方太前两个,加起来9000左右
-
卫浴柜 牌子忘了 价格不知道
-
二楼马桶(智能马桶盖) TOTO TCF6431CS 6000左右
-
一楼马桶 小牌子 1000
-
热水器 A.O.史密斯 2000多
-
客厅 Serge Mouille的吊灯 3000
-
卧室 新特丽 吸顶灯 1300
-
餐桌水泥吊灯 800
-
宜家床头灯 400
-
宜家鞋柜 600
-
宜家床 杜肯 1849
-
宜家床垫 莫戈多 5000多
-
宜家衣柜 帕克斯 3000左右
-
宜家书柜 1200
-
宜家白色茶几 托特里 2000
-
宜家羊毛地毯 7000
-
曲美沙发 8000
-
无印良品懒骨头沙发 1200
-
淘宝窗帘 600左右
-
定制实木餐桌配宜家桌腿 1000多
-
冰箱西门子 5000左右
-
空调海尔 价格忘记了
-
洗衣机 西门子 5000多
-
空气净化器 小蛋 2688
这么一算,十二万已经出去了,终于知道钱都花在哪了.....

我家你们也看了,好物也分享了,下面也说说装修完的一些经验教训吧!
1、关于工期拖延:
橱柜定做要一个多月,我和孙先生去挑就挑了两三周,前前后后就两个月了,所以建议橱柜最好早定;
记住,先门后地板,门也要一个月左右的制作周期,所以如果门都还没定做,就不要瞎着急看什么木地板了;
灯太重要,灯具本身具有很强的装饰效果,灯光的设计能能直接影响家居氛围,而且灯真的很难挑,我家里里里外外十几盏灯具,愣是挑了一个多月;
另外就是和施工队的沟通效率和验收,最好找家里人可以随时去监工,最起码到了每个竣工环节可以马上去验收,否则就会拖延后面的工序。

关于下次再装修:
-
一定会装中央新风系统,不用开窗也有新鲜空气,可以阻挡蚊虫和灰尘,打扫更轻松,而且可以有效清除甲醛等污染物,空气净化器只能算亡羊补牢了,只是后悔当时年少无知;
-
洗衣机会放阳台,晾衣服方便很多。现在洗衣机到阳台要横穿整个家...
-
厨房设计要考虑得周全周全再周全,比如冰箱要靠近厨房。看似很普通的一个原则,我们就没做到,现在冰箱只能放在客厅的角落,拿东西什么的还是不方便;
-
嵌入式洗碗机和嵌入式烤箱,最好全部装上,这样才能更爱做饭!
-
餐桌最好靠近水槽,我家的餐桌和水槽只要一个转身,收拾碗筷什么的非常方便;
-
热水器最好离淋浴区近一些,减少热水管道的长度就不用每次洗澡前放很多凉水了;
-
重要的家具,如果预算充足的话就不要买宜家的了,虽然宜家的东西质量还不错,设计简洁,但骨子里没有味道,而且不结实不耐脏。
设计本:shejiben

创意美图|设计案例|装修知识|找设计师
获取装修设计报价,点击阅读原文!