
项目名称
湖南永州陈家新中式建筑群
图纸编号
1158
建筑面积
840.5㎡
占地面积
345.8㎡
建筑尺寸
39.4m×32.7m
建筑结构
框架(主体)+ 砖混(其他)结构
参考造价
100~120万元(不含室内装修费用)
项目概况

总平面示意图(左上角为北)

项目场地
项目简介:
业主在项目前期表明其中有一栋是亲戚家居住,考虑到后期部分做为民宿,餐馆使用,设计师通过场地情况,并结合业主的需求和喜好将项目形式确定为东北 - 西南的三层新中式风格建筑群。
平面布局
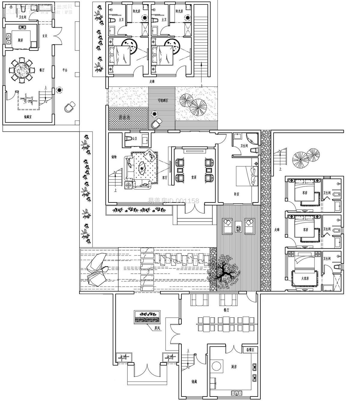
户型概况:
3层 / 15室 1堂室 2厅 18卫 5厨 5储藏 2衣帽间 2洗衣 1娱乐室 2KTV包厢 2阳台 3露台 2阳光房 1游泳池

一层平面图(左上角为北)
一层主体以娱乐待客为主,北楼一层以餐厨空间为主,向外延伸出独立的室外休息平台。东北侧别墅一层以两间套房搭配阳光房使用。
西南侧预留餐厨空间和西侧的院门玄关,以屏风分流,通过内庭院进入中部建筑,此栋以自家居住为主,设置堂屋和长辈房,搭配向外延伸出独立的室外休息平台。

二层平面图(左上角为北)
二层主要是居家休闲,北楼二层以主卧搭配独卫和衣帽间,搭配厨房、客厅、洗衣和阳台功能布局。东北侧别墅二层和一层基本相同,均以两客房使用。东南侧一层和二层相同,每层设三间卧室。西南侧二层预留双KTV包间和露台,增加居住者的用户体验。
中部建筑,西侧设阳台和餐厨空间,东南侧卧室搭配独卫和露台,以提升室内的采光效果。

三层平面图(左上角为北)
三层主要是娱乐休闲,中部建筑在三层设计上,预留大面积露台,并设置娱乐空间,向外延伸到东南侧平屋顶上的露台空间,提升室内的采光效果。
造型设计

建筑整体为新中式风格,搭配青砖灰瓦,让建筑显得更加稳重。

东北侧的开阔露台空间给日常休闲提供了更多功能选择,露台烧烤聚会、节日篝火舞会……这片屋顶平台,不会因为缺少活动空间而感到烦恼。

设计师通过各个立面的大面积开窗,充分确保了室内每个房间都能具有良好的采光。


庭院通过月亮门分为两个部分,左侧空间相对私密,作为游泳休闲的场所。

东南立面图

西北立面图

西南立面图

东北立面图