漫步巴黎161平三居室装修方案效果图-哈尔滨实创装饰装修公司
业主是事业单位的领导,因为想把父母接到家里来一同居住,所以购买的本套房子。房子是五口人居住的,喜欢简欧风格,希望整体的装修设计可以稳重一点,略带一些小奢华就可以。

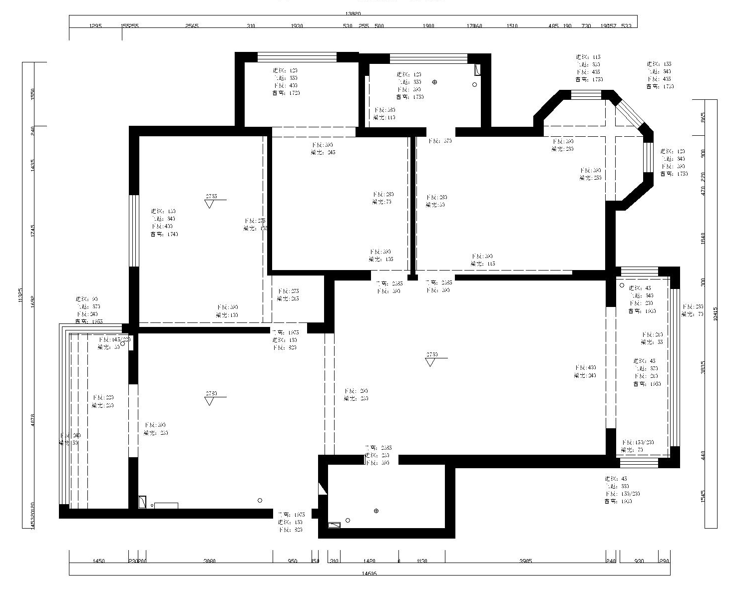
本案定位为简欧风格,其实是经过改良的古典欧式主义风格,走简约路线,简欧风格从简单到繁杂、从整体到局部,精雕细琢,镶花刻金都给人一丝不苟的印象。入户门正对次卧室的门是业主之前一直比较头疼的也是设计师首先需要解决的问题,其次入户挂衣间的设计也是业主需要解决的,设计师在设计时将原次卧室的空间缩小,将原本利用率不高的次卧进门处设置隔断作为入户玄关解决入户门正对次卧门的问题。
施工单位:哈尔滨实创装饰
小区名称:漫步巴黎
建筑面积:161平
房屋结构:三室两厅两卫
设计风格:简欧风格
所属套系:实创装饰“理想装”套餐
工程总造价:142912元

漫步巴黎三室两厅两卫装修设计方案-哈尔滨实创装饰装修公司

漫步巴黎三室两厅两卫装修设计方案-哈尔滨实创装饰装修公司

漫步巴黎三室两厅两卫装修设计方案-哈尔滨实创装饰装修公司

漫步巴黎三室两厅两卫装修设计方案-哈尔滨实创装饰装修公司

漫步巴黎三室两厅两卫装修设计方案-哈尔滨实创装饰装修公司

漫步巴黎三室两厅两卫装修设计方案-哈尔滨实创装饰装修公司

漫步巴黎三室两厅两卫装修设计方案-哈尔滨实创装饰装修公司

漫步巴黎三室两厅两卫装修设计方案-哈尔滨实创装饰装修公司

漫步巴黎三室两厅两卫装修设计方案-哈尔滨实创装饰装修公司
【速算装修报价、哈尔滨免费量房、出方案微信:hrbsc0451】