在你的眼里,什么样的宅邸才算得上是豪宅?有人觉得住在高楼大厦里,体会摩登生活,便是豪宅,也有人觉得一栋欧式别墅,便是豪宅。在我的眼里,大概只有“中式别墅”才称得上豪宅。
本期分享一套四川小伙的自建豪宅,双层中式别墅,里面的庭院幽深雅致,入户的第一刻,就被惊艳了。

自建双层中式别墅
▼宅基地情况及设计理念
本案是一套旧房拆除重建案例,坐标四川。原本是一套破旧的老宅,四川小伙@于先生,为了父母,准备重建这座老宅。
因为父母都是教师,对喜欢合院式的建筑。因此本案设计理念,定位为一个合院+中式风情的别墅,双层结构搭配幽幽庭院,显得特别有范。

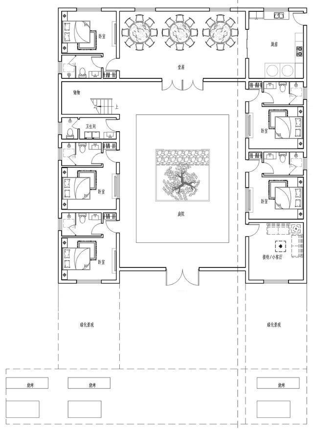
自建别墅一层平面图
▼一层平面布局
这是一座民宅,同时未来也考虑做成“民宿”来使用,因此在布局上足足布置了9个卧室空间,且每间卧室都配置了独立卫生间。
正房设置成堂屋,堂屋一旁则是厨房,这样的平面布局,让好客的四川人不仅可以招待亲朋好友,后期也能作为民宿来进行经营。

自建别墅二层平面图
▼二层平面布局
二层的平面布局上,显得更为简单,在正房位置加入了活动室和客厅设计,空间较大,让居住者拥有更优雅的居住体验。
同时西南角,还布置了一个户外露台,可以在这里晒晒太阳,打打牌搓搓麻将,别提多有乐趣了。

自建中式别墅 鸟瞰图
▼别墅效果图
别墅的外观形制设计上,以中式为风,白墙黛瓦为主元素,立面上以白色真石漆来打造,并且加入了仿青砖+青瓦的元素。
放眼望去,整栋别墅显得层次感十足,尤其是传统坡式屋顶的加入,还有露台和门楼的点缀,小小的别墅,拥有让人眼前一亮的魅力。

自建别墅 户外休闲区
▼户外休闲区
值得一提的是,为了营造舒适的居住氛围,不仅在门楼造景中,加入了抱鼓石、竹林和窗棂元素。
甚至在别墅外侧的大门处,还设置了一个户外休闲区,水景曼妙,假山巍峨,在潺潺的流水声中,景致如诗如画。

▼别墅入户门楼
别墅门楼的设计,以两组抱鼓石为主,搭配了飞檐翘角,同时两侧栽种了竹林,还未入户便拥有威严气派的既视感。


▼别墅露台
在西南角的位置,设计师打造了一个户外休闲露台,可以坐在这里搓麻将喝喝茶,惬意非凡。而对面则是一个阳光房,同样也是一个户外休闲区。

▼别墅庭院
而庭院的设计之中,加入了一组水池造景,搭配巍峨的假山,以及潺潺的流水声,池中锦鲤嬉戏,这样的氛围颇有一派自然之韵。

▼室内效果图

▼别墅玄关
在玄关的设计之中,设计师以金丝楠为主题,搭配了一组金丝楠条案和青花瓷器,两侧均是梅兰竹菊的山水画元素,入户就有一派中式诗意之雅。

▼别墅客厅
客厅的设计之中,为了凸显中式别墅的古典之美,加入了红木整装设计,并且融合了雕梁画栋的元素,如中式沙发以及雕花等元素,都让客厅更显大气之感。


▼别墅扶手
在扶手的设计之中,同样融合了匠师级的雕工设计,再搭配内嵌式的灯带和吊灯设计,让整个家拥有了金碧辉煌的既视感。

▼别墅茶室
茶室空间的设计之中,以中式官帽椅+茶桌为主,并且搭配了一组《山林锦鸡山水画》,营造了惬意清隽的用茶氛围。

▼别墅餐厅
而餐厅的设计之中,最让人惊艳的便是餐灯与圆形餐桌的完美融合。并且与茶室之间,以一组博古架式的隔断为主,营造了一气呵成的空间感。

不得不说,四川人的品味可谓超群,将老宅*翻推**再重建一座别墅的操作,也让人羡慕不已。
尤其是里面庭院幽深的合院生活,让如诗如画,或许这才是现代人追求的诗和远方。