济南雪山(北)-将山片区是济南东部城区近几年新崛起的大型片区之一,经过多年建设,目前世纪大道以北,凤鸣路-韩仓河周边的区域已经高楼林立,住宅区遍布。接下来这一片区内将集中建设完善一部分公共基础设施,方便人们的生活

济南雪山(北)-将山片区公共服务设施地块布局
根据济南市自然资源和规划局最新公布的建筑工程公示信息显示,雪山(北)-将山片区将有5个公共基础设施地块将要建设,其中:
地块A位于凤鸣路和将山北街交叉口西侧,占地3095平方米,将建设1栋主体4层局部5层建筑,作为周边社区的卫生服务中心使用


地块B位于将山北街和龙骨山路交叉口西侧,占地20102平方米,将建设3栋5层建筑和1栋8层建筑,其中最西侧5层建筑作为社区全民健身中心和综合文化站使用,其余3栋建筑作为其他综合服务用房使用


地块C位于凤鸣路东侧、将山南街南侧,占地19610平方米,将建设三角形连体建筑组合,其中多为4-5层建筑以及地块最东侧的11层建筑,将用于设置社区全民健身中心、社区综合文化站以及其他综合服务用房


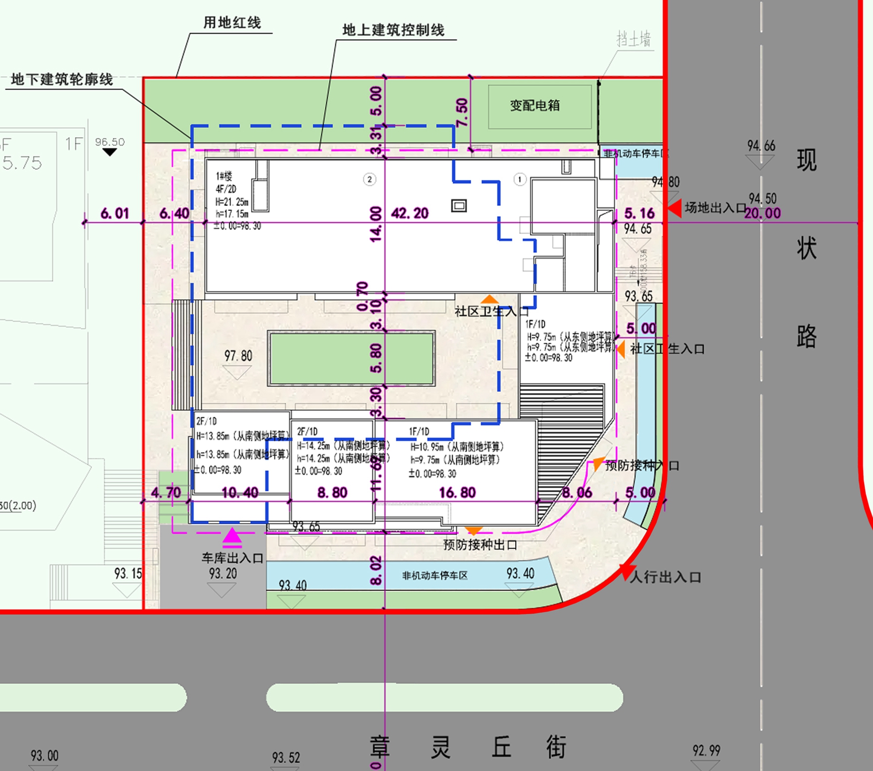
地块D位于凤鸣路东侧、章灵丘街北侧雪山万科城地块内,占地2903平方米,将建设1栋2层-4层连体建筑,作为周边社区的卫生服务中心使用


地块E位于章灵丘街和凤礼路交叉口处,雪山合苑西侧,占地20266平方米,将建设1栋包含12层建筑的“倒U型”连体建筑和1栋7层、1栋5层、1栋4层独立建筑,均作为文化用途设施使用。

