
上海老建筑,黄埔江景,繁华的街道,旧时东西方文化与经济的交汇,现代文明的新面貌,这片热土以一直以来的开放度,时刻迎接着更年轻有力量的文化注入。顶楼MagicRoof酒吧,便是近期外滩C位上的一处新据点,超600㎡迷宫花园露台,360°视野远眺江景,爱丽丝梦游仙境沉浸式梦幻秘境及充满故事性的菜品体验,这些关于MagicRoof的评价,都会让你不禁想去一探究竟。


顶楼MagicRoof酒吧位于人民路386号花间堂·愉园酒店15层,独揽酒店顶层空中花园,俯瞰陆家嘴、豫园美景。SWS Group 作为项目背后的设计团队,基于业主注重主题体验的诉求,我们以叙事性的设计方式呈现了一个以“爱丽丝梦游仙境”为主题的沉浸式空间。最终,让抵达酒吧的人都拥有一场属于自己的梦境体验。该项目入选了今年意大利 The Plan Award 设计大奖。


上海外滩花间堂·愉园酒店入口 图片来源网络
上海首家城市花间堂酒店:
这场魔幻旅程的必经之地
在到达MagicRoof酒吧前,你将必经花间堂·愉园酒店这扇古铜色的大门。花间堂·愉园酒店是上海首家城市花间堂,酒店前身为建于二十世纪下半叶的上海外滩商厦。进入酒店,仿佛已经进入了另一个时空,搭乘电梯直上云霄,才能抵达15层的MagicRoof酒吧。酒店的这道门,也成为了MagicRoof奇妙旅程的必经之地。






MagicRoof 室内空间:
坐享一线江景 开启美食奇遇
MagicRoof的室内空间涵盖了吧台、客座区、包间、ktv等不同功能区,同时,也围绕着一圈纵览景观的室外区。空间的整体规划兼顾了安静与热闹,私密与共享,也更注重整体客座区的灵活性,可接待人数也较有弹性。


金属“扑克牌”天花将每一个扑克牌以波浪的线条有序地铺在天花上,每一个扑克牌都需沿着设计好的弧度,一片片手工吊起,这样的吊顶设计大大改善了原本室内空间层高较低的现实,形成强烈的空间符号,也延伸了空间的视觉感。


吧台区的酒架背景设计,呈现网格的整体结构,结合变色灯光和金属镜面,增强视觉的层次与光感,对于围坐吧台的客人而言也能带来较好的体验。

吧台酒柜、包厢酒柜、钢筋台阶,反射镜与网格构造的元素带来无限延伸的视觉效果,弱化空间边界感。



“You 're nothing but a pack of cards!” 当爱丽丝在法庭上和红心女王争论应该先裁决还是先审判的时候,发觉自己恢复到了正常大小,于是就叫了起来:“你不过是一堆扑克牌而已!” 也许这句话提醒着你,多喝一杯才能发现事情的真相。


图片来源Pop Shanghai
已正式对外营业的MagicRoof在菜品与酒水上都有着十足的创意,同时,扑克牌卫士,魔术表演等互动体验也会是旅程中的必要环节,充满故事的鸡尾酒菜单也让你不禁想要挨个尝试。







客座区均享无敌景观位,在白天与夜晚的不同光线下,丛林壁纸的色彩、无限反射的金属镜面与斑斓的电光交织,影影绰绰,亦真亦幻。墙壁上的 "How late it's getting!"提示着你,再不动起来就要迟了,"Curiouserand curiouser." 这里还有更多扇门等着你打开。



KTV包厢为After party提供了一个非常便利的选择,延续了梦游仙境的气氛与光感的塑造,"We are all mad here."就像一句恰到好处的提示,就像爱丽丝在梦境里遇到了疯帽匠,你也应该跟随着梦境走到深处,尽情狂欢。




MagicRoof 室外区:
登上魔幻天梯去冒险


连接一层与二层的台阶,由全定制的钢结构组成,配合灯带的嵌入,让这座“魔幻天梯”在夜色中如梦如幻,指引着你踏上台阶去冒险。




在设计这个不规则造型的钢筋楼梯时,为了创造它迷幻、交错的复杂的视觉,施工团队需要根据我们画的3D模型在现场一边参照指导一边制作,最终呈现一个无法复制的“灯光装置”。



室外的景观设计以主题装置的形式呈现,发光的扑克牌符号,Wrong way路牌,隐藏在不经意处的镜面设计,在魔幻的气氛中感受一丝丝微醺。



“
掉进了兔子洞
Down the Rabbit Hole



MagicRoof 顶层 植物迷宫
MagicRoof 顶层迷宫花园:
360°露台酒吧 人宠友好游乐园
之所以MagicRoof以“外滩C位360°露台酒吧”得名,因其有着一个无法复制的全室外露台区域,由迷宫花园、宠物区、休闲区构成。在夜幕降临前,MagicRoof的顶层仿若一片独立的游乐园,你可以带着宠物来这里纵览黄浦江畔的日景,享用佳肴,时刻迎接一场夜晚的露台派对。在《爱丽丝梦游仙境》中,Alice 跟随一只粉红眼睛的白兔,跳进了矮树下的大洞,她的奇幻之旅从掉进兔子洞的那一刻开始了。



在这里,宠物是旅程的重要伴侣。在迷宫附近,属于这个地盘的宠物队伍悠闲地趴在宠物区等你探望,或者它们其实正在你脚下顽皮地穿梭。"Which Way Are You Going?" 迷宫里有很多小动物,柴郡猫说道“你要走哪条路呀?”

宠物通道
宠物通道的设计暗藏玄机,宠物通道连接室内室外,露出地面的一段透明的管道,你可以看到动物如何从你脚下经过,在独立的宠物区欢快游玩。

宠物通道轴测图
“
走进迷宫仙境
Maze Garden


跟随着"Follow the rabit!"的指示,钻进植物迷宫,夜晚的迷宫散发着通往未知的吸引力,路转峰回,从迷宫走出,你会发现夜晚的露台和白天的观感大不相同,这座城市的华灯初上,繁华如梦,都在这一刻展现。


露台上的休闲客座区也沿着景观面,遍布于观景的最优视角。上海的夜色就像一场梦游仙境,绚烂无比,扑朔迷离,MagicRoof 便是一场梦境的“入口”,等着你一跃而上。

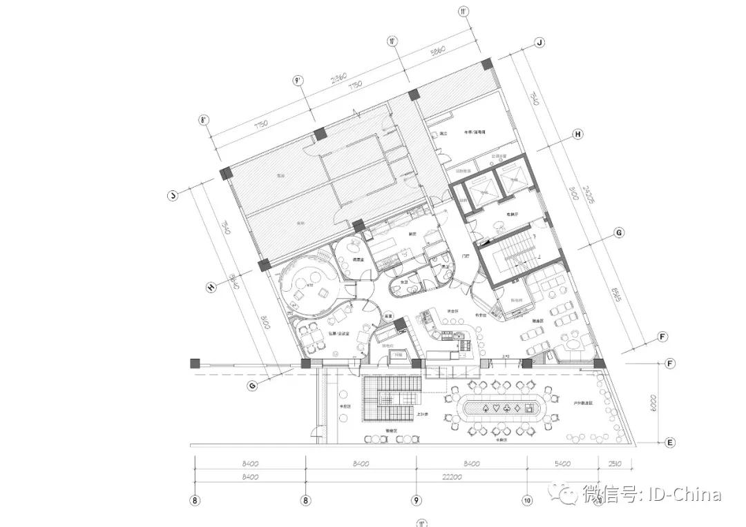
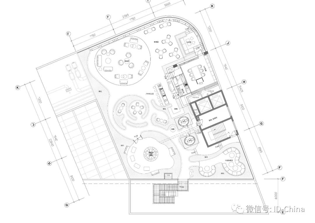
平面图

1F
