随着生活简单化,现如今很多人在装修时,都开始拒绝过度装修了。不做复杂的吊顶造型,不做繁复的色彩搭配,以最简洁最自然的方式设计新家,营造出最舒适的居住氛围感。
像本期带来的这套案例,屋主就十分注重空间的氛围感,以及实用性。因此,为了让空间更有家的归属感,就做了大量的“去繁就简”处理。而从完工后的效果来看,骨子里都透着一抹简约干净的气息,真的太让人羡慕了。
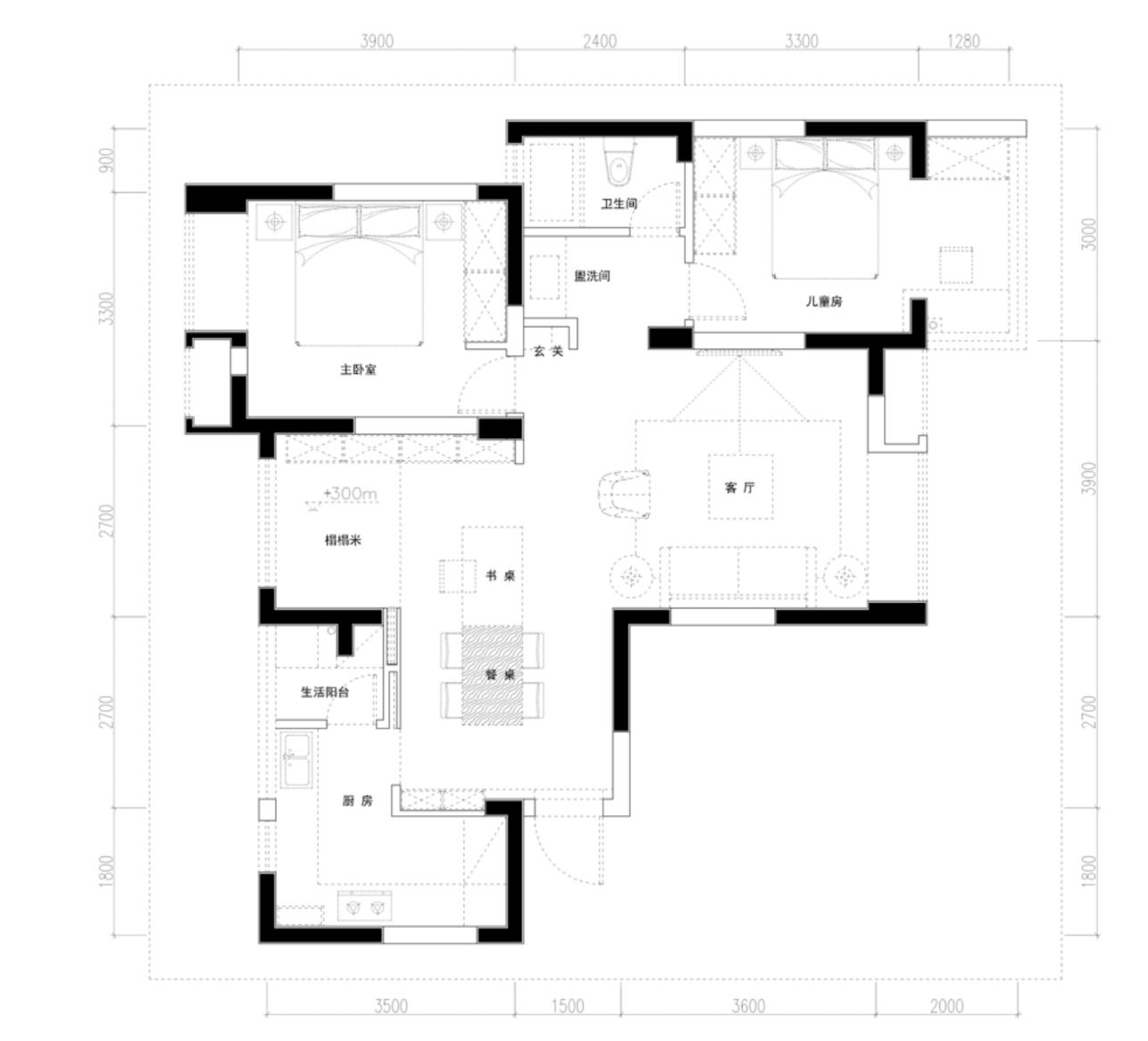
平面结构图

本案坐标成都,面积90㎡,屋主一家三口。原户型虽说是三居室的格局,但每块空间都比较拥挤,甚至还出现了次卧室比主卧室大这种十分少见的情况。再结合屋主不需要三个房间,所以在布局空间时,也对空间功能进行了重组,从而让居住空间更加舒适、实用。
平面方案图

结合屋主的需求,空间布局改造如下
1、北阳台纳入厨房,提升使用面积,并规划出一个家政区。
2、取消客房,提升客餐厅的面积,并延伸出一块休闲区。
3、卫生间做干湿分离,提高空间的使用率。
4、主卧室给孩子居住,并将外面的阳台改成学习区。
餐厅

入户即是餐厅,当厨房与阳台合并之后,则利用原厨房门洞空间,设计了一组内嵌式鞋柜。虽说这样一来,导致厨房的门洞仅能做到90公分宽,但在取消门板隔断后,却也让进出动线做到了舒适,丝毫不会拥挤。

取消原来的客房,除了空间感立马得到了释放之外,还让一张1.8米长的餐桌,实现了居中摆放。一来让家人有了舒适的用餐空间,二来搭配上侧面的书柜后,还兼具了办公、阅读、学习的功能性。同时,临窗设计的榻榻米休闲区,也让屋主在办公、饭后之余,有了一块惬意的小憩角落。

客厅

餐厅看向客厅视角,暖白色的墙面,温润的木地板,再增加少许的绿植,即便空间设计十分简单,但依然彰显出了治愈、温馨的气质。同时,在没有了客房之后,客餐厅也通透了许多,从而让生活互动更加方便。

客厅作为家里的主要互动区,在设计上做了“去繁就简”处理,从而让空间更加开阔、明亮。考虑到屋主对视听功能需求不高,直接给电视墙留白,并配置一组原木风格的电视柜。既兼具了小物品的收纳与展示功能,又弱化了留白的单调。

温柔的布艺沙发,小巧的圆几,以及碎花地毯配置,不仅在舒适中强化了空间的氛围感,也呼应了简洁、实用的空间主题。
当然,顶面的设计思路也是一样,拒绝当下流行的无主灯设计,并配置一盏极具时尚气息的小吊顶,也瞬间强化了空间温柔的属性。

无需过多的装饰,最自然的风景,就是最好的空间效果。同时,飘窗台的存在,也为空间延伸出了一块惬意的休闲区。
主卧室

为了让孩子有一块舒适的成长环境,次卧室改成了主卧,墙面延续外面暖白色的基调,再搭配上轻盈的原木家具,立马就营造出温暖、舒适的氛围感。同时,浅色的床品选择,又点缀出了一抹高级。

床头一侧恰到好处的小吊灯,以及少许的花枝,简洁又不失单调。
次卧室

主卧改成了女儿的房间,床头单独刷上脏粉色乳胶漆,再搭配上一张白色的铁艺床,立马就将少女的青春年轻展现无遗。同时,少量卡通元素的运用,又不失趣味性。

阳台在纳入室内之后,则是作为学习区来使用的,不过给地面铺上一块大地毯后,又让孩子有了一块充足的玩耍空间。

厨房

厨房在扩大之后,做了U型橱柜布局,最大化提升了空间的利用率,并在日常操作中做到了人性化。
原木色上柜,豆蔻绿下柜,以及经典的白色小墙砖,既在视觉上做到了简约、干净,又透露出了一丝小小复古的质感。

卫生间

卫生间做了常见的干湿分离布局,干区墙地面铺上统一的水磨石瓷砖,可以让空间更加整洁,并间接性起到了拓展空间感的作用。
内部由于浴室柜独立了出去,所以也满足了独立淋浴房的空间需求,让生活使用更加舒适。而马桶上方的加热式毛巾杆配置,也有效规避了潮湿问题,非常实用。

整个案例看下来,真的是完美诠释了实用、舒适的空间主题。虽说装修比较简单,但极其温暖、治愈的氛围,却也很好地弥补了空间的颜值表现。所以喜欢这种简约风的朋友,完全可以拿来参考。
图源:巨蛋空间