一、前言
处女座用流水账的形式把装修过程梳理一遍,记录一些有用没用的经验和教训,让更多的人对装修有个比较清晰的了解。文中尽量用干货代替套路,用数据代替感觉,不过毕竟不是专业出身,所言难免会有不妥之处,望各位值友轻喷。好了,言归正传,进入正题。图片文字不少,不想看过程的,可以直接拖到最后看清单。

二、收房、验房
验房只是瞎看看,没来及联系专业的验房师,所以这一段直接略过,大家不要学我。不过装修公司第一次上门说房子质量还不错,这倒是出乎意料。按照笔者所在城市的验房情况,有一家本地论坛的家装版块提供免费验房,部分装修公司也提供免费验房,不过即使验出问题也只能提交开发商维修,也是头疼。
三、选装修公司
以前家里的房子,交给散工,过程坎坷不必多说,同样周围也有N人告诫千万不要找装修公司,根本装不出效果图的样子,白花冤枉钱……但随着城市发展,装修公司的设计水平和工艺的提升也有目共睹,已经不再是以前让人提到就不屑的传统装修公司。建议多关注地方论坛的装修板块,选定几家还算满意的装修公司比价谈价。这个环节,尽量的往细处谈,了解装修公司的各种*规则潜**(我就没有合理避开一些默认规则)。文末会给大家推荐我装修前使用的装修报价预算计算器(免费的,装修前算一算很有帮助)
四、设计阶段
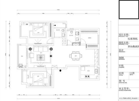
准备装修前,最关键的就是空间规划与风格设计!因为父母明确知道自己的需求,我们又比较喜欢琢磨折腾,所以在和设计师沟通之前已经有了大致的概念。但是设计师毕竟是专业出身,考虑问题比我们更全面更周到,也提出不少我们没想到的点。

大致思路是:
①利用隐形门将小小的电视背景墙扩大,同时拆除阳台客厅之间的移门,显得更通透
②沙发背景墙因为有强电箱而且不宜挪动,所以设计了三联画或者四联画加以装饰
③餐厅的墙体进行拆除,同时扩大厨房门洞,即增加了面积,又方便了使用
④两个卧室飘窗都进行了拆除,一个做书柜,一个做书桌,增加收纳功能
⑤因为父母只需要一个淋浴房,所以将其中一个卫生间墙体外移并做成纯干区

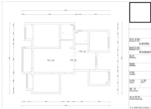
原始户型图

改造后户型图
设计师免费给出的装修效果图,我挺满意的!

客厅效果图

餐厅效果图


卧室效果图
五、开工砸墙

拆砸示意图



六、拆门装门
开发商原配的子母防火门,单扇开启小,质量差,干脆直接换掉。先后看了星月神、步阳和王力等牌子,斟酌了一下价格和款式,最终选了星月神一款,样式非常简洁,在好好住上搜,好像还是网红款。我们拿的标准尺寸205*96cm,让装修公司把原门洞按尺寸补砌,然后晾3天装新门。此处注意,承重侧(门轴侧)尽量使用原始墙体,保证强度。

原门

砌墙

新门
七、安装风管机
房子有4个设备平台,客厅选择了定频75风管机,主卧室选择变频一级能效35挂机,次卧选择定频三级能效35挂机。这样选是因为客厅、次卧不长开,没必要变频,储藏室两排柜子,不需要装空调。还有说法提到定频故障率低,不知到底是不是。

室内机
入户门装好就预约了第二天装风管机,一大早开始准备工作、室内机安装、铜管绑扎、室外机就位,最后是打好孔就可以直接连接排管了。其实这边空调外机位里设计还是挺变态的,打普通斜孔有个水管在外机位那里碍事,正常的办法是打两个直孔走明管,但是阳台不准备吊顶,管子漏在阳台天花板太丑,还好师傅是位高人,技术杠杠的,80块打了个60多厘米的超长斜孔,紧挨着水管出去,大写的服。

明管走法

斜管完美

不留痕迹

安装完做好保护
八、安装暖气管道
关于暖气,从体验上来说地暖舒适度优于暖气片,符合人体头凉脚暖的需要;而暖气片优点在制热快,效率高,即开即用,温度上升快。这套房子是家里第一次尝试暖气,因为层高仅有两米七,不太适合做地暖,所以选择了墙暖。在网上做了一些攻略,了解了锅炉、暖气片、管路、恒温阀等等产品信息。

安装位置
因为开工前期就要排管道,时间不太宽裕,在几家暖气商家中稍作比较,选了本地一个老牌商家,不过他家主打是阿里斯顿锅炉。配置是挂炉+暖气片+温控+管材,具体效果好不好,还是得等入住才知道。客厅暖气片一开始选的瘦高型,后来考虑到不太美观,而且散热没有宽扁型的好,改成1800*600藏在沙发后面,餐厅暖气片也是大号的。厨房地方较小,于是把分水器安在了客厅的酒柜内

地面开槽

墙面开槽
九、水电交底
父母不需要安装投影、音响,不需过多的智能家居,收房前早早的就沟通好了初步的插座开关布置方案。既考虑实用,又考虑美观。和设计师接触后,在他操刀下,从他的专业角度出发,结合我们的实际需求,强强联合,确定了最终的水电方案。

卫生间下水管移位
开发商设计的马桶位置在卫生间门口,且正对入户门,大家一致认为必须要挪,考虑到移位器后期可能发生的各种问题,找到楼下征得同意后直接重新开孔改管道。同时,插座布局也在设计师的初稿上做了10处更改

插座更改
刚才在文中提到的装修预算报价计算器只需
点击下方“了解更多”即可免费获得,据说是由大数据生成的,反正是免费的算一算心里有底,挺好的。
↓↓↓↓↓