
南侧
开年正是建房的好时节,很多人都开始回家张罗建房的事宜,在农村建一栋什么样式的别墅才能不落俗套了,新中式风格的别墅无疑是一个不错的选择,今天带来一款两层新中式风格别墅,希望大家能喜欢。

侧面
别墅开间17米,进深18米,房屋地下一层,地上两层,主体采用框架结构。主体毛坯造价90万。室内6室4厅。

鸟瞰图
别墅外立面采用米色的外墙涂料,局部点缀深色的材质,搭配中式瓦屋面,整体色调清新洒脱,不拘一格。
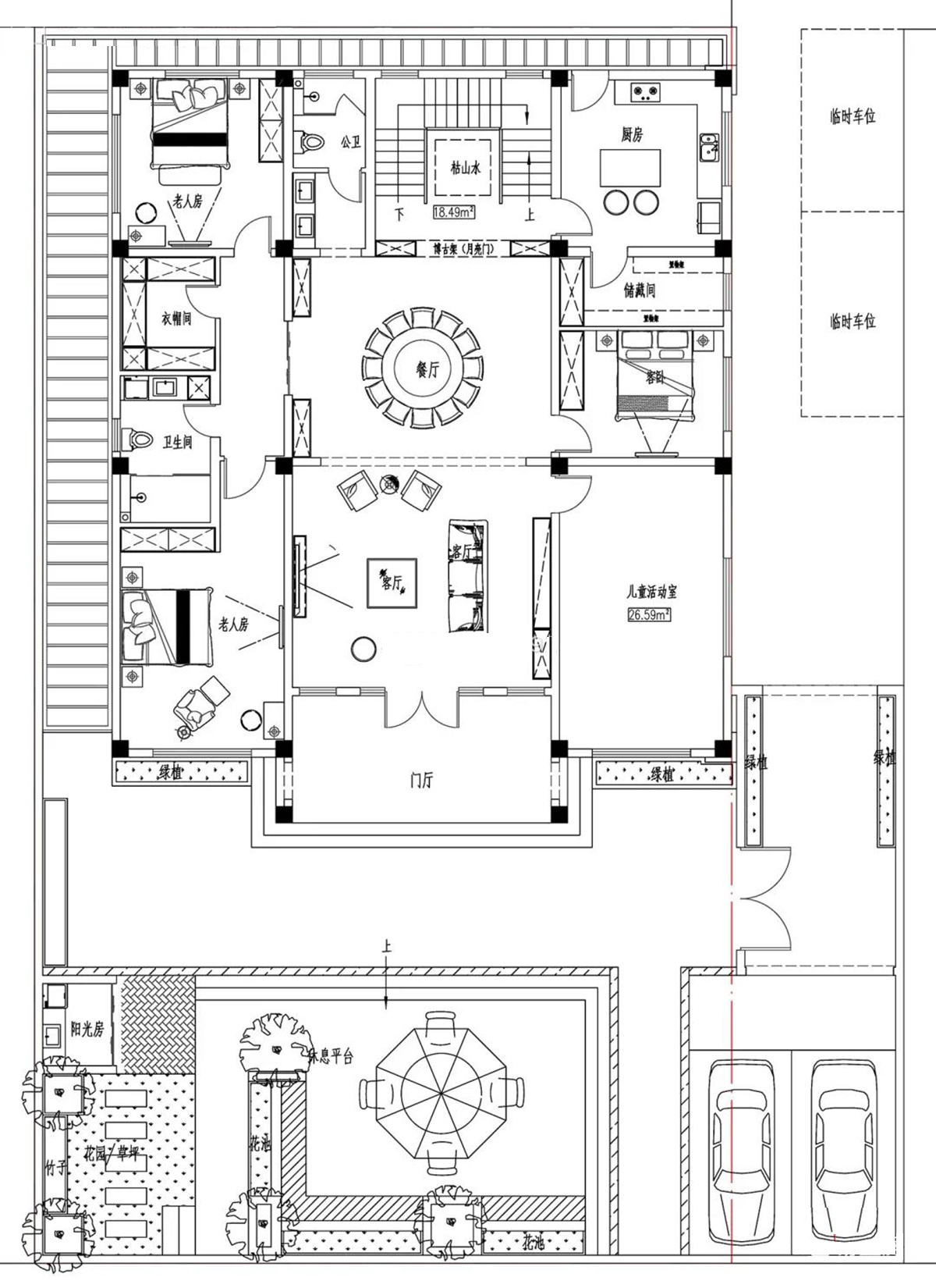
平面图:

地下室
别墅地下室西侧与北侧留有采光井,方便室内房间采光与通风。地下室主要是布置一些娱乐空间,布置一个家庭影音室,KTV,一个建房房,一个棋牌室,一个桌球室,一个练习室,一个红酒储藏区与品酒区。

一层平面
别墅一层东侧院门入内,东南角布置两个停车位,前院留有休闲娱乐空间,布置有休闲平台,绿植点缀,房屋入户是客厅空间,采用大面积落地窗,采光充足,老人房靠西南角。餐厅与客厅开放式布局,南北通透,东北侧布置厨房,对外有独立出入口。

二层平面
二层布置三个卧室,主卧朝南带独立卫生间与衣帽间,独立小书房。挑空客厅,南侧是活动阳台。

侧面