设计机构丨JORYA玖雅
设计师丨璟云
摄影师丨查苏
设计面积丨90㎡
房屋位置丨北京朝阳区力源里
户型丨2室2厅2卫
预算清单丨53w(硬装11.4w+主材26.9w+软装含家电4.5w+电器7.8W)
用极简的线条勾勒出最具灵性的空间。 Outline the most spiritual space with minimalist lines.
风格诠释 _ Style Definition

设计师丨 璟 云 工长丨 杨 林 监 理丨 高士琦 主材丨阿 征
撞色(对比强烈的色彩)是这个家的特色:客餐厅之间的红色墙与卧室床头的蓝色艺术漆。而黑色地面、灰色墙面,成为了很好的衬托。
大面积的素色整面材质,干净、整洁,精致的单品家具又带来了些许变化。比如客餐厅之间的矮柜,其门板由交错的木板拼接而成。

屋主是90后年轻夫妇。男业主喜欢骑行,女业主喜欢拍照和记录生活,还喜欢插花。他们的生活非常的富有情趣。
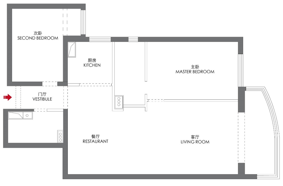
格局改造
Layout Optimization
原始测绘图 _ Original PLan

最终平面图 _ Final Floor PLan


通过墙体的调整,让户型更符合屋主的使用习惯。
实景展示
Space Exhibition
门厅 _ Entrance Hall

门厅是这个家给人的第一印象,也是最深刻的印象。规整、方正的空间加上黑白灰的主色调,让人自然联想到这家主人一定非常严谨、认真。
规整,得益于“借用”次卫空间,衣帽柜并没有占用过道,而是嵌入到墙体里;也正是规整,让大理石纹路的地砖,得以完美呈现。

厨房推拉门和玄关桌,都是框架的、线形的,给门厅带来轻盈感。

推拉门采用了谷仓门的形式:外挂的轨道和裸露的滑轮,又多了几分工业感。相较于平开门,推拉门不用考虑门向左或向右打开而影响橱柜的布局,但也有不可避免的问题,那就是密封性不如平开门,油烟容易溢出。
厨房 _ Kitchen

厨房做了高低台面,烹饪区是常规尺寸85公分高,操作区加高5公分。厨房门居中,橱柜得以“U”型布置,利用率大大提升,而且还做了一组高柜,专门用来放电器(蒸烤箱)。
餐厅 _ Dining

门厅过后来到由餐边柜围合而成的餐厅区域。这种中西厨分离的布局样式,非常适合增进一家人的感情。


哑光灰色的柜体,柔和了深色地面与白色顶面之间的色差。小细腿的餐桌椅和灯具,可以很好得削弱柜体带来的厚重感。
餐厅是家庭成员之间联络感情的最佳场所。家人们围在餐桌,以最放松的状态获取食物时,是更愿意进行沟通和交流的。特别是配有西厨的餐厅,备餐的时间同时也是交流的时间。

这组西厨柜其实是多功能的,肩负了餐边柜、备餐台、电器柜的作用。靠近门厅的高柜内嵌了洗衣机,备餐的同时可以把脏衣服洗掉,家务动线更为高效。
将来,结束一天忙碌的工作后,一家人都会围在餐厅区域。夫妻二人忙着做饭洗衣,小孩在餐桌写作业,时不时得问询一天的经历和收获,其乐融融。
客厅 _ Living

客厅的主要功能是娱乐,观影。满墙的定制柜内嵌了一台巨幅电视。


灰色的墙面艺术漆是客厅非常耐看的点,在不同光线下呈现多样的色泽和变化,与沙发和地面也能自然的融合到一起。

圆形茶几桌面,也是大理石纹路,与地面一致。

客餐厅之间有一面红色的墙,是这个空间的视觉焦点,也是设计亮点。一方面给接近13米长的客餐厅墙带来了视觉的停顿和喘息,另一方面,对客厅和餐厅进行了自然的区分。

这面墙也非常得能出片。屋主的朋友们来聚会,都喜欢在这里拍照留念。

这组矮柜是客餐厅当中最富有变化的点,无论质感、造型和颜色的变化,都非常耐看。
卧室 _ Bedroom


卧室的背景墙同样是艺术漆,不过变成了湖蓝色,给人一种典雅、华丽的感觉。


通过客厅墙外移,床头又多加了一组衣柜,而且还嵌入了一组书桌,用来临时办公。
卧室的地面和衣柜,引入了木色,营造出温馨感。
卫生间 _ Rest room

与烟道平齐做了一组收纳柜,让卫生间更为规整。开方格用来收纳洗漱用品,取用方便而且能让洗手池台面保持整洁。洗漱镜背后的红色墙,与客餐厅呼应。

卫生间与客厅风格一致,简约大气。
设计师与业主合影 _ Group photo of the main creative staff

设计师说
From Interior designer
男女业主的喜好不同,也是理性与感性的碰撞。在设计中黑白与红色的结合便是一个很好的诠释。
定制柜尺寸图
Customed Cabinets Exhibition
餐边柜详解图:

洗衣机旁边是家政柜,瘦高的造型适合放吸尘器,扫把等家政工具,当然里面也配有电源。
电视柜详解图:


从门厅一直延申到客厅的满墙定制柜,将户型变的更为规整,而且,还将主卧的门纳入其中。中间的开方格,成为了两种不同颜色柜体之间的衔接与过渡,与之对面的红色墙有异曲同工之妙。
带尺寸的平面图
Final layout with dimension

本期案例介绍完毕
感谢观看~
预算与采购清单
Budgets and Shopping list
软装清单:
- 筒灯、射灯:仙人掌先生
- 主卧壁灯,次卧主灯:Zui灯饰
- 主卧吊灯:西早
- 玄关柜:GEERSILL简享家具
- 斗柜:幕芮雅
- 次卧床:joooi家居旗舰店
- 主卧床、沙发:mousse
- 餐桌:宏达石材
- 边几:印色家居
这是屋主精心记录的所有花费清单:

版权归作者JORYA玖雅所有
如需转载本文请联系“JORYA玖雅”账号