目前家里是一家三口,但小孩子比较小,所以家里老人会来帮忙带孩子,同时也基本天天在家开火,所以房型上还是决定设计成二室二厅,厨房做半封闭式。
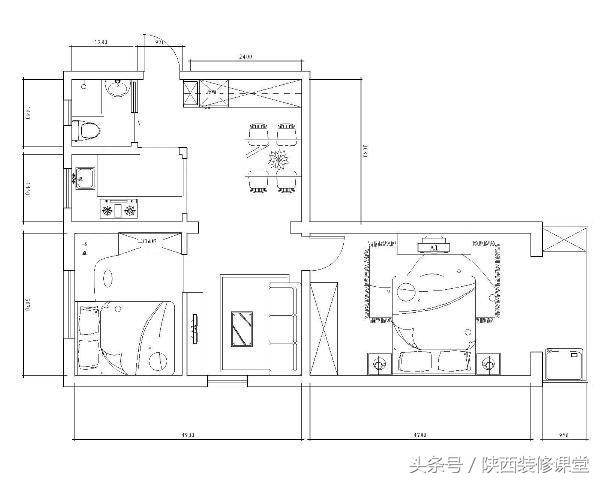
先上原始房型图吧,尺寸是未拆旧的套面尺寸

接着上我自己画的改造图,小房间尺寸可能有些不对(呵呵,因为我不是专业的,请大家谅解),长度只留2.1米,一个床的长度,这样可以扩大厅的面积。面积虽小但也实现了全功能。
唉,总之,面积太小,实在想不出怎么个改法能更好点。

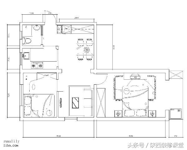
再上一次房型图,让大家看得比较清楚点。

进门正对厨房门。
本来这里打算做展示柜起墙的,但实际发现,这里再起墙,玄关处太压抑了,所以改成了移门。
反正我们都不迷信,而且只要不正对厕所门就行了。

站在玄关看餐厅及客厅,还能看到沙发旁大房间的门

再走进一点,可以看到餐桌全貌

站在客厅看餐厅全貌

近点看餐厅部份上下柜,很漂亮很实用,可以放下很多东西。
另外我家厨房比较小,所以微波炉、电饭煲、冰箱都放餐厅了。
上柜下部还特意装了灯,本来装修师傅说上柜下面装灯不好看,不过我们说买也买来了,装上吧,现在看来还是对的,自己觉得蛮漂亮的,而且天黑时在这里弄东西开着灯就不会背光了,因为餐厅灯装在了餐桌正上方。
下柜台面上给壮壮外婆布置的稍微有点80年代,请大家呼略hoho~无法显示

回头看玄关处,宜家的S型全身镜旁边的小折叠门里是卫生间

再移过来点,也就是餐桌的正对面,就是厨房的移窗了,可以看到小小的厨房,窗台上是壮壮爸爸和妈妈的水杯
他们说传菜很方便hoho~无法显示

对了,看看我家超大冰箱,高1米9,这么大竟然还是被壮壮外婆塞的扑扑满满,而且还有东西放不下,壮壮外婆实在是太会买东西汗无法显示汗无法显示汗无法显示


餐厅部份最后一张

站在餐厅看客厅全貌

客厅电视背景墙这边,旁边是小房间的门。

开灯的效果

近一点再看看

沙发这边
我们的照片好象挂的高了一点,不过现场看好象还可以呀,照片上好象显高

很多人说皮沙发老气,现在人全选布艺沙发,可是我就是喜欢皮沙发,难道我老了,呵呵~~~~~~~
大爱的皮沙发,还想去配条毛毯毯:p
拍得好象有点糊掉脑,我不是单反,是傻瓜机,我也不是专业的,更加没有PS

继续,朝南的大房间,15平方+3平方阳台
先打开门看一下整体,我发现我照片拍得是不好呀

床头这边+小壮壮的小床,其实也不小了,小壮壮的床有1米2了,好大

站在阳台看五门大衣柜

大房间电视机墙,大家说要不要再弄点墙贴上去?

再旁边一点是我家的七斗柜和电脑桌
七斗柜很实用,可以放很多小东西
电脑桌是老房子搬过来的,壮壮爸爸不舍得扔,废物利用了
对了新配的电脑椅很舒服

卧室水晶灯是壮壮妈妈和壮壮爸爸亲手串的,看过实物的人都说很漂亮,可不知道为什么我拍了好多张,水晶灯就是拍不漂亮,明明很漂亮的灯啊,怎么我就是拍不好呢吐血无法显示

这是灯刚装好时拍的,大家看一下是不是好点?

近点看

还有刚装好的餐厅灯,本来灯源是黄灯源,现在被壮壮外婆改成白灯源了,她说黄光暗,白光亮,她不喜欢黄光
可我喜欢黄光,年纪大的人都喜欢白光
大家说黄光好还是白光好啊

站在大房间门口向小房间望

这台机器是亚都的装修卫士
小房间家具是实木的,要上漆的,没办法总归有点味道的,而且现在的实木家具又不是纯手工的咯,有的地方也是用胶水的呀,肯定多少有点味道的
送来当天没有味道,关了一天,第二天味道就出来了,大房间那套板材的到是基本上一点味道都没有,可是壮壮外婆喜欢实木的,所以这台机器常放在这里除甲醛,用处还是有点的,现在味道基本上没了。

走进小房间,靠西这面墙,就放了个四尺半额床,边上还留了点边放垂下来的床罩

看另一边,转角电脑桌+三门衣柜,三门衣柜最后被我改成二门的移门了

关了小房间看门背面

床头的水晶壁灯

开灯的效果 及 近看

转角电脑台
请呼略桌下过年人家送的东西,照片是过年时拍的

旁边是二移门衣柜,本来是三开门的,被我改掉了

然后是小房间的灯,和餐厅是一套的
装修师傅说我家花真多啊hoho~无法显示
