国内常规发电厂接地设计中,往往比较简单,仅在接地布置图中将接地系统概略地表示出来。作者将有关规程规范进行了细化,阐述了发电厂接地网更为细致的设计方法,可示意到具体设备、设施接地,并结合具体工程应用进行了详细阐述。本文对发电厂接地设计和现场施工具有较好的参考价值。

常规发电厂接地网设计,往往仅沿建筑物的四周布置一圈接地导体,如下图1示例,而具体到各种设备的连接并未示意,导致现场施工问题频出,不知应该如何将各种设备连到接地网、以及经常要求增加接地材料等等。
针对这种现象,结合采用裸铜绞线进行接地网设计的某国内沿海工程,笔者对相关规程规范进行细化,对比了各种接地材料的优劣,阐述了各种设备的具体接地方法,在最后还给出了该工程接地布置图应用示例。

图1某工程主厂房集控室区域接地
接地设计的相关基本概念
1、接地极:埋入地中并直接与大地接触的金属导体。兼做接地极用的直接与大地接触的各种金属构件、金属井管、钢筋混凝土建(构)筑物的基础、金属管道和设备等称为自然接地极。接地极又分为水平接地极和垂直接地极,它们一起构成接地网。自然接地极至少应在不同的两点与接地网连接。
2、接地线:电力装置、设施的接地端子与接地极连接用的金属导电部分。
3、接地装置:接地线和接地极的总和。
4、接地辫头:电气装置、设施的接地端子与接地网连接用的卷制接地导体。
5、接地网装置的用途为:a)工作(系统)接地;b)保护接地;c)雷电保护接地;d)防静电接地。
接地设计中的注意事项
1、接地材料的选择
接地网的主要材料有:铜导体、铜包钢、铝导体、钢等,其主要特点如下表1所示:

表1 接地材料的主要特点
根据国标要求,接地网水平接地极一般可采用热镀锌圆钢、扁钢;垂直接地极一般可采用热镀锌角钢或钢管。腐蚀较重地区,为了提高接地网的耐腐蚀性,水平接地极可采用圆铜、扁铜、铜绞线、铜覆钢绞线、铜覆圆钢或铜覆扁钢,垂直接地极可采用圆铜或铜覆圆钢等。
本文结合国内某沿海电厂实际情况,考虑到当地的土壤条件及耐腐蚀性能等诸多因素,最终选择采用裸铜绞线作为主要接地材料。
2、接地导体的最小截面,应符合下式要求:

经上式计算出的接地导体截面,因还需考虑接地导体在运行周期内的腐蚀,所以计算时还应留有一定裕度,考虑接地网一般为60年的使用寿命,截面可按增加30%裕度考虑,并要选择大一级的截面。
经过计算,该沿海工程的室内、外接地导体分别可以采用120mm2和240mm2的裸铜绞线。
3、发电厂的室外接地网应位于地面或者块石路面以下0.8米处,由截面240mm2的裸铜绞线构成水平及垂直接地极。接地网边缘各角做成圆弧形,圆弧的半径应大于均压带间距的一半。水平接地极距离建筑物外墙一般为1.5米。
2、发电厂的室内接地网、及设备连接通常采用截面120mm2的裸铜绞线,室内、室外相连接的部分宜采用截面240mm2的裸铜绞线。
3、为减少相邻接地体的屏蔽作用,垂直接地极的间距不应小于其长度的两倍,水平接地极的间距可视具体情况确定,但不宜小于5m。
4、接地网边缘经常有人出入的走道处,应铺设碎石、沥青路面,或敷设在厂区路面以下。接地极与公路、铁路、管道等交叉及其它可能使其遭受损伤处,均应用钢管或角钢等加以保护,穿过墙壁、楼板或地坪处应加装钢管或其它保护套,有化学腐蚀的部位还应采取防腐措措施。
5、通常主要的接地连接类型包括:
(1)所有地面以下的接地系统的连接采用放热焊接方法。参见下图2和图3。放热焊接型式应严格遵守相关焊接制造商的焊接程序。
(2)到设备的连接采用带螺栓连接的压缩型连接片。参见下图4。尤其需注意,电气设备每个接地部分应以单独的接地线与接地母线相连接,严禁在一个接地线中串接几个需要接地的部分。

图2 地面以下水平接地极放热焊接

图3 地面以下垂直接地极放热焊接

图4 到设备的螺栓连接
6、接地布置图中接地辫头的位置,可根据现场施工时的设备位置适当调整,以保证设备接地端子能以最短的路径连接到室内接地网。设备基础的接地辫头通常从靠近设备接地端子侧的基础旁边引出,并应注意不与设备安装冲突。
7、现场施工时,应在安装接地装置之前进行清洁,用钢丝刷刷试所有的导体表面,以保证良好的导电连续性。刷试之后,在所有导体表面涂以抗氧化导电膏(或等同产品)。敷设接地极时应避开各种设备基础,宜将室内接地网的水平接地极或引上、引下接地导体敷设在建筑面层或保护层以下,采用暗敷方式,如图5所示。现场施工时,应做好混凝土中接地装置的预埋工作。

图5 室内接地网安装详图
各种设备的具体接地方式
发电厂中,各种具体设备的接地宜采用如下方式
1 电气设备接地
(1)发电机:发电机定子基座或外壳应接地,与机身四周的接地系统相连。发电机转子大轴应采用铜编织线或碳刷接地,并与接地系统相连,接地点位置在发电机汽端。汽轮机机缸的接地需依照汽轮机制造商的要求而定。
(2)离相封闭母线:离相封闭母线的外壳及其支撑结构至少两点接地,接地材料采用裸铜绞线。
(3)动力变压器:变压器的底座和外壳需独立两点接地。变压器中性点经电阻接地的,其中性点应该正确连接,先接电阻,后接地。
(4)共箱封闭母线:共箱封闭母线的外壳及其支撑结构至少两点接地,接地材料采用裸铜绞线。
(5)配电装置、负荷中心和电动机控制中心:铠装开关柜、负荷中心及电动机控制中心内的接地母线两端通过裸铜绞线接至主接地网。低压系统的每个回路均具有独自的接地导体,接地导体包含在供电电缆内,作为接地芯。开关柜、照明箱、动力箱及电动机的外壳应与接地芯连接。设备外壳还应接入主接地网。
(6)电动机:由中压或低压负荷中心馈电的每个电动机都有装于电机机座的接地端子,接地端子通过接地线与地网连接。接地线的截面可与电动机馈线电缆截面相同,但不小于50mm2且不大于120mm2。由电动机控制中心馈电的电动机(电动阀除外),都有专门接地端子,接地端子通过接地线与接地网连接,接地线的截面可与电动机馈线截面相同,但不小于35mm2且不大于120mm2。
(7)电缆桥架:有动力电缆的金属电缆桥架,在电缆桥架内敷设一根最小截面为120mm 的接地线,接地体需沿电缆桥架的内侧边沿敷设,并且最多每隔600mm用一个接地夹将接地导体连接到电缆桥架。
层叠中的所有桥架最多间隔30m,就应该连接在一起接至地网或者厂房钢结构。每一层上的每两跨桥架之间用一条最小截面120mm2,最长610mm2跳线连接。所有从电缆桥架到电气设备的埋管都应该连接到桥架或桥架里的接地线上。
2钢结构接地
(1)在路面或地基水平面,每隔一个钢柱用截面120mm2的接地线直接连接到电厂接地网,连接点采用放热焊接的方式。
(2)在每个钢梯和楼梯邻近顶部和底部的位置,采用截面120mm2的接地线直接连接到电厂接地网或最近的直接接地钢柱上。
(3)行车导轨两端通过120mm2的接地线直接接入接地系统。
(4)所有的钢结构平台都应该有效接地。没有连接到接地钢柱上的平台需要用截面120mm2 接地线连接到电厂接地网或最近直接相连的钢柱上。超过2.5m长的平台应该有至少两条接地线,这两个连接位于平台的相对的终端(边)。
3混凝土结构接地
(1)每个楼层采用120mm2的接地线构成室内接地环网,室内接地环网采用240mm2接地线与室外地网相连。设备接地从室内地网引出并连接。混凝土内钢筋根据需要与接地网连接,以降低接触电势和跨步电势,但钢筋不可作为接地导体使用。
(2)当接地线位于混凝土伸缩缝处时,应采取补偿措施,并分别在距离伸缩缝边460mm的地方用聚乙烯包装接地电缆。
接地网的设计
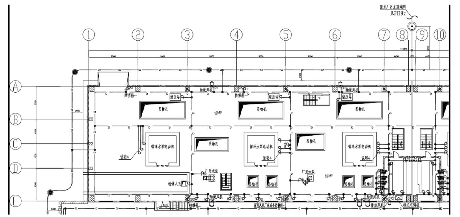
有了上述设计原则和注意事项后,即可画出到具体设备的接地布置图,下图6给出了该工程循环水泵房大平台的部分接地布置图示例:

图6 某循环水泵房大平台的部分接地布置
上图中,室外水平接地极距离建筑物外墙为2m,室内主接地网为稀疏的铜网格,面积约为20m×60m,其中主要设备循环水泵电动机附近设置网孔约为13m×18m的铜网格,并考虑避开设备基础。每台循环水泵电动机预留三个接地辫头,分别给电动机壳体、接线盒、以及中性点端子箱的中性点接地,接地导体采用长约1.5m的120mm2卷制接地辫头。
现场施工时,除了参照此接地布置图,实际的安装尺寸还应根据设备的具体位置适当调整,接地极与建筑物的纵横向相对位置也需根据现场实际情况适当调整,以保证设备能以最短的路径连接到室内接地网格。
结论
本文针对发电厂常规设计中没有给出设备接地方法的细节问题,结合工程设计经验,详细论述了在工程实际中不同情况接地的处理办法,切合发电厂基建工作的实际。本文基本覆盖了发电厂的各种接地问题,对现场施工具有较好的参考作用。
本文编自《电气技术》,标题为“发电厂设备接地的方法及应用”,作者为李纪华。