新建的水泥鱼池,混凝土会析出水泥碱危害锦鲤,因此新池必须除碱。
方法有醋酸法,干冰法,焦明矾法和涂塑胶漆法,通常采取酸中和法。
在每平方面积的水池中加入50g的冰醋酸,使它们充分搅拌混合,经过两天之后将水排除,再重复一次。有植物过滤的池塘要先开池,再种植植物。
好鲤离不开好水,过滤是绕不过去的话题。
今天就给大家列举一些国内鲤池中常用的水质处理设备及处理方式。

△阳台过滤池
●天然过滤方式
目前主要用在阳台,入户花园
通过沙粒、卵石、水生植物层等等,过滤水中颗粒,使固体颗粒物留在滤层中,纯天然,见效慢,过滤能力弱,时间长了就必须把鱼捞起来,彻底清洗。


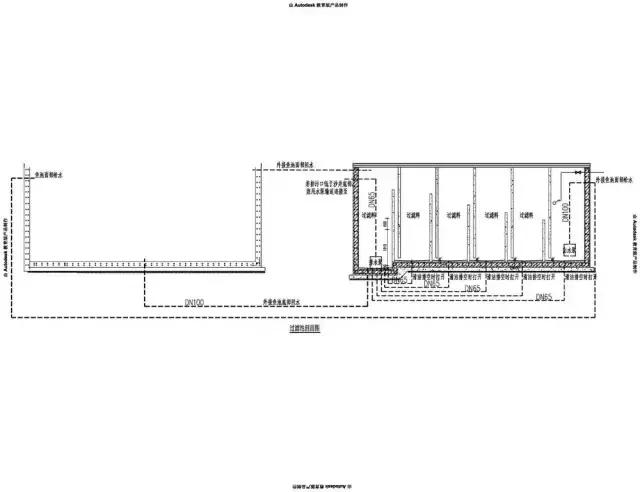
●混凝土重力过滤池
人工毛刷、滤棉、蚝壳、细菌等通过多层次过滤,分级处理,通常包括沉淀池、毛刷池、生化池等等,能有效去除。
大多数固体颗粒(通常粒径大于100um),但固体颗粒物仍容留在过滤器材中并长期分解,实际上是物理过滤和生化过滤同时进行。对人工维护要求高,占地面积大,易孳生蚊蝇。



△混凝土重力过滤池、管道结构图
●过滤桶,人工生态滤床,旋转筛滤(水泵供水式池塘)
已经考虑了集成化和土地节约的问题,往往是将重力过滤池进行优化设计,集中在一个或几个人工舱室内。
将其小型化、密封化、集约化。但仍然是一个收集然后统一处理的流程,只是将水体中的固体废物转移到了滤筒或滤筛中,再等待人工清洗或更换。而过滤器材收集的固体废弃物在完全排除前仍然会持续分解成可溶性的含氮化含物,对水体和水中生物持续造成影响。特点是占地空间小,水质清澈度还不错,尤其适合没有原生过滤系统的水体。


●撇渣器
没有做原生过滤系统的池子,除了配过滤设备,还必须配备撇渣器,以减少池子上漂浮的泡沫。


●转鼓过滤设备+生化过滤单元
节约土地,实时排污,以及最大可能降低人工维护。将整个过程分为独立的物理过滤和生化过滤环节,通过智能化编程,调节循环速度,实现了实时过滤,实时排污,避免二次污染的发生,减轻了生化过滤的压力。目的是使用更少的能源,用更少的水,形成更健康的循环。


●各种过滤设备+植物过滤单元
由于植物过滤能够降低池塘中硝酸盐的含量,有利于控制无用的覆盖物,所以愈来愈受到欢迎。所有的植物都可以很容易地吸收掉水中的硝酸盐,从而在氮循环的末端减少无用覆盖物的生长。但是,植物过滤需要的面积较大,现在还没有数据能够告诉我们,多大的池子需要多大面积的植物过滤,才能高效地发挥作用。一般一个有效的植物过滤系统的面积应当是池塘表面积的20%。



△植物过滤单元
●适用于池塘过滤的植物
▽菖蒲、莞草、狐尾藻、芦苇

▽水生美人蕉、千屈菜、海寿花、梭鱼草

▽鸢尾、再力花、水葱、香蒲

▽慈姑、花叶芦苇、睡莲、花叶芦竹
