目 录
一、编制目的 3
二、工程概况 3
三、编制依据 4
四、工法集中展示区位置 4
五、施工准备 5
六、样板施工进度计划 6
七、工法样板施工 7
八、工法样板施工注意事项 18
一、编制目的
工法样板引路是工程施工质量管理的一种行之有效的做法,鉴于当前建筑施工一线作业人员大多来自农村富余劳动力,文化程度和职业技能不高的现状,整个工程推行工法样板引路这一做法,使之成为本项目质量管理的一项措施,有利于加强对本工程施工重要工序、关键重点环节的质量控制,消除工程质量通病,提高工程质量的整体水平。
为确保落实各工法在施工过程中得到有效的指导作用,结合本工程实际情况,制作工法样板集中展示区。
二、工程概况
项目位于**市**区**路与月**路之间。项目分为A、B两个地块,A地块主要为商业、甲级写字楼、酒店;B地块为住宅。是集购物、休闲、娱乐、餐饮、商务、社交于一体的一站式大型城市综合体。其占地 256亩,总建筑面积 88.6万m2,其中地上 71.9 万 m2,地下 16.7 万m2。
三、编制依据
1、《**项目施工组织设计》
2、《建筑工程施工质量验收统一标准》GB50300-2001
3、《混凝土结构工程施工及验收规范》GB50204-2002
4、《防水工程质量验收标准》GB50208-2002
5、《砌体工程施工质量验收标准》GB50203-2002
6、《屋面工程质量验收规范》GB50207-2002
7、《建筑装饰装修工程质量验收规范》GB50210-2001
8、《建筑电气安装工程质量验收标准》GB50303-2002
9、《建筑施工安全检查标准》JGJ 59-2011
10、本工程施工设计图纸
四、工法集中展示区位置
根据现场实际情况,结合总平面布置图,经各方协商,工法样板集中展示区拟设置在项目北入口大门西侧。一方面便于工人上下班路过时观看学习,另一方面方便于施工员对新进班组人员进行技术交底指导。
此外,在此区块,以后施工过程中不安排大型施工机械设备和材料堆放,并有预留后续新增加工法样板制作场地。

五、施工准备
1、根据项目部的人员,由项目经理统一调配人员组成样板施工指导、监督小组。
组 长:**
副组长:**
组 员:**
2、根据本工程实际情况,确定需展示工法样板,本工程主要工法样板为:钢筋工程、模板工程、混凝土工程、屋面工程、厨卫防水、砌筑、内墙抹灰及腻子、室内电箱及开关插座的安装。
3、根据施工进度要求及时对项目管理人员、班组操作工人进行技术、安全、质量、操作规程的交底工作。
4、及时进行分部工程的隐蔽验收工作,以便组织工法样板的施工。
5、按进度将各施工材料分批进场,并进行相关见证送检工作,确保施工材料符合设计、施工要求。
六、样板施工进度计划
|
工法样板施工进度计划表 |
|||||||
|
序号 |
项目 |
施工部位 |
工作内容 |
开始时间 |
周期 |
完成时间 |
备注 |
|
1 |
主体 |
工法样板 |
测量放线 |
2014/4/25 |
1 |
2014/4/25 |
|
|
2 |
主体 |
工法样板 |
墙柱植筋 |
2014/4/26 |
2 |
2014/4/27 |
|
|
3 |
主体 |
工法样板 |
墙柱铝模板安装 |
2014/4/28 |
3 |
2014/4/30 |
|
|
4 |
主体 |
工法样板 |
墙柱钢筋绑扎 |
2014/5/1 |
2 |
2014/5/2 |
|
|
5 |
主体 |
工法样板 |
满堂架搭设 |
2014/5/3 |
2 |
2014/5/4 |
|
|
6 |
主体 |
工法样板 |
屋面模板安装 |
2014/5/5 |
2 |
2014/5/6 |
|
|
7 |
主体 |
工法样板 |
屋面钢筋绑扎 |
2014/5/7 |
1 |
2014/5/7 |
|
|
8 |
主体 |
工法样板 |
钢筋工程验收、整改 |
2014/5/8 |
3 |
2014/5/10 |
|
|
9 |
主体 |
工法样板 |
模板工程验收、整改 |
2014/5/11 |
3 |
2014/5/13 |
|
|
10 |
主体 |
工法样板 |
安装预留预埋 |
2014/5/14 |
1 |
2014/5/14 |
|
|
11 |
主体 |
工法样板 |
墙柱模板合模、加固 |
2014/5/15 |
2 |
2014/5/16 |
|
|
12 |
主体 |
工法样板 |
墙柱混凝土浇筑 |
2014/5/17 |
1 |
2014/5/17 |
|
|
13 |
主体 |
工法样板 |
顶板楼梯混凝土浇筑 |
2014/5/18 |
1 |
2014/5/18 |
|
|
14 |
二次结构 |
工法样板 |
模板拆除 |
2014/5/19 |
7 |
2014/5/25 |
|
|
15 |
二次结构 |
工法样板 |
构造柱植筋 |
2014/5/26 |
1 |
2014/5/26 |
|
|
16 |
二次结构 |
工法样板 |
二次结构砌筑 |
2014/5/27 |
3 |
2014/5/29 |
|
|
17 |
二次结构 |
工法样板 |
抹灰样板 |
2014/5/30 |
1 |
2014/5/30 |
|
|
18 |
二次结构 |
工法样板 |
腻子样板 |
2014/5/31 |
1 |
2014/5/31 |
|
|
19 |
二次结构 |
工法样板 |
涂料样板 |
2014/6/1 |
1 |
2014/6/1 |
|
|
20 |
二次结构 |
工法样板 |
保温样板 |
2014/6/2 |
1 |
2014/6/2 |
|
|
21 |
二次结构 |
工法样板 |
幕墙样板 |
2014/6/3 |
2 |
2014/6/4 |
|
|
22 |
二次结构 |
工法样板 |
屋面侧排、地漏样板 |
2014/5/26 |
2 |
2014/5/27 |
|
|
23 |
二次结构 |
工法样板 |
屋面找平样板 |
2014/5/28 |
1 |
2014/5/28 |
|
|
24 |
二次结构 |
工法样板 |
屋面防水样板 |
2014/5/29 |
1 |
2014/5/29 |
|
|
25 |
二次结构 |
工法样板 |
屋面保温样板 |
2014/5/30 |
1 |
2014/5/30 |
|
|
26 |
二次结构 |
工法样板 |
屋面刚性层样板 |
2014/5/31 |
1 |
2014/5/31 |
|
|
27 |
二次结构 |
工法样板 |
电箱、开关盒样板 |
2014/5/27 |
1 |
2014/5/27 |
|
|
28 |
二次结构 |
工法样板 |
标示、标语 |
2014/5/28 |
1 |
2014/5/28 |
|
七、工法样板施工
样板施工前,项目技术、质量、工程部门根据图纸设计、专项施工方案的要求详细的对班组操作人员进行技术、质量、安全交底。
样板制作时施工技术人员现场指导、监督,发现不符合方案要求的部位立即整改,确保样板施工质量符合图纸设计、施工规范要求。
工法样板施工完成后,应统一悬挂标示标牌,使人观之一目了然。
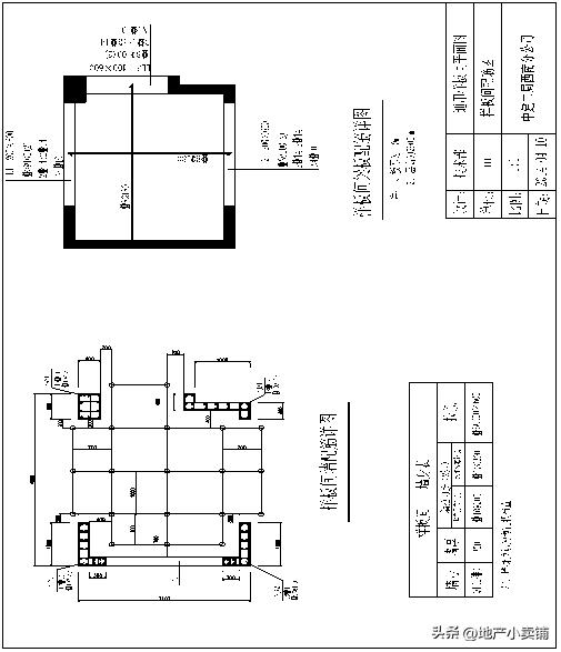
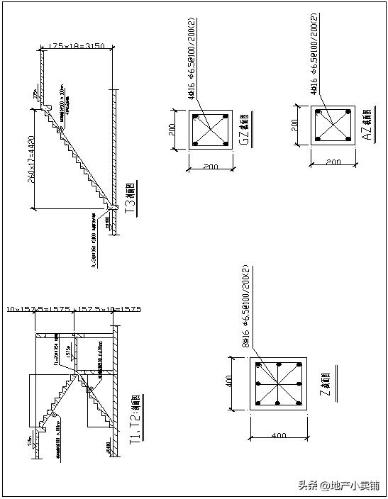
1、混凝土结构工程
1.1 模板工程样板
1.1.1样板主要体现出的内容:模板支撑体系安装和加固方法,包括铝模板、型钢加固体系、剪力墙、楼板、梁柱接头等部位的安装、加固。
1.1.2 样板具体施工参数详见下图:





1.2 钢筋工程样板
1.2.1 样板主要体现出的内容:
(1)柱、剪力墙、梁、板、梁柱接头、楼梯钢筋的制作、安装、定位。
(2)受力纵筋链接(机械连接等)外观质量。
1.2.2样板具体施工参数详见下图:


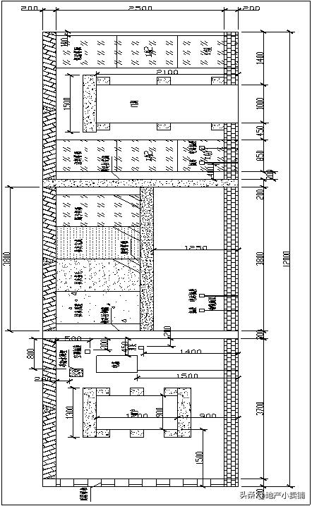
2、砌体工程、抹灰、刮腻子、涂料、电箱及开关插座的安装样板
2.1 样板主要体现出的内容:
(1)有代表性的部位的砌体的砌筑方法;
(2)门窗洞口固定点留置,冷凝水洞口留置;
(3)构造柱、圈梁、过梁的处理;
(4)抹灰甩浆、拉毛、收面,腻子、涂料刮涂,保温施工;
(5)线管切槽、电箱、开关安装。
2.2 样板具体施工参数详见下图:

3、卫生间样板
3.1 样板主要体现出的内容:
(1)卫生间找平、防水、搓毛施工;
(2)卫生间穿楼板管道处理;
(3)卫生间管道安装;
3.2 样板具体施工参数详见下图:

4、屋面样板
4.1 样板主要体现出的内容:屋面找坡、找平、保温、防水及保护层
4.2 样板具体施工参数详见下图:

八、工法样板施工注意事项
1、样板施工前个部位做法已确定,各材料已按进度要求合格进场,现场见证取样送检合格。
2、样板施工前需将各操作规程、质量管理制度、措施、安全施工注意事项对操作工人进行交底。
3、样板施工完成后应制作标示标牌将各部位构件做法详细标注在构件上。
4、工法样板展示贯穿本工程施工始末,应注意做好工法样板的成品保护。
5、施工过程中应及时收集样板施工图片、影像资料,及时办好所有隐蔽验收手续,确保有案可查,施工完成后可制作幻灯片作为后期施工交底资料。
6、施工过程中应做好现场文明施工工作,做到工完场清,现场无垃圾、杂物、无剩余材料,并派专人进行日常围护。