
生活得最有意义的人,
是对生活最有感受的人。
——卢梭

鲸落于海,星沉于洼,风隐于密林,蝉鸣漏进夏至,枫叶归于秋色,世间所有,因“家”而变得温柔。
Everything in the world becomes gentle because of "home".

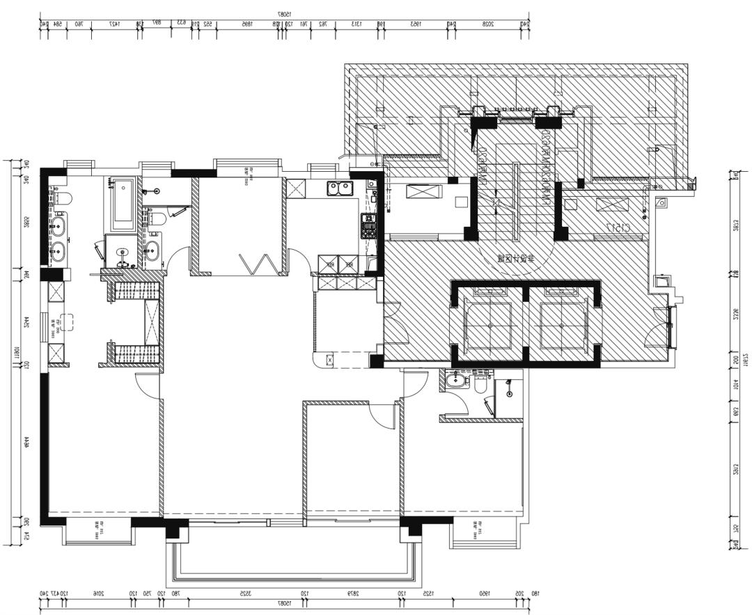
原始平面图

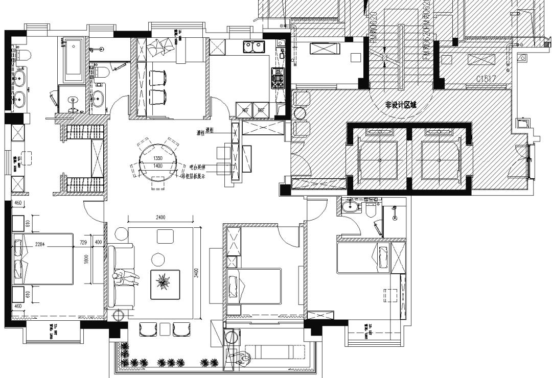
平面布局图

设计前
设计理念
删繁就简,兼顾古典与新文化元素
本案,删繁就简,融合东方古典美学与现代新文化元素,展现了新中式独有的文化神韵以及现代简约的优雅。如果说有一种状态能体现主人的个性,那么"家"便是最好的代表,用最纯粹的氛围,链接着主人的过去,现在和未来,在存在与不复存在之间,生活往前流淌。
Eliminate the complex to simplify, and integrate the oriental classical aesthetics with modern new cultural elements.

玄关
颜值门面当担,“家”仪式感的开始


定制玄关柜
原始玄关有着挤压感,入户的舒适感并未体现,设计师基于原始厚度,将玄关拆除,改为集美观与功能性为一体的缓冲区,对外是门面当担的玄关,对内则是功能型的内置岛台(上面是酒柜,下面为吧台)。
The designer dismantled the entrance and turned it into a buffer zone integrating beauty and functionality.
餐厅
仪式感家庭大餐,时有发生


新的玄关和餐厅有着巧妙的链接,玄关处的改动,有效的为餐厅释放了空间。原餐厅比较狭长,若放长形餐桌将占据大部分的空间,设计师将其调整为符合主人个性的气派圆桌,多出来的区域方便活动。
The designer adjusted the dining table to a stylish round table in line with the owner's personality, and the extra area is convenient for activities.


线条干脆利落的Calligaris精致餐椅、时尚极简的Calligaris吧椅、YEZZONE餐桌等营造了餐厅灵动柔软的氛围。仪式感是情感催化剂,在具有仪式感的场景中,充满温情的家庭大餐,时常都有发生。
The atmosphere of the restaurant is flexible and soft.
客厅
主人性格情调和文化修养的代名词


360全景效果图

佛龛柜为定制款
客厅,最能体现主人性格的空间。180㎡的精装房,原客厅的布局不太符合这个面积该有的气场,长至8-10m的阳台也未得到合理利用。基于不浪费的原则,设计师保留原有墙面不动,阳台一分为二,一部分给到客厅,一部分则归于功能房。
The balcony is divided into two, one part is for the living room, and the other is for the function room.

客厅往外做了延伸,原2.9m的墙高,设计师做了大理石吊顶处理。由于原始交互标准较高,基于不破坏原有元素的基础上,空间的所有改动均符合现场的氛围,局部改造的墙面、木纹等,设计师尽可能的将其最大化的接近原来的材质和质感。
The living room is extended to the outside, the original wall height of 2.9m, with marble ceiling treatment.

客厅的改动区域相对较大,但最终呈现的效果非常值得,重新设计后的客厅空间,超乎于主人的预期。(一般业主不太愿意接受精装房大改,但在有必要“动”的情况下,适当的调整,一定会有惊喜发生哦)
The living room has changed a lot, but the final effect is very worthwhile.

360全景效果图


男主人偏好于红木材质的家具,女主人则喜欢现代典雅风格,在双方难以抉择的情况下,他们联系了设计师。
The host prefers mahogany furniture, while the hostess prefers modern and elegant style.


(篆刻出自于著名书法家任佐予先生)
基于男女主人的兴趣喜好,设计师给到的建议是保留红木的圈椅,既满足了男主人对红木的偏爱,也符合女主人对现代典雅的期待。高级定制版圈椅,材质为印度小叶紫檀。
Based on the interests of the host and hostess, the designer's suggestion is to keep the red wood armchair.



圈椅的存在,奠定了客厅中式东方风韵典雅的氛围,基于此,设计师搭配了与之调性相符合的Poltrona Frau沙发,TREASURE传世茶几,Flexform电视柜、定制电视柜等。
The armchair lays down the elegant atmosphere of Chinese-style oriental charm in the living room.
主卧
低调内敛,演绎无限优雅与自然



生活是丰富而别有韵味的,将精致变成一种寻常,是对生活的热爱,亦是对生活的尊重。主卧,以温柔而富有质感的面料,将宁静的氛围得到了拓展。温润之韵,构筑着心灵休憩的秘籍。
The master bedroom constructs a secret book for spiritual rest.
儿童房
小主人的天地,学习与放松的平衡

由于小主人的学业压力较大,儿童房在原基础上,将墙后移,尽可能的增加活动空间,小主人在沉浸式学习之余,也可适当的放松身体,愉悦身心。书椅来自于Calligaris。
In addition to immersive learning, children can relax their bodies appropriately and enjoy themselves.
书房
古今文化衔接的纽带


一体化进口定制书柜,方便男主人办公和阅读,这里,是中国传统文化与现代文化相互衔接的纽带。书椅来自于Calligaris。
The study room is the link between Chinese traditional culture and modern culture.

如果说城市是人的避难所,那么于主人而言,家,便是大隐之所的归处。生活伴着细腻,在缓慢前进的时间里,追溯荣光。
As far as the owner is concerned, home is the home of the great hidden place.
项目情况|
项目地址丨Address: 上海徐汇
面积丨Area: 180㎡
设计单位丨Company:上海示觉室内设计事务所
服务方式丨Service:硬装+软装全案设计服务,主材+软装代购及落地服务
设计团队丨 Team:尹琳娟 、陈颖