大多数人都觉得农村房子越高越好,这样显得比较有档次,有面子,其实不是的,咱们在农村建房,还是实用一些比较好,房子建的大了反而很空旷,其实大多是子女常年在外打工,父母在家面对空空荡荡的房子,还不如一层小平房来的实际。今天给大家推荐进深10米开间15米左右的一层平房,有的十来万就能建,性价比超高,父母建了肯定喜欢。
第一款:简单大气一层自建房设计图以及户型图,四开间设计

效果图展示

效果图展示

效果图展示
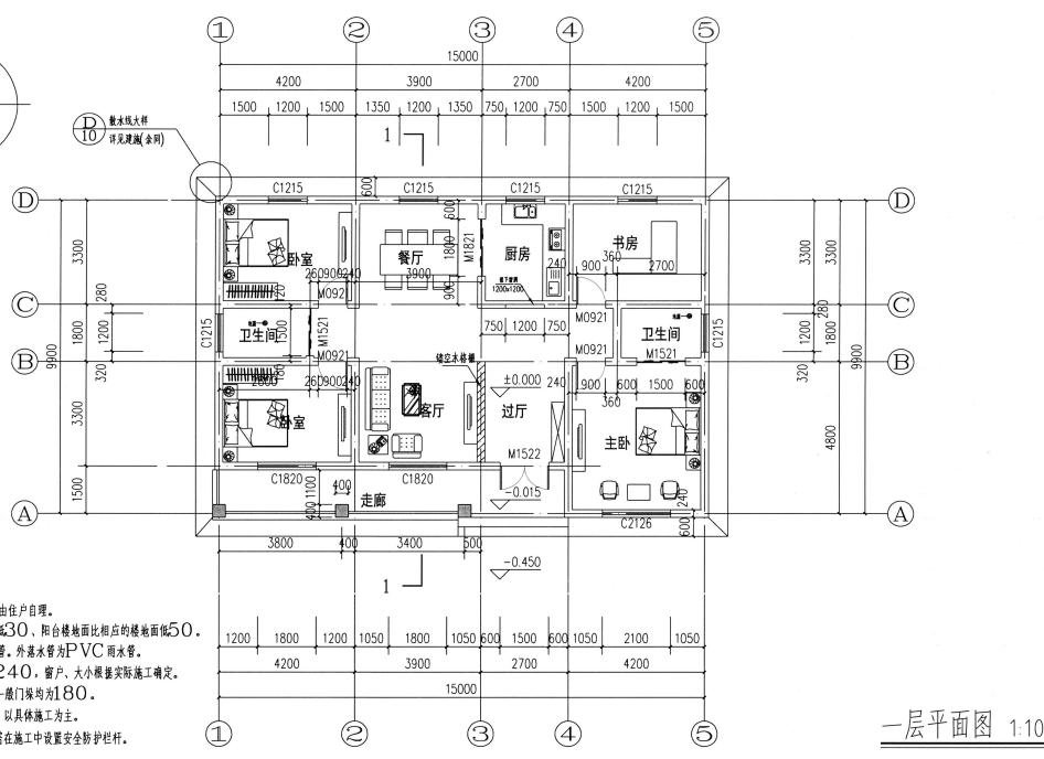
本户型为一层四间房屋设计图,虽然只有一层,但功能齐全、3个卧室+1个书房,足够一般家庭居住,蓝色屋顶、加上浅蓝色的外墙,考虑到了农村耐脏性,施工简单,造价低,适合农村家庭建造,再加上一个小院就完美了。
占地面积:15.00m*9.90m,148平方米左右;
建筑层高:一层;
建筑高度:4.90米(含屋顶);
设计功能:走廊、过厅、客厅、餐厅、厨房、书房、卫生间、主卧、卧室x2

户型图展示
第二款:现代一层别墅设计图以及户型图,高端气派

效果图展示

效果图展示

效果图展示
经济美观一层农村别墅设计图,造价15万左右,占地150平米。这款一层图纸不管是外观还是内部布局都很适合农村建房。
占地面积:14.0m*9.8m,145平方米左右;
建筑层高:一层;
建筑高度:6.59米(含屋顶);
设计功能:客厅、餐厅、厨房、、卧室×4、卫生间×2

户型图展示
第三款:农村10万元一层小别墅设计图以及户型图,简约漂亮

效果图展示

效果图展示

效果图展示
农村一层自建房屋设计图,在农村,鸟语花香好不惬意,建一层别墅,是真正的接地气,推开门就是花园、草坪或者菜园,这种舒服是城里人无法体会到的。
占地面积:15.0m*10.2m,144平方米左右;
建筑层高:一层;
建筑高度:6.411米(含屋顶);
设计功能:客厅、餐厅、厨房、卧室(带卫生间)、卧室×2

户型图展示
以上就是小编推荐的三款农村一层自建房设计图以及户型图,有喜欢的就给自己父母看看吧!