说到奇葩户型,相信很多人都不陌生,无论是在影视作品中,还是现实生活中,都可以见到。当然,这类户型由于空间利用率比较低,很多人在购买新房时也都不会考虑。
不过对于常年在外打拼的人来说,却没有多少选择的余地。比如下面这位屋主为了能有一个属于自己的小家,就买了一套别人都不要的“跑道户型”。虽说户型不理想,但通过二次改造之后,不仅全屋都透着一抹治愈的气息,连前屋主看到后都羡慕坏了。
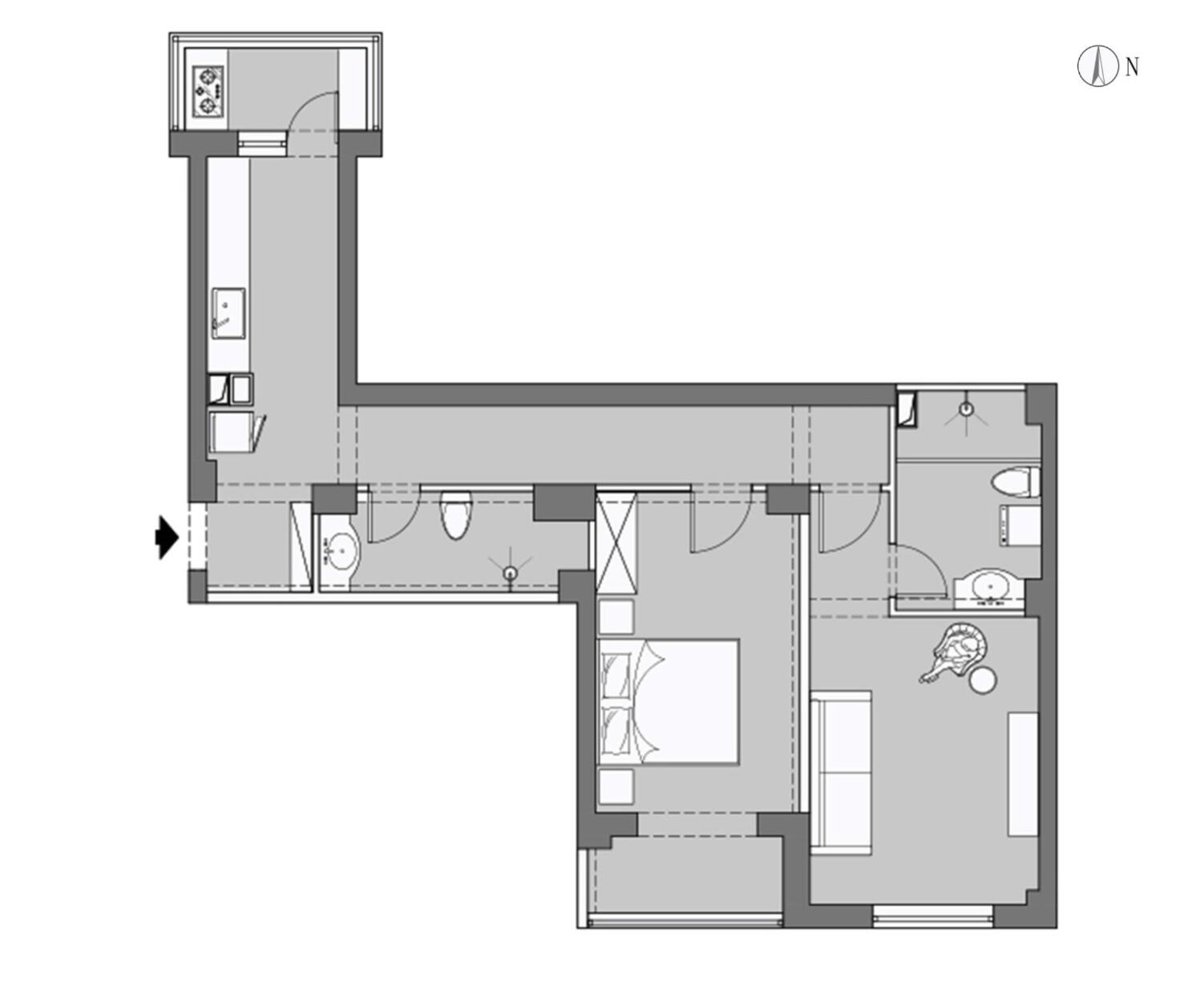
平面结构图

新房位于北京,套内面积70㎡,屋主目前一个人独居,喜欢温暖、治愈、明亮、慵懒的居住环境。原户型最奇葩的地方,就是存在一个近10米的长跑道了,再加上缺少采光,整个空间给人的感受是既压抑又昏暗。
改造前

改造前的空间,基本上处于出租房形态,不仅陈旧混乱,还极度缺少储物空间。因此,在二次改造时,也是将其拆成了毛坯房。
平面方案图

结合现有的空间情况,布局改造如下
1、取消过道旁边的卫生间,并改成储物间,提升空间的收纳能力。
2、在餐厨区动线过长的情况下,厨房增加简易吧台,满足简餐需求。
3、客餐厅采用一体化设计,并给主卧做半开放式处理,让空间更加通透。
4、卫生间采用三分离的结构布局,并做双门洞处理,让生活使用更加灵活。
玄关

原户型进门就有一个小玄关,不过考虑到进深比较有限,就放弃了传统的鞋柜设计,并在侧面增加了一组悬挂式抽屉。
这样一来兼具了小物品收纳和展示的功能,二来也不会让入户显得太过拥挤。同时,进门对面的艺术镜面和蝴蝶凳配置,也在完善空间功能的情况下,提升了入户的仪式感。

在厨房打开的情况下,日常鞋子的收纳,则是通过厨房延伸段的储物柜来解决的。柜体一门到顶,再加上柜门与墙面保持了统一的基调,在提升收纳率的同时,也让视觉保持了整洁。
厨房

考虑到餐厨区的动线过远,厨房在原有的布局上,在右侧增加了一个简易的隔层吧台。这样不仅解决了日常的简餐需求,还兼具了西厨操作区的功能性。而外面的生活阳台,则是作为独立的炒菜区使用的,以规避油烟带来的麻烦。

过道

近10米的跑道,虽说是户型最大的硬伤,但通过改造后,却也得到了一定程度的改善。比如顶面采用弧形设计,并增加线性灯光,就立马让空间充满了仪式感。
再比如取消侧面的卫生间,并改成一个开放式储物间,就立马拓展了开间尺寸,规避了空间的局促与压抑感。

由于卫生间结构重新做了调整,跑道的尽头也预留了一扇隐形门。这样一来不会破坏空间的整体性,二来也让卫生间的使用率做到了灵活。比如在家里来客的情况下,就可以通过这扇隐形门上卫生间,不需要再经过卧室了。
客餐厅

取消原有的卧室,并以一体化的客餐厅定位,除了可以让空间更加通透之外,也让空间的功能性得到了完善。墙顶面依然以统一的奶咖色为主基调,再搭配上拱形门洞、石膏线条等元素,既优雅又治愈。

为感知四季的风景,打破传统的思维方式,将餐桌贴着阳台摆放,看似不太合理,实际上却将自由、惬意的生活方式,展现得淋漓尽致。

小体积的沙发,灵活的画框电视机,不仅彰显出了小资的格调,也最大化减少了空间的复杂,从而让生活更有品质感。

主卧室

拉开睡眠区与客厅之间的移门,就是主卧室。整体依然以奶咖色为主基调,再加上极简的空间布局,立马就给人一种放松、舒适的感受。同时,少量铁艺元素的穿插,又似乎营造出了杂志般的画面感。

临窗增加的隔层柜,除了方便了书籍的收纳,也为空间延伸出了一块休闲角落。而木色的百叶窗户,也赋予了空间一丝光影般的灵动。


主卧看向卫生间视角,门洞与干区隔断,全部采用拱形的方式来处理,既与外面的弧形元素做到了呼应,又拓展了空间的通透性。
卫生间

定制的悬挂式台盆区,不仅是屋主日常洗漱的区域,也是屋主的化妆区。而台盆区的背面,则是一块独立的淋浴区,并兼具了家政的功能性。


马桶区是利用部分过道面积设计的,由于做了双进门处理,所以也在日常生活中做到了灵活。同时,悬挂式储物柜以及迷你的小台盆设计,也算是十分细节化的处理。无论是用来收纳日常用品,还是给客人洗手,都很方便。

本期案例就分享到这里,整体看下来,也不怪前屋主会羡慕了。全屋无论是实用性,还是氛围感,都相当棒。所以就算户型再奇葩,也是可以通过改造来拯救的。对此,你们怎么看呢?
图源:云深空间