
本期有幸采访到的是一个幸福的三口之家,Claire和她先生从事相同的工作,均为程序员,两人的共同语言自然不必多说。小公主是两人爱的结晶,今年正上中班,当初决定将原来的房子换成现在的学区房,就是为了解决小公主上学的问题。Claire和家人都比较喜欢舒适优雅、时尚浪漫的生活,所以经过一番商讨之后,他们决定将现代法式轻奢风锁定为新家的装修风格。现代法式轻奢风空间色调舒适淡雅,格调高尚、浪漫轻盈,恰巧符合他们对生活品质的要求。

在软装搭配布置与规划方面,Claire和先生的积极度很高,这是自去年帮Claire的母亲装修新房之后,他们第二次参与装修房子。相对于第一次的青涩与手足无措,这一次有了之前的经验教训,就显然得心应手了许多。
由于职业的原因,Claire对软件的上手速度很快,加上从小热爱绘画、有一定的美术功底,在审美和空间构造方面,有自己的见解。在软装搭配入场前,Claire和先生已经将搭配效果图做好。然后严格参照效果对家具进行选品和摆放,所以房子最终的展现效果,和他们心中所期待的家,所差无几!


如果你也有自己动手布置家里的想法,一定不要错过这篇在Claire和我们分享他们的新家的过程中,脸上不时洋溢起满意和幸福的微笑的文章,也许会给你带去不少的惊喜和启发哦~


原始结构图

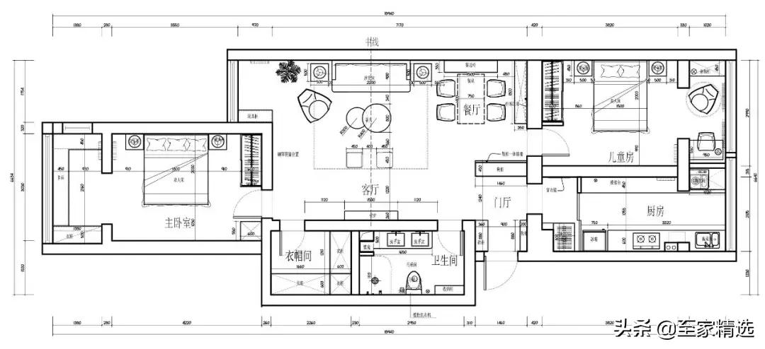
平面布置图
玄关
这个实用面积八十多平米的家,玄关处空间较为狭小,不适合做过多的设计。一幅简单的、富有艺术气息的抽象挂画,一张皮粉色与高级金属质感结合、线条流畅的的长椅,在温润内敛的大理石的衬托下,让这个不大的空间立显轻柔、优雅的气质。
玄关左侧的定制柜和正对入口的落地柜,起到了收纳的作用,让不大的玄关看起来井然有序、干净整洁。而正对入口的高级金属质感的栏杆,在不影响采光的情况下,起了隔断的作用,将玄关的区域划分清晰,让空间层次分明。这种空间划分法,非常值得借鉴!



一幅富有艺术气息的抽象挂画,一张皮粉色与高级金属质感结合、线条流畅的的长椅,在温润内敛的大理石的衬托下,立显空间轻柔、优雅的气质。

厨房
厨房入口前的小衣帽间,是从厨房的地盘上划分出来的,也是这个家在建筑结构上唯一改动的地方。改造成小衣帽间是遵循了一家人的生活习性,方便他们回家后放置随身脱下的衣物,Claire说这样可以防止随身衣物没有固定的摆放位置,扔得到处都是而让家里变得乱糟糟。
半圆弧金属边框的全身镜,除了整理仪表的作用,还给空间添加了些许时尚复古的气息,同时曾加了空间的视觉延伸感。



厨房推拉门上贴的小壁纸,除了做装饰作用,还时刻提醒着他们,这里有一个透明玻璃门,以免稍不注意就撞上。毕竟,claire的女儿就此吃过亏。
厨房的宽度较为狭窄,选择两边都设计操作台的做法非常明智,既实现了厨房的干湿分离,也增大了厨房的摆放空间,避免将来瓶瓶罐罐过多无处摆放的尴尬。
厨房的层高本就不算高,做了铝扣板吊顶后,更是压缩了空间的高度,Claire的先生海拔较高,压缩后的空间高度对他来说相对有些压抑,为了节省空间高度,led平板灯无疑是厨房灯具的最佳选择。


客厅
整个客厅的大空间以浅色调为主,少许亮黄色作为点缀色。边上亮眼的沙发椅就是Claire为点缀空间色调特地挑选的,少许的跳跃色给舒适柔和的空间增添了许多活力和温度。
为了拥有更多属于家人之间相处时光,客厅选择了去电视化。一方面是不让小宝贝看电视,把更多精力放在学习和家人身上,另一方面,她和先生平时也没时间看电视。但却装了观感优于电视的投影仪,时尚方便,一秒即可切换至家庭影院模式。闲暇时可以一家人窝在沙发上看看电影,在轻松的氛围下分享彼此的喜悦,享受家人之间传递的温情。



大理石框的壁炉复古时尚、温馨浪漫,奢华有度。

充满法式风情的小物件,让整个空间的气质升华。
餐厅
精致的家具营造生活的格调,精美的水晶吊灯与米色大理石桌面交相辉映、相得益彰,奢华的恰到好处,而跳跃的复古绿给增添了些许层次感与生气。一家三口能在优雅的用餐时光里重温法式贵族的情调,毕竟生活总是需要一些情调来调节的。


精致的摆件是claire一家对生活仪式感的追求。

主卧
法式轻奢风非常注重生活的舒适度,主卧的设计很简洁,空间色调轻柔舒适,顶上的吊灯与床头壁灯沿袭了法式的风情,高贵优雅、唯美浪漫,这样一个舒适的空间,能让睡眠质量得到充分的保障。


床头柜造型简洁,实用性强。
阳台的视觉中心聚集在窗边地柜,让人忽视了窗台高度不足的劣势,而在这安装落地柜的想法就是Claire提出来的,在惊叹软装饰魅力的同时,忍不住要为Claire的睿智点赞。

女儿房
这是小公主的专属空间,整个房间笼罩在粉色马卡龙优雅童趣的氛围中,很容易让人联想到了充满童话色彩的城堡。童趣盎然的法式吊灯和床头柜的人偶,都是小公主亲自挑选的,为静谧的房间增加了活力。我问她为什么选择这些人偶,她说没有原因,就是想选它们。后来一想也是,小朋友的喜欢很单纯,喜欢就是喜欢,没有原因。



童趣可爱的阳台地板与房间气氛相呼应,同时也起到了空间划分的作用。写字台放置在阳台的位置,可以充分利用自然光照,同时将阳台空间的使用率最大化。我们采访结束的时间恰巧是在阳光正好的午后,小公主嫌弃书桌的墙面太苍白,正拉着Claire陪她贴卡通墙贴,阳光透过轻柔的轻纱,印在一大一下的身影上,耳边是甜糯甜糯的童声,场面温馨得让人不忍打扰。


卫生间
高级金属置物架是卫生间最亮眼的存在,与静谧雅典白的空间形成了淡雅与高贵的强对比,强化视觉效果。置物架的摆放位置与花洒并排错开,避免淋浴时水溅到置物架上将换洗的衣物打湿,Claire在这一点上考虑得十分周到。

小公主的年纪尚小,有些粘人,每次洗漱的时候都需要Claire陪伴在身边,所以双洗手池的设计十分实用,能同时供母女俩使用,节省彼此的时间。
双壁灯的设计弥补了卫生间采光不足的缺点,而八面镜则打破了空间四方呆板的固有形态,彰显艺术设计感,而空间的格调,往往就是由这些小细节叠加起来的。

智能家居系统
智能化家居系统利用最新的物联网技术,采用最新的机器人、人工智能和语言识别技术,为我们的生活带来了许多便利。Claire在和我们聊到她家的智能家居系统时,很坦然得直言自己和先生都比较懒,他们很享受科技带来的便利。
比如回家前可以先将系统定好,包括扫地机器人的运作、灯光的开关、热水器的温度、窗帘是开是合、投影仪投屏与否......将一切都定好,迎接他们的便是一个一切准备就绪的家,方便省时。并且,晚上入睡时,只要一句话,灯该关的关,窗帘该合的合,简单方便、舒心安全,何乐而不为呢!i



1.明确自己的需求
在我们和Claire的聊天过程中,让我印象最深刻的便是她的理性。
Claire在整个装修过程中,表现得十分地理性且逻辑清晰。在装修之前便将装修风格确定下来,并将全屋效果图做好,参照效果图把家具挑选齐全。最后将家具做成表格交给设计师,这样设计师便能一目了然地清楚他们心中的需求,按照他们的需求,明确对全屋硬装方面的设计方向。这样的理性,让整个装修流程进行得高效且顺利。
所以,明确自己的需求,不仅能还原心中完美的家,还能让事情变得高效顺利哦!


2.享受科技带来的便利
很多科技的诞生,就是为了让生活变得更舒适便捷,而智能化家居系统便是秉持着这样的理念,走进了越来越多的家庭。智能化家具系统的物联网技术让居家生活有了质的飞跃,实现了全新的家居体验,简单而充满科技感。

以上便是Claire和家人耗时接近三个月亲手打造的家,轻奢浪漫、舒适优雅、格调高尚,符合现在很多年轻人的品味。如果你也喜欢这样的装修风格,想把家设计成这样,希望这篇文章对你有所帮助!

策划:至家hommey
采访:刍狗、希爷
监制:刍狗
撰文&排版:希爷
设计:董一千
校对:考拉酱、刍狗、希爷

