【室内设计胶囊】
很多时候,前期和客户沟通平面布局,看到的也许就是一张看似简单的平面,但平面方案设计并不简单,它的重要性不亚于客户看中的效果图。
一个好的平面方案设计就是一套好作品的开始,平面上的细节都可能是这个设计师从以往的每一套作品中累积下来的经验,而经验的累积除了项目的反复实践,更多的也是设计师的最大成本—时间成本!因此,尊重设计、是对于设计师所付出的汗水和死去的脑细胞最起码的尊重。
例如,以下户型方案设计:
在正文开始之前,胶囊君赠送给大家《同个户型66种不同设计方案》以供大家学习参考 ! 想要获取资料方式的话,咱们文章末尾见哦!

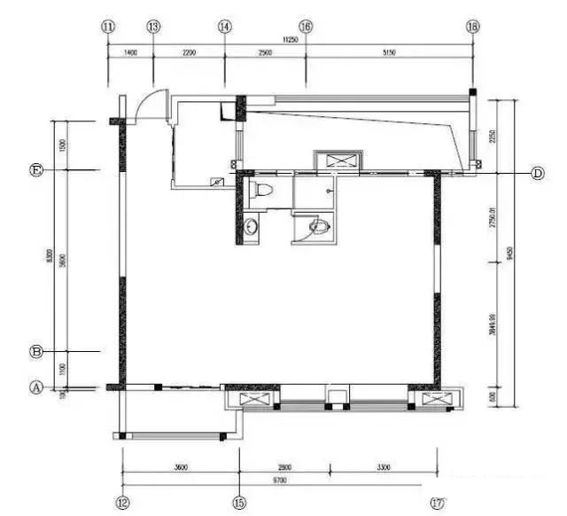
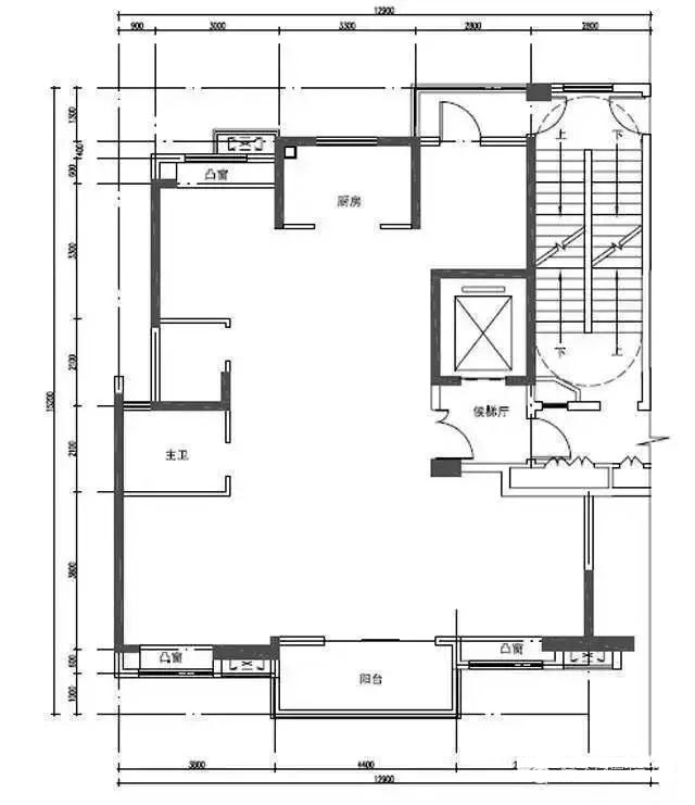
高层97㎡户型



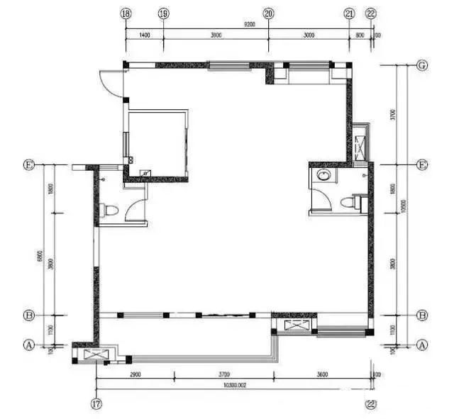
高层105㎡户型




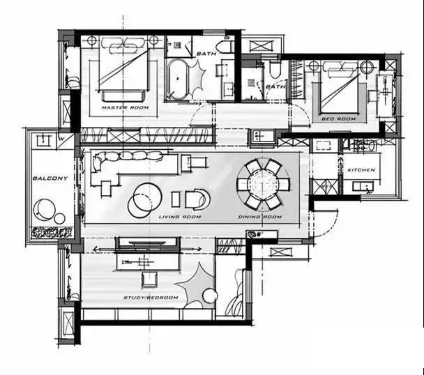
高层121㎡户型


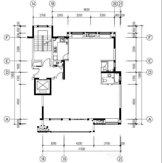
高层132㎡户型




小高层134㎡户型




高层142㎡户型




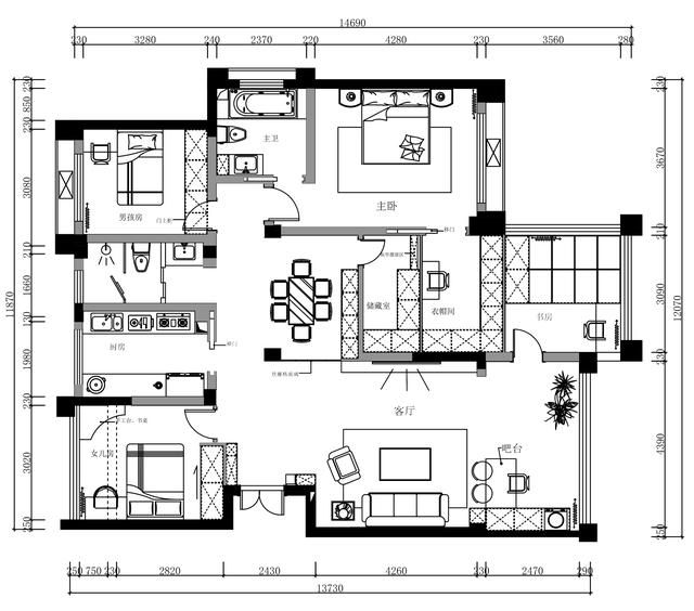
洋房顶层174㎡户型

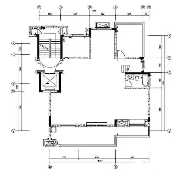
一层

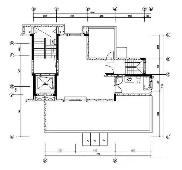
二层




胶囊君赠送给大家《同个户型66种不同设计方案》以供大家学习参考 ! 想要获取资料方式的话,咱们文章末尾见哦!下面是资料的部分方案展示!









胶囊君赠送给大家《同个户型66种不同设计方案》以供大家学习参考 ! 想要获取资料的设计师,私信+关注回复 “户型” 即可获取哦!