什么样的家最令人心动?有人说时尚高级,也有人说诗意典雅,不说错,但也绝非全对,因为手记君一直认为,干净整洁的装修才是最具有魅力的。
像本期要分享的案例就是如此,位于福建厦门,是一对90后夫妻晒出来的家。
装修上,他们家虽然不豪华,但却是很多家庭的榜样,因为全屋不仅布置得干净清爽,有条不紊,而且还拥有四分离卫浴,让人看了不禁大呼过瘾,真的超赞,不信我们一起来看看吧。
平面图

原始结构图

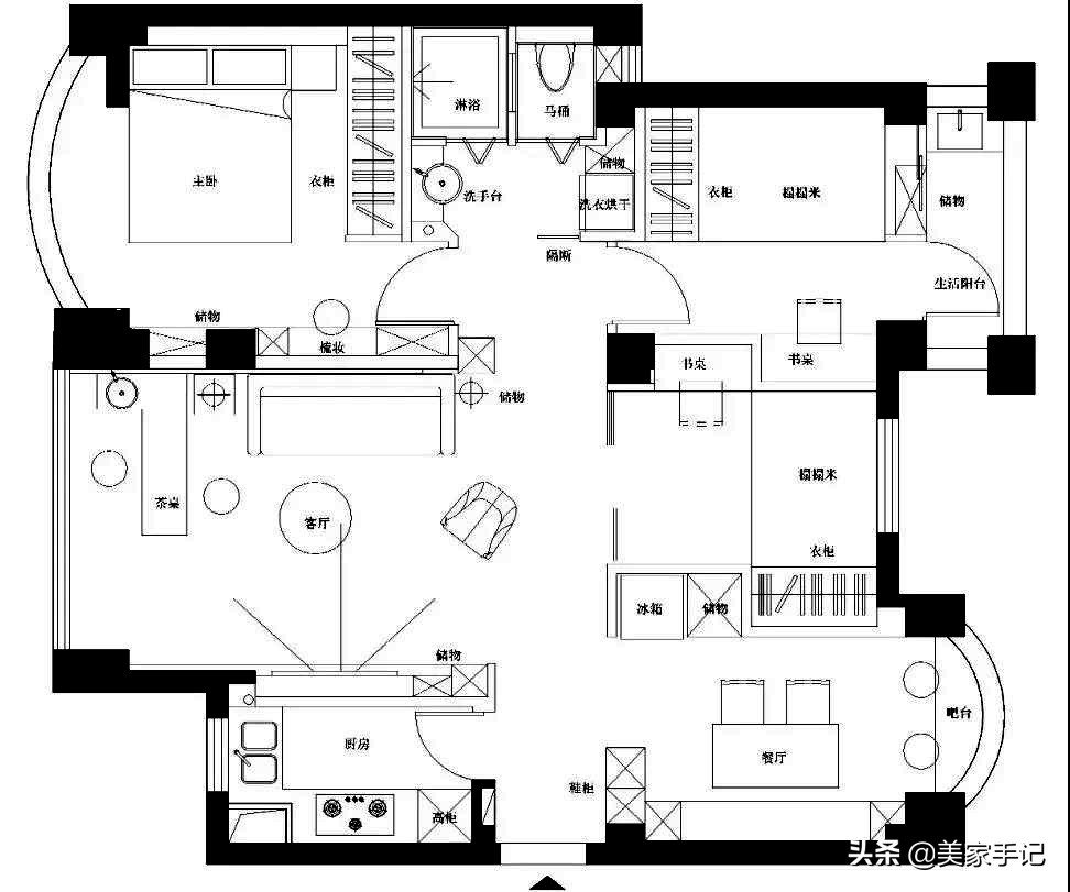
平面布置图
户型三室两厅,是一套二手房;结构上,总体周正,而且南北通透。
改动方面的话,不多,但还是有的,比如厨房太小,餐厅就打通纳入附带的阳台,来做前者在功能上的延伸。基于此,我们会发现后者不仅设置了餐柜、吧台,还向书房借用空间摆放了冰箱,并设置了一组中部镂空,可以使用小家电的储物柜,来提高生活的便利性和幸福感。

另外就是客厅,除了电视墙向厨房借用空间,还纳入附带的休闲阳台,设置茶台用来放松;至于主卧和次卧,床尾背景墙都设置了Z字形的错位式结构,尤其后者,用来摆放书桌正好;最后是卫生间,设置成了四分离结构,功能非常强大。
入户

现在看实景。推门而入是玄关,由于没有独立空间,就在右侧靠近餐厅的地方,定制了一组垂直于背景墙的隔断柜,如此不仅满足了基本的收纳,而且可以更好地保证空间的私密性。
(鞋柜底部悬空,码放鞋子;中部留空,手包和使用频次高的钥匙,都能做到回家随手一放,而白色的免拉手柜门不仅美观大方,而且可以有效弱化体积感的同时,提亮空间)
餐厅


左侧如前所述,是餐厅通过借用与之相邻的书房空间,而摆放的冰箱,以及定制的另外一组柜子,其中后者中部镂空,配上提前预留的插座,正好方便烧水壶和咖啡机之类的小家电使用。至于对面可以看到打通了的阳台,设置吧台,用来放松观景真的很惬意。

右侧的话,是结合卡座一起设计的餐柜,如此利用率高。至于家具,直接摆放结构轻巧的木质餐桌椅就可以了,而且温润自然触感看着特别舒服。
厨房

厨房进门左转就到了。装修上,这里采用了水磨石样式的地砖,看着令人耳目一新。
橱柜的话,采用了上下两色不一的免拉手柜门,配上亮色墙砖,效果出来不仅干净整洁,而且可以突出对比,丰富层次。

高低台举例
另外,我们可以发现操作台的烹饪区和水槽区,采用了高低台设计,如此无论切菜还是洗菜洗碗,都将变得更加轻松高效。
客厅



来到客厅。沙发墙采用了灰色瓷砖通铺,看着比单纯的只刷漆要更有质感。尤其结合精致的皮沙发,和结构轻巧的茶几和座椅就更是如此了。另外,可以发现沙发墙右侧还设置了一组柜子,来为室内增添更多的收纳机能。



另一面是电视墙,其之所以向厨房借用空间,就是要定制一组嵌入式的柜体,如此不仅美观实用,还特别大气。而且这种白色的免拉手柜门,可以最大程度上的弱化体积感。当然有藏有露的收纳细节也不错。至于角落绿植的点缀,无疑为室内注入了源源不断的生机与活力,结合阳台带来的优渥采光就更是如此了。
(更多的柜体意味着,可以将杂物通过藏藏藏收纳起来,进而实现干净整洁、有条不紊的效果)


需要补充的是,客厅打通纳入与之相邻的休闲阳台,用来扩容的同时,还设置了底部悬空的茶台,如此慵懒的午后,无论在这来杯下午茶,或是望着窗外的风景以及室内的鱼缸发呆,都是一种不可多得的享受。
书房

对面的书房,采用细黑框的磨砂玻璃推拉门,颜值高,又时尚。重要的是,透光不透形的效果既保证了隐私,也能让空间变得更加通透,进而实现南北对流的效果。


来看书房具体效果。空间不大,为提高利用率,屋主和多数人一样,定制了榻榻米地台床,如此可以释放左侧的空间,设置相应的书桌工作区。另外,简洁清爽的硬装设计,也能保证这里的效果不会显得压抑。
主卧


主卧可以发现床尾两侧设置了相应的柜体,而中间是梳妆台,加上床侧边的衣柜,效果无疑兼具了美观和实用的双重效果。尤其是衣柜这种白色的平板门,配上黑色的隐形拉手,颜值真的太高了。

换一个角度是对面的床头墙背景墙,上面以简洁清爽的乳胶漆为主,下面做了兼具卧室床靠背的木作造型,此时再嵌入灯带,并摆放装饰画和绿植,效果既显得高级,又富有朝气与活力。
次卧

与主卧相对的北次卧空间同样不大,就在左侧靠着墙角的地方,设置了榻榻米床,这样就能释放中间的过道空间,通往对面的生活阳台。而右侧是通过与书房形成Z字形结构,而设置的书桌。
卫浴

如厕区

家政区

洗漱区和淋浴区
最后是全屋仅有的一个卫生间,作为三室两厅的房子,这样显然不够用,基于此屋主将洗漱区、淋浴区、如厕区和家政区相互独立开来,互不影响使用,这样效率就高得多了,尤其最后者,叠放了洗衣机和烘干机,加上定制的柜子,正好解决衣物清洗和晾晒的问题。
至此本案就分享到了这里,感谢大家阅读。(注:本案文字原创,图片来源于@木哉设计,如有侵权,请联系删除)
想了解更多精彩内容,快来关注@美家手记