【室内设计知识胶囊】
在这篇文章具体给大家讲述分析之前,提前告知大家一下:
胶囊君送给大家【CCD、HBA等知名设计公司《酒店客房平面图概念图合辑》】
想要获取的设计师注意!获取方式见文章页尾!




正文开始
"住宅,建筑的原点
我认为建筑的原点正是住宅。住宅起源于人类最根本的欲望,忠实地呈现出长久居住在当地人们的生活和气候风土。"
——安藤忠雄 《在建筑中发现梦想》
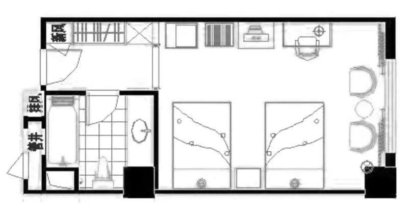
酒店客房十几年以来都是式样单一:“刀把型”的客房、“黑洞”式的卫生间。这种平面布局方式已成为建筑设计中的教科书式的【酒店标准间】(如下图)。

入口一侧的庞大笨重的衣柜,往往只是衣柜的上层成为了备用被服的储物空间,客人使用的空间极小;卫生间黑暗沉闷,百年不变的U字形布置的三件洁具:洗手台实际使用面积往往只需50%、大理石的洗手台。狭小、无趣的浴缸使用率极低,顾客被迫小心翼翼地站在浴缸上面淋浴、马桶正对着卫生间门,毫无尊贵感;
↑“黑洞“”卫生间
跟着是睡眠区的行李架、功能单一的迷你吧、笨重的电视柜、面壁而坐的写字台零散独立的摆放,毫无美感 。

↑ 千篇一律的“刀把”布局
虽然诸多吐槽,这种标准的布局方式,在空间利用率是非常紧凑高效的。但是,酒店业经过几十年的高速发展,消费者对酒店的需求发生了巨大的变化。这种千篇一律的“标准间”已经不适合现在消费者的审美以及人性化设计的需求。在中国的建筑设计院体制下,建筑设计师们往往更多的只关注建筑物的规范设计或者“规范合理规避”设计上面。把人性化设计的难题这一设计的根本需求,留给了室内设计师。进入到内装修阶段的室内设计师需要大量的拆改,造成了资源的浪费和建筑结构的破坏。

在规定的客房尺寸的条件下,探索尽可能多的平面布局的可能性。同一个酒店客房空间户型,28种精彩的平面布局。
设计条件:4.5米*10米的框架结构空间;
设计时间:3天;
星级要求:四星以上;
前方高能!
前方高能!
前方高能!




























胶囊君送给大家【CCD、HBA等知名设计公司《酒店客房平面图概念图合辑》】
想要获取的设计师,获取方式如下
关注我 + 私信:“ 客房 ”可以免费领取【CCD、HBA等知名设计公司《酒店客房平面图概念图合辑》】,供大家学习参考!!




胶囊君送给大家【CCD、HBA等知名设计公司《酒店客房平面图概念图合辑》】
想要获取的设计师,获取方式如下
关注我 + 私信:“ 客房 ”可以免费领取【CCD、HBA等知名设计公司《酒店客房平面图概念图合辑》】,供大家学习参考!!