50平的老破小,实际使用面积不到40平,为了尽可能压榨小空间的能量,实现小家大收纳,19楼装修APP用户@May也是绞尽了脑汁,放弃各种活动式家具,最终选择了全屋定制,主要也是为了最大化利用墙面空间。

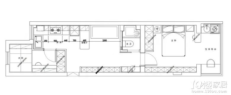
▲旧房子的格局,各种憋屈
客厅、主卧、次卧加起来一共7件定制,找了本地品牌14天落地,总柜体收纳空间超过20+平米,不管落地效率、呈现的效果还是功能,最终都让她十分满意。

▲新格局的平面图
定制项目: 鞋柜+电视一体柜、主卧衣柜+床头柜*1、床尾储物柜+梳妆台、小吧台、次卧衣柜、榻榻米、书桌
板材: 根据承重需求,有多层板也有颗粒板
总费用: 3.2万+,超预算1826元

▲原装修

▲现在的装修效果图
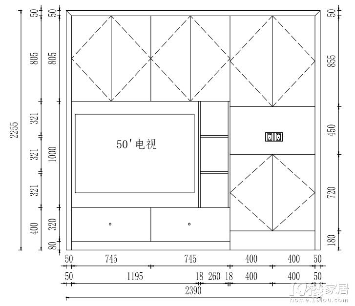
客厅:鞋柜+电视柜综合一体柜
小户型客厅做收纳,一体柜几乎就是标准答案。@May家的一体柜,综合了三项功能:鞋柜、电视柜、卫生间干区收纳柜。

入户门右手边就是鞋柜,底部留空用来放常穿的鞋子或室内穿的鞋子。中间开放格可以放一些装饰品和日常出门要用的小物件。顶部的柜子可以用来放一些杂物。

电视柜是比较常规的格局,满足基本收纳和陈列需求。
比较巧妙的是在靠近卧室的地方做了一个卫生间干区,收纳柜就做在电视柜的侧边,一个柜子解决多个区域的收纳需求。

多功能柜尺寸: 2390(长)*350(深)*2255(高)
定制费用: 6235元

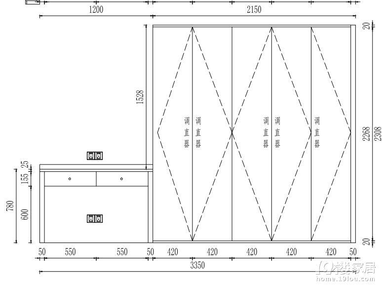
主卧:衣柜+储物柜+小吧台
主卧是整个房子里面积最大的空间,阳台打通后共计有15.6平,所以这里也承担了收纳的大头。

▲主卧最终成品图
床边是一个顶天立地的大衣柜,用来收纳、悬挂日常换洗的衣服,床头柜和大衣柜合二为一,既节省了空间,又满足了置物的需求。



衣柜+床头柜尺寸: 1665(长)*550(深)*2312(高)
定制费用: 5734元
床尾还有一组顶天立地的储物柜,主要用作换季衣物、被子、旅行箱等物件的存放。因为只有一个卫生间,考虑到日常一家人使用的便捷性,所以在主卧单独做了一个梳妆台,和床尾的储物柜组合在一起。



床尾储物柜尺寸: 2150(长)*370(深)*2308(高)
梳妆台尺寸: 1200(长)*370(深)*780(高)
定制费用: 8141元
主卧与阳台交接的地方做了小吧台,是@May家队友的最爱,既可以做两个空间的隔断,又能做办公的地方。这几处设计,也极大丰富了主卧的功能和空间利用率。



小吧台尺寸: 异形
定制费用: 862元(黑色金属桌腿网购150元)
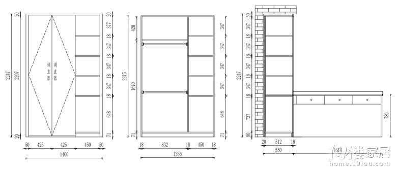
次卧:衣柜+榻榻米+书桌
次卧实际面积大概只有5平米,空间实在有限。

▲改造前的次卧
@May买不到合适尺寸的成品床,只能定制。考虑到是高楼层,又加装了地暖,潮湿问题应该还算可控,所以小卧室就选择了榻榻米。长1.8米多一些,宽度不到1.5米,整个榻榻米差不多2.7平米,床板上特地开了几个孔孔通气。虽说收纳物品比较麻烦,但是好歹也能给小房子增加点储物空间。



榻榻米尺寸: 1835(长)*4000(深)*1420(高)
定制费用: 6752元
@May一直认为,有小孩子上学的家庭,书桌、学习桌一定要够大,否则会影响写作的效率和效果。次卧主要是给儿子使用,所以靠着墙面还定制了一组书桌,桌面一直延伸到衣柜开放格里面,总长度超过2.1米,实现超长书桌的目标。书桌上面做了搁板,可以摆放书籍和学习用品。


书桌尺寸: 1615(长)*550(深)*780(高)
定制费用: 3682元
次卧的房间虽然小,但是定制了一定小型衣柜,方便孩子学会收纳、整理自己的衣物。

衣柜尺寸: 1400(长)*550(深)*2247(高)
定制费用: 3369元
给全包含定制柜的小伙伴一些建议
@May其实选择的是装修全包模式,但是在签订装修协议前,一些重要的项目,她都要先确认商家的具体情况后再确定。尤其是全屋定制,她前期先到旗舰店做了全面的了解,从板材、封边工艺、可选的材质配色、拉手类型到五金件的品牌,都一一做了确认。

全屋定制的设计师出了平面图纸后,她还专门跑了一趟商家的工地现场,再次沟通设计细节,保证整个对接过程非常顺畅。从下单到上门安装,只用了14天时间。
让她感到惊喜的是,次卧书桌、主卧的小吧台和梳妆台的下方,商家额外制作和安装了护墙板,使用时就不用担心脚把乳胶漆墙面踢脏了。
