导读:农村建房成本越来越高,以湖南为例包工包料建一套农村小别墅,按施工面积算主体跟外装做好也要1000多一平方了,室内装修如果做的好一些,也最少要1000多一平方。但是杨先生家今年建的这套小别墅,310平方装修、家具家电、鱼塘等全部做完却仅仅花费40于万。听听他讲述建房省钱的诀窍吧。
故乡遥,何日去?时光滴答滴答的,风一更,雪一更,归乡的心日益躁动。好想回到故乡,有一间自己的乡间小墅,有一个大或小的院子,一湾荷塘;种种菜,养养花,弄弄狗;在朝露中采莲蓬,在暮霭中垂钓......

20年前,杨先生离开湖南老家,化身广漂大军的一员,从此故乡只有冬天,不再有春、夏、秋。
一转眼,杨先生已经在深圳打拼了20个年头,早已在这成家立业。而农村老家的父母,也从满头青丝到如今华发渐生。

某一刻,突然感觉到父母真的老了,再不尽孝更待何时?
老宅已经破旧,一家人回到老家也显得过于拥挤。杨先生决定建个新房给父母养老,过年过节有假期,自己也带着老婆孩子多回家陪陪父母。让自己的孩子也可以去感受美好的农村田园生活。

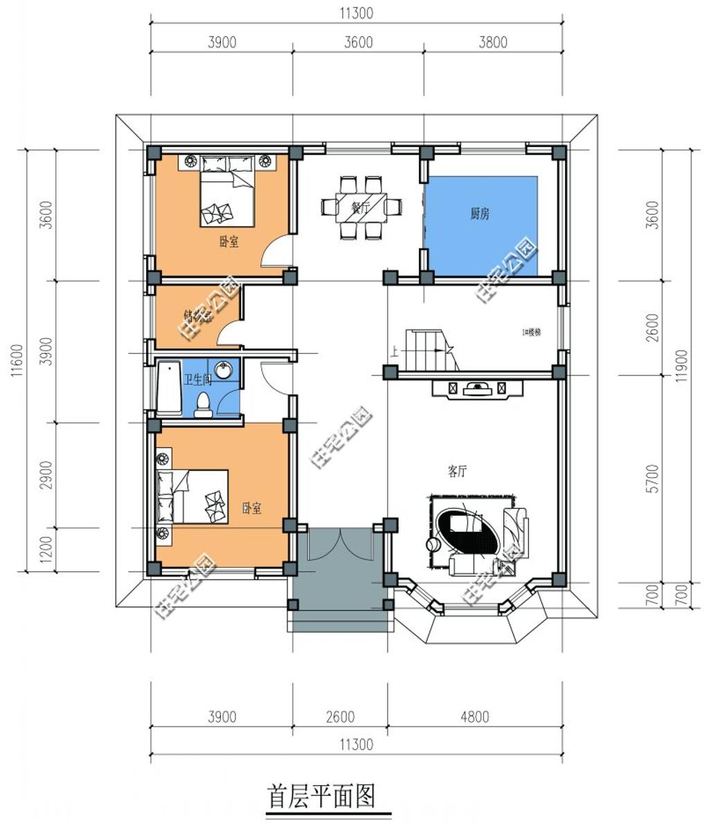
选图纸
建套什么样的房子呢?杨先生考虑了很多。
平时主要是父母在家,房子没必要建太大。
逢年过节全回去了,一大家子人多。还有姐姐和两个妹妹也会经常回娘家看望父母,所以卧室要多一些。
房子要大气时尚,要盖成小别墅。

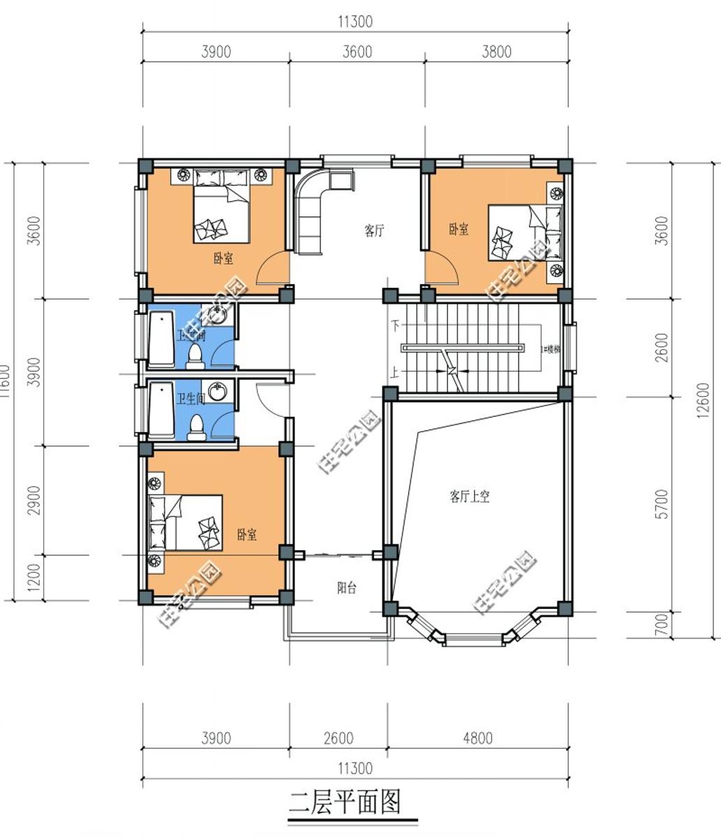
两层5个卧室,一层父母房带单独卫生间,杨先生综合考虑了一家人的各种需求,觉得住宅公园这套带挑高客厅的两层户型非常适合自己家。

与家人商议后也多满意,于是决定购买这套图纸。

因为自家宅基地足够大,在结合自家情况后,一层增加了车库,二层则多出了一个大露台,提升居住品质。

主体采用框架结构,包工380每平方,木工等包含在里面。按两层半的施工面积包工,折算下来施工面积大约310平方,主体人工费接近12万。
建别墅式的房子,包工价格比建没什么造型的普通房子高了不少,杨先生也问我们是不是这个价格偏高了。
其实这个价格算很适中的,造型越多、越复杂的户型,所耗费的材料、工时就越多,施工难度也更大,建房成本自然会相应的增加。

原始设计的外装方案是文化石配真石漆,但考虑到老家温差大、湿度大,贴瓷砖更经久耐用。
但要用瓷砖做出堪比效果图的外装效果,实在很难。
幸好佛山离深圳近,杨先生有空就去佛山挑选瓷砖。来回十几趟终于将外墙、室内的瓷砖全部选定,自己发物流运

最终勒脚部分做了2米高的仿文化石瓷砖,上面则采用300×600大片仿大理石瓷砖,间配120×600条形仿大理石瓷砖装饰,横平竖直对齐,增添了外观的层次变化。
腰线、窗套、阳台护栏、露台护栏专用模具现浇后做真石漆。

应父母的要求,前坪硬化用作晾晒粮食用。坪下是一个鱼塘,夏季荷花盛开,景色相当的美。

室内瓷砖也都是杨先生在佛山选购的。简洁时尚的欧式风格,真正有了别墅的韵味。

室内主砖采用800×800的京黄玉全抛釉瓷砖,两圈波导线装饰,增添了客厅的空间感。

客厅瓷砖上花费了最多的心力,中间拼花瓷砖是定制的,一平方要几百块。

客厅挑高,整面墙体都做了背景墙。

电视背景墙是采用微晶石瓷砖做的,中间是“云水瑶”图案,配以“瓦尔登”护墙板装饰,简约又不失华贵。
吊顶也没有去做的过于浮夸,配以纯铜吊灯,营造最舒适的家居环境。
客厅落地窗朝南,采光好,视野非常开阔。

虽然室内外瓷砖花费了非常多的时间精力才找到合适的尺寸、颜色。
外墙跟室内的瓷砖在老家买要4万,质量还没这个好。在佛山买回去算上邮费也才3万多,省了1万块。再看到内外瓷砖装修出来的效果,感觉一切都非常值得。
整个室内都是典型的简欧风格装修。

卫浴。

二楼设置了一个娱乐室,每年春节姐姐和两个妹妹都会带着家人回娘家拜年,大家庭欢聚一堂,打牌、喝茶,一个娱乐室不能少。

现在鱼塘护栏还没做,主体土建、室内外装修、家具家电再加上挖鱼塘、前坪硬化等总共花费40多万。因为是年近七旬父母全程在家监工,具体花费多少、详细清单还没有去整理。
父母辛苦一年把房子建好,倍感欣慰。杨先生衷心期望父母身体健康、万事吉祥,能享受一个幸福的晚年,自己以后也一定会带着老婆孩子经常回家多陪伴父母。

时尚、实用,这套两层别墅一直以来就深受大家喜爱,建成的精品案例也是非常多,下面再跟大家分享几个案例,共大家建房时做参考。
这一套是湖北彭先生家建的,整个建房过程父子两亲力亲为也是用尽心思。

在彭先生老家,大家房都还是普通的小楼,靠路而建不留院子,而且大家觉得房子比邻居退进去不好,会被人压一头。
但彭先生一家不这样想,回老家建房子,就是为了那有院落的农村生活。
腰线、真石漆、文化石、断桥铝窗,这些在当地都是还没出现过的东西,完全找不到。最后腰线、坡屋顶都是自己研究图纸,一点点指导施工。而真石漆、文化石、断桥铝窗等更是花费很大的精力在武汉找到各种厂家来做的。

在农村,外墙还是钟爱瓷砖。与杨先生家不一样,这一套选择了小片的瓷砖,棕色与米白的搭配,布局风味。

配上精致的小壁灯装饰,整个门厅非常时尚。

湖南衡阳这套则更加清新简洁,与周围的青山绿水完美融合。

这一套位于四川,包工包料给专业别墅施工队,主体带外装花费36万。
有了好的图纸,才能建出美观、舒适的农村别墅。而对于内外装修,大家也可以,更应该根据自己的喜好去设计,建造一套独属于自己的农村别墅。

当问到为什么可以这么省钱的把房子建好,杨先生总结了4点经验。
首先是选了一套好的图纸,施工的时候就按照图纸来建,不随意去更改图纸的设计。
其次是找了一个靠谱的施工队。虽然包工价格比起普通小工头贵一些,但是施工质量有保证。
再次是父母的监工。父母尽心尽力的监工,保证了施工队严格按照图纸施工,综合这三个原因,避免了因返工等原因造成的材料、人工浪费,主体的建设成本就可以控制下来。
父母一年的劳累,主体不用包工包料,省下来不少钱。

杨先生在装修上花费了非常多的精力,所有的瓷砖、家具、卫浴都是去佛山直接找厂家购买。选出最满意的样式,反复对比质量价格,做出最完美的选择,灯具则是去中山古镇买的。比在老家买,可以省下3成以上。
关注本号,每天都有新户型,还有建房资讯小知识一手掌握。