南北地区的农村住房建设是不同的,可以说是水土养一方人。良好的住房设计,可以使户主提高很多方便和舒适!本期推荐这个平屋顶一层别墅设计,外观简单美观,平屋顶和侧梯设置增加了更多的实用性,一层大平层设计更符合农村生活习惯,也可以方便干燥,可以使施工简单降低建筑成本简直就是一举两得。也比较适合那些不崇尚住宅漂亮外观设计的建房者参考,在老家盖上这么一栋最合适不过了,感兴趣的朋友和我一起来看看吧。
图纸介绍:农村一层别墅带平屋顶设计特别适合北方农村自建
这座别墅的外观造型简单大方。外墙由两种材料组成。白色墙砖与底部的米色真石漆白色和黄色的颜色搭配简单美观。你看得越久,你就越喜欢是属于耐看的哪一种。事实上,这样一个简单的别墅设计真的很好看。没有太多的装饰。整个房子的轮廓用干净的线条勾勒出来一级棒!房屋类型以实用为主,室内布局合理。有四间卧室和两间客厅。为了提高室内照明和透明效果,左右前后均有开窗设计。平屋顶的设计绝对是该房屋最大的亮点。侧梯设计方便上下屋顶。宽敞的屋顶面积还可以增加更多的实用性能。日常干燥功能也可以邀请家人和朋友在这里聚会。非常实用!
占地面积:13.76米x7.76米 102.24平方米左右
建筑面积:102.24平方米左右
建筑层高:一层
设计功能:

正面效果图

鸟瞰效果图

侧面效果图

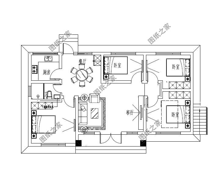
一层户型图
一层户型图:卧室x4、客厅、厨房、餐厅、公卫

屋顶平面图
屋顶平面图
以上就是今天带给大家的全部内容了感兴趣的朋友们记得点赞关注呦!