记得点击关注“装个好房子”哦~
每天为你带来装修干货、改造新灵感与美好生活故事
探寻美好居住方式,我们值得更好的生活!
----------------------------------------------
这个65㎡老房子的屋主,是一对85后的年轻夫妻以及他们的小狗小白,小白和屋主不离不弃,10年间,跟着屋主也至少搬了6次家,终于可以不用漂泊安定下来。
屋主喜欢中式和日式的装修风格,希望可以尽量增加储物,也因为有着从小收集瓷器瓷片的爱好,所以希望可以有展示瓷器的空间。

地点:北京
面积:65㎡
费用:45万

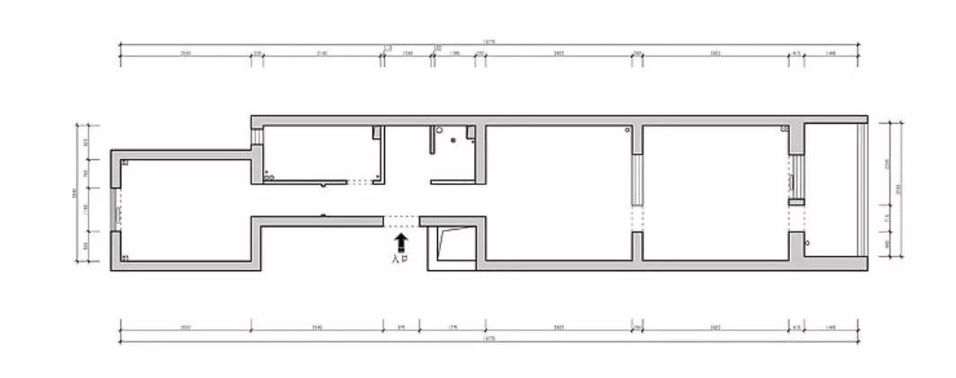
房子为南北向,典型的窄长结构老房,承重墙体的位置将整个户型分为4段式,且不可改动。东西跨度不到3.6米,南北向跨度19米左右。
户型优点:
南北通透,各个房间相对规整;卧室竖向尺寸3.6米,空间相对开阔;厨卫之间为轻体墙,可拆除。
户型缺点:
入户门与厨卫间的过道狭长、利用率低;中段空间无自然采光;可拆除墙体处却又不可拆管道及烟道,限制可改造空间;老房管道多,且不能移动位置。


改造前,无论阳光多强,家里都是极其昏暗的
改造提示:
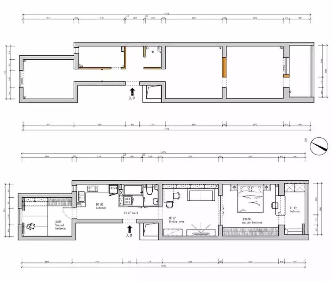
1.将可动轻体墙全部拆除,用占用尺寸更小的玻璃隔断和组合柜体来重新进行空间划分。
2.厨房改为开放式,原走廊的空间也不再只是当过道使用,墙面增加置物功能。
3.卫生间在马桶位置不可以动的前提下改造成了多室分离。
4.厨卫之间现场木工制作成双向收纳。

改造后平面布局图
由于每个家庭生活中都会有各种各样需要收纳的物品,设计师把小白的家分成了两个部分来归类,一部分是利用定制家具做大面积收纳,另一部分则是利用零散的活动家具就近收纳,所秉持的里面是各个空间消化各自功能的收纳。

收纳示意图
如果将固定收纳进行统计的话(活动收纳不算在内),改造后的小白家等同于276个60L的大号收纳箱的容量,如果将这276个收纳箱平铺,占地面积高达78㎡,比整个房子面积还多了十多平。

然而这强大的储物力,却没有影响到整个空间的视觉感受,依然明亮整洁。设计师是怎么做到的呢?快让我们来看一下小白的家吧。

设计师将家中的入户过道增加了墙面置物功能。原先狭小逼仄的空间,用木板装饰完显得格外通透。顶面上也配备了多个暗装筒灯,用人为光源弥补了原先无采光、过于昏暗的缺陷。

进门处定制了不规则地垫,可以放下小两口近期所需要穿换的鞋子,换季的鞋子则在其他位置储藏收纳。墙面平时可以挂一些钥匙、摆件、干花、狗狗小白的牵引绳等。


客厅处于户型偏中间的位置 ,无自然采光,所以设计师在整体风格上选用了白色和木色的结合,白蜡木家具的使用让整个空间提亮不少。
在整体光源上并没有选择主灯,而是用分散均匀的点光源来替换。

沙发背后做了一整面顶天立地的展示储物柜,与墙同宽,因为是嵌入式柜体,所以一点都不显得突兀,反而让空间变得更加规整,同时又承担了大量收纳的功能。

沙发背后的空间可作为一些不常用的物品收纳,柜体最尽头因为有管道,特意做了百叶门板进行装饰。

这些看似不起眼小物件,都是屋主收藏的宝贝,历经千年岁月依然毫发未损的瓷塑,每件唐宋瓷片残器都有着不同的意义。


格子柜一直延伸到餐厅,有了它便于收纳,餐桌上就不会变得凌乱。偶尔喝喝茶看看书,都是极为安静惬意的空间。


餐桌对面是透明玻璃门的木质餐边柜。餐边柜上的花瓶,是屋主在老家淘来的晚清帽桶(当时用来放官员帽子的),旁边的小画是从京都东寺旧货市场淘来的。


客餐厅全景。


将原先外侧墙体拆掉后,厨房空间变得格外通透,门边的主水管道用百叶门板进行装饰。

厨房和卫生间之间的这面收纳墙,是木工师傅现场制作的。作为双向收纳空间,一面归厨房使用,可放些瓶瓶罐罐和小电器。另一面配合玻璃归卫生间当壁龛使用,最大限度的利用了此处空间。

灵活的小推车为厨房增添了一个操作台的空间,同时本身还可以收纳一些零食。

由于屋主夫妇对做饭热情很高,所以厨房安装了独立洗碗机,为了保证台面的齐平,特意将洗碗机上部的台面厚度减小。


主卧的门采用了十分具有山水意境的实木框玻璃推拉门。

地板采用了颜值很高的鱼骨拼,床和床头柜则采用了温润沉稳的黑胡桃木。

家庭成员小白出境(没错,小白不白)

卧室的衣柜采用了吊柜折叠门+宜家艾格特。艾格特的选取减少了木材的利用量,环保的基础上也相对增加了柜内空间利用率。
柜门两扇为一组,可以同时打开4扇门的宽度,这样会更方便拿取衣物。柜内空间布置灵活,物品取放方便,后来这里成了综合储物空间,不再仅是衣柜功能。

主卧与阳台之间的下半墙体不能拆除,于是索性借用这个高度做了胡桃木的外飘桌板,可当备用书桌来使用。
阳台顶部采用木饰面,围合成一个木屋的感觉,阳光洒进来,十分惬意。

新风机旁边的空间也是利用艾格特做层板收纳,用白色纱帘遮挡既好看又实用。深度有60公分以上,像一些大件物品,比如行李箱、懒人沙发、音响包装盒等等都能放下,俨然一个小型储物间。

另一侧放置了简单的落地衣架,当天脱下来的衣物可以挂在这里。

次卧做成了一个榻榻米的房间,宽1.8米,长2.1米。箱体部分可以完全储物,为了方便使用,在靠近外端的部分做了抽屉,不用掀开垫子也可以随意抽拉。
衣柜旁边嵌入书桌柜体,办公时可以将腿自然垂下,平时也可以置物。

次卧的窗选用了嵌入式双色百叶窗,让房间更加整洁。

角落里的清代官帽椅,由于之前保存的不好,还需要慢慢打磨修复。


卫生间用了4扇推拉门,将整个卫生间进行了多空间分离,互不影响。

老房子的马桶位是个最让人头疼的问题,大部分都是不可移动的,于是尽可能利用上部的空间,将这里安置了壁挂洗衣机。同时在深度有限的空间里,选用了壁挂式洗手盆,内空利用率也是比较高的,弧形造型也避免了磕碰。

在屋主对比了很多款的情况下,最终选择了这款镜柜,多方向可伸缩折叠镜面+储物柜+集成式LED镜前灯,柜体尺寸深度刚好能容纳下戴森吹风机。

移动不同扇的推拉门,可自由组合出四种不同的使用方式。屋主按固定尺寸,竟然找到了一款完全吻合的木质浴缸,相比同尺寸的亚克力浴缸,木质浴缸内部空间更大,平时洗淋浴也很方便。

图片及素材来源于:北京七巧天工装饰设计有限公司
设计师: 王冰洁
文字由装个好房子编辑
-------[END]------
今日问答
你喜欢这样的超强收纳家居吗?快到底部留言区告诉我们吧~
【延伸阅读】
她把85㎡2室变1室,竟多出茶室、花房和衣帽间,比125㎡还丰富
杭州90后女孩太厉害!23m²毛坯变豪宅,藏46个柜子和8个独立功能
惊艳!小夫妻爆改57㎡二手房,装出100㎡,宽敞阳台、大浴缸…
装个好房子原创
我们致力于分享好案例、好攻略、好经验,每日更新,值得您长期关注~
如果觉得好,欢迎转发分享,并在文末留下您想说的话
如需转载,请联系好房君的女秘书(W-X:haofangjun666)授权。