
建设地点 河北邯郸
图纸编号 1900
尺 寸 面宽 17.6米 进深 11.6米
建筑面积 422.0㎡
项目概况

△总平面示意图
基地情况:
东:邻家住宅
西:村内道路
南:邻家住宅
北:村内小路

△场地情况
项目简介:
业主在项目前期与设计师详细沟通了平面布局上的需求及想法;此外,业主在立面上喜欢易盖房图库的欧式风格建筑,并挑选了多个案例的效果图供设计师参考。设计师根据场地情况,及业主的需求与喜好,将项目形式确定为双层欧式别墅。
平面布局
户型概况:
2层 / 7室 1厅 2卫 1厨 1土灶 1储藏 1洗衣 1茶厅 1书房 1休闲区 1阳台 1露台

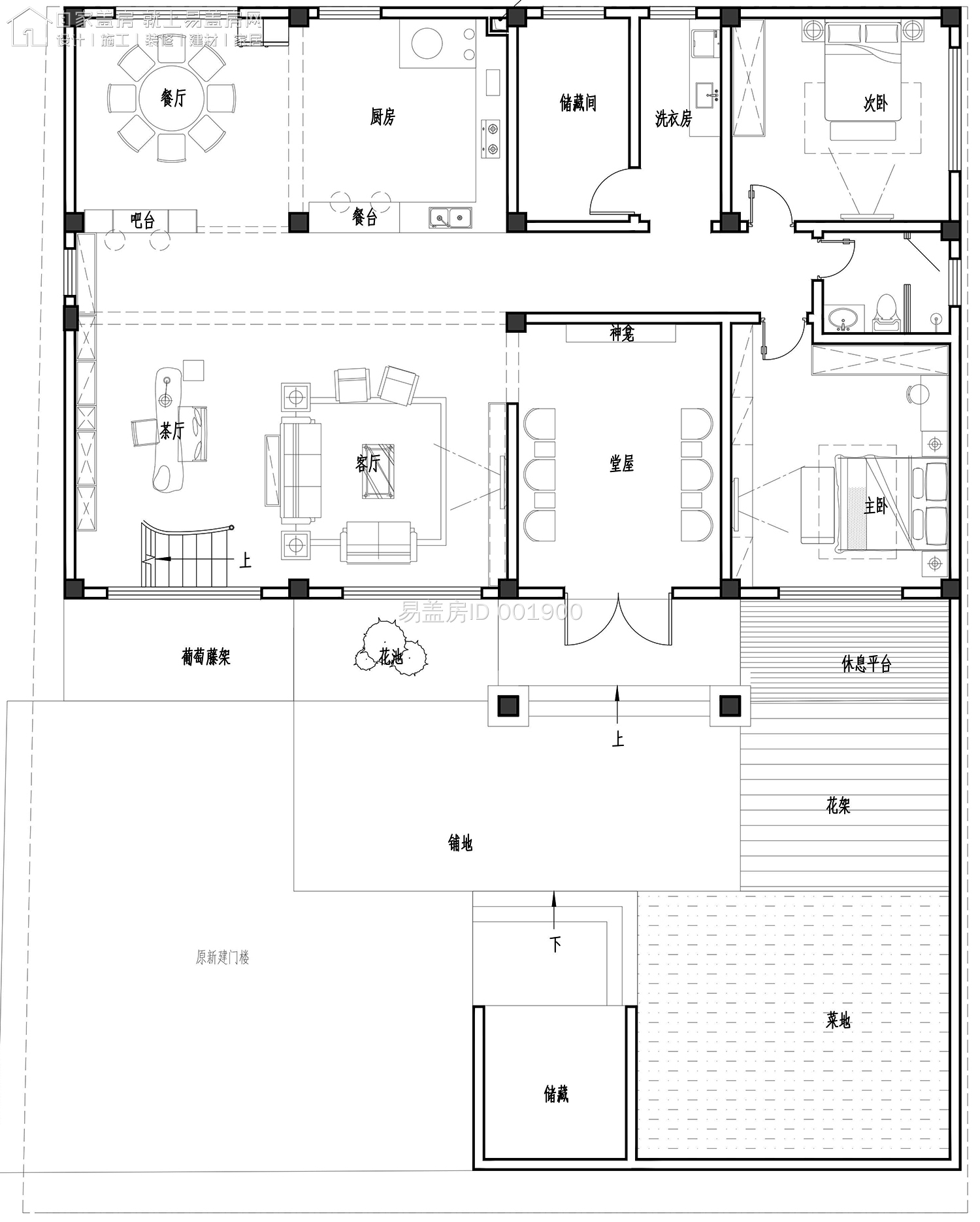
△一层平面图
一层以业主家长辈居住为主,卧室均置于东侧,建筑师将客厅、茶室和楼梯进行一体化设计,使得整个公共空间更加大气、通透;北侧的厨房内部增设土灶功能,满足当地日常的使用习惯。

△二层平面图
二层共设置5间卧室,其中东南侧的卧室搭配书房、阳台和露台使用,功能齐全,增加休闲活动功能。
造型设计

△东南侧效果图

△鸟瞰图
建筑整体为欧式风格,立面采用大量的浅色真石漆,搭配简约的线条及欧式元素构件,突出建筑的精致感,其层次变化让整体感觉更加和谐统一。

△南侧效果图

△东北侧效果图
建筑顶层的阳台和露台,为室外休闲活动提供了充足的空间。设计师通过下部浅色饰面砖给人简洁干净的视觉体验,经典的淡雅配色充分彰显了欧式风格的优雅和浪漫。

△东南侧效果图

△庭院效果图
庭院部分景观较少,仅在院墙底部用景观树和低矮灌木装饰,庭院的休息平台与卧室相邻,其余空间留白,业主可根据自身喜好和实际需求进行即时调整。

△东立面图

△西立面图

△南立面图

△北立面图