本月要点概览
一、住宅产品结构特征
· 从成交套数占比变化上看,与2022年1-2月相比,2023年1-3月30个代表城市中有19个城市90平以下产品成交套数占比下降,17个城市120平以上产品成交套数占比提升,其中一二线城市为13个。
· 从热点城市成交结构看,2023年1-3月,北京90平以下产品成交套数同比下降9.9%,90-200平产品成交套数同比增长31.4%;成都90平以下产品成交套数同比下降39.8%,90-200平产品成交套数同比下降8.7%;东莞在低基数及政策持续优化的背景下,各面积段产品销售套数同比均出现回升,其中90平以下产品成交套数同比增长24.0%,90-200平产品成交套数同比增长62.2%。
二、房企产品动态
· 3月6日,华润置地以企业定位与品牌战略为引领,推出“为更好的城市”年度品牌主张。
· 3月,碧桂园围绕“居住复兴”战略,对“星系、府系、云系、天系”四大产品系全面焕新,升级“碧U好房”未来美好社区体系。
三、房企产品系解析
目前天地源已形成“人文”、“自然”、“现代”三大产品系,聚焦“品质、文化、温度、智能”,致力于打造优质的产品和服务。
四、产品设计亮点
· 建筑立面:西安龙湖·云河颂项目运用经典流线设计,用形似超跑的曲线圆角收边,打造时尚艺术的超流体立面。
· 园林景观:上海象屿招商·公园1872项目融合周边生态资源,将城市公园生态延展至社区,打造从城市公园到社区公园的微度假园林景观。
· 精装设计:苏州保利·和光山语项目全屋精装涵盖多维度细节,敏锐捕捉当代人群置业需求及生活习惯,赋予业主精致从容的居住体验。
· 户型设计:济南铁投仁恒·河滨城项目142平户型四开间朝南,观景双阳台面宽约7米,阔绰主卧套房功能完备。
五、优秀项目解析
万科星图光年轩项目位于杭州余杭区,项目规划19栋22-26F高层住宅,全案共1840户,项目南侧规划约108万方TOD综合体“良渚客厅”。建筑立面上,采取公建化立面风格,突出标识性与时代感。园林景观上,项目打造“一街一园两轴”共14大场景,涵盖社交、运动与购物等功能。户型设计上,105平三室户型动静分区,“玄关、餐厅、客厅、阳台”联动设计,南向约6.4米双阳台,可盛载休闲、运动与家政等功能。进深约8.8米套房主卧,南北双面采光,实用性强。
更多 住宅产品 研究报告, “ 中指云 ”获取

住宅产品结构特征
1、全国30城成交面积段分布
从成交套数占比变化上看,与2022年1-2月相比,2023年1-3月30个代表城市中有19个城市90平以下产品成交套数占比下降,17个城市120平以上产品成交套数占比提升,其中一二线城市为13个。
图:2023年1-3月30个代表城市各面积段住宅销售套数占比

数据来源: 中指数据CREIS
2、热点城市结构特征
(1)北京一季度成交结构特征
从成交面积结构看,2023年一季度北京90平以下刚需型产品成交4910套,同比下降9.9%,成交套数占比为37.8%,较2022年同期下降7.8个百分点。90-200平产品成交7209套,同比增长31.4%,成交套数占比55.5%,较2022年同期上升9.5个百分点。
从成交总价结构看,500万以下产品成交6384套,同比下降8.7%,成交套数占比49.1%,较2022年同期下降9.4个百分点。中高总价段产品成交4638套,同比增长48.8%,成交套数占比上升9.6个百分点。
图:北京商品住宅成交面积结构

图:北京商品住宅成交总价结构

数据来源: 中指数据CREIS
(2)成都一季度成交结构特征
从成交面积结构看,2023年一季度成都90平以下刚需型产品成交2567套,同比下降39.8%,成交套数占比7.2%,较2022同期下降3.4个百分点。90-200平产品成交31207套,同比下降8.7%,成交套数占比87.4%,较2022年同期上升2.7个百分点。200平以上大户型产品成交1915套,成交套数占比提升至5.4%。
从成交总价结构看,150万以下产品成交套数占比40.0%,较2022年同期下降1.3个百分点。150-500万产品成交套数占比较2022年同期提升1.0个百分点。500万以上产品成交套数占比较2022年同期基本持平。
图:成都商品住宅成交面积结构

图:成都商品住宅成交总价结构

数据来源: 中指数据CREIS
(3)东莞一季度成交结构特征
从成交面积结构看,2023年一季度东莞90平以下产品成交1531套,同比增长24.0%,成交套数占比20.6%,较2022年同期下降4.8个百分点。90-200平产品成交5592套,同比增长62.2%,成交套数占比75.4%,较2022年同期上升4.4个百分点。200平以上大户型产品成交296套,成交套数占比提升至4.0%。
从成交总价结构看,200万以下产品成交套数占比10.0%,较2022年同期下降8.4个百分点。200-500万产品成交套数占比74.8%,较2022年同期提升4.1个百分点,500万以上产品成交套数占比提升至15.2%。
图:东莞商品住宅成交面积结构

图:东莞商品住宅成交总价结构

数据来源: 中指数据CREIS

房企产品动态
1、华润置地发布年度品牌主张
3月6日,以企业定位与品牌战略为引领,华润置地推出“为更好的城市”年度品牌主张,推动“更好的城市品质”、“更好的城市生活”、“更好的城市生态”、“更好的城市发展”在每个城市落地生根。在住宅开发领域,华润以“品质、健康、智慧、服务”四大产品力价值为基础,打造“瑞系、悦系、润系、时光系”四条产品线多个标杆项目,为客户营造美好人居生活场景。
图:华润置地品牌战略体系图

2、碧桂园2023产品系焕新上线
3月,碧桂园围绕“居住复兴”战略,对“星系、府系、云系、天系”四大产品系全面焕新,升级“碧U好房”未来美好社区体系。据介绍,碧U好房从外围界面、道路交通、单元场地、社区配套等8大空间对业主生活场景进行精细化描摹,同时结合社区不同人群行为特点和需求,以“邻里、健康、品质、智慧、安全”的5U生活打造品质社区。
图:碧U好房未来美好社区体系


房企产品系解析
天地源从土地、客户、产品三大维度出发,不断进行产品系的更新和迭代,目前已形成“人文”、“自然”、“现代”三大产品系,聚焦“品质、文化、温度、智能”,致力于打造优质的产品和服务。
表:天地源主要产品系

自然系代表项目:苏州天地源·平江观棠

项目简介
天地源·平江观棠项目落址于苏州市姑苏区,可售面积9.42万方,周边轨交2号、4号、6号(在建)、8号(在建)线四轨环伺,商业配套上,汇聚苏州平江新城商圈、万达商圈、繁花商圈三大主力商圈。项目在外形设计上“以水为形”,通过灵动曲线勾勒建筑轮廓。精装细节上,项目从“水、空气、温度”等9大维度出发,多方面保证居住舒适度。项目规划5栋26F高层,8栋8-10F小高层,主力户型为102-143㎡三至四居产品。
图:天地源·平江观棠建筑效果图

132平户型设计亮点
四开间朝南: 南北通透,室内空气高效流通,南向约12.9米面宽,空间阔绰。
横厅设计: 约6.4米面宽大横厅,与双阳台、餐厅、厨房连通一体,满足多种生活场景。
U型互动式厨房: 对U型厨房进行开合优化,可与餐客厅的家人随时互动。
全屋六飘窗: 主卧、次卧、厨房、卫生间共设计6个飘窗,拥有更多扩展空间。
图:天地源·平江观棠132平户型图


产品设计亮点
1、建筑立面:运用经典流线设计打造超流体立面,270°转角窗提升观景及采光效果
西安龙湖·云河颂: 项目运用经典流线设计,用形似超跑的曲线圆角收边,打造时尚艺术的超流体立面。在立面的品质营造上,采用金属铝板及单块超10平的玻璃幕墙强调连贯的横向线条,减少竖向线条对建筑体的切割。270°转角窗提升项目观景及采光效果,整体南向立面铝板及玻璃占比达到约80%,窗墙比较常规项目超出约15%,采光面增加约1/4。
图:西安龙湖·云河颂项目建筑效果图

2、园林景观:融合周边生态资源,打造从城市公园到社区公园的微度假园林
上海象屿招商·公园1872: 项目外拥浦江第一湾、兰香湖、紫竹滨江公园(规划),南邻城市滨水漫步道(规划),基于空间生态与社交生活的营造法则,以享受、活力、成长为设计理念,打造“一轴一环六公园”社区景观,强调景观与业主的互动。园区嵌入7大主题空间——双重归家动线、超600平阳光草坪、艺术会客廊架、儿童乐园、约800平运动公园、约850米健康跑道、林下书吧,在自然与社交的双重感官中,让户外空间满足多元化生活方式。
图:象屿招商·公园1872项目园林效果图

3、精装科技:精装细节体现人居考量,智能系统提升居住体验
苏州保利·和光山语: 全屋精装涵盖多维度细节,如入户门安装四合一智能门锁,指纹、密码、刷卡、钥匙四种入户方式,便捷出行。地暖、中央空调、新风系统智能一键开启,实现四季恒温恒湿。客厅设置一键物业报警求助按钮,走道设有智能感应小夜灯,节能环保。厨房吊柜及地柜设计,储物空间充足,并配备凉霸和洗碗机。双联阳台预留家政空间,可放置洗衣机、收纳柜。
图:苏州保利·和光山语项目样板间实景图

4、户型设计:142平户型四室朝南,观景双阳台面宽约7米,阔绰主卧套房功能完备
济南铁投仁恒·河滨城: 142平四室户型,四开间设计,厨房、餐厅、客厅、阳台联动设计,打造家庭活动中心。观景双阳台面宽约7米,进深约1.5m,落地窗起地约15公分,视野阔绰。U型厨房预留洗碗机、烤箱位置,灶具后设计烤漆玻璃背板及感应灯光。私密主卧套房,开间3.7米,进深4.85米,舒适的开间进深比例,提升居住体验。飘窗台处设有凹龛,便于收纳。独立卫浴入口设置感应夜灯,细节完备。
图:济南铁投仁恒·河滨城142平户型图


优秀项目解读
星图光年轩项目位于杭州余杭区良渚街道玉鸟路与杜文路交叉口,由万科集团开发,项目占地面积约7.8万平方米,建筑面积约30.6万平方米,容积率2.8。
图:万科星图光年轩项目区位图

全案共规划19栋22-26F高层住宅,全案共1840户,主力户型为105-139㎡三至四居,精装限价为29100元/㎡(含3000元/㎡精装标准)。项目南侧规划约108万方TOD综合体“良渚客厅”,承担公共服务、商务办公、商业交流、酒店接待等城市级中心职能。
图:万科星图光年轩项目鸟瞰图

建筑立面上 ,项目采取公建化立面风格,突出标识性与时代感,搭配四面质感铝板及宽幕玻璃,提升观景及通风效果。同时项目建筑风格与周边2号线良渚站、写字楼、五星级酒店、邻里中心、商业综合体等有机融合。
图:万科星图光年轩项目建筑效果图

景观设计上 ,项目打造“一街一园两轴”共14大场景,涵盖社交、运动与购物等功能,将全年龄层的生活内容集合在舒适步行范围内,例如运用底楼架空层构建为“学习盒子”,便于业主阅读、办公,同时具有健身运动等功能。又如步入式互动水景,可供儿童嬉戏,休憩平台及绿化空间,为家长们打造惬意陪伴时光。
图:戏水剧场、学习盒子、街角剧场设计意向图

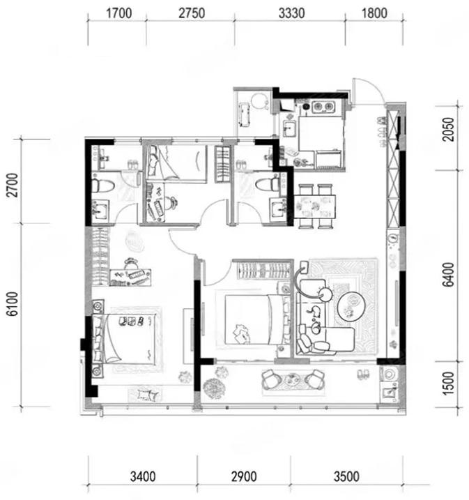
105平三室户型动静分区,私密有度。进深约9.4米LSDK通厅,将“玄关+餐厅+客厅+阳台”垂直舒展,空间开阔。南向开间约6.4米联动阳台,可盛载休闲、运动与家政等功能。进深约8.8米套房主卧,南北双面采光,卫浴、飘窗、衣帽间(预留空间)全功能设计。
图:万科星图光年轩105平户型图
