用户反映:空调工作不正常,有时制冷,有时不制冷。
可能原因:
1.空调压缩机故障。
2.空调控制面板。
3.空调管路故障。
4.空调膨胀阀故障。
5.空调系统电路故障。
故障检查:
1.起动发动机,开启空调,空调正常制冷,没有故障,于是开着车在路上模拟正常使用情况行驶,反复开启空调多次后,出现了空调不制冷的故障。
2.同时按空调面板MODE和OFF键,进行空调系统自诊断(参见《AX7维修手册》AC-23页), 结果正常,没有显示传感器和步进电机有故障。
3.接上专用诊断仪查看空调系统和发动机系统参数,空调系统无故障码。按下空调AC开关, AC请求状态随之变化。各温度传感器参数显示正常,蒸发箱温度34 0C,说明空调压缩机没有工作。
4.按下空调面板AC开关,空调面板和诊断仪参数显示AC开,但是没有听到压缩机离合器吸合声音,散热风扇仍然低速运转,初步判断压缩机离合器没有吸合。


5.检查判断压缩机有无故障,为避免更换压缩机带来的麻烦,尽量先不拆卸压缩机。
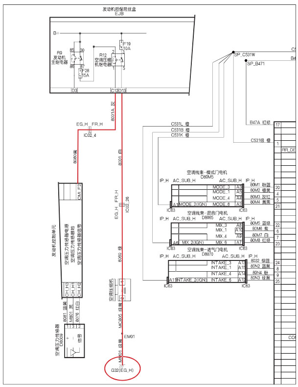
6.根据电路图(参考《AX7电器原理图》第93页空调电器原理图),用导线使空调压缩机电1号脚和蓄电池正极相连接,空调压缩机2号脚接地。空调压缩机离合器正常吸合,空调恢复制冷,说明压缩机本身无故障。
7.检查判断空调压缩机1号脚到发动机控制单元线路有无故障:不开启空调,使用万用表测量压缩机1号角电压OV,开启空调,压缩机1号角电压14. 14V。由此可以判断空调控制面板、发动机控制单元以及从发动机控制单元到压缩机1号针脚线路是正常的,开启空调后,发动机控制单元控制了R12继电器吸合,给空调压缩机正常供电。
8.检查判断压缩机离合器接地端线路有无故障,万用表测量空调压缩机离合器接地端线路。起动发动机,开启空调,压缩机离合器2号针脚有14V左右电压,空调压缩机正负极电压都为14V,没有电压差,空调压缩机无电流导通,自然无法工作。
9.为了确认故障,从空调压缩机2号角处接一根导线连接蓄电池负极,打开空调,听到压缩机吸合,风扇高速运转,空调吹出冷风。已经可以确认是压缩机离合器2号针脚到G32搭 铁点这部分故障导致。查阅电路图先检查压缩机接地线的末端接地点G32,如下图,固定在发动机上。发现用手可以轻松拧下固定搭铁线的螺栓。


故障排除:拆下搭铁线并重新固定紧搭铁螺栓,起动发动机开启空调,车辆制冷正常,故障排除。
维修总结:检查到压缩机不工作时应仔细查阅相关电路图进行相关线路排查,盲目换件的做法不可取。深入研究原理和查阅相关电路图对于提高工作效率帮助很大。