
本案位于合肥春天广场24层,以一种不典型的现代科技感和新中式结合起来制作,有一种赛博朋克的中式科技感。元宇宙概念下衍生出很多带有高级科技感的设计形式,以冷白色的整体基调作为科技的主线,在其中加入银白色的线条做点缀,中国风的元素配合共同打造一种形而上的未来中国新式美学质感。
办公室的建筑感空间感都很强烈,利用各种质感的材料激发空间的新潜能,突破空间天然的限制。摒弃了复杂的线条和装饰,用简约利落的空间指向性明确的提出了空间设计的新主张,极简的科技感。
—— 一鸣空间设计 | Y · M Space Design
横屏观看体验更佳
01
质感 触碰心灵之弦
Tactile texture, touch your mind
门头使用led灯亮眼的将公司的名字展示出来,圆弧形的岩板造型配合木饰面在空间营造一种延伸感。绚丽蜿蜒的的岩板纹路恍若闪耀的星空宇宙,暖黄色的logo恍若闪烁的星子,错落的绿植给人一种生机勃勃的感觉,让人对公司的门头有一种眼前一亮的惊喜感。

02
简约 勾勒理想空间
Simple, Draw the outline of dream

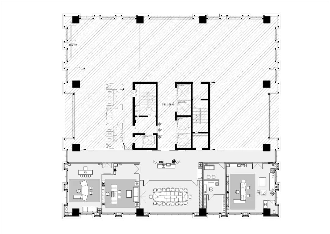
设有会议室和接待区,银白色的整体桌椅搭配了长虹玻璃做一个简洁和规整的会议空间,整面的落地窗和玻璃的质感结合,全透明的空间即有隐私感又有透亮的光线撒入。磁吸轨道灯和内嵌工装筒灯结合营造出一种简约大气的空间感。

原木色的瓷砖地板耐脏,与独立的办公室的木地板颜色做一个呼应。简约但不简单的办公桌设计,以白色和原木色打造一个严谨明亮的冷静办公空间。
03
本真 倾诉自然之语
The real look, Pour out nature
茶桌的设置和真皮沙发的引入适合有访客到来之时做一个完善的接待,奔马图的装饰画在中式传统文化中代表马到成功的意思,配合现代中式的空间传达出一种中式韵味,办公桌宽敞严肃有一种肃穆感。

人字拼的木地板给人更舒适的质感,正面的山水画屏风质感的集成墙板,射灯照射突出一种烟雾朦胧的江南风光。岩板质感的整面的办公桌造型独特,几何曲线让空间除了山水意味也多出一丝严谨的科技感。

04
怡然 畅享诗意之美
The real look, Pour out nature
山水墨画的集成墙板更好的展现新中式的整体氛围,简约与艺术共同塑造了时尚而富有内涵的轻奢格调,别致的雅韵吊灯透露出一丝东方美学文化。作为总经理的房间,空间感更大,大横厅开间的质感通过两面墙的玻璃更完整地呈现出来。




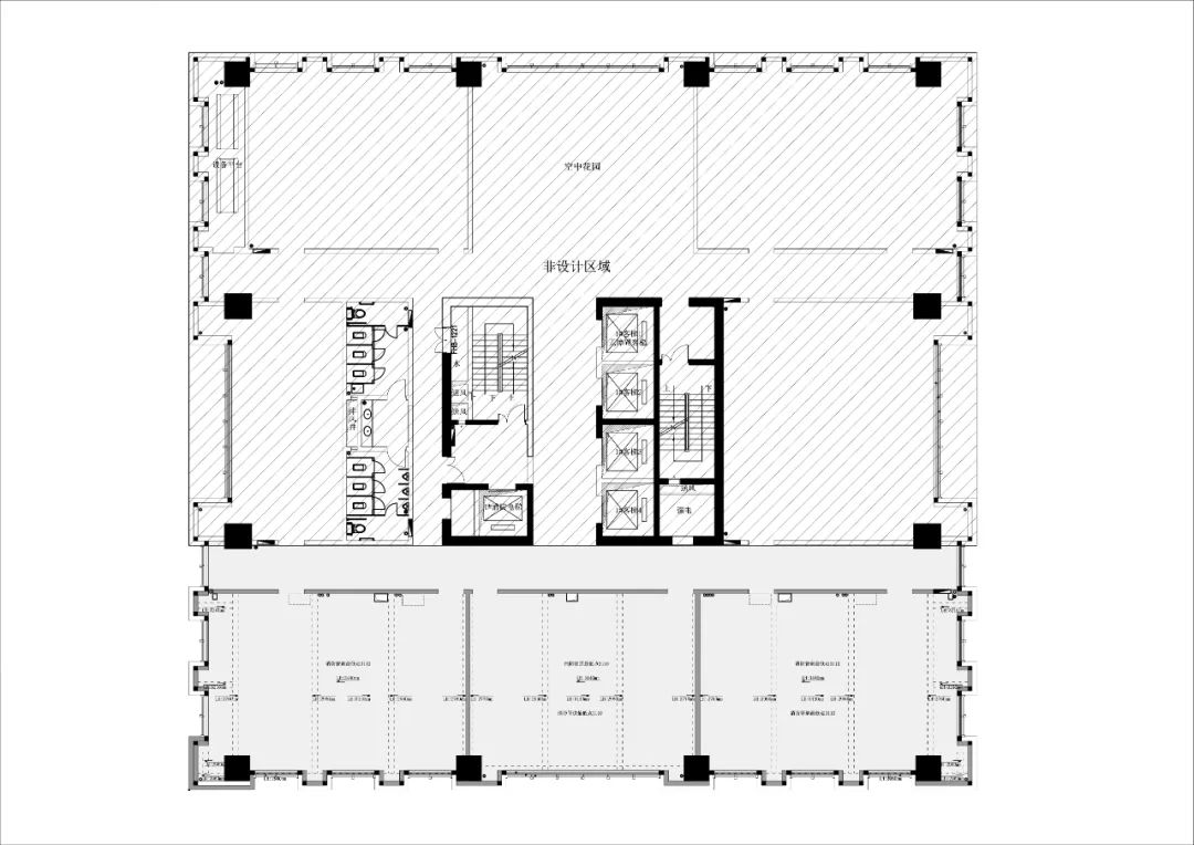
项目名称 / 春天广场-现代中式办公室
设计公司 / 文青一鸣空间设计团队
执行设计 / 王亚伟项目地点 / 合肥市春天广场24层
项目绘图 / 张茹
项目面积 / 420平米
设计时间 / 2022年3月