《建筑施工扣件钢管脚手架安全技术规范》(JGJ130-2011),其中型钢类型及规格、锚固构造、锚环直径、锚环埋设方式、附加钢筋、卸荷钢丝绳直径、防滑构造、排布方式、上部架体构造等等,涉及内容较多,今天我们通过视频学习! 本技术交底适用于世和二期(2-2#地块)项目中的外脚手架工程施工。

《建筑施工扣件钢管脚手架安全技术规范》(JGJ130-2011),其中型钢类型及规格、锚固构造、锚环直径、锚环埋设方式、附加钢筋、卸荷钢丝绳直径、防滑构造、排布方式、上部架体构造等等,涉及内容较多,今天我们通过视频学习!
本技术交底适用于世和二期(2-2#地块)项目中的外脚手架工程施工。
1、技术准备
(1)所有相关工程施工有关人员必须认真熟悉施工图纸和现场相关情况;
(2)施工前由技术部编制可行的外脚手架施工方案,并对施工工长做方案交底;
(3)施工前工长应对分包管理人员和操作人员进行详细的、可操作性强的施工技术交底;
2、劳动力准备
为保证外脚手架工程的顺利施工,必须保证人员充足,各工种相互协调及时完成外脚手架悬挑搭设工作及平网和外网挂设、底部封闭、刷漆防锈等相关工作。
3、材料准备
工字钢选择18#号工字钢,预埋环采用直径20HPB300钢筋。卸载钢丝绳采用直径16mm优质钢丝绳,预埋拉结吊环采用直径20HPB300钢筋。钢管、防护网等相关材料均应满足规范及方案要求。根据现场场地及施工进度情况,制定周密的材料进场计划,合理安排材料进场时间。所有材料进场后作好检验工作,根据有关规定进行抽样检验,要绝对保证各种原材料的质量,杜绝不合格的材料进入下道工序。
4、生产准备
(1)各种材料堆放在塔吊工作半径范围内,以便于直接吊装;
(2)材料堆放区内材料堆放须分规格、分类型堆放整齐。
(3)相关预埋件埋设完毕,验收合格且相关资料完毕;
(4)做好施工前交底工作。
二、施工工艺及技术要点
1、悬挑式外脚手架搭设应遵循有关施工工艺和技术要点。
2、悬挑脚手架搭设流程
第N层结构施工→第N+1层结构施工(预埋抱箍,附加钢筋)→第N+1层结构强度达到75%)→安装悬挑层钢梁,焊接抱箍、定位钢筋等→安装顶撑、连梁→N+2层结构预埋吊筋→达到75%强度安装钢丝绳卸载→按照落地式外脚手架的搭设方法搭设脚手架→底部封闭→底部硬隔离。
3、架体具体选型及参数
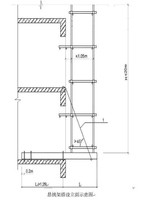
落地架和悬挑架均采用双排外脚手架方式,立杆横向间距750mm,立杆纵向距离1500mm,外架内立杆距离结构外轮廓边线400mm,步距1800mm。悬挑架所用悬挑工字钢为18#工字钢,悬挑固定扣环采用直径20 HPB300钢筋制作,详见后附外架施工详图,悬挑架减载斜拉钢丝绳为直径16钢丝绳。(大角和局部离墙较远处使用14#槽钢顶撑,后附图示),锚固端和悬挑端长度比值大于1.25(架体离结构装饰外边面150mm,架体宽1050mm,外立杆离挑梁端100mm)。
锚固端设置2道抱箍(直径20圆钢),抱箍之间间距200mm,最后一道抱箍距离悬挑钢梁尾部200mm,在钢梁下,当遇见剪力墙及反梁时,根据挑梁位置,在剪力墙或反梁中预埋留洞盒子,18#工字钢预留木盒大小为220×110。
每个型钢悬挑梁外端设置钢丝绳与上一层建筑结构斜拉结,钢丝绳采用16#钢丝绳拉结,钢丝绳与建筑结构拉结的吊环使用HPB300级直径16㎜钢筋,吊环预埋锚固长度应符合现行国家标准钢筋锚固的规定。
悬挑梁间距不大于1.5米(为保证脚手架搭设后的外立面效果,本方案在立杆排版时尽量外立面拉通,同时尽量保证立杆间距为1.5米)。
悬挑式脚手架构造:
悬挑梁采用18#工字钢(大角和局部离墙较远处使用14#槽钢顶撑,后附图示),锚固端和悬挑端长度比值大于1.25(具体见后附平面布置图,离结构装饰外边面150mm,架体宽1050mm,外立杆离挑梁端100mm)。
锚固端设置2道抱箍(直径20圆钢),抱箍之间间距200~300mm,最后一道抱箍距离悬挑钢梁尾部200~500mm,在钢梁下,2道抱箍之间垫100mm×钢梁宽×10mm的钢板,保证两道抱箍同时均匀受力,当悬挑钢梁无水平位移约束时(如悬挑梁穿过剪力墙,水平方向收到剪力墙约束),在锚固端首部增设1道限位抱箍,详后附节点图。当遇见剪力墙及反梁时,根据挑梁位置,在剪力墙或反梁中预埋留洞盒子,18#工字钢预留木盒大小为220×110。
每个型钢悬挑梁外端设置钢丝绳与上一层建筑结构斜拉结,钢丝绳采用16#钢丝绳拉结,钢丝绳与建筑结构拉结的吊环使用HPB300级直径20㎜钢筋,吊环预埋锚固长度应符合现行国家标准钢筋锚固的规定。
4、搭设要求
4.1悬挑工字钢安装要求
1)工字钢选择18#号工字钢,悬挑外立杆距结构外边缘线1150mm,部分处于结构挑板或其他外凸边线的外架应相应外移至1.2~1.6m不等,确保内侧立杆与小型跳板边缘间距为300mm,工字钢上距远端100mm和850mm处焊接C25钢筋头作为立杆的定位,长度为200mm。短钢筋头必须焊接牢靠,防止立杆的滑移;
2)在有上翻梁,采用预埋150×300mm木盒子,以便于工字钢的固定,对于穿过如柱等厚度较大的砼构件,则不得留设木盒,以免事后无法填灌严实;
3)工字钢穿入预埋环内就位后,用钢片压紧,上部采用木楔楔紧;
4)悬挑层外架底应采用木模板全封闭。
悬挑预埋件安装如下图所示:




4.2、斜拉钢丝绳安装要求
在悬挑层的上一层楼板边缘预埋钢筋环用于固定钢丝绳,用于对悬挑架进行斜拉减载,钢丝绳与工字钢磨擦的位置加钢丝绳套对钢丝绳进行保护,注意钢丝绳上端和下端分别与结构梁和工字钢的连接方式,中间必须以花篮螺栓拧紧,或采用拉绳器拉紧钢丝绳。
5、施工技术要点
5.1立杆搭设:
1)立杆纵距1.5m,局部可进行适当调整。
2)立杆采用2m、3m、4m、6m等规格钢管交替搭设。立杆接长除顶层顶步外,其余各层各步接头必须采用对接扣件连接。
3)立杆顶端必须高出女儿墙上皮1m,高出檐口上皮1.5m。
4)对接接头扣件开口方向应向下或向内,以防雨雪进入。
5)立杆上的对接扣件应交错布置,两根相邻立杆的接头不应设置在在同步内,同步内隔一根立杆的两个相隔接头在高度方向错开的距离不宜小于500mm;各接头与主节点的距离不应大于步距的1/3。立杆接头如下图所示。

5.2扫地杆搭设
脚手架必须设置纵、横向扫地杆。纵向扫地杆采用直角扣件固定在距垫板上皮不大于200mm处的立杆上。横向扫地杆采用直角扣件固定在紧靠纵向扫地杆下方的立杆上。
5.3纵向水平杆的搭设
1)落地式脚手架起步步距1500mm,以上步距1800mm。
2)纵向水平杆设置于立杆的内侧。
3)纵向水平杆一般采用对接扣件连接,至边角处可采用搭接。对接、搭接应符合以下要求:
①对接扣件应交错布置:两根相邻纵向水平杆的接头不应设置在同步或同跨内,不同步或不同跨两个相邻接头在水平方向错开的距离不应小于500mm;各接头中心至最近主节点的距离不宜大于立杆纵距的1/3,即不宜大于500mm。

②搭接接头长度不应小于1m,并应等距设置3个旋转扣件固定,端部扣件盖板边缘至搭接纵向水平杆杆端的距离不应小于100mm。
4)纵向水平杆用直角扣件固定立杆上,横向水平杆用直角扣件固定在纵向水平杆上。
5.4小横杆的搭设
1)每一主节点处必须设置一根小横杆,采用直角扣件扣紧在纵向水平杆上,严禁拆除。主节点处两个直角扣件的中心距不应大于150mm。该小横杆的轴线偏离主节点的距离不应大于150mm。
2)操作层上非主节点处的小横杆根据支撑脚手板的需要等间距设置,最大间距不应大于纵距的1/2。
3)小横杆伸出大横杆外的长度不应小于100mm。
4)大横杆作为小横杆的支座,小横杆两端均应采用直角扣件固定在纵向水平杆上。
5.5剪刀撑与横向斜撑的搭设
1)本工程双排脚手架应在外侧立面整个长度和高度连续设置剪刀撑。
2)每道剪刀撑跨越立杆的根数按下表控制。

每道剪刀撑的宽度不应小于4跨,且不应小于6m,斜杆与地面的倾角成45°~60°角;剪刀撑主要采用6m长钢管,最下面的斜杆与立杆的连接点离底面不应大于500mm,斜杆接长采用搭接接头,搭接长度不应小于1000mm,设置3个旋转扣件搭接,旋转扣件距离钢管端头不宜小于100mm,剪刀撑除斜杆两端扣紧外,中应间增加2~4个扣结点。
3)剪刀撑斜杆应用旋转扣件固定在与之相交的横向水平杆的伸出端或立杆上,旋转扣件中心线距主节点的距离不应大于150mm。
4)横向斜撑应在同一节间,由底至顶层呈之字形连续布置,斜撑杆应采用旋转扣件固定在与之相交的横向水平杆的伸出端上,旋转扣件中心线至主节点的距离不大于150mm。
5)脚手架非封闭端如转截面处、施工升降机断开处脚手架端头应设置横向斜撑。封闭型双排脚手架除在拐角处设置横向斜撑杆外,中间应每隔6跨设置一道横向斜撑。
5.6连墙件的搭设
1)连墙件的布置
连墙件的布置应符合下列规定:
(1)靠近主节点设置,偏离主节点的距离不应大于300mm;
(2)从底层第一步纵向水平杆处开始设置,当该处设置有困难时,应采用其他可靠措施固定;
(3)连墙件原则上按两步两跨,即每层每两跨设置,呈菱形布置。具体设置可根据现场实际情况进行适当调整,但每个连墙件覆盖面积不得大于30m²;
(4)连墙件表面应刷红色油漆。
(5)连墙件为在建筑物边梁对齐立杆位置埋置Φ48×3.25mm短管,短管露出混凝土面不少于0.20m,埋入混凝土中不少于0.30m,用扣件与脚手架小横杆连接,连接点两步两跨,上、下错位布置(详见下图)。
2)预埋短钢管拉结
采用钢管将柱四面箍紧,伸出钢管采用双直角扣件扣在主节点或纵向水平杆上,柱角采用模板及木枋做好保护。
部分竖向结构间距较大处可设置如下钢管顶撑拉结。
3)连墙杆应呈水平设置,当不能水平设置时,与脚手架连接的一端可稍下斜连接,严禁外高内低上斜连接。
4)脚手架下部暂不能设连墙件时需搭设抛撑。抛撑应采用通长杆件与脚手架可靠连接,与地面的倾角应在45度到60度之间;连接点中心至主节点的距离不应大于300mm。抛撑应在连墙件搭设后方可拆除。
5)脚手架在施工升降机、卸料平台等断开位置两端必须设置连墙件。
6)连墙件表面应涂刷红色油漆,并在旁边挂置明显的标志牌。
5.7脚手板的铺设
作业层脚手板应铺满、铺稳。做到严密、牢固、铺稳、铺实、铺平,不得有50mm以上间隙。
1)施工楼层必须满铺脚手板。
2)脚手板每间隔12m必须满铺一道,脚手板对接平铺时,接头处必须设两根横向水平杆,脚手板外伸长应取130mm~150mm,两块脚手板外伸长度的和不应大于300mm。
3)脚手板四脚用18号镀锌铁丝固定在小横杆上。离开墙面200mm,严禁留长度超过150mm的探头板。
5.8护栏和踢脚板
在铺脚手板的操作层上必须在外排立杆内侧距脚手板面1000处设一道护栏,涂红白油漆,并设200mm高木踢脚板。

5.9脚手架的竖向及水平防护
1)脚手架外侧立面采用1.8m×6m绿色密目式安全网进行封闭。用16#镀锌铁丝将安全网绑扎在纵向水平杆上。
2)每三层且高度不超过10m设水平安全网(兜网),作业层下设安全网。在结构边预埋φ14@1000钢筋头,安全网必须与结构连接严密牢固。严禁使用损坏和腐朽的安全网。
三、质量控制标准
脚手架技术要求及允许偏差表

安全文明施工与绿色施工
1)搭设人员必须式经过考核合格的专业架子工,必须持证上岗,不允许患高血压、心脏病病人上岗。
2)搭设脚手架的人员必须戴安全帽、系安全带、穿防滑鞋。
3)施工作业层不得超载,不得将模板支架、缆风绳、混凝土输送管等固定在脚手架上,同时严禁悬挂起重设备。
4)六级及六级以上的大风和雾、雨、雪天气时应停止脚手架搭设与拆除作业。雨、雪后上架作业应有防滑措施,并应及时扫除积雪,脚手架四角设避雷针,大风雨等恶劣天气过后要对脚手架进行全面检查保修。
5)在脚手架使用期间,严禁拆除下列杆件:
(1)主节点处的纵横向水平杆;
(2)连墙杆件。
6)在脚手架上进行电气焊作业时,应采用石棉布将作业点下部进行封闭,防止火花溅落至下层,同时在下层应有看火人员及灭火设备。
7)作业层不允许二步架同时施工,钢管严禁单点起吊。
8)搭拆脚手架时地面应设围栏和警戒标志,并派专人看守,严禁非操作人员入内。
9)搭设脚手架的材料要堆放整齐,不得随地乱丢。使用完毕的材料应及时回收,该归堆的归堆,该入库的入库。
10)所有的扣件必须全部拆除干净,不许扣在钢管上,窗台顶板上不许搁置扣件、架料以免疏漏。
11)拆除架子某个部位时,必须及先报告质安员以便疏散下部人员,架体拆除时,下部不得有人施工。
12)应定期检查外脚手架,及时将脚手架上的垃圾及杂务清理干净。
13)搭拆脚手架的严禁抛接钢管、扣件、扳手等材料及工具。
14)脚手架拆除的钢管、跳板、扣件及安全网应及时转运至指定地点,禁止随地堆放。
15)其他常规安全技术措施及未尽事宜参照《建筑施工扣件式钢管脚手架安全技术规范》(JGJ130-2011)、建筑施工安全检查评分标准(JGJ59-2011)等国家规范、规程、行业标准、地方规定执行。
16)踢脚板、封底以及卸料平台等可采用方木与模板的料头,但应确保安全牢固。
17)钢管刷漆采用先进的除锈与刷漆一体化的机器,减少有害气体的挥发量。
18)搭设后及时挂上安全网,减少夜间施工电弧外泄。