现在农村发展越来越好,商机也是越来越多,来往十分便利,人流量也大。如果宅基地临街就可以在一层设计商铺自己开个小店,发挥宅基地临街的优势,提高房屋的利用率。
如果觉得打理店面太累,还可以选择出租,省时省力还能收租金,十分惬意。今天就给大家推荐5套带商铺的别墅图纸,宅基地临街的朋友可以参考一下。
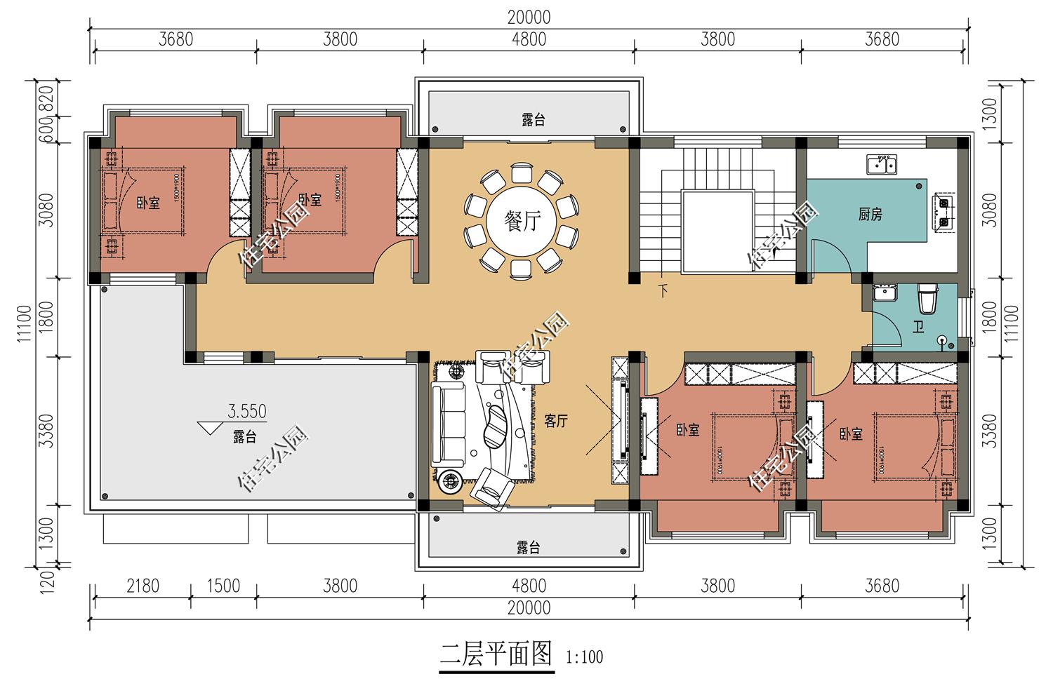
第1套:商铺+双入户门+独立格局,20×8米二层简约现代别墅,出租自住都能满足
占地尺寸:20m×8.5m
占地面积:184.㎡
建筑面积:332㎡
建筑高度:7.55m
建筑情况:商铺,1洗衣房 2厨房 1餐厅 6卧室3卫生间 1大客厅 3露台

这套简约现代二层别墅,外观简约大气,色彩搭配靓丽,通透的玻璃元素更显居室宽敞明亮。露台设计进一步美化了住宅的居住氛围,为家人打造温馨舒适的家。
入户是大面积商铺空间,前后都设置入户门厅,方便住户的进出,提高住户的居住体验感。室内布局独立,能够保证居住环境的私密性。四间卧室,可以满足每一位家人的居住需求。一个宽敞的大露台,可以种些花花草草,丰富生活情趣,同时也方便乘凉观景和晾晒衣物。


第2套:庭院+车库+杂货铺,10×31米二层新中式别墅,住起来真的很舒服
占地尺寸:10.88m×31.99m
占地面积:337.28㎡
建筑面积:327㎡
建筑高度:8.7m
建筑情况:共设置:1客厅 1厨房 1餐厅 1车库 1杂货铺 2卫生间 1书房 4卧室 1露台 1阳台

这套新中式二层别墅,外观线条精美大气,建筑形态利落分明,白墙灰瓦配色简单却不失韵味,庭院功能多样,可观景可晾晒,还可以栽种花花草草,装饰美化住宅的居住氛围。
室内布局超赞,庭院和花园设计,既美观又实用,为家人打造温馨舒适的家。宽敞的客厅,方便接待宾客以及家人休闲娱乐。临街设计杂货铺,居住赚钱两不误。四间卧室,可以满足一家三代人的居住需求。露台和阳台设计,进一步美化了居室的居住氛围。


第3套:商铺+电梯+舒适套房,14×20米三层法式别墅,享受品质生活
占地尺寸:14.4m×20m
占地面积:303㎡
建筑面积:849㎡
建筑高度:13.8m
建筑情况:设8室 3厅 8卫 1厨房 1门面 车库 1电梯 1茶区 1书房 1洗衣房 1内阳台 1活动室 1露台

这套法式三层别墅,外观线条精美大气,建筑色彩明亮,通透的玻璃元素更显居室敞亮,从外立面就能感受到别墅温馨十足的氛围感。
设计大面积商铺,开店出租都能满足。双入户门设计,方便家人进出,更好地保证家人居住环境的私密性。八间卧室,可以满足每一位家人独立居住的需求。茶区、活动室和书房设计,丰富家人的娱乐生活,提高家人的居住体验。



第4套:商铺+棋牌室+茶室,12×18米四层现代别墅,居家生活欢乐多
占地尺寸:12m×18.1m
占地面积:224㎡
建筑面积:792㎡
建筑高度:16.4m
建筑情况:设8室 4厅 6卫 2厨 2茶室 1采光井 1棋牌室 1起居室 1娱乐室 1杂物间 5阳台 1露台 1商铺 1车库

这套四层现代别墅,外观线条简约大气,双色搭配突出建筑层次感,外墙采用真石漆喷涂,十分有质感。通透的玻璃元素更显居室敞亮,露台和阳台设计,进一步美化了居室的居住氛围。
客厅餐厅一体化设计,开放布局更显通透。设计茶室和棋牌室,丰富家人的娱乐生活,方便接待宾客。八间卧室,居住空间充足,可以出租也可以自住。露台和阳台功能多样,可以种些花花草草,丰富生活情趣,同时也方便乘凉观景和晾晒衣物。




第5套:商铺+棋牌室+活动室,12×16米三层现代别墅,户型实用又漂亮
占地尺寸:12m×16.1m
占地面积:186㎡
建筑面积:517㎡
建筑高度:10.55m
建筑情况:设4室 2厅 5卫 1厨 1棋牌室 1玄关 1衣帽间 1活动室 5阳台 1露台 2储藏间 1商铺

这套三层现代别墅,外观线条简约大气,双色搭配突出建筑的层次感,通透的玻璃元素更显居室敞亮。露台和阳台设计,装饰美化了住宅的居住氛围,整栋建筑看上去十分惹眼。
临街设计商铺,自住赚钱两不误,储藏间设计,方便存放商铺货物。室外楼梯设计,将住户的居住空间与商铺分开,保证居住环境的私密性。棋牌室和活动室设计,给家人生活增添更多乐趣。舒适套房为家人打造温馨舒适的家。卫生间干湿分离,能有效提升生活效率。
一个宽敞的大露台,可以种些花花草草,丰富生活情趣,同时也方便乘凉观景和晾晒衣物。



不得不说,农村建房,好的设计和审美真的很重要。只要设计好,在家就能把钱赚。
这5套别墅设计都很好,你喜欢哪一套呢?